Jetzt €45.000 weniger: Einzigartige Maisonette mit Studio in Jugendstilvilla
495.000 €
Kaufpreis
112 m²
Wohnfläche
4
Zimmer
immobilien.de Nr.: 9270601
Objektnummer: 391801
Dateien
Preise & Kosten
| Kaufpreis | 495.000 € |
| Nebenkosten | keine Angabe |
| Hausgeld | 392 € |
| Maklerprovision | keine Provision, courtagefrei |
Größe & Zustand
| Wohnfläche | 112 m² |
| Zimmer | 4 |
| Baujahr | 2001 |
| Verfügbar ab | 01.02.2026 |
| Zustand | Gepflegt |
Energie
| Energieausweistyp | Verbrauch |
| Energieeffizienzklasse | D |
| Energieverbrauchkennwert | 107 kWh/(m²*a) |
| Heizungsart | Zentralheizung |
| Energieträger/Befeuerung | Gas |
Objektbeschreibung
Bis Ende Dezember 2025 können Sie die Wohnung noch direkt von den Eigentümern - ohne Makler - kaufen. Ab Januar 2026 geht es nur noch mit Makler.
Die Maisonettewohnung liegt im Dachgeschoss einer mehr als 110 Jahre alten Jugendstilvilla. Als besonderes Extra bietet sie ein Studio mit umwerfendem Bergblick: vom Dachstein im Osten über Watzmann und Hochkalter im Süden bis zum Wilden Kaiser im Westen. Im Studio können Sie den Sonnenaufgang beim Frühstück und den Sonnenuntergang bei einem Glas Wein genießen. Selbstverständlich haben Sie den besten Platz für das Volksfest- und Silvester-Feuerwerk.
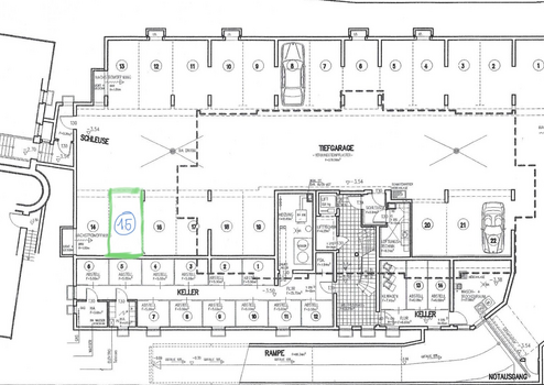
Die Villa wurde 2001 und 2002 kernsaniert. Das Dachgeschoss wurde komplett neu aufgebaut. Das mediterrane Flair der Villa wurde außen wie innen erhalten. Die halbrunde Treppe aus Eichenholz ist noch das Original. Sie wurde durch einen Lift ergänzt. Treppe und Lift führen vom Tiefgaragenstellplatz und Kellerabteil zur Wohnung. Ein gemeinsames Kellerabteil für Ihre Fahrräder gibt es zudem.
Die Wohnung bietet zwei große Schlafzimmer. Wir haben als Ehepaar das nördliche als Schlafzimmer (15 qm Wohnfläche) und das südliche als Büro (18 qm) - mit drei großen Schreibtischen und 5 Metern Bücher-Regalen - genutzt. Das Studio mit 18 qm Wohnfläche und fast doppelt so viel Nutzfläche ist der ideale Raum zum Entspannen, Musizieren, Malen oder Nähen. Für unsere zahlreichen Besucher verwandelten wir das Studio in ein Gästezimmer und für deren Kinder in einen Abenteuerspielplatz.
Das Wohnzimmer (28 qm) bietet genug Platz für Esstisch, Couchgarnitur, TV, Schränke und Regale. Ein Kaminanschluss für gemütliche Winterabende ist auch vorhanden. Es fehlt nur noch der Kaminofen. Vom Wohnzimmer können Sie hoch ins Studio schauen. Der Weihnachtsbaum darf dann auch etwas größer ausfallen. Neben dem Wohnzimmer ist die Küche (8 qm) mit einem wunderschönen Fliesenstern.
Insgesamt bringt es die Wohnung auf 112 qm Wohnfläche und 135 qm Wohnnutzfläche. Hinzu kommt noch ein Kellerabteil (7 qm) und ein Tiefgaragenstellplatz. Das ist viel Platz für ein Paar und genügend für eine Familie mit ein oder zwei Kindern.
Die Villa besteht aus insgesamt 6 Wohnungen, jeweils zwei in jedem Stock. Die Wohnungen auf der Ostseite sind vermietet, die auf der Westseite werden von den Eigentümern bewohnt. Zur Wohnanlage gehört noch ein Neubau mit 14 Wohnungen hinter der Villa. Villa und Neubau teilen die Tiefgarage und die Grünanlage.
Die Maisonettewohnung liegt im Dachgeschoss einer mehr als 110 Jahre alten Jugendstilvilla. Als besonderes Extra bietet sie ein Studio mit umwerfendem Bergblick: vom Dachstein im Osten über Watzmann und Hochkalter im Süden bis zum Wilden Kaiser im Westen. Im Studio können Sie den Sonnenaufgang beim Frühstück und den Sonnenuntergang bei einem Glas Wein genießen. Selbstverständlich haben Sie den besten Platz für das Volksfest- und Silvester-Feuerwerk.
Die Villa wurde 2001 und 2002 kernsaniert. Das Dachgeschoss wurde komplett neu aufgebaut. Das mediterrane Flair der Villa wurde außen wie innen erhalten. Die halbrunde Treppe aus Eichenholz ist noch das Original. Sie wurde durch einen Lift ergänzt. Treppe und Lift führen vom Tiefgaragenstellplatz und Kellerabteil zur Wohnung. Ein gemeinsames Kellerabteil für Ihre Fahrräder gibt es zudem.
Die Wohnung bietet zwei große Schlafzimmer. Wir haben als Ehepaar das nördliche als Schlafzimmer (15 qm Wohnfläche) und das südliche als Büro (18 qm) - mit drei großen Schreibtischen und 5 Metern Bücher-Regalen - genutzt. Das Studio mit 18 qm Wohnfläche und fast doppelt so viel Nutzfläche ist der ideale Raum zum Entspannen, Musizieren, Malen oder Nähen. Für unsere zahlreichen Besucher verwandelten wir das Studio in ein Gästezimmer und für deren Kinder in einen Abenteuerspielplatz.
Das Wohnzimmer (28 qm) bietet genug Platz für Esstisch, Couchgarnitur, TV, Schränke und Regale. Ein Kaminanschluss für gemütliche Winterabende ist auch vorhanden. Es fehlt nur noch der Kaminofen. Vom Wohnzimmer können Sie hoch ins Studio schauen. Der Weihnachtsbaum darf dann auch etwas größer ausfallen. Neben dem Wohnzimmer ist die Küche (8 qm) mit einem wunderschönen Fliesenstern.
Insgesamt bringt es die Wohnung auf 112 qm Wohnfläche und 135 qm Wohnnutzfläche. Hinzu kommt noch ein Kellerabteil (7 qm) und ein Tiefgaragenstellplatz. Das ist viel Platz für ein Paar und genügend für eine Familie mit ein oder zwei Kindern.
Die Villa besteht aus insgesamt 6 Wohnungen, jeweils zwei in jedem Stock. Die Wohnungen auf der Ostseite sind vermietet, die auf der Westseite werden von den Eigentümern bewohnt. Zur Wohnanlage gehört noch ein Neubau mit 14 Wohnungen hinter der Villa. Villa und Neubau teilen die Tiefgarage und die Grünanlage.
Ausstattung
| Anzahl der Etagen im Haus | 2 |
| Inserat befindet sich im Stockwerk | 2 |
| Küche | Einbauküche |
| Bad | 1 |
| Bad | Wanne |
| Boden | Fliesen, Parkett |
| Fahrstuhl | |
| Keller |
Keller, Fahrstuhl, Vollbad, Einbauküche, Kamin, Parkett, Fliesen
Bemerkungen:
Die Einbauküche von Nolte ist von 2012. Die Arbeitsflächen sind 85cm bzw. 90cm hoch und somit gut für kleine Personen geeignet. Das Ceran-Kochfeld und der Backofen sind von Neff, Spülmaschine und Kühlschrank sind von Bosch. Der Kühlschrank wurde 2019 angeschafft, alle anderen Geräte 2012. Die Spülmaschine müsste ersetzt werden. Die anderen Geräte sind in gutem Zustand.
Im Studio haben wir 2025 die drei Dachflächenfenster durch 3-fach verglaste Fenster mit Kunststoffrahmen ersetzt. Die beiden Panaromafenster (2-fach verglast mit Kunststoffrahmen) haben wir 2015 eingebaut und damit eine Loggia mit fantastischem Bergblick geschaffen.
Die Fußböden sind aus Terrakotta-Fliesen in Küche und Bad sowie aus Ahorn-Parkett in allen anderen Räumen. Im Wohnzimmer wartet ein voll funktionsfähiger Kamin darauf, an einen Kachelofen angeschlossen zu werden.
Bemerkungen:
Die Einbauküche von Nolte ist von 2012. Die Arbeitsflächen sind 85cm bzw. 90cm hoch und somit gut für kleine Personen geeignet. Das Ceran-Kochfeld und der Backofen sind von Neff, Spülmaschine und Kühlschrank sind von Bosch. Der Kühlschrank wurde 2019 angeschafft, alle anderen Geräte 2012. Die Spülmaschine müsste ersetzt werden. Die anderen Geräte sind in gutem Zustand.
Im Studio haben wir 2025 die drei Dachflächenfenster durch 3-fach verglaste Fenster mit Kunststoffrahmen ersetzt. Die beiden Panaromafenster (2-fach verglast mit Kunststoffrahmen) haben wir 2015 eingebaut und damit eine Loggia mit fantastischem Bergblick geschaffen.
Die Fußböden sind aus Terrakotta-Fliesen in Küche und Bad sowie aus Ahorn-Parkett in allen anderen Räumen. Im Wohnzimmer wartet ein voll funktionsfähiger Kamin darauf, an einen Kachelofen angeschlossen zu werden.
Sonstige Informationen
Heizungsart: Zentralheizung
Energieträger: Gas
Makleranfragen nicht erwünscht. Nach § 7 UWG sind unaufgeforderte Kontaktaufnahmen durch Makler ohne ausdrückliche Einwilligung des Empfängers verboten!
ohne-makler (OM) ist weder Anbieter noch Vermittler der Immobilie. OM betreibt eine Plattform für Immobilieneigentümer, die unter anderem die gleichzeitige Veröffentlichung einzelner Inserate auf mehreren Immobilienportalen ermöglicht. Die Inhalte dieser Inserate werden ausschließlich von Dritten verantwortet. Für die Richtigkeit, Vollständigkeit oder Rechtmäßigkeit der Angaben übernimmt OM keine Haftung. Hinweise auf mögliche Rechtsverstöße können jederzeit gemeldet werden und werden nach Prüfung umgehend bearbeitet.
Energieträger: Gas
Makleranfragen nicht erwünscht. Nach § 7 UWG sind unaufgeforderte Kontaktaufnahmen durch Makler ohne ausdrückliche Einwilligung des Empfängers verboten!
ohne-makler (OM) ist weder Anbieter noch Vermittler der Immobilie. OM betreibt eine Plattform für Immobilieneigentümer, die unter anderem die gleichzeitige Veröffentlichung einzelner Inserate auf mehreren Immobilienportalen ermöglicht. Die Inhalte dieser Inserate werden ausschließlich von Dritten verantwortet. Für die Richtigkeit, Vollständigkeit oder Rechtmäßigkeit der Angaben übernimmt OM keine Haftung. Hinweise auf mögliche Rechtsverstöße können jederzeit gemeldet werden und werden nach Prüfung umgehend bearbeitet.
Lage des Objektes
Freibad, Kindergarten, Gymnasium, Berufsschule, Krankenhaus, Landratsamt, AOK und Bäckerei sind weniger als 5 Minuten zu Fuß entfernt. Allerdings sind sie weit genug weg, um in der Wohnung eine himmlische Ruhe genießen zu können.
Den mittelalterliche Marktplatz mit seinen bunten Häusern können Sie in 8-10 Minuten erreichen. Dort warten Cafes, Eisdielen und Gasthäuser auf Sie für ein gemütliches Treffen mit Freunden und Bekannten. Am und um den Marktplatz finden Sie auch Banken, Buchhandlungen, Bäckerei, Metzgerei, Optiker, Ärzte, Apotheken und viele andere Geschäfte. Ein Supermarkt, die Grundschule und das Hallenbad sind weitere 5 Minuten Richtung Inn.
Im Umkreis von 3 km gibt es weitere Supermärkte (Globus, Rewe, Aldi, Lidl, Edeka, Penny, etc.), Baumärkte, Elektronikmärkte, Drogerien, Tankstellen und alles, was Sie sonst noch zum Leben brauchen. Sie können sich auch auf dem Bauernmarkt und dem Wochenmarkt (beide wöchentlich) mit frischem Gemüse, Obst, Fleisch, Fisch und Käse aus der Region eindecken.
Der Bahnhof ist gerade einmal 15 Minuten zu Fuß von der Wohnung entfernt. Mit dem Rad oder dem Auto geht es natürlich deutlich schneller. Mühldorf ist der Bahnknotenpunkt in Südost-Oberbayern. München, Landshut, Simbach, Salzburg und Rosenheim sind etwa eine Stunde entfernt. Zur morgendlichen Stoßzeit fahren mehrere Züge stündlich nach München und zur abendlichen wieder zurück. Aus Mühldorf und Umgebung pendeln täglich 14.000 Menschen Richtung München.
Mit dem Auto geht es von Mühldorf über die A94 nach München. Nach 45 Minuten steht Ihr Auto im Park-and-Ride Parkhaus an der Messe München. Von dort bringt Sie die U2 in 30 Minuten ins Stadtzentrum. Mit 60 Minuten ist der Flughafen München gut erreichbar. Das Beste daran: Der übliche Stau in und um München betrifft Sie nicht.
Am Inn können Sie wunderbar spazieren gehen. Chiemsee (50 km), Waginger See (47 km), Griessee (57 km) und Hartsee (46 km) laden zum Baden, Segeln und Entspannen ein. Die Sonnenuntergänge an diesen Seen sind unvergesslich.
Wenn Sie es etwas sportlicher mögen, können Sie in den Berchtesgadener Bergen, den Chiemgauer Bergen, dem Mangfallgebirge oder dem Wilden Kaiser wandern, klettern, Skitouren gehen oder Gleitschirm fliegen. Die Bayerischen Alpen sind 1.5 bis 2 Stunden Autofahrt entfernt. Im Winter können Sie in Ruhpolding, auf der Steinplatte, am Sudelfeld und an zahlreichen anderen Orten langlaufen oder Ski fahren.
Infrastruktur (im Umkreis von 5 km):
Apotheke, Lebensmittel-Discount, Allgemeinmediziner, Kindergarten, Grundschule, Hauptschule, Realschule, Gymnasium, Öffentliche Verkehrsmittel
Den mittelalterliche Marktplatz mit seinen bunten Häusern können Sie in 8-10 Minuten erreichen. Dort warten Cafes, Eisdielen und Gasthäuser auf Sie für ein gemütliches Treffen mit Freunden und Bekannten. Am und um den Marktplatz finden Sie auch Banken, Buchhandlungen, Bäckerei, Metzgerei, Optiker, Ärzte, Apotheken und viele andere Geschäfte. Ein Supermarkt, die Grundschule und das Hallenbad sind weitere 5 Minuten Richtung Inn.
Im Umkreis von 3 km gibt es weitere Supermärkte (Globus, Rewe, Aldi, Lidl, Edeka, Penny, etc.), Baumärkte, Elektronikmärkte, Drogerien, Tankstellen und alles, was Sie sonst noch zum Leben brauchen. Sie können sich auch auf dem Bauernmarkt und dem Wochenmarkt (beide wöchentlich) mit frischem Gemüse, Obst, Fleisch, Fisch und Käse aus der Region eindecken.
Der Bahnhof ist gerade einmal 15 Minuten zu Fuß von der Wohnung entfernt. Mit dem Rad oder dem Auto geht es natürlich deutlich schneller. Mühldorf ist der Bahnknotenpunkt in Südost-Oberbayern. München, Landshut, Simbach, Salzburg und Rosenheim sind etwa eine Stunde entfernt. Zur morgendlichen Stoßzeit fahren mehrere Züge stündlich nach München und zur abendlichen wieder zurück. Aus Mühldorf und Umgebung pendeln täglich 14.000 Menschen Richtung München.
Mit dem Auto geht es von Mühldorf über die A94 nach München. Nach 45 Minuten steht Ihr Auto im Park-and-Ride Parkhaus an der Messe München. Von dort bringt Sie die U2 in 30 Minuten ins Stadtzentrum. Mit 60 Minuten ist der Flughafen München gut erreichbar. Das Beste daran: Der übliche Stau in und um München betrifft Sie nicht.
Am Inn können Sie wunderbar spazieren gehen. Chiemsee (50 km), Waginger See (47 km), Griessee (57 km) und Hartsee (46 km) laden zum Baden, Segeln und Entspannen ein. Die Sonnenuntergänge an diesen Seen sind unvergesslich.
Wenn Sie es etwas sportlicher mögen, können Sie in den Berchtesgadener Bergen, den Chiemgauer Bergen, dem Mangfallgebirge oder dem Wilden Kaiser wandern, klettern, Skitouren gehen oder Gleitschirm fliegen. Die Bayerischen Alpen sind 1.5 bis 2 Stunden Autofahrt entfernt. Im Winter können Sie in Ruhpolding, auf der Steinplatte, am Sudelfeld und an zahlreichen anderen Orten langlaufen oder Ski fahren.
Infrastruktur (im Umkreis von 5 km):
Apotheke, Lebensmittel-Discount, Allgemeinmediziner, Kindergarten, Grundschule, Hauptschule, Realschule, Gymnasium, Öffentliche Verkehrsmittel
