Exklusives Einfamilienhaus mit einzigartigem Ausbaupotenzial
235.000 €
Kaufpreis
128 m²
Wohnfläche
139 m²
Nutzfläche
7
Zimmer
immobilien.de Nr.: 9263707
Objektnummer: 25017
Preise & Kosten
| Kaufpreis | 235.000 € |
| Nebenkosten | keine Angabe |
| Maklerprovision | 3,57% des Kaufpreises, inkl. Mehrwertsteuer |
Größe & Zustand
| Wohnfläche | 128 m² |
| Nutzfläche | 139 m² |
| Grundstücksfläche | 912 m² |
| Zimmer | 7 |
| Baujahr | 1961 |
| Letzte Modernisierung | 2000 |
| Verfügbar ab | sofort |
| Zustand | Gepflegt |
Energie
| Energieausweistyp | Bedarfsausweis |
| Ausstellungsdatum | 16. 09. 2025 |
| Gültig bis | 2025-09-15 |
| Baujahr (laut Energieausweis) | 1999 |
| Endenergiebedarf | 223.00 |
| Heizungsart | Zentralheizung |
| Wesentlicher Energieträger | Öl |
| Energieträger/Befeuerung | Öl |
Objektbeschreibung
Willkommen in Ihrem neuen Zuhause - einem charmanten Einfamilienhaus, das nicht nur durch seine großzügige Raumaufteilung, sondern auch durch seine außergewöhnlichen Möglichkeiten begeistert.
Das 1961 erbaute Wohnhaus präsentiert sich auf einem weitläufigen Grundstück von 912 m² und wurde über die Jahre liebevoll modernisiert. 1965 erweiterte ein zweigeschossiges Stallgebäude in massiver Bauweise das Anwesen. Heute bietet es Platz für Garage und Werkraum, während der ehemalige Heuboden im Obergeschoss enormes Ausbaupotenzial für zusätzlichen Wohnraum eröffnet - perfekt für ein großzügiges und lichtdurchflutetes Familienwohnzimmer mit fantastischer Aussicht über den Ort.
Die gepflasterte Hofeinfahrt sowie die Flächen vor der Garage bieten Stellplätze für bis zu vier Fahrzeuge. Auf der Westseite wartet ein idyllischer Garten mit Rasenfläche auf Sie - ideal zum Entspannen, Spielen oder für gesellige Sommerabende. Und das Beste: Bei Bedarf ist hier genügend Platz für den Bau eines weiteren Hauses.
Das Wohnhaus ist vollständig unterkellert. Neben der 1999 erneuerten Ölzentralheizung und den Heizöltanks mit einem Restbestand von ca. 2.500 Litern Heizöl, bietet der Keller jede Menge Platz für eine helle und geräumige Waschküche, für Vorräte oder als Abstellfläche. Ein separater Außenzugang sorgt für zusätzlichen Komfort.
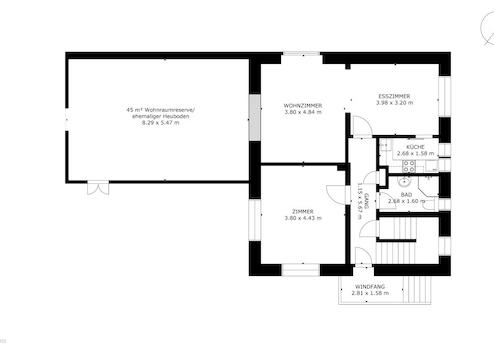
Mit 128 m² Wohnfläche auf zwei Etagen, einem ausbaufähigen Heuboden mit ca. 45 m² und einem zusätzlichen Dachboden für Stauraum eröffnet dieses Haus nahezu grenzenlose Möglichkeiten. Dank moderner Badezimmer auf beiden Ebenen ist auch eine Nutzung als Zweifamilienhaus problemlos realisierbar.
Das 1961 erbaute Wohnhaus präsentiert sich auf einem weitläufigen Grundstück von 912 m² und wurde über die Jahre liebevoll modernisiert. 1965 erweiterte ein zweigeschossiges Stallgebäude in massiver Bauweise das Anwesen. Heute bietet es Platz für Garage und Werkraum, während der ehemalige Heuboden im Obergeschoss enormes Ausbaupotenzial für zusätzlichen Wohnraum eröffnet - perfekt für ein großzügiges und lichtdurchflutetes Familienwohnzimmer mit fantastischer Aussicht über den Ort.
Die gepflasterte Hofeinfahrt sowie die Flächen vor der Garage bieten Stellplätze für bis zu vier Fahrzeuge. Auf der Westseite wartet ein idyllischer Garten mit Rasenfläche auf Sie - ideal zum Entspannen, Spielen oder für gesellige Sommerabende. Und das Beste: Bei Bedarf ist hier genügend Platz für den Bau eines weiteren Hauses.
Das Wohnhaus ist vollständig unterkellert. Neben der 1999 erneuerten Ölzentralheizung und den Heizöltanks mit einem Restbestand von ca. 2.500 Litern Heizöl, bietet der Keller jede Menge Platz für eine helle und geräumige Waschküche, für Vorräte oder als Abstellfläche. Ein separater Außenzugang sorgt für zusätzlichen Komfort.
Mit 128 m² Wohnfläche auf zwei Etagen, einem ausbaufähigen Heuboden mit ca. 45 m² und einem zusätzlichen Dachboden für Stauraum eröffnet dieses Haus nahezu grenzenlose Möglichkeiten. Dank moderner Badezimmer auf beiden Ebenen ist auch eine Nutzung als Zweifamilienhaus problemlos realisierbar.
Ausstattung
| Anzahl der Etagen im Haus | 2 |
| Küche | Einbauküche |
| Bad | 2 |
| Bad | Dusche, Wanne, Fenster |
| Boden | Fliesen, Parkett |
| Balkone | 1 |
| Garage/Stellplätze | 1 |
| Dachboden | |
| Keller |
Dieses Haus passt sich Ihren Wünschen an - egal ob großzügiges Familienheim oder Zweifamilienhaus:
- Erdgeschoss: 64 m² Wohnfläche mit Potenzial zur Erweiterung um weitere 45 m².
- Dachgeschoss: 64 m² helle und freundliche Wohnfläche mit drei Zimmern, Küche und modernem Wannenbad.
- Beheizung: zentrale Öl-Heizanlage, die das gesamte Haus zuverlässig versorgt.
Hier verbinden sich gemütliche Wohnatmosphäre und praktischer Raum für Familie, Beruf und Hobbys.
- Erdgeschoss: 64 m² Wohnfläche mit Potenzial zur Erweiterung um weitere 45 m².
- Dachgeschoss: 64 m² helle und freundliche Wohnfläche mit drei Zimmern, Küche und modernem Wannenbad.
- Beheizung: zentrale Öl-Heizanlage, die das gesamte Haus zuverlässig versorgt.
Hier verbinden sich gemütliche Wohnatmosphäre und praktischer Raum für Familie, Beruf und Hobbys.
Sonstige Informationen
Diese Immobilie wird von uns im qualifizierten Makleralleinauftrag angeboten.
Bei allen Angaben handelt es sich um Angaben des Eigentümers bzw. Dritter. Trotz gründlicher Prüfung aller Informationen und Daten übernehmen wir keine Haftung für die Richtigkeit der Angaben, sowie die Verfügbarkeit des Angebotes.
Für diese Immobilie stellen wir Ihnen einen digitalen 360°-Rundgang zur Verfügung, anhand dessen Sie einen besseren Einblick in Aufteilung und Ausstattung dieses Hauses erhalten können.
Sollte das von Ihnen bevorzugte Immobilienportal aus technischen Gründen den digitalen Rundgang nicht anzeigen, schauen Sie einfach auf unserer Webseite WWW.IMMMO.EXPERT
Wenn Sie mehr über dieses Anwesen in toller Lage erfahren möchten, vereinbaren wir gerne einen persönlichen Besichtigungstermin mit Ihnen.
Bei allen Angaben handelt es sich um Angaben des Eigentümers bzw. Dritter. Trotz gründlicher Prüfung aller Informationen und Daten übernehmen wir keine Haftung für die Richtigkeit der Angaben, sowie die Verfügbarkeit des Angebotes.
Für diese Immobilie stellen wir Ihnen einen digitalen 360°-Rundgang zur Verfügung, anhand dessen Sie einen besseren Einblick in Aufteilung und Ausstattung dieses Hauses erhalten können.
Sollte das von Ihnen bevorzugte Immobilienportal aus technischen Gründen den digitalen Rundgang nicht anzeigen, schauen Sie einfach auf unserer Webseite WWW.IMMMO.EXPERT
Wenn Sie mehr über dieses Anwesen in toller Lage erfahren möchten, vereinbaren wir gerne einen persönlichen Besichtigungstermin mit Ihnen.
Lage des Objektes
Ein echtes Highlight ist die Lage: absolut ruhig und grün, ohne Durchgangsverkehr - und dennoch hervorragend angebunden. Nur 150 Meter entfernt sorgt die L2 für eine schnelle Verbindung, während Sie in Ihrem Zuhause die Ruhe und Sonne in vollen Zügen genießen können.
Der Ort selbst bietet eine Kindertagesstätte, während Schulen, Ärzte und Einkaufsmöglichkeiten im nahegelegenen Speicher (4 km) zu finden sind. Die Kreisstädte Wittlich, Bitburg und Trier erreichen Sie in etwa 25 km - nah genug für Arbeit, Kultur und Freizeit, weit genug für entspanntes Wohnen im Grünen.
Dieses Einfamilienhaus ist weit mehr als nur ein Zuhause - es ist eine Investition in Ihre Zukunft. Mit sofortigem Einzug, einzigartigem Ausbaupotenzial und einem traumhaften Grundstück vereint es Komfort, Freiheit und Gestaltungsvielfalt.
Hier wartet Ihr Platz zum Ankommen, Wohlfühlen und Träumen.
Der Ort selbst bietet eine Kindertagesstätte, während Schulen, Ärzte und Einkaufsmöglichkeiten im nahegelegenen Speicher (4 km) zu finden sind. Die Kreisstädte Wittlich, Bitburg und Trier erreichen Sie in etwa 25 km - nah genug für Arbeit, Kultur und Freizeit, weit genug für entspanntes Wohnen im Grünen.
Dieses Einfamilienhaus ist weit mehr als nur ein Zuhause - es ist eine Investition in Ihre Zukunft. Mit sofortigem Einzug, einzigartigem Ausbaupotenzial und einem traumhaften Grundstück vereint es Komfort, Freiheit und Gestaltungsvielfalt.
Hier wartet Ihr Platz zum Ankommen, Wohlfühlen und Träumen.
Anbieter kontaktieren
Anbieter
Immo Expert GmbH
Im Jakobsgarten 17
54492 Zeltingen-Rachtig
Kontakt
| Telefon | +49 800 2424110 |
| Mobil | +49 176 44411100 |
