Ein- bis Dreifamilienhaus (teilbar -PRIVAT ohne Makler)

1.100.000 €
Kaufpreis
290 m²
Wohnfläche
11,5
Zimmer
immobilien.de Nr.: 9251509 Objektnummer: 376621
Sicht Westen
Treppenhaus
Küche
Esszimmer
Wohnzimmer
Schlafzimmer
Bad
Gästezimmer
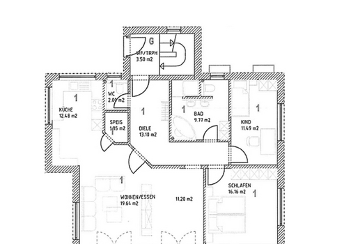
Grundriss EG
Grundriss OG
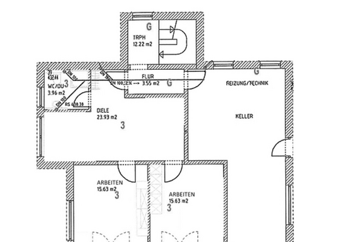
Grundriss UG/Keller

Preise & Kosten

Kaufpreis 1.100.000 €
Nebenkosten keine Angabe
Maklerprovision keine Provision, courtagefrei

Größe & Zustand

Wohnfläche 290 m²
Grundstücksfläche 868 m²
Zimmer 11,5
Baujahr 2011
Verfügbar ab nach Absprache
Zustand Gepflegt

Energie

Energieausweistyp Bedarfsausweis
Energieeffizienzklasse C
Endenergiebedarf 85
Heizungsart Zentralheizung
Energieträger/Befeuerung Pellet

Objektbeschreibung

Stadtnah wohnen in Aalen-Wasseralfingen in einem großzügig geschnittenem Eigenheim mit Platz für die ganze Familie“
- Wohnfläche insgesamt ca. 289 m, aufteilbar in 3 Wohneinheiten, verteilt über drei Etagen
- insgesamt 11,5 Zimmer (3,5 im EG, 5 im OG, 3 im UG) – Möglichkeit zur Änderung der räumlich Aufteilung
- Terrasse im UG Südausrichtung, Gartenzugang
- Balkon im EG Südausrichtung, Gartenzugang
- Baujahr 2011 in hochwertiger Massivbauweise
- unterkellert
- Grundstücksgröße ca. 868 m² (Eckgrundstück); in ruhiger, verkehrsgünstiger Lage
- PV-Anlage, Wallbox 11 kW, Entkalkungsanlage
- Doppelgarage, sowie 4-5 zusätzliche Stellplätze
- nutzbar als großes Eigenheim oder zur Kapitalanlage – Teilung in 3 Wohneinheiten ist vorbereitet und technisch möglich, Platz für Zähleinrichtungen - Strom, Wasser, Wärme - vorbereitet (Teilungsgenehmigung liegt vor)

Das Haus wird derzeit als Einfamilienhaus genutzt, mit Büroarbeitsräumen im Untergeschoss. Die derzeit 11,5 Zimmer mit ca. 289 m² Wohnfläche sind verteilt auf 3 Etagen, eine vielseitige Nutzung möglich, z.B. wie folgt:
- Großes Einfamilienhaus für Familien mit mehreren Kindern oder Bewohnern mit dem Wunsch nach viel Platz
- Mehrgenerationenwohnen mit unterschiedlichen Aufteilungsmöglichkeiten z.B eigengenutzte Hauptwohnung im Erdgeschoss und Vermietung der Wohnung im Obergeschoss und/oder der Einliegerwohnung im Untergeschoss
- Wohnen & Arbeiten unter einem Dach mit Arbeitsbereich im Untergeschoss, z.B. für Büro
- Mehrfamilienhaus mit 3 Wohnungen zur Vermietung oder auch zum einzelnen Verkauf

Ausstattung

Anzahl der Etagen im Haus 3
 
Küche Einbauküche
Bad 3
Bad Dusche, Wanne
Boden Fliesen, Teppich, Laminat, Kunststoff
Balkone 1
Garten
Terrassen 1
Keller
Balkon, Terrasse, Garten, Keller, Vollbad, Duschbad, Einbauküche, Gäste-WC, Laminat, Teppichboden, Fliesen

Bemerkungen:
Hochwertige Ausstattung
-Markeneinbauküche mit modernen Elektrogeräten im Erdgeschoss
-Balkon im Erdgeschoss mit Glasüberdachung samt elektrisch bedienbarem Sonnen- und Sichtschutz und sowie Zugangstreppe zum Garten
-ebenerdiger Nebeneingang im Unter-/Kellergeschoss
-große Doppelgarage mit elektrischem Torantrieb
-Lagerschuppen, flexsibel nutzbar

Sonstige Informationen

Heizungsart: Zentralheizung
Energieträger: Holzpellets


Makleranfragen nicht erwünscht. Nach § 7 UWG sind unaufgeforderte Kontaktaufnahmen durch Makler ohne ausdrückliche Einwilligung des Empfängers verboten!

ohne-makler (OM) ist weder Anbieter noch Vermittler der Immobilie. OM betreibt eine Plattform für Immobilieneigentümer, die unter anderem die gleichzeitige Veröffentlichung einzelner Inserate auf mehreren Immobilienportalen ermöglicht. Die Inhalte dieser Inserate werden ausschließlich von Dritten verantwortet. Für die Richtigkeit, Vollständigkeit oder Rechtmäßigkeit der Angaben übernimmt OM keine Haftung. Hinweise auf mögliche Rechtsverstöße können jederzeit gemeldet werden und werden nach Prüfung umgehend bearbeitet.

Objektstandort

73433 AALEN - Baden-Württemberg

Lage des Objektes

Nur ca. 4 Kilometer nördlich der Aalener Innenstadt liegt der größte Stadtbezirk Wasseralfingen. Er ist von bewaldeten Hügeln und Bergen sowie einer schönen Wald- und Wiesenlandschaft umgeben. Reizvoll sind vor allem die damit verbundene Naturnähe und der Braunenberg mit dem Naturfreundehaus und seinen Bergbaupfaden sowie dem Besucherbergwerk Tiefer Stollen. Daneben bietet Wasseralfingen eine nahezu vollständige Infrastruktur mit allen Einrichtungen des täglichen Bedarfs, wie Einkaufsmöglichkeiten, Restaurants, Ärzte und Apotheken. Diese sind ebenso schnell zu erreichen wie Kindergärten, Schulen und Sportstätten. Die zahlreichen sport-und kulturtreibenden Vereine sorgen für ein äußerst aktives Vereinsleben. Das alles bietet nicht nur Familien einen besonderen Mehrwert.
Für Mobilität und eine schnelle Verbindung in alle Richtungen sorgt die verkehrsgünstige Lage mit direkter Anbindung zur Bundesstraße B29 und kurzen Wegen zu den Anschlussstellen der Bundesstraßen 19 und 290 sowie Autobahn A7. Zudem sind eine eigene Bahnhaltestelle und zahlreiche Bushaltestellen vorhanden.
Das Haus selbst befindet sich in gesuchter, hochwertiger Wohnlage im Tal, nur wenige hundert Meter entfernt von Ortskern, wichtigen Einrichtungen des täglichen Bedarfs und Schulzentrum sind in wenigen Minuten fußläufig erreichbar. Diese genannten Vorteile und Standortfaktoren werden auch durch den stetig steigenden, offiziellen Bodenrichtwert stark unterstrichen.
Infrastruktur (im Umkreis von 5 km):
Apotheke, Lebensmittel-Discount, Allgemeinmediziner, Kindergarten, Grundschule, Hauptschule, Realschule, Gymnasium, Öffentliche Verkehrsmittel

Anbieter kontaktieren

Anbieter

OM PropTech GmbH
Humboldtstraße 25a
21509 Glinde

Kontakt

Telefon -
Fax -
Website www.ohne-makler.net

Ansprechpartner/in

Privat vom Eigentümer
Weitere Anbieterdaten