Natur erleben, Geborgenheit genießen – Ihr Familienzuhause am Rande der Fischbeker Heide
780.000 €
Kaufpreis
234,87 m²
Wohnfläche
121,36 m²
Nutzfläche
5
Zimmer
immobilien.de Nr.: 9251124
Objektnummer: HH4131
Preise & Kosten
| Kaufpreis | 780.000 € |
| Nebenkosten | keine Angabe |
| Maklerprovision | 3,5 % inkl. gesetzl. MwSt. vom erzielten Kaufpreis |
| Stellplatz Garage Kaufpreis | 0 € |
Größe & Zustand
| Wohnfläche | 234,87 m² |
| Nutzfläche | 121,36 m² |
| Grundstücksfläche | 1.325 m² |
| Zimmer | 5 |
| Baujahr | 1972 |
| Verfügbar ab | Sofort |
| Zustand | Teil Vollrenovierungsbed |
Energie
| Energieausweistyp | Bedarfsausweis |
| Ausstellungsdatum | 25. 09. 2025 |
| Gültig bis | 2035-09-24 |
| Baujahr (laut Energieausweis) | 1972 |
| Energieeffizienzklasse | F |
| Endenergiebedarf | 167.38 |
| Heizungsart | Zentralheizung |
| Wesentlicher Energieträger | Gas |
| Energieträger/Befeuerung | Gas |
Objektbeschreibung
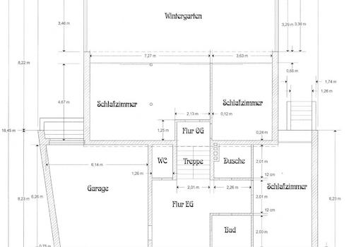
Das massive Wohnhaus wurde Anfang der siebziger Jahre in Split-Level-Bauweise errichtet. Der Grundriss gestaltet sich mit großzügigen Räumen auf vier versetzten Ebenen. Raumbreite Fensterfronten öffnen sich zum Garten und der Wintergarten im Obergeschoss ermöglicht einen Rundblick über das idyllische Grundstück.
Auf der Ebene des Gartengeschosses befindet sich das geräumige Wohnzimmer, an welches sich die offene Küche anschließt. Vier weitere Zimmer verteilen sich auf drei Ebenen und können bei Bedarf wieder in sechs Zimmer unterteilt werden, wie es der ursprüngliche Grundriss vorsah. Es gibt zwei Bäder, sowohl mit Dusche als auch mit Badewanne und eine Gästetoilette. Die knalligen Farben der Fliesen spiegeln den Zeitgeist wider.
Im Kellergeschoss liegen Wirtschafts- und Lagerraum. Der zusätzliche große Hobbyraum ist als Spiele-, Sport- oder Musikzimmer hervorragend nutzbar. Unter Wohnzimmer und Küche befindet sich ein Kriechkeller. Neben dem einladenden Eingangsbereich liegt mit direktem Zugang die Doppelgarage.
Das Haus wurde seinerzeit sehr individuell und wertig errichtet und ausgestattet. Es befindet sich heute noch in einem guten, jedoch renovierungsbedürftigen Zustand. Die Gasheizung von Viessmann wurde 2015 installiert. Die Mehrzahl der Fenster sind inzwischen erneuert und 3-fach verglast. Eine Alarmanlage ist vorhanden.
Einzigartig sind die ruhige Lage am Ende einer Sackgasse und das herrliche, nicht einsehbare Grundstück. Für eine luftige Gestaltung kann dieses noch von dem einen oder anderen Gewächs befreit werden.
Als Besonderheit sei erwähnt, dass man über einen privaten Weg - zum Grundstück gehörend - den angrenzenden Wald erreicht.
Das Haus ist frei und geräumt. Gern lade ich Sie zur Besichtigung ein und freue mich, Sie kennenzulernen.
Auf der Ebene des Gartengeschosses befindet sich das geräumige Wohnzimmer, an welches sich die offene Küche anschließt. Vier weitere Zimmer verteilen sich auf drei Ebenen und können bei Bedarf wieder in sechs Zimmer unterteilt werden, wie es der ursprüngliche Grundriss vorsah. Es gibt zwei Bäder, sowohl mit Dusche als auch mit Badewanne und eine Gästetoilette. Die knalligen Farben der Fliesen spiegeln den Zeitgeist wider.
Im Kellergeschoss liegen Wirtschafts- und Lagerraum. Der zusätzliche große Hobbyraum ist als Spiele-, Sport- oder Musikzimmer hervorragend nutzbar. Unter Wohnzimmer und Küche befindet sich ein Kriechkeller. Neben dem einladenden Eingangsbereich liegt mit direktem Zugang die Doppelgarage.
Das Haus wurde seinerzeit sehr individuell und wertig errichtet und ausgestattet. Es befindet sich heute noch in einem guten, jedoch renovierungsbedürftigen Zustand. Die Gasheizung von Viessmann wurde 2015 installiert. Die Mehrzahl der Fenster sind inzwischen erneuert und 3-fach verglast. Eine Alarmanlage ist vorhanden.
Einzigartig sind die ruhige Lage am Ende einer Sackgasse und das herrliche, nicht einsehbare Grundstück. Für eine luftige Gestaltung kann dieses noch von dem einen oder anderen Gewächs befreit werden.
Als Besonderheit sei erwähnt, dass man über einen privaten Weg - zum Grundstück gehörend - den angrenzenden Wald erreicht.
Das Haus ist frei und geräumt. Gern lade ich Sie zur Besichtigung ein und freue mich, Sie kennenzulernen.
Ausstattung
| Küche | Einbauküche |
| Bad | 2 |
| Garten | |
| Terrassen | 1 |
| Garage/Stellplätze | 2 |
| Keller |
Lage des Objektes
Neugraben-Fischbek ist ein Stadtteil im Bezirk Harburg. Das Wohnumfeld zeichnet sich durch eine ruhige, grüne Lage mit gleichzeitig guter Anbindung an die Hamburger Innenstadt aus.
Besonders hervorzuheben ist die Nähe zum Naturschutzgebiet Fischbeker Heide und zum Hamburger Forst, die vielfältige Möglichkeiten für Erholung, Sport und Freizeit bieten. Spaziergänge, Radfahren und Ausflüge in die Natur sind direkt vor der Haustür möglich.
Neugraben-Fischbek verbindet damit urbanes Wohnen mit naturnahem Lebensgefühl und zählt zu den attraktiven Wohnlagen im Süden Hamburgs.
Besonders hervorzuheben ist die Nähe zum Naturschutzgebiet Fischbeker Heide und zum Hamburger Forst, die vielfältige Möglichkeiten für Erholung, Sport und Freizeit bieten. Spaziergänge, Radfahren und Ausflüge in die Natur sind direkt vor der Haustür möglich.
Neugraben-Fischbek verbindet damit urbanes Wohnen mit naturnahem Lebensgefühl und zählt zu den attraktiven Wohnlagen im Süden Hamburgs.
Anbieter kontaktieren
Kontakt
| Telefon | 00491724909939 |
| Mobil | 00491724909939 |
| Fax | 004940287866929 |
| Website | www.yoventi.de |
