Modernes Wohnen Energiesparhaus Trier-Kürenz - Achtung Anleger hohe Steuervorteile sichern
372.000 €
Kaufpreis
71,91 m²
Wohnfläche
2
Zimmer
immobilien.de Nr.: 9247815
Objektnummer: ETNBAVE601
Preise & Kosten
| Kaufpreis | 372.000 € |
| Nebenkosten | keine Angabe |
Größe & Zustand
| Wohnfläche | 71,91 m² |
| Fläche teilbar ab | 71,91 m² |
| Zimmer | 2 |
| Baujahr | 2025 |
| Verfügbar ab | Anfang 2026 |
| Zustand | Erstbezug |
Energie
| Energieausweistyp | Bedarfsausweis |
| Ausstellungsdatum | 20. 01. 2022 |
| Gültig bis | 19.01.2032 |
| Baujahr (laut Energieausweis) | 2024 |
| Energieeffizienzklasse | A+ |
| Energietyp | KfW-55 |
| Endenergiebedarf | 16,80 |
| Heizungsart | Fußbodenheizung |
| Wesentlicher Energieträger | Luft/wasser-Wärmepumpe |
| Energieträger/Befeuerung | Luft-Wärme-Pumpe |
Objektbeschreibung
Modernes Wohnen in altersgerechter Ausführung im verkehrsberuhigten Innenbereich in Trier-Kürenz. Achtung Vermieter: Hohe Steuervorteile durch neue degressive Gebäudeabschreibung sichern ! In attraktiver Lage von Trier-Kürenz entstehen neue Eigentumswohnungen in altersgerech Ausführung mit moderner Technik (KfW 55 Standard Erneuerbare Energien), Aufzug und guter Ausstattung von ca. 67 bis ca. 130 m² mit moderner Technik in altersgerechter Ausführung. Es sind eine moderne Luftwärmepumpe, Fußbodenheizung, elektrische Rollläden, Aufzug, schöne Fliesen sowie attraktive Parkettböden vorgesehen. Sie können hier noch Ihre persönliche Note einbringen. Die Errichtung erfolgt unter Berücksichtigung moderner Energiestandards (KFW-Effizienzhaus 55) sowie einer guten Ausstattung. Die Kombination von moderner Technik und hochwertiger Isolierung führt zu sehr günstigen Heizkosten bzw. Nebenkosten. Alle Wohnungen verfügen über schöne Balkone, Terrassen oder Dachterrassen.
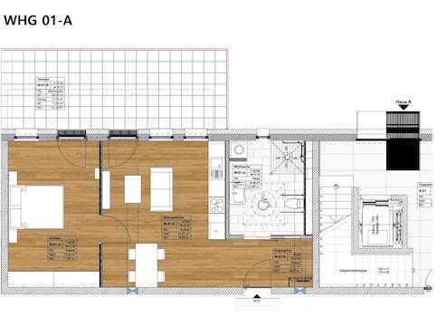
Das Angebot bezieht sich auf die Wohnung Nr. 1 - Gebäude A im Erdgeschoss
Die Wohnung besteht aus dem hellen Wohn/Essbereich von ca. 24 m² mit integrierter Küche. und Zugang auf die große Terrasse von ca. 23 m². An den Wohnbereich ist das Schlafzimmer von ca. 17 m², sowie das große Duschbad von ca. 10 m² mit Fenster angegliedert. Die gesamte Wohnfläche beträgt ca. 72 m². Die Wohnung wurde barrierefrei konzipiert.
Jeder Wohnung ist ein Abstell/Kellerraum im Untergeschoß zugeordnet.
Gleichermaßen befinden sich im Kellergeschoß die Tiefgarage, Waschräume sowie der Fahrradbereich
Es besteht die Möglichkeit Tiefgaragenstellplätze ab 27.000 EUR oder Doppelparker für 20.000 EUR zu erwerben.
Derzeit ist der Innenausbau in Arbeit. Die Bezugsfertigkeit ist für Anfang 2026 geplant.
Steuerlicher Hinweis für Investoren : Die Wohnungen können bei einem Erwerb bis zum Jahr der Fertigstellung und einer Vermietung entsprechend den im Wachstumschanchengesetz aktuell beschlossenen Änderungen der degressiven Abschreibung nunmehr mit jährlich 5 %- bezogen auf den jeweiligen Buchwert/Restwert - abgeschrieben werden. Hierdurch können hohe Steuervorteile erzielt werden. Wir übernehmen keine steuerliche Beratung und keine Haftung für steuerliche Ziele. Hierzu informiert Sie Ihr Steuerberater umfassend.
Das Angebot bezieht sich auf die Wohnung Nr. 1 - Gebäude A im Erdgeschoss
Die Wohnung besteht aus dem hellen Wohn/Essbereich von ca. 24 m² mit integrierter Küche. und Zugang auf die große Terrasse von ca. 23 m². An den Wohnbereich ist das Schlafzimmer von ca. 17 m², sowie das große Duschbad von ca. 10 m² mit Fenster angegliedert. Die gesamte Wohnfläche beträgt ca. 72 m². Die Wohnung wurde barrierefrei konzipiert.
Jeder Wohnung ist ein Abstell/Kellerraum im Untergeschoß zugeordnet.
Gleichermaßen befinden sich im Kellergeschoß die Tiefgarage, Waschräume sowie der Fahrradbereich
Es besteht die Möglichkeit Tiefgaragenstellplätze ab 27.000 EUR oder Doppelparker für 20.000 EUR zu erwerben.
Derzeit ist der Innenausbau in Arbeit. Die Bezugsfertigkeit ist für Anfang 2026 geplant.
Steuerlicher Hinweis für Investoren : Die Wohnungen können bei einem Erwerb bis zum Jahr der Fertigstellung und einer Vermietung entsprechend den im Wachstumschanchengesetz aktuell beschlossenen Änderungen der degressiven Abschreibung nunmehr mit jährlich 5 %- bezogen auf den jeweiligen Buchwert/Restwert - abgeschrieben werden. Hierdurch können hohe Steuervorteile erzielt werden. Wir übernehmen keine steuerliche Beratung und keine Haftung für steuerliche Ziele. Hierzu informiert Sie Ihr Steuerberater umfassend.
Ausstattung
| Bad | 1 |
| Bad | Dusche, Fenster |
| Boden | Fliesen, Parkett |
| Barrierefrei |
Modernes Wohnen in altersgerechter Ausführung im verkehrsberuhigten Innenbereich in Trier-Kürenz. Achtung Vermieter: Hohe Steuervorteile durch neue degressive Gebäudeabschreibung sichern ! In attraktiver Lage von Trier-Kürenz entstehen neue Eigentumswohnungen in altersgerech Ausführung mit moderner Technik (KfW 55 Standard Erneuerbare Energien), Aufzug und guter Ausstattung von ca. 67 bis ca. 130 m² mit moderner Technik in altersgerechter Ausführung. Es sind eine moderne Luftwärmepumpe, Fußbodenheizung, elektrische Rollläden, Aufzug, schöne Fliesen sowie attraktive Parkettböden vorgesehen. Sie können hier noch Ihre persönliche Note einbringen. Die Errichtung erfolgt unter Berücksichtigung moderner Energiestandards (KFW-Effizienzhaus 55) sowie einer guten Ausstattung. Die Kombination von moderner Technik und hochwertiger Isolierung führt zu sehr günstigen Heizkosten bzw. Nebenkosten. Alle Wohnungen verfügen über schöne Balkone, Terrassen oder Dachterrassen.
Das Angebot bezieht sich auf die Wohnung Nr. 1 - Gebäude A im Erdgeschoss
Die Wohnung besteht aus dem hellen Wohn/Essbereich von ca. 24 m² mit integrierter Küche. und Zugang auf die große Terrasse von ca. 23 m². An den Wohnbereich ist das Schlafzimmer von ca. 17 m², sowie das große Duschbad von ca. 10 m² mit Fenster angegliedert. Die gesamte Wohnfläche beträgt ca. 72 m². Die Wohnung wurde barrierefrei konzipiert.
Jeder Wohnung ist ein Abstell/Kellerraum im Untergeschoß zugeordnet.
Gleichermaßen befinden sich im Kellergeschoß die Tiefgarage, Waschräume sowie der Fahrradbereich
Es besteht die Möglichkeit Tiefgaragenstellplätze ab 27.000 EUR oder Doppelparker für 20.000 EUR zu erwerben.
Derzeit ist der Innenausbau in Arbeit. Die Bezugsfertigkeit ist für Anfang 2026 geplant.
Steuerlicher Hinweis für Investoren : Die Wohnungen können bei einem Erwerb bis zum Jahr der Fertigstellung und einer Vermietung entsprechend den im Wachstumschanchengesetz aktuell beschlossenen Änderungen der degressiven Abschreibung nunmehr mit jährlich 5 %- bezogen auf den jeweiligen Buchwert/Restwert - abgeschrieben werden. Hierdurch können hohe Steuervorteile erzielt werden. Wir übernehmen keine steuerliche Beratung und keine Haftung für steuerliche Ziele. Hierzu informiert Sie Ihr Steuerberater umfassend.
Das Angebot bezieht sich auf die Wohnung Nr. 1 - Gebäude A im Erdgeschoss
Die Wohnung besteht aus dem hellen Wohn/Essbereich von ca. 24 m² mit integrierter Küche. und Zugang auf die große Terrasse von ca. 23 m². An den Wohnbereich ist das Schlafzimmer von ca. 17 m², sowie das große Duschbad von ca. 10 m² mit Fenster angegliedert. Die gesamte Wohnfläche beträgt ca. 72 m². Die Wohnung wurde barrierefrei konzipiert.
Jeder Wohnung ist ein Abstell/Kellerraum im Untergeschoß zugeordnet.
Gleichermaßen befinden sich im Kellergeschoß die Tiefgarage, Waschräume sowie der Fahrradbereich
Es besteht die Möglichkeit Tiefgaragenstellplätze ab 27.000 EUR oder Doppelparker für 20.000 EUR zu erwerben.
Derzeit ist der Innenausbau in Arbeit. Die Bezugsfertigkeit ist für Anfang 2026 geplant.
Steuerlicher Hinweis für Investoren : Die Wohnungen können bei einem Erwerb bis zum Jahr der Fertigstellung und einer Vermietung entsprechend den im Wachstumschanchengesetz aktuell beschlossenen Änderungen der degressiven Abschreibung nunmehr mit jährlich 5 %- bezogen auf den jeweiligen Buchwert/Restwert - abgeschrieben werden. Hierdurch können hohe Steuervorteile erzielt werden. Wir übernehmen keine steuerliche Beratung und keine Haftung für steuerliche Ziele. Hierzu informiert Sie Ihr Steuerberater umfassend.
Sonstige Informationen
Vereinbaren Sie einen Beratungs bzw. Besichtigungstermin ! In Zusammenarbeit mit einem Finanzierungsvermittler sind wir Ihnen gerne bei der Gestaltung Ihrer Finanzierung behilflich. Auf Wunsch sowie bei entsprechender Bonität kann der Kaufpreis bis zu 100 % finanziert werden. Die Zinsen können z.B. auf die Dauer von 10 oder 15 Jahren festgeschrieben werden. Hierdurch können sich Ihre monatlichen Raten nicht verändern !
Weitere interessante Kauf- oder Mietangebote finden Sie unter www.scherf-immobilien.de
Weitere interessante Kauf- oder Mietangebote finden Sie unter www.scherf-immobilien.de
Lage des Objektes
Trier- Stadtteil Kürenz - gefragter Wohnbereich zwischen Innenstadt und Universität. Die Wohnungen entstehen in einem modernen Mehrfamilienhaus, was als Energiesparhaus mit moderner Technik konzipiert wurde. Das Objekt wurde mit einem verkehrsberuhigten Innenbereich geplant.
Alle Einrichtungen des täglichen Bedarfs erreichen Sie auf kurzen Wegen. Ebenso ist eine gute Verkehrsanbindung in alle Richtungen gegeben. Den Hauptbahnhof erreichen Sie in ca. 10 Gehminuten.ebenso ist die Radachse Trier-Nordin unmittelbarer Nähe Der neue REWE Markt Schönbornstraße ist ebenfalls in wenigen Gehminuten erreichbar. Die Zufahrt zur Tiefgrage erfolgt von der Nellstraße.
Alle Einrichtungen des täglichen Bedarfs erreichen Sie auf kurzen Wegen. Ebenso ist eine gute Verkehrsanbindung in alle Richtungen gegeben. Den Hauptbahnhof erreichen Sie in ca. 10 Gehminuten.ebenso ist die Radachse Trier-Nordin unmittelbarer Nähe Der neue REWE Markt Schönbornstraße ist ebenfalls in wenigen Gehminuten erreichbar. Die Zufahrt zur Tiefgrage erfolgt von der Nellstraße.
Anbieter kontaktieren
Anbieter
Scherf Profi Immobilienservice GmbH
Paulinstraße 104
54292 Trier
Kontakt
| Telefon | 0651 97878-0 |
| Fax | 0651 97878-78 |
| Website | www.scherf-immobilien.de |
