Haus+Einliegerwohnung - 2 Generationen unter einem Dach
499.995 €
Kaufpreis
168 m²
Wohnfläche
6
Zimmer
immobilien.de Nr.: 9230463
Objektnummer: JW-Stemmler-EFH-ELW3-a
Preise & Kosten
| Kaufpreis | 499.995 € |
| Nebenkosten | keine Angabe |
Größe & Zustand
| Wohnfläche | 168 m² |
| Grundstücksfläche | 702 m² |
| Zimmer | 6 |
| Verfügbar ab | keine Angabe |
| Zustand | Projektiert |
Energie
| Energietyp | Niedrigenergie |
| Energieträger/Befeuerung | Luft-Wärme-Pumpe |
Objektbeschreibung
Ihr Traumhaus mit Einliegerwohnung - ideal für Mehrgenerationen oder Vermietung
Willkommen in einer Stadtvilla, die modernes Familienleben und smarte Raumlösungen perfekt vereint!
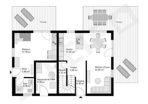
Das Family Hauskonzept von STREIF bietet auf großzügigen 167,94 qm Netto-Raumfläche ein innovatives Konzept für Mehrgenerationenwohnen, Vermietung oder flexible Familiengestaltung.
Ein besonderes Highlight ist die integrierte Einliegerwohnung mit separatem Eingang - perfekt geeignet für die Vermietung, das Wohnen mit Großeltern oder erwachsenen Kindern oder als exklusives Home-Office.
Die bodentiefen Terrassentüren im Erdgeschoss sorgen für lichtdurchflutete Räume und einen offenen, modernen Charakter.
Im Obergeschoss bietet die Villa ein durchdachtes Raumkonzept mit einer großen Ankleide im Elternbereich sowie einem zusätzlichen Abstellraum, der für extra Stauraum und Ordnung sorgt - ideal für anspruchsvolle Familienbedürfnisse.
In der Standardausstattung ist das Haus mit einer innovativen Frischluft-Wärmepumpen-Technik ausgestattet, die effiziente Wärmeversorgung und kontrollierte Wohnraumlüftung kombiniert.
Auf Wunsch kann das System um eine Luft-Wasser-Wärmepumpe und eine komfortable Fußbodenheizung erweitert werden - für noch mehr Nachhaltigkeit und Wohnkomfort.
Ihre Vorteile auf einen Blick:
Family-Hauskonzept mit integrierter Einliegerwohnung und separatem Eingang
Bodentiefe Terrassentüren für lichtdurchflutete Räume
Großzügige Ankleide und zusätzlicher Abstellraum im Obergeschoss
Frischluft-Wärmepumpen-Technik serienmäßig
Optional erweiterbar mit Fußbodenheizung und Luft-Wasser-Wärmepumpe
Ideal für Vermietung, Mehrgenerationen oder flexible Nutzungskonzepte
Erleben Sie modernes, flexibles Wohnen in einer Architektur, die Ihnen alle Möglichkeiten offenlässt - mit dem STREIF Family EFH ELW.
Willkommen in einer Stadtvilla, die modernes Familienleben und smarte Raumlösungen perfekt vereint!
Das Family Hauskonzept von STREIF bietet auf großzügigen 167,94 qm Netto-Raumfläche ein innovatives Konzept für Mehrgenerationenwohnen, Vermietung oder flexible Familiengestaltung.
Ein besonderes Highlight ist die integrierte Einliegerwohnung mit separatem Eingang - perfekt geeignet für die Vermietung, das Wohnen mit Großeltern oder erwachsenen Kindern oder als exklusives Home-Office.
Die bodentiefen Terrassentüren im Erdgeschoss sorgen für lichtdurchflutete Räume und einen offenen, modernen Charakter.
Im Obergeschoss bietet die Villa ein durchdachtes Raumkonzept mit einer großen Ankleide im Elternbereich sowie einem zusätzlichen Abstellraum, der für extra Stauraum und Ordnung sorgt - ideal für anspruchsvolle Familienbedürfnisse.
In der Standardausstattung ist das Haus mit einer innovativen Frischluft-Wärmepumpen-Technik ausgestattet, die effiziente Wärmeversorgung und kontrollierte Wohnraumlüftung kombiniert.
Auf Wunsch kann das System um eine Luft-Wasser-Wärmepumpe und eine komfortable Fußbodenheizung erweitert werden - für noch mehr Nachhaltigkeit und Wohnkomfort.
Ihre Vorteile auf einen Blick:
Family-Hauskonzept mit integrierter Einliegerwohnung und separatem Eingang
Bodentiefe Terrassentüren für lichtdurchflutete Räume
Großzügige Ankleide und zusätzlicher Abstellraum im Obergeschoss
Frischluft-Wärmepumpen-Technik serienmäßig
Optional erweiterbar mit Fußbodenheizung und Luft-Wasser-Wärmepumpe
Ideal für Vermietung, Mehrgenerationen oder flexible Nutzungskonzepte
Erleben Sie modernes, flexibles Wohnen in einer Architektur, die Ihnen alle Möglichkeiten offenlässt - mit dem STREIF Family EFH ELW.
Ausstattung
| Anzahl der Etagen im Haus | 2 |
| Bad | 1 |
| Bad | Dusche, Wanne, Fenster |
| Boden | Fliesen |
Das Streif City Haus wird im Standard KFW 40 PLUS ausgeführt. Grundstück inkl. Innenausstattung aus dem STREIF-Programm in der Ausbaustufe FF+ inklusive Fundamentplatte.
■ Rohbau (geschlossene Gebäudehülle) mit Fenstern, Haustür1 inkl. Dacheindeckung
■ Außenfassade inkl. Außenputz, vor Ort komplett fertiggestellt
■ Komplette Blechner-/Spenglerarbeiten
■ lnnen-/Außenwände wärme- und schallgedämmt und mit Gipsfaserplatten geschlossen
■ Geschosstreppe (außer Bungalow)
■ Decken wärme- und schallgedämmt und mit Gipskartonbau platten geschlossen
■ Elektroinstallation, einschließlich erforderlichem Zählerschrank und Inbetriebnahme
■ Heizungsanlage inkl. Inbetriebnahme
■ Innenfensterbänke Kunststeinbänke (Gussmarmorbänke) inkl. Einbau
■ Estrich
■ Sanitärräume mit Wand- und Bodenfliesen
■ Sanitärräume mit Sanitärobjekten
■ 6,23 kWP Photovoltaikanlage und 7,7 kWh Speicher
Die Innentüren sowie Wand-, Decken- und Bodenbeläge der übrigen Räume sind Eigenleistungen des Bauherren.
STREIF Frischluft-Wärmepumpen-Technologie - inklusive
- Heizen mit frischer Außenluft
- Kein Gasanschluss, kein Öl- oder Pelletlagerraum
- Keine Heizkörper
- Wärmetauscher mit bis zu 85% Wärmerückgewinnung
Die dargestellten Bilder können Sonderausstattungen beinhalten, die nicht im Preis enthalten sind!
zzgl. Ortüblicher Baunebenkosten
Selbstverständlich können wir Ihr Haus auch schlüsselfertig / bezugsfertig errichten.
■ Bodenbeläge, Sockel leisten verlegt
■ Maler- und Tapezierarbeiten
■ Innentüren inkl. Einbau
■ Rohbau (geschlossene Gebäudehülle) mit Fenstern, Haustür1 inkl. Dacheindeckung
■ Außenfassade inkl. Außenputz, vor Ort komplett fertiggestellt
■ Komplette Blechner-/Spenglerarbeiten
■ lnnen-/Außenwände wärme- und schallgedämmt und mit Gipsfaserplatten geschlossen
■ Geschosstreppe (außer Bungalow)
■ Decken wärme- und schallgedämmt und mit Gipskartonbau platten geschlossen
■ Elektroinstallation, einschließlich erforderlichem Zählerschrank und Inbetriebnahme
■ Heizungsanlage inkl. Inbetriebnahme
■ Innenfensterbänke Kunststeinbänke (Gussmarmorbänke) inkl. Einbau
■ Estrich
■ Sanitärräume mit Wand- und Bodenfliesen
■ Sanitärräume mit Sanitärobjekten
■ 6,23 kWP Photovoltaikanlage und 7,7 kWh Speicher
Die Innentüren sowie Wand-, Decken- und Bodenbeläge der übrigen Räume sind Eigenleistungen des Bauherren.
STREIF Frischluft-Wärmepumpen-Technologie - inklusive
- Heizen mit frischer Außenluft
- Kein Gasanschluss, kein Öl- oder Pelletlagerraum
- Keine Heizkörper
- Wärmetauscher mit bis zu 85% Wärmerückgewinnung
Die dargestellten Bilder können Sonderausstattungen beinhalten, die nicht im Preis enthalten sind!
zzgl. Ortüblicher Baunebenkosten
Selbstverständlich können wir Ihr Haus auch schlüsselfertig / bezugsfertig errichten.
■ Bodenbeläge, Sockel leisten verlegt
■ Maler- und Tapezierarbeiten
■ Innentüren inkl. Einbau
Sonstige Informationen
Sie brauchen einen kompetenten und verlässlichen Baupartner? Wir stehen Ihnen von Anfang an zur Seite und begleiten Sie auf dem Weg in Ihr Eigenheim.
Mit großem Engagement, Persönlichkeit und der Fachfirma STREIF mit immensen Bau-Know-how, die seit 1929 auf über 90.000 realisierte Wohnträume zurückblicken kann.
Jedes Haus von STREIF wird individuell als Energiesparhaus geplant und gebaut. Eine nachhaltige, ökologische und wohngesunde Bauweise, eine zertifizierte Ausführungsqualität und eine kurze Bauzeit, dafür stehen wir.
Mit großem Engagement, Persönlichkeit und der Fachfirma STREIF mit immensen Bau-Know-how, die seit 1929 auf über 90.000 realisierte Wohnträume zurückblicken kann.
Jedes Haus von STREIF wird individuell als Energiesparhaus geplant und gebaut. Eine nachhaltige, ökologische und wohngesunde Bauweise, eine zertifizierte Ausführungsqualität und eine kurze Bauzeit, dafür stehen wir.
Lage des Objektes
Unsere Grundstücke befinden sich in attraktiven Lagen und bieten die ideale Basis für Ihr zukünftiges Zuhause.
Bitte haben Sie Verständnis dafür, dass wir aus Datenschutz- und Vertraulichkeitsgründen telefonisch keine Grundstücksdaten herausgeben können.
Bitte haben Sie Verständnis dafür, dass wir aus Datenschutz- und Vertraulichkeitsgründen telefonisch keine Grundstücksdaten herausgeben können.
Anbieter kontaktieren
Kontakt
| Telefon | +49 (0) 65 51.12-00 |
| Mobil | +49 171 2225255 |
| Website | www.streif.de |
