Sehr schöne Stadtvilla - individuell gestaltet mit passendem Grundstück
630.600 €
Kaufpreis
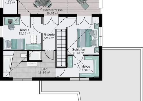
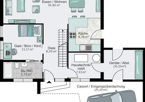
146 m²
Wohnfläche
4
Zimmer
immobilien.de Nr.: 9230439
Objektnummer: JW-Stemmler-CV-Bitburg-a
Preise & Kosten
| Kaufpreis | 630.600 € |
| Nebenkosten | keine Angabe |
Größe & Zustand
| Wohnfläche | 146 m² |
| Grundstücksfläche | 695 m² |
| Zimmer | 4 |
| Verfügbar ab | 2025 |
| Zustand | Projektiert |
Energie
| Energietyp | KfW-40 |
| Energieträger/Befeuerung | Luft-Wärme-Pumpe |
Objektbeschreibung
Die Stadtvilla wird mit einer umweltfreundlichen Wärmepumpe beheizt, die nicht nur kosteneffizient ist, sondern auch zu einer nachhaltigen Lebensweise beiträgt. Das Objekt entspricht dem KFW40 Standard und verspricht somit energetische Effizienz sowie eine langfristige Wertbeständigkeit.
In der Umgebung finden Sie alles, was das Herz begehrt: einen Golfplatz für sportliche Aktivitäten, eine schnelle Anbindung an die Schnellstraße, einen Reitplatz und den Wald für erholsame Spaziergänge sowie einen ruhigen Spielplatz für Ihre Kinder.
Bei STREIF haben Sie die Möglichkeit, aus verschiedenen Ausbaustufen zu wählen. Mit der Ausbaustufe "Schlüsselfertig" erhalten Sie Ihr Traumhaus komplett fertiggestellt - inklusive Wand- und Bodenbelägen sowie Zimmertüren. Durch Eigenleistungen können Sie aktiv zur Gestaltung Ihres Hauses beitragen und dabei bares Geld sparen. Unser erfahrenes Team steht Ihnen bei jedem Schritt beratend zur Seite, um sicherzustellen, dass Ihre Stadtvilla Ihren Vorstellungen entspricht.
Lassen Sie sich von unserer STREIF-Bauberatung vor Ort inspirieren und finden Sie heraus, wie wir Ihre individuellen Wünsche in die Realität umsetzen können. Wir bieten flexible Gestaltungsmöglichkeiten für Ihr Budget sowie verschiedene Optionen für Eigenleistungen - ganz nach Ihren Bedürfnissen.
Erfüllen Sie sich den Traum von Ihrer eigenen Stadtvilla mit STREIF - Ihrem erfahrenen Partner im Bau von individuellen Traumhäusern.
In der Umgebung finden Sie alles, was das Herz begehrt: einen Golfplatz für sportliche Aktivitäten, eine schnelle Anbindung an die Schnellstraße, einen Reitplatz und den Wald für erholsame Spaziergänge sowie einen ruhigen Spielplatz für Ihre Kinder.
Bei STREIF haben Sie die Möglichkeit, aus verschiedenen Ausbaustufen zu wählen. Mit der Ausbaustufe "Schlüsselfertig" erhalten Sie Ihr Traumhaus komplett fertiggestellt - inklusive Wand- und Bodenbelägen sowie Zimmertüren. Durch Eigenleistungen können Sie aktiv zur Gestaltung Ihres Hauses beitragen und dabei bares Geld sparen. Unser erfahrenes Team steht Ihnen bei jedem Schritt beratend zur Seite, um sicherzustellen, dass Ihre Stadtvilla Ihren Vorstellungen entspricht.
Lassen Sie sich von unserer STREIF-Bauberatung vor Ort inspirieren und finden Sie heraus, wie wir Ihre individuellen Wünsche in die Realität umsetzen können. Wir bieten flexible Gestaltungsmöglichkeiten für Ihr Budget sowie verschiedene Optionen für Eigenleistungen - ganz nach Ihren Bedürfnissen.
Erfüllen Sie sich den Traum von Ihrer eigenen Stadtvilla mit STREIF - Ihrem erfahrenen Partner im Bau von individuellen Traumhäusern.
Ausstattung
| Anzahl der Etagen im Haus | 2 |
| Küche | Offene Küche |
| Bad | 1 |
| Bad | Dusche, Wanne, Fenster |
| Boden | Fliesen |
Das Streif City Haus wird im Standard KFW 40 PLUS ausgeführt. Grundstück inkl. Innenausstattung aus dem STREIF-Programm in der Ausbaustufe FF+ inklusive Fundamentplatte.
■ Rohbau (geschlossene Gebäudehülle) mit Fenstern, Haustür1 inkl. Dacheindeckung
■ Außenfassade inkl. Außenputz, vor Ort komplett fertiggestellt
■ Komplette Blechner-/Spenglerarbeiten
■ lnnen-/Außenwände wärme- und schallgedämmt und mit Gipsfaserplatten geschlossen
■ Geschosstreppe (außer Bungalow)
■ Decken wärme- und schallgedämmt und mit Gipskartonbau platten geschlossen
■ Elektroinstallation, einschließlich erforderlichem Zählerschrank und Inbetriebnahme
■ Heizungsanlage inkl. Inbetriebnahme
■ Innenfensterbänke Kunststeinbänke (Gussmarmorbänke) inkl. Einbau
■ Estrich
■ Sanitärräume mit Wand- und Bodenfliesen
■ Sanitärräume mit Sanitärobjekten
■ 6,23 kWP Photovoltaikanlage und 7,7 kWh Speicher
Die Innentüren sowie Wand-, Decken- und Bodenbeläge der übrigen Räume sind Eigenleistungen des Bauherren.
STREIF Frischluft-Wärmepumpen-Technologie - inklusive
- Heizen mit frischer Außenluft
- Kein Gasanschluss, kein Öl- oder Pelletlagerraum
- Keine Heizkörper
- Wärmetauscher mit bis zu 85% Wärmerückgewinnung
Die dargestellten Bilder können Sonderausstattungen beinhalten, die nicht im Preis enthalten sind!
zzgl. Ortüblicher Baunebenkosten
Selbstverständlich können wir Ihr Haus auch schlüsselfertig / bezugsfertig errichten.
■ Bodenbeläge, Sockel leisten verlegt
■ Maler- und Tapezierarbeiten
■ Innentüren inkl. Einbau
■ Rohbau (geschlossene Gebäudehülle) mit Fenstern, Haustür1 inkl. Dacheindeckung
■ Außenfassade inkl. Außenputz, vor Ort komplett fertiggestellt
■ Komplette Blechner-/Spenglerarbeiten
■ lnnen-/Außenwände wärme- und schallgedämmt und mit Gipsfaserplatten geschlossen
■ Geschosstreppe (außer Bungalow)
■ Decken wärme- und schallgedämmt und mit Gipskartonbau platten geschlossen
■ Elektroinstallation, einschließlich erforderlichem Zählerschrank und Inbetriebnahme
■ Heizungsanlage inkl. Inbetriebnahme
■ Innenfensterbänke Kunststeinbänke (Gussmarmorbänke) inkl. Einbau
■ Estrich
■ Sanitärräume mit Wand- und Bodenfliesen
■ Sanitärräume mit Sanitärobjekten
■ 6,23 kWP Photovoltaikanlage und 7,7 kWh Speicher
Die Innentüren sowie Wand-, Decken- und Bodenbeläge der übrigen Räume sind Eigenleistungen des Bauherren.
STREIF Frischluft-Wärmepumpen-Technologie - inklusive
- Heizen mit frischer Außenluft
- Kein Gasanschluss, kein Öl- oder Pelletlagerraum
- Keine Heizkörper
- Wärmetauscher mit bis zu 85% Wärmerückgewinnung
Die dargestellten Bilder können Sonderausstattungen beinhalten, die nicht im Preis enthalten sind!
zzgl. Ortüblicher Baunebenkosten
Selbstverständlich können wir Ihr Haus auch schlüsselfertig / bezugsfertig errichten.
■ Bodenbeläge, Sockel leisten verlegt
■ Maler- und Tapezierarbeiten
■ Innentüren inkl. Einbau
Sonstige Informationen
Ein Haus auf dem Papier ist gut - es live zu erleben ist besser.
Auch wenn dieses Haus noch nicht real ist, können Sie schon heute erleben, wie es sich anfühlen könnte:
In unserem STREIF-Musterhaus in Mülheim-Kärlich spüren Sie Raumgefühl, Qualität und Wohnkomfort - ganz nah und in Originalgröße.
Vereinbaren Sie einfach einen persönlichen Termin und lassen Sie sich von Grundrissideen, Ausstattung und unseren Möglichkeiten begeistern.
Gemeinsam finden wir den Weg zu Ihrem ganz individuellen Zuhause.
📍 Musterhausstraße 147, 56218 Mülheim-Kärlich
🕚 Mi.-So. 11:00-17:00 Uhr oder nach Vereinbarung
📞 0171 222 52 55
Auch wenn dieses Haus noch nicht real ist, können Sie schon heute erleben, wie es sich anfühlen könnte:
In unserem STREIF-Musterhaus in Mülheim-Kärlich spüren Sie Raumgefühl, Qualität und Wohnkomfort - ganz nah und in Originalgröße.
Vereinbaren Sie einfach einen persönlichen Termin und lassen Sie sich von Grundrissideen, Ausstattung und unseren Möglichkeiten begeistern.
Gemeinsam finden wir den Weg zu Ihrem ganz individuellen Zuhause.
📍 Musterhausstraße 147, 56218 Mülheim-Kärlich
🕚 Mi.-So. 11:00-17:00 Uhr oder nach Vereinbarung
📞 0171 222 52 55
Kontakt
| Telefon | +49 (0) 65 51.12-00 |
| Mobil | +49 171 2225255 |
| Website | www.streif.de |
