Penthouse-Maisonettewohnung mit Dachterrasse in Bestlage von Remscheid
595.000 €
Kaufpreis
244 m²
Wohnfläche
60 m²
Nutzfläche
5
Zimmer
immobilien.de Nr.: 9230343
Objektnummer: 4965
Preise & Kosten
| Kaufpreis | 595.000 € |
| Nebenkosten | keine Angabe |
| Maklerprovision | 2,98 % inkl. MwSt. |
| Stellplatz Garage Kaufpreis | 10.000 € |
Größe & Zustand
| Wohnfläche | 244 m² |
| Nutzfläche | 60 m² |
| Zimmer | 5 |
| Baujahr | 1980 |
| Verfügbar ab | nach Vereinbarung |
Energie
| Energieausweistyp | Verbrauch |
| Gültig bis | 2032-02-21 |
| Baujahr (laut Energieausweis) | 1980 |
| Energieeffizienzklasse | F |
| Energieverbrauchkennwert | 162.50 kWh/(m²*a) |
| Heizungsart | Fußbodenheizung |
| Wesentlicher Energieträger | Gas |
| Energieträger/Befeuerung | Gas |
Objektbeschreibung
Sehr geehrte/r Interessent/in,
diese exklusive Penthouse-Maisonette-Wohnung bietet auf rund 244 m² Wohnfläche ein außergewöhnliches Wohnambiente über drei Ebenen. Das Gebäude mit insgesamt nur zwei Wohneinheiten wurde 1980 errichtet. Durch die geschickte Aufteilung genießen Sie hier ein Höchstmaß an Privatsphäre. Der repräsentative Hauseingang führt direkt zum Zugang im 1. Obergeschoss. Zudem besteht die Möglichkeit, einen Aufzug nachzurüsten und so zusätzlichen Wohnkomfort zu schaffen.
Im ersten Obergeschoss erwartet Sie eine großzügige Diele, die in ein Schlafzimmer mit Balkon, zwei weitere Zimmer (ideal als Kinder- oder Arbeitszimmer), ein Ankleidezimmer, ein großes Badezimmer mit Marmor-Ausstattung sowie einen Abstellraum führt.
Über eine offene Treppe gelangen Sie in den Wohnbereich der oberen Etage. Hier dominieren lichtdurchflutete Räume mit hohen Decken und großen Fensterflächen. Besonders beeindruckend ist der verglaste Giebel mit einer Höhe von sieben Metern, der ein einzigartiges Raumgefühl schafft.
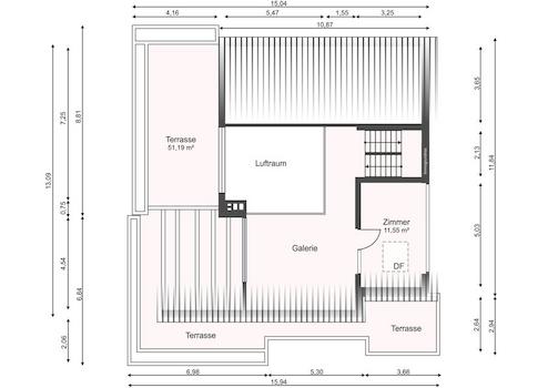
Der weitläufige Wohn- und Essbereich mit angrenzender Küche überzeugt durch direkten Zugang zu einem Balkon sowie zur rund 51 m² großen Dachterrasse in Südwestausrichtung. Ein überdachter Freisitz sorgt für geschützte Momente im Freien, der sich im Winter durch einsetzbare Elemente vollständig schließen und als Wintergarten nutzen lässt. Ein Gäste-WC komplettiert diese Etage.
Die offene Galerie bietet zusätzliche Wohnfläche und eignet sich ideal als Fernsehzimmer oder Gästebereich.
Zur Wohnung gehört ein großer Keller- und Hobbyraum mit Dusche, ein Bügelzimmer sowie drei Garagenplätze.
Das Haus verfügt außerdem bereits über einen Glasfaseranschluss von E-ON.
Haben wir Ihr Interesse geweckt? Gerne zeigen wir Ihnen diese tolle Wohnung persönlich.
diese exklusive Penthouse-Maisonette-Wohnung bietet auf rund 244 m² Wohnfläche ein außergewöhnliches Wohnambiente über drei Ebenen. Das Gebäude mit insgesamt nur zwei Wohneinheiten wurde 1980 errichtet. Durch die geschickte Aufteilung genießen Sie hier ein Höchstmaß an Privatsphäre. Der repräsentative Hauseingang führt direkt zum Zugang im 1. Obergeschoss. Zudem besteht die Möglichkeit, einen Aufzug nachzurüsten und so zusätzlichen Wohnkomfort zu schaffen.
Im ersten Obergeschoss erwartet Sie eine großzügige Diele, die in ein Schlafzimmer mit Balkon, zwei weitere Zimmer (ideal als Kinder- oder Arbeitszimmer), ein Ankleidezimmer, ein großes Badezimmer mit Marmor-Ausstattung sowie einen Abstellraum führt.
Über eine offene Treppe gelangen Sie in den Wohnbereich der oberen Etage. Hier dominieren lichtdurchflutete Räume mit hohen Decken und großen Fensterflächen. Besonders beeindruckend ist der verglaste Giebel mit einer Höhe von sieben Metern, der ein einzigartiges Raumgefühl schafft.
Der weitläufige Wohn- und Essbereich mit angrenzender Küche überzeugt durch direkten Zugang zu einem Balkon sowie zur rund 51 m² großen Dachterrasse in Südwestausrichtung. Ein überdachter Freisitz sorgt für geschützte Momente im Freien, der sich im Winter durch einsetzbare Elemente vollständig schließen und als Wintergarten nutzen lässt. Ein Gäste-WC komplettiert diese Etage.
Die offene Galerie bietet zusätzliche Wohnfläche und eignet sich ideal als Fernsehzimmer oder Gästebereich.
Zur Wohnung gehört ein großer Keller- und Hobbyraum mit Dusche, ein Bügelzimmer sowie drei Garagenplätze.
Das Haus verfügt außerdem bereits über einen Glasfaseranschluss von E-ON.
Haben wir Ihr Interesse geweckt? Gerne zeigen wir Ihnen diese tolle Wohnung persönlich.
Ausstattung
| Anzahl der Etagen im Haus | 3 |
| Küche | Einbauküche |
| Bad | 1 |
| Balkone | 2 |
| Terrassen | 1 |
| Garage/Stellplätze | 3 |
| Keller |
•ca. 244 m² Wohnfläche
•Dachterrasse (Südwestlage, ca. 51 m²)
•überdachter Freisitz / Wintergarten
•großzügiger Wohn-/Essbereich mit Kamin
•Einbau- und Abstellmöglichkeiten
•Marmorbadezimmer
•weitläufige Galerie
•Glasfaseranschluss vorhanden
•Fitnessraum mit Dusche
•drei Garagenplätze
•Alarmanlage
•Klimaanlage im Gästezimmer auf der Galerie
•Dachterrasse (Südwestlage, ca. 51 m²)
•überdachter Freisitz / Wintergarten
•großzügiger Wohn-/Essbereich mit Kamin
•Einbau- und Abstellmöglichkeiten
•Marmorbadezimmer
•weitläufige Galerie
•Glasfaseranschluss vorhanden
•Fitnessraum mit Dusche
•drei Garagenplätze
•Alarmanlage
•Klimaanlage im Gästezimmer auf der Galerie
Sonstige Informationen
RECHTSHINWEIS
Da wir Objektangaben nicht selbst ermitteln, übernehmen wir hierfür keine Gewähr. Dieses Exposé ist nur für Sie persönlich bestimmt. Eine Weitergabe an Dritte ist an unsere ausdrückliche Zustimmung gebunden und unterbindet nicht unseren Provisionsanspruch bei Zustandekommen eines Vertrages. Alle Gespräche sind über unser Büro zu führen. Bei Zuwiderhandlung behalten wir uns Schadenersatz bis zur Höhe der Provisionsansprüche ausdrücklich vor. Zwischenverkauf ist nicht ausgeschlossen.
Da wir Objektangaben nicht selbst ermitteln, übernehmen wir hierfür keine Gewähr. Dieses Exposé ist nur für Sie persönlich bestimmt. Eine Weitergabe an Dritte ist an unsere ausdrückliche Zustimmung gebunden und unterbindet nicht unseren Provisionsanspruch bei Zustandekommen eines Vertrages. Alle Gespräche sind über unser Büro zu führen. Bei Zuwiderhandlung behalten wir uns Schadenersatz bis zur Höhe der Provisionsansprüche ausdrücklich vor. Zwischenverkauf ist nicht ausgeschlossen.
Lage des Objektes
Die Immobilie befindet sich in einer ruhigen Seitenstraße in fußläufiger Nähe zur Remscheider Innenstadt. Große Laubbäume prägen das Straßenbild, während die großzügige Dachterrasse mit Südausrichtung sonnige Stunden bis in den Abend garantiert.
Remscheid – im Herzen des Bergischen Landes – bietet ein attraktives Wohnumfeld mit vielfältigen Kultur- und Freizeitmöglichkeiten. Sehenswürdigkeiten wie Schloss Burg, die Müngstener Brücke oder die Talsperren der Region sind in kurzer Zeit erreichbar. Auch der Remscheider Stadtpark sowie Kindergärten, Schulen und das Einkaufszentrum „Allee-Center“ mit über 100 Geschäften befinden sich in unmittelbarer Nähe.
Die Anbindung an den öffentlichen Nahverkehr ist hervorragend, der Hauptbahnhof sowie die Autobahnen A1 und A46 sind in wenigen Minuten erreichbar. Die Städte Düsseldorf, Köln und das Ruhrgebiet liegen lediglich 30–45 Minuten entfernt.
Remscheid – im Herzen des Bergischen Landes – bietet ein attraktives Wohnumfeld mit vielfältigen Kultur- und Freizeitmöglichkeiten. Sehenswürdigkeiten wie Schloss Burg, die Müngstener Brücke oder die Talsperren der Region sind in kurzer Zeit erreichbar. Auch der Remscheider Stadtpark sowie Kindergärten, Schulen und das Einkaufszentrum „Allee-Center“ mit über 100 Geschäften befinden sich in unmittelbarer Nähe.
Die Anbindung an den öffentlichen Nahverkehr ist hervorragend, der Hauptbahnhof sowie die Autobahnen A1 und A46 sind in wenigen Minuten erreichbar. Die Städte Düsseldorf, Köln und das Ruhrgebiet liegen lediglich 30–45 Minuten entfernt.
Anbieter kontaktieren
Kontakt
| Telefon | 00491729719999 |
| Mobil | 00491729719999 |
| Fax | 00492122543617 |
