Ein traumhaftes Heim mit viel Platz für die Familie, freistehend in bester Wohnlage !
438.900 €
Kaufpreis
152 m²
Wohnfläche
5
Zimmer
immobilien.de Nr.: 9230273
Objektnummer: 251090A004-250905
Preise & Kosten
| Kaufpreis | 438.900 € |
| Nebenkosten | keine Angabe |
| Stellplatz Garage Kaufpreis | 9.000 € |
Größe & Zustand
| Wohnfläche | 152 m² |
| Grundstücksfläche | 850 m² |
| Zimmer | 5 |
| Baujahr | 2026 |
| Verfügbar ab | nach Vereinbarung |
| Zustand | Erstbezug |
Energie
| Energieausweistyp | Verbrauch |
| Baujahr (laut Energieausweis) | 2026 |
| Energieeffizienzklasse | A+ |
| Energietyp | Niedrigenergie, Neubaustandard, KfW-40 |
| Energieverbrauchkennwert | 33.00 kWh/(m²*a) |
| Heizungsart | Zentralheizung |
| Wesentlicher Energieträger | Strom |
| Energieträger/Befeuerung | Luft-Wärme-Pumpe |
Objektbeschreibung
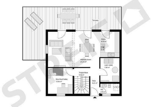
Das behagliche Einfamilienhaus mit Satteldach punktet mit einem gut durchdachten Grundriss. Der offen gestaltete Wohn-/Ess- und Kochbereich ist lichtdurchflutet. Ein praktischer Hauswirtschaftsraum ist direkt neben der Küche platziert. Komplettiert wird das Raumangebot im Erdgeschoss mit einem Gäste-WC, das optional auch als Duschbad ausgeführt werden kann, einer Diele und einem Haustechnikraum.
Im Dachgeschoss des Hauses sind zwei schöne Kinderzimmer, ein Elternschlafzimmer, ein Flur und ein Familienbad untergebracht. Die Lage der Treppe und des Haustechnikraumes sind fixiert.
Objektart: Einfamilienhaus, 1,5-geschossig
Dachform: Satteldach
Kniestock: 1,00m
Im Dachgeschoss des Hauses sind zwei schöne Kinderzimmer, ein Elternschlafzimmer, ein Flur und ein Familienbad untergebracht. Die Lage der Treppe und des Haustechnikraumes sind fixiert.
Objektart: Einfamilienhaus, 1,5-geschossig
Dachform: Satteldach
Kniestock: 1,00m
Ausstattung
| Anzahl der Etagen im Haus | 2 |
| Küche | Offene Küche |
| Bad | 1 |
| Bad | Dusche, Wanne, Fenster |
| Boden | Fliesen, Stein, Parkett, Fertigparkett, Laminat, Kunststoff, Linoleum, Marmor, Granit |
| Terrassen | 1 |
| Garage/Stellplätze | 1 |
Ausstattung
STREIF-Häuser sind Energiesparhäuser. Die STREIF-Passiv-Außenwände und eine sparsame Heiztechnik mit integrierter Wohnraumlüftung und Wärmerückgewinnung, garantieren einen geringen Energieverbrauch und ein fantastisches Raumklima, das insbesondere Allergiker aufatmen lässt.
STREIF Leistungen sind MEHR WERT - schon im Grundpreis enthalten!
- 16-monatige Festpreisgarantie
- Energieeffizienzhaus KfW 40 EE im Standard
- Inkl. individuelle Grundrissgestaltung und Raumaufteilung
- Inkl. Fundamentplatte
- Inkl. STREIF-Luft-Luft-Wärmepumpe mit integrierter
Lüftungsanlage mit Wärmerückgewinnung
- Inkl. Haustür von KERA und Fenster von Porta/Kömmerling
- Inkl. Massivholz-Geschosstreppe aus eigener Produktion
- Inkl. Sanitärobjekte von Markenherstellern
- Inkl. Elektroinstallation
- Inkl. Baubetreuung u.v.m.
Die hohe Wertigkeit und Langlebigkeit eines STREIF-Energiespar-Hauses wird durch zahlreiche Auszeichnungen, Qualitäts- und Gütesiegel unabhängiger Institute und Verbände dokumentiert.
Der Angebotspreis ist inklusive Grundstück und bezieht sich auf die Standard-Ausbaustufe Fast-Fertig-Plus. Ihre Eigenleistungen: Spachtel-,Tapezier- und Malerarbeiten, Bodenbeläge, Innentüren.
Baunebenkosten fallen zuzüglich an.
Der Verkauf des Grundstücks erfolgt über einen unserer Netzwerkpartner.
Bilder können evtl. Anbauteile, Carports, Balkone, Gauben usw. zeigen, die nicht im Angebotspreis enthalten sind. Änderungen und Irrtümer vorbehalten.
STREIF-Häuser sind Energiesparhäuser. Die STREIF-Passiv-Außenwände und eine sparsame Heiztechnik mit integrierter Wohnraumlüftung und Wärmerückgewinnung, garantieren einen geringen Energieverbrauch und ein fantastisches Raumklima, das insbesondere Allergiker aufatmen lässt.
STREIF Leistungen sind MEHR WERT - schon im Grundpreis enthalten!
- 16-monatige Festpreisgarantie
- Energieeffizienzhaus KfW 40 EE im Standard
- Inkl. individuelle Grundrissgestaltung und Raumaufteilung
- Inkl. Fundamentplatte
- Inkl. STREIF-Luft-Luft-Wärmepumpe mit integrierter
Lüftungsanlage mit Wärmerückgewinnung
- Inkl. Haustür von KERA und Fenster von Porta/Kömmerling
- Inkl. Massivholz-Geschosstreppe aus eigener Produktion
- Inkl. Sanitärobjekte von Markenherstellern
- Inkl. Elektroinstallation
- Inkl. Baubetreuung u.v.m.
Die hohe Wertigkeit und Langlebigkeit eines STREIF-Energiespar-Hauses wird durch zahlreiche Auszeichnungen, Qualitäts- und Gütesiegel unabhängiger Institute und Verbände dokumentiert.
Der Angebotspreis ist inklusive Grundstück und bezieht sich auf die Standard-Ausbaustufe Fast-Fertig-Plus. Ihre Eigenleistungen: Spachtel-,Tapezier- und Malerarbeiten, Bodenbeläge, Innentüren.
Baunebenkosten fallen zuzüglich an.
Der Verkauf des Grundstücks erfolgt über einen unserer Netzwerkpartner.
Bilder können evtl. Anbauteile, Carports, Balkone, Gauben usw. zeigen, die nicht im Angebotspreis enthalten sind. Änderungen und Irrtümer vorbehalten.
Sonstige Informationen
Energiequelle Sonne !
Unser optimales Heizsystem in Verbindung mit einem Hauskraftwerk sind bereits enthalten
Heizen, Lüften und Warmwasser mit einem System
- STREIF-Luft-Luft-Wärmepumpen-Technologe (Basissystem), mit bis zu 85% Wärmerükgewinnung
- Integrierte Be- und Entlüftungsanlage
- Separate Trinkwasserwärmepumpe mit 300 L Warmwasserspeicher
- G4-Frischluftfilter zur Reduzierung von Staub und Pollen
Vorteile:
- Keine störenden Heizkörper
- Keine fossilen Brennstoffe wie Öl und Gas
- Kein Gasanschluss, kein Öl- oder Pelletslager
- Keine Erdbohrung
Unser optimales Heizsystem in Verbindung mit einem Hauskraftwerk sind bereits enthalten
Heizen, Lüften und Warmwasser mit einem System
- STREIF-Luft-Luft-Wärmepumpen-Technologe (Basissystem), mit bis zu 85% Wärmerükgewinnung
- Integrierte Be- und Entlüftungsanlage
- Separate Trinkwasserwärmepumpe mit 300 L Warmwasserspeicher
- G4-Frischluftfilter zur Reduzierung von Staub und Pollen
Vorteile:
- Keine störenden Heizkörper
- Keine fossilen Brennstoffe wie Öl und Gas
- Kein Gasanschluss, kein Öl- oder Pelletslager
- Keine Erdbohrung
Lage des Objektes
Das Grundstück liegt perfekt angebunden im Heusweiler Ortsteil Eiweiler.
Das Haus ist auf einem realen Baugrundstück geplant oder auf einem Grundstück in einer Planungsphase. Das Grundstück erwerben Sie direkt vom Eigentümer. Der Preis des Grundstücks ist im Angebotspreis bereits eingerechnet.
Bitte haben Sie Verständnis dafür, dass wir ohne ein persönliches Gespräch keine Grundstücksdaten weiterleiten können.
Gern sind wir bei der Wahl Ihres Traumgrundstückes behilflich!
Natürlich können wir ihren Haustraum auch auf einem anderen Grundstück realisieren, lassen Sie sich dazu in einem unverbindlichen Gespräch zu Ihrem Bauvorhaben beraten.
Das Haus ist auf einem realen Baugrundstück geplant oder auf einem Grundstück in einer Planungsphase. Das Grundstück erwerben Sie direkt vom Eigentümer. Der Preis des Grundstücks ist im Angebotspreis bereits eingerechnet.
Bitte haben Sie Verständnis dafür, dass wir ohne ein persönliches Gespräch keine Grundstücksdaten weiterleiten können.
Gern sind wir bei der Wahl Ihres Traumgrundstückes behilflich!
Natürlich können wir ihren Haustraum auch auf einem anderen Grundstück realisieren, lassen Sie sich dazu in einem unverbindlichen Gespräch zu Ihrem Bauvorhaben beraten.
Anbieter kontaktieren
Kontakt
| Telefon | +49 681 70947955 |
| Mobil | +49 160 7038141 |
| Website | www.streif.de |
