W 10 Maisonette Wohnung -für Eigennutzer und Kapitalanleger- für Kapitalanleger ohne Mietrisiko
301.000 €
Kaufpreis
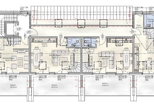
71,59 m²
Wohnfläche
141 m²
Nutzfläche
2
Zimmer
immobilien.de Nr.: 9229715
Objektnummer: H 15557_WHG 10
Preise & Kosten
| Kaufpreis | 301.000 € |
| Nebenkosten | keine Angabe |
| Stellplatz Tiefgarage Kaufpreis | 17.000 € |
| Stellplatz Tiefgarage Miete | 0 € |
Größe & Zustand
| Wohnfläche | 71,59 m² |
| Nutzfläche | 141 m² |
| Zimmer | 2 |
| Baujahr | 2025 |
| Verfügbar ab | keine Angabe |
| Zustand | Erstbezug |
Energie
| Heizungsart | Fußbodenheizung |
| Energieträger/Befeuerung | Luft-Wärme-Pumpe |
Objektbeschreibung
IModerne Eigentumswohnung in Toplage von Vellmar – Wohnen mit Komfort und Weitblick
In hervorragender Wohnlage von Vellmar, Stadtteil Frommershausen, entsteht in den Jahren 2025/2026 ein modernes Mehrfamilienhaus mit hochwertigen Eigentumswohnungen, die nach dem neuesten Stand der Bautechnik sowie den aktuellen Vorgaben der Energieeinsparverordnung (EnEV) errichtet werden. Das Bauvorhaben befindet sich in der Hermann-Schafft-Straße 12, einer ruhigen und dennoch gut angebundenen Lage.
Die Wohnungen werden seniorengerecht konzipiert und auf Wunsch rollstuhlgerecht ausgeführt. Jede Einheit verfügt über eine hochwertige Ausstattung, moderne Grundrisse und einen großen Balkon mit unverbaubarem Ausblick.
Ein Aufzug sorgt für barrierefreien Komfort – vom Keller und der Tiefgarage bis ins Dachgeschoss.
Technik und Energieeffizienz auf höchstem Niveau
Geheizt wird über eine moderne Heizungsanlage mit zwei Luftwärmepumpen. Die hochwertige Wärmedämmung (16 cm WDVS an der Fassade, 24 cm Mineralwolle im Dach) sorgt nicht nur für ein angenehmes Raumklima, sondern erfüllt die Anforderungen der EnEV deutlich über Standard – ein echter Pluspunkt für künftige Energieeinsparungen.
Weitere Highlights:
Großzügige Balkone mit freiem Ausblick
Helle, lichtdurchflutete Räume
Tiefgarage mit direktem Zugang zum Aufzug
Bequeme Erreichbarkeit jeder Wohnung – auch mit Einkauf oder Gepäck
Doppelte Wohnungstrennwände für exzellenten Schallschutz
Flexible Gestaltungsmöglichkeiten für barrierefreies oder rollstuhlgerechtes Wohnen
Zeitplan:
Geplanter Baubeginn: Herbst 2025 (abhängig vom Verkaufsstand)
Voraussichtliche Fertigstellung/Bezugsfertigkeit: Juni 2027
Kapitalanleger aufgepasst:
Wir übernehmen das Mietrisiko für Sie!
???? Fordern Sie jetzt das ausführliche Exposé an – wir beraten Sie gerne persönlich!
In hervorragender Wohnlage von Vellmar, Stadtteil Frommershausen, entsteht in den Jahren 2025/2026 ein modernes Mehrfamilienhaus mit hochwertigen Eigentumswohnungen, die nach dem neuesten Stand der Bautechnik sowie den aktuellen Vorgaben der Energieeinsparverordnung (EnEV) errichtet werden. Das Bauvorhaben befindet sich in der Hermann-Schafft-Straße 12, einer ruhigen und dennoch gut angebundenen Lage.
Die Wohnungen werden seniorengerecht konzipiert und auf Wunsch rollstuhlgerecht ausgeführt. Jede Einheit verfügt über eine hochwertige Ausstattung, moderne Grundrisse und einen großen Balkon mit unverbaubarem Ausblick.
Ein Aufzug sorgt für barrierefreien Komfort – vom Keller und der Tiefgarage bis ins Dachgeschoss.
Technik und Energieeffizienz auf höchstem Niveau
Geheizt wird über eine moderne Heizungsanlage mit zwei Luftwärmepumpen. Die hochwertige Wärmedämmung (16 cm WDVS an der Fassade, 24 cm Mineralwolle im Dach) sorgt nicht nur für ein angenehmes Raumklima, sondern erfüllt die Anforderungen der EnEV deutlich über Standard – ein echter Pluspunkt für künftige Energieeinsparungen.
Weitere Highlights:
Großzügige Balkone mit freiem Ausblick
Helle, lichtdurchflutete Räume
Tiefgarage mit direktem Zugang zum Aufzug
Bequeme Erreichbarkeit jeder Wohnung – auch mit Einkauf oder Gepäck
Doppelte Wohnungstrennwände für exzellenten Schallschutz
Flexible Gestaltungsmöglichkeiten für barrierefreies oder rollstuhlgerechtes Wohnen
Zeitplan:
Geplanter Baubeginn: Herbst 2025 (abhängig vom Verkaufsstand)
Voraussichtliche Fertigstellung/Bezugsfertigkeit: Juni 2027
Kapitalanleger aufgepasst:
Wir übernehmen das Mietrisiko für Sie!
???? Fordern Sie jetzt das ausführliche Exposé an – wir beraten Sie gerne persönlich!
Ausstattung
| Anzahl der Etagen im Haus | 4 |
| Terrassen | 1 |
| Keller |
Ausstattung, Komfort & Energieeffizienz – Details zur Wohnung 11
Die Ausstattung dieser Wohnung überzeugt durch hochwertige Materialien, moderne Technik und durchdachte Planung. Ein durchgehendes Konzept, das nicht nur Komfort, sondern auch langfristige Werthaltigkeit bietet:
Ausstattungsmerkmale:
Fußbodenheizung in allen Wohnräumen – individuell regulierbar für ein behagliches Raumklima
Dreifach verglaste Fenster für hervorragende Wärme- und Schalldämmung
Elektrisch betriebene Aluminium-Rollläden – komfortabel steuerbar
Hochwertige Fliesen in den Bädern und WCs – sowohl als Boden- als auch als Wandbelag
Balkone mit Belag aus Werksteinplatten – pflegeleicht und langlebig
Treppenhaus mit edlem Granitbelag
Bauweise & Dämmung:
Massive Bauweise: Außenwände in EG und DG mit 24 cm Poroton- oder Kalksandstein
Hochwertige Fassadendämmung im WDVS-System mit 16 cm Dämmstärke
Dachdämmung: Zwischensparrendämmung mit 24 cm Mineralwolle (WLG 035)
Beheizung: Zwei leistungsstarke Luft-Wärmepumpen sorgen für moderne, nachhaltige Energieversorgung
Weitere Highlights:
Großzügige Balkone mit unverbaubarem Ausblick
Tiefgarage mit direktem Zugang zum Aufzug
Barrierefreie Erschließung jeder Wohnung durch Personenaufzug von der Tiefgarage bis ins Dachgeschoss
Lichtdurchflutete Räume und moderne Grundrisse
Doppelwandige Wohnungstrennwände für optimalen Schallschutz
Kapitalanleger aufgepasst – Vermietung ohne Risiko!
Sie suchen eine krisensichere Kapitalanlage, möchten sich aber nicht selbst um die Vermietung kümmern? Dann ist unser Angebot wie für Sie gemacht:
König Immobilien GmbH übernimmt das Mietrisiko – Sie profitieren von einem Generalmietvertrag über 10 Jahre, der nach Fertigstellung abgeschlossen wird.
Ihre Vorteile auf einen Blick:
Garantierte Miete:
– 12,50 € pro m² Wohnfläche
– 60,00 € pro Tiefgaragenstellplatz
Laufzeit: Fester Mietvertrag über 10 Jahre
Erhöhungen: Sie profitieren zu 90 % von möglichen Mieterhöhungen, 10 % verbleiben zur Risikodeckung beim Zwischenmieter
Vertragspartner: König Immobilien GmbH
So haben Sie alle Vorteile einer Immobilie – aber ohne Mietausfallrisiko, Leerstand oder Verwaltungsaufwand.
Die Ausstattung dieser Wohnung überzeugt durch hochwertige Materialien, moderne Technik und durchdachte Planung. Ein durchgehendes Konzept, das nicht nur Komfort, sondern auch langfristige Werthaltigkeit bietet:
Ausstattungsmerkmale:
Fußbodenheizung in allen Wohnräumen – individuell regulierbar für ein behagliches Raumklima
Dreifach verglaste Fenster für hervorragende Wärme- und Schalldämmung
Elektrisch betriebene Aluminium-Rollläden – komfortabel steuerbar
Hochwertige Fliesen in den Bädern und WCs – sowohl als Boden- als auch als Wandbelag
Balkone mit Belag aus Werksteinplatten – pflegeleicht und langlebig
Treppenhaus mit edlem Granitbelag
Bauweise & Dämmung:
Massive Bauweise: Außenwände in EG und DG mit 24 cm Poroton- oder Kalksandstein
Hochwertige Fassadendämmung im WDVS-System mit 16 cm Dämmstärke
Dachdämmung: Zwischensparrendämmung mit 24 cm Mineralwolle (WLG 035)
Beheizung: Zwei leistungsstarke Luft-Wärmepumpen sorgen für moderne, nachhaltige Energieversorgung
Weitere Highlights:
Großzügige Balkone mit unverbaubarem Ausblick
Tiefgarage mit direktem Zugang zum Aufzug
Barrierefreie Erschließung jeder Wohnung durch Personenaufzug von der Tiefgarage bis ins Dachgeschoss
Lichtdurchflutete Räume und moderne Grundrisse
Doppelwandige Wohnungstrennwände für optimalen Schallschutz
Kapitalanleger aufgepasst – Vermietung ohne Risiko!
Sie suchen eine krisensichere Kapitalanlage, möchten sich aber nicht selbst um die Vermietung kümmern? Dann ist unser Angebot wie für Sie gemacht:
König Immobilien GmbH übernimmt das Mietrisiko – Sie profitieren von einem Generalmietvertrag über 10 Jahre, der nach Fertigstellung abgeschlossen wird.
Ihre Vorteile auf einen Blick:
Garantierte Miete:
– 12,50 € pro m² Wohnfläche
– 60,00 € pro Tiefgaragenstellplatz
Laufzeit: Fester Mietvertrag über 10 Jahre
Erhöhungen: Sie profitieren zu 90 % von möglichen Mieterhöhungen, 10 % verbleiben zur Risikodeckung beim Zwischenmieter
Vertragspartner: König Immobilien GmbH
So haben Sie alle Vorteile einer Immobilie – aber ohne Mietausfallrisiko, Leerstand oder Verwaltungsaufwand.
Lage des Objektes
Lagebeschreibung – Wohnen im beliebten Vellmar-Frommershausen
Vellmar liegt direkt an der nördlichen Stadtgrenze der Großstadt Kassel – die Bebauung beider Städte geht vielerorts nahtlos ineinander über. Mit rund 19.000 Einwohnern bietet Vellmar eine ideale Mischung aus städtischer Infrastruktur und naturnahem Wohnen.
Das Stadtgebiet gliedert sich in die vier Stadtteile Niedervellmar, Frommershausen, Obervellmar und Vellmar-West. Die angebotene Wohnung befindet sich im beliebten Stadtteil Frommershausen, einem ruhigen und gewachsenen Wohngebiet mit hoher Lebensqualität.
Verkehrsanbindung:
Vellmar ist hervorragend an das nordhessische Straßennetz angebunden – über die Bundesstraßen B7 und B83, die in diesem Bereich schnellstraßenartig ausgebaut sind, erreichen Sie Kassel oder die umliegenden Städte schnell und bequem.
Auch die öffentliche Verkehrsanbindung ist ausgezeichnet:
Bahnhof Vellmar-Obervellmar (Bahnstrecke Kassel–Warburg)
Haltepunkte Vellmar-Osterberg/EKZ (RegioTram/Regionalbahn)
Haltepunkt Vellmar-Niedervellmar (Hannöversche Südbahn)
Straßenbahnlinie 1 der KVG (seit 2011 bis in die Innenstadt Kassels verlängert)
Nahversorgung und Infrastruktur:
Das Grundstück liegt zentral in Frommershausen – in einer ruhigen Seitenstraße, aber mit optimaler Nähe zu allem, was man im Alltag braucht. Kindergärten, Schulen, Ärzte und Einkaufsmöglichkeiten sind fußläufig erreichbar. Ein Kindergarten befindet sich direkt in der Nähe, ebenso wie zahlreiche Nahversorger.
Das Stadtzentrum von Vellmar mit weiteren Geschäften, Restaurants, Apotheken und kulturellen Angeboten ist nur ca. 900 m entfernt – ideal auch mit dem Rad oder zu Fuß.
Vellmar liegt direkt an der nördlichen Stadtgrenze der Großstadt Kassel – die Bebauung beider Städte geht vielerorts nahtlos ineinander über. Mit rund 19.000 Einwohnern bietet Vellmar eine ideale Mischung aus städtischer Infrastruktur und naturnahem Wohnen.
Das Stadtgebiet gliedert sich in die vier Stadtteile Niedervellmar, Frommershausen, Obervellmar und Vellmar-West. Die angebotene Wohnung befindet sich im beliebten Stadtteil Frommershausen, einem ruhigen und gewachsenen Wohngebiet mit hoher Lebensqualität.
Verkehrsanbindung:
Vellmar ist hervorragend an das nordhessische Straßennetz angebunden – über die Bundesstraßen B7 und B83, die in diesem Bereich schnellstraßenartig ausgebaut sind, erreichen Sie Kassel oder die umliegenden Städte schnell und bequem.
Auch die öffentliche Verkehrsanbindung ist ausgezeichnet:
Bahnhof Vellmar-Obervellmar (Bahnstrecke Kassel–Warburg)
Haltepunkte Vellmar-Osterberg/EKZ (RegioTram/Regionalbahn)
Haltepunkt Vellmar-Niedervellmar (Hannöversche Südbahn)
Straßenbahnlinie 1 der KVG (seit 2011 bis in die Innenstadt Kassels verlängert)
Nahversorgung und Infrastruktur:
Das Grundstück liegt zentral in Frommershausen – in einer ruhigen Seitenstraße, aber mit optimaler Nähe zu allem, was man im Alltag braucht. Kindergärten, Schulen, Ärzte und Einkaufsmöglichkeiten sind fußläufig erreichbar. Ein Kindergarten befindet sich direkt in der Nähe, ebenso wie zahlreiche Nahversorger.
Das Stadtzentrum von Vellmar mit weiteren Geschäften, Restaurants, Apotheken und kulturellen Angeboten ist nur ca. 900 m entfernt – ideal auch mit dem Rad oder zu Fuß.
Anbieter kontaktieren
Kontakt
| Telefon | 00495681992910 |
| Mobil | 004915222844430 |
| Fax | 004956819929510 |
| Website | www.koenig-immobilien.de |
