Schönes Einfamilienhaus in begehrter Lage von Solingen mit Ausbaureserve
539.000 €
Kaufpreis
100 m²
Wohnfläche
30 m²
Nutzfläche
3
Zimmer
immobilien.de Nr.: 9226357
Objektnummer: 4962
Preise & Kosten
| Kaufpreis | 539.000 € |
| Nebenkosten | keine Angabe |
| Maklerprovision | 2,98 % inkl. gesetzl. MwSt. vom Kaufpreis, fällig nach notarieller Beurkundung |
| Stellplatz Freiplatz Kaufpreis | 0 € |
| Stellplatz Garage Kaufpreis | 0 € |
Größe & Zustand
| Wohnfläche | 100 m² |
| Nutzfläche | 30 m² |
| Grundstücksfläche | 1.061 m² |
| Zimmer | 3 |
| Baujahr | 1982 |
| Verfügbar ab | nach Absprache |
| Zustand | Gepflegt |
Energie
| Heizungsart | Zentralheizung |
| Energieträger/Befeuerung | Gas |
Objektbeschreibung
In einer der begehrtesten Lagen von Solingen-Aufderhöhe erwartet Sie dieses charmante Einfamilienhaus, das im Jahr 1982 in massiver Bauweise inkl. Satteldach erweitert wurde. Alle Räume befinden sich auf einer Ebene, und die L-förmige Architektur sorgt für eine besonders durchdachte und funktionale Raumaufteilung.
Mit einer Wohnfläche von ca. 100 m² bietet das Haus ausreichend Platz für eine Familie mit Kind. Sollte Ihnen die Wohnfläche zu gering sein, können Sie das Haus im Erdgeschoss erweitern oder die Ausbaureserve im Dachgeschoss umsetzen. Durch den Einbau von Dachgauben und zusätzlichen Dachflächenfenstern lassen sich hier weitere Wohnräume schaffen, sodass auch eine 4- bis 5-köpfige Familie ausreichend Platz findet. Das Potenzial für zusätzlichen Wohnraum im Dachgeschoss liegt bei ca. 50–70 m² und bietet eine hervorragende Möglichkeit, den Wert der Immobilie zu steigern. Welche Erweiterungsmöglichkeiten im Erdgeschoss möglich sind, müsste mit dem Bauamt abgestimmt werden. Aber auch hier sind sicher 40-60 m², wenn nicht sogar mehr, möglich.
Das großzügige Grundstück von ca. 1.061 m² bietet zudem eine herrliche Terrasse von ca. 40 m² und genügend Freiraum für Gartenliebhaber oder Familien mit Kindern. Drei Außenstellplätze sowie eine Garage sorgen für komfortables Parken.
Haben wir Ihr Interesse geweckt? Kontaktieren Sie uns gerne für weitere Informationen oder eine Besichtigung!
Mit einer Wohnfläche von ca. 100 m² bietet das Haus ausreichend Platz für eine Familie mit Kind. Sollte Ihnen die Wohnfläche zu gering sein, können Sie das Haus im Erdgeschoss erweitern oder die Ausbaureserve im Dachgeschoss umsetzen. Durch den Einbau von Dachgauben und zusätzlichen Dachflächenfenstern lassen sich hier weitere Wohnräume schaffen, sodass auch eine 4- bis 5-köpfige Familie ausreichend Platz findet. Das Potenzial für zusätzlichen Wohnraum im Dachgeschoss liegt bei ca. 50–70 m² und bietet eine hervorragende Möglichkeit, den Wert der Immobilie zu steigern. Welche Erweiterungsmöglichkeiten im Erdgeschoss möglich sind, müsste mit dem Bauamt abgestimmt werden. Aber auch hier sind sicher 40-60 m², wenn nicht sogar mehr, möglich.
Das großzügige Grundstück von ca. 1.061 m² bietet zudem eine herrliche Terrasse von ca. 40 m² und genügend Freiraum für Gartenliebhaber oder Familien mit Kindern. Drei Außenstellplätze sowie eine Garage sorgen für komfortables Parken.
Haben wir Ihr Interesse geweckt? Kontaktieren Sie uns gerne für weitere Informationen oder eine Besichtigung!
Ausstattung
| Bad | 1 |
| Garten | |
| Terrassen | 1 |
| Garage/Stellplätze | 1 |
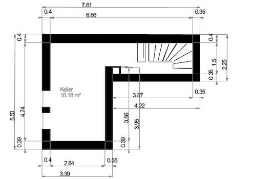
| Keller |
Die Immobilie befindet sich in einem gepflegten Zustand, benötigt jedoch eine Modernisierung, um den heutigen Wohnansprüchen gerecht zu werden. Ein großer Vorteil: Die Heizungsanlage wurde erst 2023 durch eine moderne Gasbrennwertheizung ersetzt.
Weitere Ausstattungsmerkmale im Überblick:
• Wohnfläche: ca. 100 m² (Ausbaureserve am Haus oder im Dachboden)
• Nutzfläche: ca. 30 m²
• Grundstück: ca. 1.061 m²
• Zimmer: 3 (darunter 2 Schlafzimmer)
• Badezimmer: 1 + separates Gäste-WC
• Fenster: Holzrahmen mit Isolierverglasung
• Terrasse: ca. 40 m²
• Stellplätze: 3 Außenstellplätze + 1 Garage
Dieses Einfamilienhaus bietet großes Potenzial für individuelle Gestaltungsmöglichkeiten und ist die perfekte Gelegenheit für alle, die ein Zuhause in einer ruhigen und dennoch zentralen Lage suchen.
Weitere Ausstattungsmerkmale im Überblick:
• Wohnfläche: ca. 100 m² (Ausbaureserve am Haus oder im Dachboden)
• Nutzfläche: ca. 30 m²
• Grundstück: ca. 1.061 m²
• Zimmer: 3 (darunter 2 Schlafzimmer)
• Badezimmer: 1 + separates Gäste-WC
• Fenster: Holzrahmen mit Isolierverglasung
• Terrasse: ca. 40 m²
• Stellplätze: 3 Außenstellplätze + 1 Garage
Dieses Einfamilienhaus bietet großes Potenzial für individuelle Gestaltungsmöglichkeiten und ist die perfekte Gelegenheit für alle, die ein Zuhause in einer ruhigen und dennoch zentralen Lage suchen.
Lage des Objektes
Das Haus befindet sich in einer ruhigen und sehr begehrten Wohnlage von Solingen-Aufderhöhe. Einkaufsmöglichkeiten, Ärzte, Apotheken und öffentliche Verkehrsmittel sind bequem zu Fuß erreichbar. Familien profitieren von der Nähe zu Kindergärten (ca. 500 m) sowie Grund- und weiterführenden Schulen.
Dank der guten Anbindung an die Autobahn A3 und den Ohligser Hauptbahnhof eignet sich die Immobilie ideal für Berufspendler, die in Köln oder Düsseldorf arbeiten. Zudem bietet die Umgebung zahlreiche Möglichkeiten zur Freizeitgestaltung – sei es durch Spaziergänge in der Natur, sportliche Aktivitäten oder Ausflüge ins Bergische Land.
Dank der guten Anbindung an die Autobahn A3 und den Ohligser Hauptbahnhof eignet sich die Immobilie ideal für Berufspendler, die in Köln oder Düsseldorf arbeiten. Zudem bietet die Umgebung zahlreiche Möglichkeiten zur Freizeitgestaltung – sei es durch Spaziergänge in der Natur, sportliche Aktivitäten oder Ausflüge ins Bergische Land.
Anbieter kontaktieren
Kontakt
| Telefon | 00491729719999 |
| Mobil | 00491729719999 |
| Fax | 00492122543617 |
