Zw. BN BEUEL u. SIEGBURG, 2 x NEUBAU Doppelhaushälften, 5-6 Zimmer, ca. 143 m² Wfl. ca. 210 m² GrSt.
499.000 €
Kaufpreis
143 m²
Wohnfläche
6
Zimmer
immobilien.de Nr.: 9223270
Objektnummer: Ebevkcfbf_
Preise & Kosten
| Kaufpreis | 499.000 € |
| Nebenkosten | keine Angabe |
| Maklerprovision | 3,57 % vom Kaufpreis inkl. ges. MwSt. unbeschadet einer Courtagezahlung der Verkäuferseite. |
| Stellplatz Freiplatz Kaufpreis | 0 € |
| Stellplatz Freiplatz Miete} | 0 € |
| Stellplatz Garage Kaufpreis | 0 € |
| Stellplatz Garage Miete | 0 € |
Größe & Zustand
| Wohnfläche | 143 m² |
| Grundstücksfläche | 210 m² |
| Zimmer | 6 |
| Verfügbar ab | keine Angabe |
Energie
| Energieträger/Befeuerung | Luft-Wärme-Pumpe |
Objektbeschreibung
EINFAMILIEN-DOPPELHAUSHÄLFTE +++ NEUBAU+++ ab 4 9 9. 0 0 0 , - - E u r o
zwischen BONN BEUEL und SIEGBURG
in Sankt Augustin-Meindorf
Es entstehen in SANKT AUGUSTIN MEINDORF ... 2 x NEUBAU DOPPELHAUSHÄLFTEN ...
ab 4 9 9. 0 0 0 , - - E u r o
.... schön .... hell .... in Massivbauweise mit Fußbodenheizung und mit Luft,- Wärmepumpe .... Garage möglich.
++ mit ca. 143 m² Wfl. und 5 bis 6 Zimmer, Küche , Diele, Bad, Gäste-WC + Option auf 2. tes Bad mit WC im Studio ++
Bei dem Kaufpreis ab 499.000,-- Euro ist der Dachgeschossausbau nicht enthalten.
Dieser kann in Eigenleistungen oder gegen Aufpreis durchgeführt werden.
++ mit ca. 143 m² Wfl. und 5 bis 6 Zimmer, Küche , Diele, Bad, Gäste-WC + Option auf 2. tes Bad mit WC im Studio ++
In zentraler Lage von Sankt Augustin-Meindorf in einer sehr zentralen und dennoch ruhigen sowie sehr gepflegten, kinderfreundlichen Lage entstehen 2 tolle Neubau-Doppelhaushälften.
Die Grundstückstücksgrößen betragen ca. 200 m² und ca. 210 m².
+++ EINFAMILIEN-DOPPELHAUSHÄLFTE +++ NEUBAU+++ in Sankt Augustin-Meindorf +++
Jedes Haus verfügt über ca. 143 m² Wohnfläche und über insgesamt 5-6 Zimmer inkl. schönem Studio.
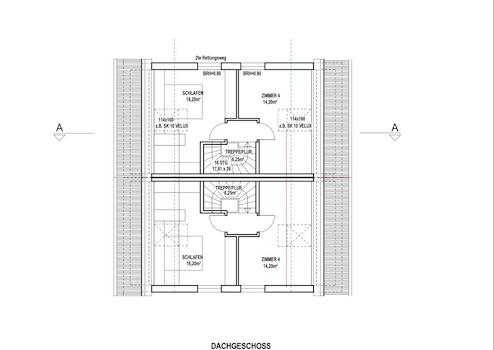
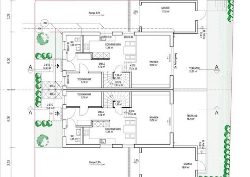
. Pläne und Grundrisse sehen Sie unter den Bildern.
Auch die Baubeschreibung liegt uns bereits vor.
Diese erhalten Sie gerne auf Anforderung.
Bereits erbaute und vergleichbare Häuser können in der näheren Umgebung in Bonn und im Rhein-Sieg-Kreis besichtigt werden.
++++++++++++++++++++++++++++++++++
- die Kosten für Oberböden sowie für Maler,-/ Tapezierarbeiten sind nicht im Preis enthalten.
- die Errichtung von Terrassenanlagen und Gartenanlagen sind ebenfalls vom Käufer zu
erbringen.
++++++++++++++++++++++++++++++++++
Möglichkeiten gegen Aufpreis:
- Carport / Garage - möglich -
- Sonderausstattungen - möglich -
Weitere Bautypen:
Die jeweiligen Angebote / Häuser finden Sie unter den Links:
www.enders-immobilien.de
Geben Sie die jeweiligen Links in Ihren Browser ein.
____________________________________________________
KURZINFOS zur Doppelhaushälfte:
Größen / Aufteilung:
- 5-6 Zimmer, Küche, Diele, Bad im OG und Bad oder Dusche im Studio (optional).
- große Terrasse im EG und evtl. mögliche schöne Sonnen-Dachterrasse im Studiobereich.
____________________________________________________
Wohnflächen von ca. 140 m².
____________________________________________________
Grundstücksgrößen zwischen ca. 200 m² und 210 m²
____________________________________________________
Kaufpreise: ab 499.000,-- Euro
____________________________________________________
Ausstattung:
gehoben und modern ! Viele Varianten sind denkbar...
Es gilt die Baubeschreibung sowie die gewünschten Sonderausstattungen und vereinbarten Sonderleistungen auch gegen Aufpreise.
____________________________________________________
Lage:
. Absolute Nähe zu Bus und Bahn, Einkaufsmöglichkeiten.
. Absolut zentral und ruhig gelegen.
. Schulen und Kindergärten Fußläufig. Post, Apotheken, Ärzte, Einkäufe, Bus... fußläufig...
. Ideale Lage für Familien.
+++++ Nur zwei Einheiten !!! Lassen Sie sich vormerken +++++
. Grundrisse, Pläne, Ansichten, Lagepläne snd vorhandenn !
INFOS erhalten Sie auch unter: (0 1 78 ) 9 836 936
Die Doppelhaushälften werden in Massivbauweise errichtet.
FINANZIERUNGEN:
Finanzierungen zu Sonderkonditionen sind möglich ! Sprechen Sie uns an !
Finanzieren Sie sicher und langfristig gut !
Einen seriösen Finanzierungspartner können wir Ihnen empfehlen.
zwischen BONN BEUEL und SIEGBURG
in Sankt Augustin-Meindorf
Es entstehen in SANKT AUGUSTIN MEINDORF ... 2 x NEUBAU DOPPELHAUSHÄLFTEN ...
ab 4 9 9. 0 0 0 , - - E u r o
.... schön .... hell .... in Massivbauweise mit Fußbodenheizung und mit Luft,- Wärmepumpe .... Garage möglich.
++ mit ca. 143 m² Wfl. und 5 bis 6 Zimmer, Küche , Diele, Bad, Gäste-WC + Option auf 2. tes Bad mit WC im Studio ++
Bei dem Kaufpreis ab 499.000,-- Euro ist der Dachgeschossausbau nicht enthalten.
Dieser kann in Eigenleistungen oder gegen Aufpreis durchgeführt werden.
++ mit ca. 143 m² Wfl. und 5 bis 6 Zimmer, Küche , Diele, Bad, Gäste-WC + Option auf 2. tes Bad mit WC im Studio ++
In zentraler Lage von Sankt Augustin-Meindorf in einer sehr zentralen und dennoch ruhigen sowie sehr gepflegten, kinderfreundlichen Lage entstehen 2 tolle Neubau-Doppelhaushälften.
Die Grundstückstücksgrößen betragen ca. 200 m² und ca. 210 m².
+++ EINFAMILIEN-DOPPELHAUSHÄLFTE +++ NEUBAU+++ in Sankt Augustin-Meindorf +++
Jedes Haus verfügt über ca. 143 m² Wohnfläche und über insgesamt 5-6 Zimmer inkl. schönem Studio.
. Pläne und Grundrisse sehen Sie unter den Bildern.
Auch die Baubeschreibung liegt uns bereits vor.
Diese erhalten Sie gerne auf Anforderung.
Bereits erbaute und vergleichbare Häuser können in der näheren Umgebung in Bonn und im Rhein-Sieg-Kreis besichtigt werden.
++++++++++++++++++++++++++++++++++
- die Kosten für Oberböden sowie für Maler,-/ Tapezierarbeiten sind nicht im Preis enthalten.
- die Errichtung von Terrassenanlagen und Gartenanlagen sind ebenfalls vom Käufer zu
erbringen.
++++++++++++++++++++++++++++++++++
Möglichkeiten gegen Aufpreis:
- Carport / Garage - möglich -
- Sonderausstattungen - möglich -
Weitere Bautypen:
Die jeweiligen Angebote / Häuser finden Sie unter den Links:
www.enders-immobilien.de
Geben Sie die jeweiligen Links in Ihren Browser ein.
____________________________________________________
KURZINFOS zur Doppelhaushälfte:
Größen / Aufteilung:
- 5-6 Zimmer, Küche, Diele, Bad im OG und Bad oder Dusche im Studio (optional).
- große Terrasse im EG und evtl. mögliche schöne Sonnen-Dachterrasse im Studiobereich.
____________________________________________________
Wohnflächen von ca. 140 m².
____________________________________________________
Grundstücksgrößen zwischen ca. 200 m² und 210 m²
____________________________________________________
Kaufpreise: ab 499.000,-- Euro
____________________________________________________
Ausstattung:
gehoben und modern ! Viele Varianten sind denkbar...
Es gilt die Baubeschreibung sowie die gewünschten Sonderausstattungen und vereinbarten Sonderleistungen auch gegen Aufpreise.
____________________________________________________
Lage:
. Absolute Nähe zu Bus und Bahn, Einkaufsmöglichkeiten.
. Absolut zentral und ruhig gelegen.
. Schulen und Kindergärten Fußläufig. Post, Apotheken, Ärzte, Einkäufe, Bus... fußläufig...
. Ideale Lage für Familien.
+++++ Nur zwei Einheiten !!! Lassen Sie sich vormerken +++++
. Grundrisse, Pläne, Ansichten, Lagepläne snd vorhandenn !
INFOS erhalten Sie auch unter: (0 1 78 ) 9 836 936
Die Doppelhaushälften werden in Massivbauweise errichtet.
FINANZIERUNGEN:
Finanzierungen zu Sonderkonditionen sind möglich ! Sprechen Sie uns an !
Finanzieren Sie sicher und langfristig gut !
Einen seriösen Finanzierungspartner können wir Ihnen empfehlen.
Ausstattung
| Bad | 2 |
| Bad | Dusche, Wanne |
| Garten | |
| Garage/Stellplätze | 2 |
- Massivbauweise
- Kunsstofffenster mit Isolierverglasung (Dreifachverglasung)
- Heizung: Luft- Wärmepumpe
- Fussbodenheizung
- Badezimmer: hell und modern gefliest (Wanne und Dusche möglich).
- weitere Ausstattungen auf Anfrage
+++ fordern Sie die Baubeschreibung an +++
- Kunsstofffenster mit Isolierverglasung (Dreifachverglasung)
- Heizung: Luft- Wärmepumpe
- Fussbodenheizung
- Badezimmer: hell und modern gefliest (Wanne und Dusche möglich).
- weitere Ausstattungen auf Anfrage
+++ fordern Sie die Baubeschreibung an +++
Sonstige Informationen
Objektinformationen:
weitere Objektinformationen und Bilder sehen Sie unter:
www.enders-immobilien.de/Ebevkcfbf_
Aufteilung:
Informationen hinsichtlich der Angaben zur Aufteilung -Grundrisse- erhalten Sie gesondert in dem Sie ein Exposé bei uns anfordern.
Bezug:
Neubau / Erstbezug
Ein Verkauf ist voraussichtlich erst ab ca. Februar / März 2025 bzw. nach gesonderter Vereinbarung mit dem Bauträger möglich.
_______________________________________________________
Kontakt:
wir bitten Sie vordergründig per Mail mit uns in Kontakt zu treten.
Ein Treffen am Grundstück ist nach Terminvereinbarung möglich.
Bearbeitung:
Mails ohne Angaben Ihres Namen, Vornamens, postalischer Anschrift sowie Rufnummern und Emailadressen können wir nicht bearbeiten.
Anfragen und Besichtigungstermine:
Besichtigungstermine können nur vereinzelt vor Ort am Grundstück angeboten werden !
Es sind keine Massenbesichtigungen möglich !
Die Hygieneregeln müssen eingehalten werden.
Oftmals können wir nicht allen Interessenten einen Besichtigungstermin anbieten und jedem Interesse gerecht werden.
Da wir als Immobilienfirma täglich eine Vielzahl von Emails erhalten, können wir nicht zusagen Ihnen umgehend antworten zu können.
In der Regel erhalten Sie vom Internetanbieter auch eine standardisierte Antwortmail.
________________________________________________________
Maklercourtage:
für den Nachweis und/oder die Vermittlung zahlt der Käufer 3,57 % Maklercourtage vom Kaufpreis inkl. der gesetzlichen MwSt. von derzeit 19 % unbeschadet einer Courtagezahlung der Verkäuferseite.
Der Makler ist auch für die Verkäuferseite (als Doppelmakler) provisionspflichtig tätig.
Energieausweis:
ein Energieausweis wird erstellt.
Haftungsausschluss:
das Exposé bzw. die Daten wurde anhand der Angaben und Unterlagen des Verkäufers erstellt.
Eine Gewähr über die Vollständigkeit und Richtigkeit dieser Angaben können wir somit nicht übernehmen.
Ferner bleibt uns ein Zwischenverkauf vorbehalten.
+++++++++++++++++++++++++++++++++++++++++++
Widerrufsbelehrung:
im Falle eines Zustande kommenden Vertrages haben Verbraucher das folgende Widerrufsrecht:
Sie haben das Recht, binnen vierzehn Tagen ohne Angabe von Gründen den Vertrag zu widerrufen.
Die Widerrufsfrist beträgt vierzehn Tage ab dem Tag des Vertragsabschlusses.
Um Ihr Widerrufsrecht auszuüben, müssen Sie uns mittels einer eindeutigen Erklärung (z.B. ein mit der Post versandter Brief, Telefax oder E-Mail) über Ihren Entschluss, diesen Vertrag zu widerrufen, informieren.
Der Widerruf ist zu richten an:
ENDERS IMMOBILIEN Vermietung & Verkauf
Alte Heerstrasse 39
53757 Sankt Augustin
Fax-Nr.: 02241 3982 39
info@enders-immobilien.de
Zur Wahrung der Widerrufsfrist reicht es aus, dass Sie die Mitteilung über die Ausübung des Widerrufsrechts vor Ablauf der Widerrufsfrist absenden.
Folgen des Widerrufs:
wenn Sie diesen Vertrag widerrufen, haben wir Ihnen alle Zahlungen, die wir von Ihnen erhalten haben, einschließlich der Lieferkosten (mit Ausnahme der zusätzlichen Kosten, die sich daraus ergeben, dass Sie eine andere Art der Lieferung als die von uns angebotene, günstigste Standardlieferung gewählt haben), unverzüglich und spätestens binnen vierzehn Tagen ab dem Tag zurückzuzahlen, an dem die Mitteilung über Ihren Widerruf dieses Vertrags bei uns eingegangen ist.
Für diese Rückzahlung verwenden wir dasselbe Zahlungsmittel, das Sie bei der ursprünglichen Transaktion eingesetzt haben, es sei denn, mit Ihnen wurde ausdrücklich etwas anderes vereinbart; in keinem Fall werden Ihnen wegen dieser Rückzahlung Entgelte berechnet.
Haben Sie verlangt, dass die Dienstleistungen während der Widerrufsfrist beginnen soll, so haben Sie uns einen angemessenen Betrag zu zahlen, der dem Anteil der bis zu dem Zeitpunkt, zu dem Sie uns von der Ausübung des Widerrufsrechts hinsichtlich dieses Vertrags unterrichten, bereits erbrachten Dienstleistungen im Vergleich zum Gesamtumfang der im Vertrag vorgesehenen Dienstleistungen entspricht.
+++++++++++++++++++++++++++++++++++++++++++
Muster-Widerrufsformular
Wenn Sie den Vertrag widerrufen wollen, dann füllen Sie dieses Formular aus und senden Sie es zurück:
An
ENDERS IMMOBILIEN IVD
Alte Heerstrasse 39
53757 Sankt Augustin
Fax: (0 22 41) 39 82 - 39
E-Mail: info@enders-immobilien.de
Hiermit widerrufe(n) ich/wir (*) den von mir/uns (*) abgeschlossenen Vertrag über den Kauf der folgenden Waren (*)/die Erbringung der folgenden Dienstleistung (*)
. Bestellt am (*)/erhalten am (*)
. Name des/der Verbraucher(s)
. Anschrift des/der Verbraucher(s)
. Unterschrift des/der Verbraucher(s) (nur bei
Mitteilung auf Papier)
. Datum
_______________________________________
(*) Unzutreffendes streichen+++++++
weitere Objektinformationen und Bilder sehen Sie unter:
www.enders-immobilien.de/Ebevkcfbf_
Aufteilung:
Informationen hinsichtlich der Angaben zur Aufteilung -Grundrisse- erhalten Sie gesondert in dem Sie ein Exposé bei uns anfordern.
Bezug:
Neubau / Erstbezug
Ein Verkauf ist voraussichtlich erst ab ca. Februar / März 2025 bzw. nach gesonderter Vereinbarung mit dem Bauträger möglich.
_______________________________________________________
Kontakt:
wir bitten Sie vordergründig per Mail mit uns in Kontakt zu treten.
Ein Treffen am Grundstück ist nach Terminvereinbarung möglich.
Bearbeitung:
Mails ohne Angaben Ihres Namen, Vornamens, postalischer Anschrift sowie Rufnummern und Emailadressen können wir nicht bearbeiten.
Anfragen und Besichtigungstermine:
Besichtigungstermine können nur vereinzelt vor Ort am Grundstück angeboten werden !
Es sind keine Massenbesichtigungen möglich !
Die Hygieneregeln müssen eingehalten werden.
Oftmals können wir nicht allen Interessenten einen Besichtigungstermin anbieten und jedem Interesse gerecht werden.
Da wir als Immobilienfirma täglich eine Vielzahl von Emails erhalten, können wir nicht zusagen Ihnen umgehend antworten zu können.
In der Regel erhalten Sie vom Internetanbieter auch eine standardisierte Antwortmail.
________________________________________________________
Maklercourtage:
für den Nachweis und/oder die Vermittlung zahlt der Käufer 3,57 % Maklercourtage vom Kaufpreis inkl. der gesetzlichen MwSt. von derzeit 19 % unbeschadet einer Courtagezahlung der Verkäuferseite.
Der Makler ist auch für die Verkäuferseite (als Doppelmakler) provisionspflichtig tätig.
Energieausweis:
ein Energieausweis wird erstellt.
Haftungsausschluss:
das Exposé bzw. die Daten wurde anhand der Angaben und Unterlagen des Verkäufers erstellt.
Eine Gewähr über die Vollständigkeit und Richtigkeit dieser Angaben können wir somit nicht übernehmen.
Ferner bleibt uns ein Zwischenverkauf vorbehalten.
+++++++++++++++++++++++++++++++++++++++++++
Widerrufsbelehrung:
im Falle eines Zustande kommenden Vertrages haben Verbraucher das folgende Widerrufsrecht:
Sie haben das Recht, binnen vierzehn Tagen ohne Angabe von Gründen den Vertrag zu widerrufen.
Die Widerrufsfrist beträgt vierzehn Tage ab dem Tag des Vertragsabschlusses.
Um Ihr Widerrufsrecht auszuüben, müssen Sie uns mittels einer eindeutigen Erklärung (z.B. ein mit der Post versandter Brief, Telefax oder E-Mail) über Ihren Entschluss, diesen Vertrag zu widerrufen, informieren.
Der Widerruf ist zu richten an:
ENDERS IMMOBILIEN Vermietung & Verkauf
Alte Heerstrasse 39
53757 Sankt Augustin
Fax-Nr.: 02241 3982 39
info@enders-immobilien.de
Zur Wahrung der Widerrufsfrist reicht es aus, dass Sie die Mitteilung über die Ausübung des Widerrufsrechts vor Ablauf der Widerrufsfrist absenden.
Folgen des Widerrufs:
wenn Sie diesen Vertrag widerrufen, haben wir Ihnen alle Zahlungen, die wir von Ihnen erhalten haben, einschließlich der Lieferkosten (mit Ausnahme der zusätzlichen Kosten, die sich daraus ergeben, dass Sie eine andere Art der Lieferung als die von uns angebotene, günstigste Standardlieferung gewählt haben), unverzüglich und spätestens binnen vierzehn Tagen ab dem Tag zurückzuzahlen, an dem die Mitteilung über Ihren Widerruf dieses Vertrags bei uns eingegangen ist.
Für diese Rückzahlung verwenden wir dasselbe Zahlungsmittel, das Sie bei der ursprünglichen Transaktion eingesetzt haben, es sei denn, mit Ihnen wurde ausdrücklich etwas anderes vereinbart; in keinem Fall werden Ihnen wegen dieser Rückzahlung Entgelte berechnet.
Haben Sie verlangt, dass die Dienstleistungen während der Widerrufsfrist beginnen soll, so haben Sie uns einen angemessenen Betrag zu zahlen, der dem Anteil der bis zu dem Zeitpunkt, zu dem Sie uns von der Ausübung des Widerrufsrechts hinsichtlich dieses Vertrags unterrichten, bereits erbrachten Dienstleistungen im Vergleich zum Gesamtumfang der im Vertrag vorgesehenen Dienstleistungen entspricht.
+++++++++++++++++++++++++++++++++++++++++++
Muster-Widerrufsformular
Wenn Sie den Vertrag widerrufen wollen, dann füllen Sie dieses Formular aus und senden Sie es zurück:
An
ENDERS IMMOBILIEN IVD
Alte Heerstrasse 39
53757 Sankt Augustin
Fax: (0 22 41) 39 82 - 39
E-Mail: info@enders-immobilien.de
Hiermit widerrufe(n) ich/wir (*) den von mir/uns (*) abgeschlossenen Vertrag über den Kauf der folgenden Waren (*)/die Erbringung der folgenden Dienstleistung (*)
. Bestellt am (*)/erhalten am (*)
. Name des/der Verbraucher(s)
. Anschrift des/der Verbraucher(s)
. Unterschrift des/der Verbraucher(s) (nur bei
Mitteilung auf Papier)
. Datum
_______________________________________
(*) Unzutreffendes streichen+++++++
Lage des Objektes
Geschäfte für Güter des täglichen Bedarfs sind direkt im Ortsteil Meindorf sowie Menden - und in Sankt Augustin reichhaltig vorhanden.
Sämtliche Schulformen und Kindergärten sowie große Einkaufs- und Sportzentren, Arztpraxen und Apotheken sind ebenfalls in Sankt Augustin und Meindorf vorhanden.
Autobahnanschluss:
ca. 2 Km Richtung Bonn und Köln - Entfernung nach Köln ca. 25 Km, Bonn über die L 16 ca. 7 Km oder A 59 ca. 10 Km.
Öffentliche Verkehrsanbindung:
die öffentliche Verkehrsanbindung über die S- und Regionalbahnverbindung Siegburg / Köln ist als sehr gut zu bewerten.
Sämtliche Schulformen und Kindergärten sowie große Einkaufs- und Sportzentren, Arztpraxen und Apotheken sind ebenfalls in Sankt Augustin und Meindorf vorhanden.
Autobahnanschluss:
ca. 2 Km Richtung Bonn und Köln - Entfernung nach Köln ca. 25 Km, Bonn über die L 16 ca. 7 Km oder A 59 ca. 10 Km.
Öffentliche Verkehrsanbindung:
die öffentliche Verkehrsanbindung über die S- und Regionalbahnverbindung Siegburg / Köln ist als sehr gut zu bewerten.
Anbieter kontaktieren
Anbieter
Enders Immobilien Verkauf & Vermietung / Raum Bonn - Rhein-Sieg-Kreis
Alte Heerstr. 39
53757 Sankt Augustin
Kontakt
| Telefon | 00492241398230 |
| Mobil | 00491789836936 |
| Fax | 00492241398239 |
| Website | www.enders-immobilien.de |
