Geräumiges Einfamilienhaus in guter Wohnlage von Breitfurt !
455.900 €
Kaufpreis
176 m²
Wohnfläche
5
Zimmer
immobilien.de Nr.: 9208357
Objektnummer: 251090A008-250818
Preise & Kosten
| Kaufpreis | 455.900 € |
| Nebenkosten | keine Angabe |
| Stellplatz Garage Kaufpreis | 9.000 € |
Größe & Zustand
| Wohnfläche | 176 m² |
| Grundstücksfläche | 1.190 m² |
| Zimmer | 5 |
| Baujahr | 2026 |
| Verfügbar ab | nach Vereinbarung |
| Zustand | Erstbezug |
Energie
| Energieausweistyp | Verbrauch |
| Baujahr (laut Energieausweis) | 2025 |
| Energieeffizienzklasse | A+ |
| Energietyp | Niedrigenergie, Neubaustandard, KfW-40 |
| Energieverbrauchkennwert | 33.00 kWh/(m²*a) |
| Heizungsart | Zentralheizung |
| Wesentlicher Energieträger | Strom |
| Energieträger/Befeuerung | Luft-Wärme-Pumpe |
Objektbeschreibung
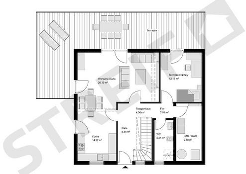
Das Haus mit Satteldach punktet mit einem gut durchdachten Grundriss. Der offen gestaltete Wohn-/Ess- und Kochbereich ist lichtdurchflutet. Ein praktischer Hauswirtschaftsraum ist direkt neben der Küche platziert. Komplettiert wird das Raumangebot im Erdgeschoss mit einem Gäste-WC, das optional auch als Duschbad ausgeführt werden kann, einer Diele und einem Haustechnikraum.
Im Dachgeschoss des Hauses sind zwei schöne Kinderzimmer, ein Elternschlafzimmer, ein Flur und ein Familienbad untergebracht. Die Lage der Treppe und des Haustechnikraumes sind fixiert.
Objektart: Einfamilienhaus, 1,5-geschossig
Dachform: Satteldach
Kniestock: 1,00m
Im Dachgeschoss des Hauses sind zwei schöne Kinderzimmer, ein Elternschlafzimmer, ein Flur und ein Familienbad untergebracht. Die Lage der Treppe und des Haustechnikraumes sind fixiert.
Objektart: Einfamilienhaus, 1,5-geschossig
Dachform: Satteldach
Kniestock: 1,00m
Ausstattung
| Anzahl der Etagen im Haus | 2 |
| Küche | Offene Küche |
| Bad | 1 |
| Bad | Dusche, Wanne, Fenster |
| Boden | Fliesen, Stein, Parkett, Fertigparkett, Laminat, Kunststoff, Linoleum, Marmor, Granit |
| Terrassen | 1 |
| Garage/Stellplätze | 1 |
Erstklassige Materialien warten darauf, Ihr Eigen zu werden. Wir verbauen für Sie ausschließlich Produkte von namhaften Herstellern in bester Qualität. Und das Beste, Sie haben die Möglichkeit, durch Eigenleistung beim Innenausbau die Finanzierungsquote zu verbessern und dadurch eine Finanzierung gestalten zu können, die es Ihnen in Zukunft leicht macht, anstatt Miete in Ihr eigenes Haus zu investieren. Fragen Sie uns einfach nach unseren Möglichkeiten im Finanzierungsbereich.
Das Haus wird in Niedrigenergiebauweise KfW 40 gebaut.
Die niedrigen Heizkosten inklusive Warmwasseraufbereitung erreichen wir durch eine Wärmepumpe in Verbindung mit einer kontrollierten Be-und Entlüftungsanlage mit Wärmerückgewinnung.
Sämtliche für den Innenausbau erforderlichen Materialien in Handwerkerqualität sind im Preis enthalten.
Sie können den Innenausbau teilweise selbst durchführen und dadurch zusätzliches Eigenkapital bilden oder die Arbeiten stufenweise bis zur einzugsfertigen Erstellung bei uns beauftragen.
Die zum Einsatz kommenden Materialien beziehen wir ausschließlich von namhaften Herstellern.
Das Haus wird in Niedrigenergiebauweise KfW 40 gebaut.
Die niedrigen Heizkosten inklusive Warmwasseraufbereitung erreichen wir durch eine Wärmepumpe in Verbindung mit einer kontrollierten Be-und Entlüftungsanlage mit Wärmerückgewinnung.
Sämtliche für den Innenausbau erforderlichen Materialien in Handwerkerqualität sind im Preis enthalten.
Sie können den Innenausbau teilweise selbst durchführen und dadurch zusätzliches Eigenkapital bilden oder die Arbeiten stufenweise bis zur einzugsfertigen Erstellung bei uns beauftragen.
Die zum Einsatz kommenden Materialien beziehen wir ausschließlich von namhaften Herstellern.
Sonstige Informationen
Nutzen Sie die Kraft der Sonne für ein nachhaltiges und komfortables Zuhause! Mit unserem innovativen Heizsystem, das nahtlos mit einem Hauskraftwerk kombiniert ist, genießen Sie Heizen, Lüften und Warmwasser aus einer Hand. Die STREIF-Luft-Luft-Wärmepumpen-Technologie sorgt für eine beeindruckende Wärmerückgewinnung von bis zu 85%, während die integrierte Be- und Entlüftungsanlage für frische Luft sorgt.
Zusätzlich profitieren Sie von einer separaten Trinkwasserwärmepumpe mit einem großzügigen 300-Liter-Warmwasserspeicher und einem G4-Frischluftfilter, der Staub und Pollen reduziert.
Die Vorteile sprechen für sich: Keine störenden Heizkörper, keine fossilen Brennstoffe wie Öl und Gas, kein Bedarf an Gasanschlüssen oder Lagerflächen für Öl und Pellets, und keine Erdbohrungen erforderlich!
Gestalten Sie Ihr Zuhause umweltfreundlich und effizient - für ein besseres Leben und eine bessere Zukunft!
Zusätzlich profitieren Sie von einer separaten Trinkwasserwärmepumpe mit einem großzügigen 300-Liter-Warmwasserspeicher und einem G4-Frischluftfilter, der Staub und Pollen reduziert.
Die Vorteile sprechen für sich: Keine störenden Heizkörper, keine fossilen Brennstoffe wie Öl und Gas, kein Bedarf an Gasanschlüssen oder Lagerflächen für Öl und Pellets, und keine Erdbohrungen erforderlich!
Gestalten Sie Ihr Zuhause umweltfreundlich und effizient - für ein besseres Leben und eine bessere Zukunft!
Lage des Objektes
Das Grundstück liegt in einer ruhigen Seitenstraße in Breitfurt.
Das Haus ist auf einem realen Baugrundstück geplant oder auf einem Grundstück in einer Planungsphase. Das Grundstück erwerben Sie über den beauftragten Makler direkt vom Eigentümer. Der Preis des Grundstücks ist im Angebotspreis bereits eingerechnet.
Bitte haben Sie Verständnis dafür, dass wir ohne ein persönliches Gespräch keine Grundstücksdaten weiterleiten können.
Gern sind wir bei der Wahl Ihres Traumgrundstückes behilflich!
Natürlich können wir ihren Haustraum auch auf einem anderen Grundstück realisieren, lassen Sie sich dazu in einem unverbindlichen Gespräch zu Ihrem Bauvorhaben beraten.
Das Haus ist auf einem realen Baugrundstück geplant oder auf einem Grundstück in einer Planungsphase. Das Grundstück erwerben Sie über den beauftragten Makler direkt vom Eigentümer. Der Preis des Grundstücks ist im Angebotspreis bereits eingerechnet.
Bitte haben Sie Verständnis dafür, dass wir ohne ein persönliches Gespräch keine Grundstücksdaten weiterleiten können.
Gern sind wir bei der Wahl Ihres Traumgrundstückes behilflich!
Natürlich können wir ihren Haustraum auch auf einem anderen Grundstück realisieren, lassen Sie sich dazu in einem unverbindlichen Gespräch zu Ihrem Bauvorhaben beraten.
Anbieter kontaktieren
Kontakt
| Telefon | +49 681 70947955 |
| Mobil | +49 160 7038141 |
| Website | www.streif.de |
