Ihr Familienhaus mit STREIF möglich !
269.900 €
Kaufpreis
127 m²
Wohnfläche
5
Zimmer
immobilien.de Nr.: 9194310
Objektnummer: 251090001-250810DeS
Preise & Kosten
| Kaufpreis | 269.900 € |
| Nebenkosten | keine Angabe |
| Stellplatz Garage Kaufpreis | 9.000 € |
Größe & Zustand
| Wohnfläche | 127 m² |
| Grundstücksfläche | 310 m² |
| Zimmer | 5 |
| Baujahr | 2026 |
| Verfügbar ab | nach Vereinbarung |
| Zustand | Erstbezug |
Energie
| Energieausweistyp | Verbrauch |
| Baujahr (laut Energieausweis) | 2026 |
| Energieeffizienzklasse | A+ |
| Energietyp | Niedrigenergie, Neubaustandard, KfW-40 |
| Energieverbrauchkennwert | 33.00 kWh/(m²*a) |
| Heizungsart | Zentralheizung |
| Wesentlicher Energieträger | Strom |
| Energieträger/Befeuerung | Luft-Wärme-Pumpe |
Objektbeschreibung
Mit dem Ausbauhauskonzept von STREIF in Verbindung mit Ihrer Eigenleistung kann das Ihr Familienhaus in Rehlingen werden.
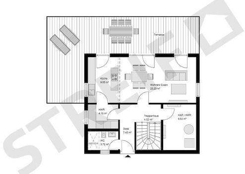
Das behagliche Haus mit Satteldach punktet mit einem gut durchdachten Grundriss. Der offen gestaltete Wohn-/Ess- und Kochbereich ist lichtdurchflutet. Ein praktischer Hauswirtschaftsraum ist direkt neben der Küche platziert. Komplettiert wird das Raumangebot im Erdgeschoss mit einem Gäste-WC, das optional auch als Duschbad ausgeführt werden kann, einer Diele und einem Haustechnikraum.
Im Dachgeschoss des Hauses sind zwei schöne Kinderzimmer, ein Elternschlafzimmer, ein Flur und ein Familienbad untergebracht. Die Lage der Treppe und des Haustechnikraumes sind fixiert.
Objektart: Einfamilienhaus, 1,5-geschossig
Dachform: Satteldach
Kniestock: 0,75m
Das behagliche Haus mit Satteldach punktet mit einem gut durchdachten Grundriss. Der offen gestaltete Wohn-/Ess- und Kochbereich ist lichtdurchflutet. Ein praktischer Hauswirtschaftsraum ist direkt neben der Küche platziert. Komplettiert wird das Raumangebot im Erdgeschoss mit einem Gäste-WC, das optional auch als Duschbad ausgeführt werden kann, einer Diele und einem Haustechnikraum.
Im Dachgeschoss des Hauses sind zwei schöne Kinderzimmer, ein Elternschlafzimmer, ein Flur und ein Familienbad untergebracht. Die Lage der Treppe und des Haustechnikraumes sind fixiert.
Objektart: Einfamilienhaus, 1,5-geschossig
Dachform: Satteldach
Kniestock: 0,75m
Ausstattung
| Anzahl der Etagen im Haus | 2 |
| Küche | Offene Küche |
| Bad | 1 |
| Bad | Dusche, Wanne, Fenster |
| Boden | Fliesen, Parkett, Fertigparkett, Laminat, Kunststoff, Linoleum, Marmor, Granit |
| Terrassen | 1 |
| Garage/Stellplätze | 1 |
Das Ausbauhaus von STREIF !
Das Haus übernehmen Sie als Ausbauhau inklusive der Bodenplatte mit umlaufendem Fundamentstreifen ca.40 x 100 cm und den zugehörigen Kanälen unter der Bodenplatte sowie dem Einbau einer durch die jeweilige Kommune beigestellten Mehrspartenhauseinführung (MSH) für die Versorgungsleitungen. Eine Ausführung mit Keller gegen Mehrpreis ist selbstverständlich möglich. Technisch ist das Haus soweit vorbereitet, dass alle Installationskanäle für die Heizung/Sanitär- und Elektroinstallation entsprechend der technischen Bemusterung bereits eingebaut sind. Das bedeutet, dass z.B. die Geberit Untergestelle und die Leerrohre für die Verkabelung schon in den Wänden verbaut sind. Die Wände müssen nur noch verspachtelt und tapeziert oder gestrichen werden. Lieferung und Einbau der Heizung/Sanitär und Elektro-Materialien erfolgt bauseits. Eine stufenweise Beauftragung dieser Leistungen ist möglich, sprechen Sie mich einfach darauf an, damit wir gemeinsam ermitteln können, wie die für Sie optimale Lösung aussieht und welche Kosten damit verbunden sind.
Sie erreichen mich unter 0681/70947955 oder 0160/7038141 oder thomas.heitz@streif.de
Ich freue mich auf Sie !
Thomas Heitz
Das Haus übernehmen Sie als Ausbauhau inklusive der Bodenplatte mit umlaufendem Fundamentstreifen ca.40 x 100 cm und den zugehörigen Kanälen unter der Bodenplatte sowie dem Einbau einer durch die jeweilige Kommune beigestellten Mehrspartenhauseinführung (MSH) für die Versorgungsleitungen. Eine Ausführung mit Keller gegen Mehrpreis ist selbstverständlich möglich. Technisch ist das Haus soweit vorbereitet, dass alle Installationskanäle für die Heizung/Sanitär- und Elektroinstallation entsprechend der technischen Bemusterung bereits eingebaut sind. Das bedeutet, dass z.B. die Geberit Untergestelle und die Leerrohre für die Verkabelung schon in den Wänden verbaut sind. Die Wände müssen nur noch verspachtelt und tapeziert oder gestrichen werden. Lieferung und Einbau der Heizung/Sanitär und Elektro-Materialien erfolgt bauseits. Eine stufenweise Beauftragung dieser Leistungen ist möglich, sprechen Sie mich einfach darauf an, damit wir gemeinsam ermitteln können, wie die für Sie optimale Lösung aussieht und welche Kosten damit verbunden sind.
Sie erreichen mich unter 0681/70947955 oder 0160/7038141 oder thomas.heitz@streif.de
Ich freue mich auf Sie !
Thomas Heitz
Sonstige Informationen
Der Bau des eigenen Hauses ist etwas ganz Besonderes und oftmals auch einmalig im Leben ! Uns liegt sehr viel daran, dass diese Lebensphase in Ihrer Zukunft immer eine gute Erinnerung mit einem angenehmen Bauchgefühl bedeutet. Deshalb betreuen wir Sie vom ersten Kontakt bis zum Einzug mit all unseren Erfahrungen und unserem Wissen. Ich freue mich schon jetzt darauf, Sie kennenzulernen und den Weg zu Ihrem Heim zu beginnen.
Thomas Heitz Lortzingstr. 12 66111 Saarbrücken 0160/7038141 thomas.heitz@streif.de
Thomas Heitz Lortzingstr. 12 66111 Saarbrücken 0160/7038141 thomas.heitz@streif.de
Lage des Objektes
Das Grundstück liegt in zentraler und doch sehr ruhiger Wohnlage von Rehlingen.
Das Haus ist auf einem realen Baugrundstück geplant oder auf einem Grundstück in einer Planungsphase. Das Grundstück erwerben Sie über den beauftragten Immobilienmakler direkt vom Eigentümer. Der Preis des Grundstücks ist im Angebotspreis bereits eingerechnet.
Bitte haben Sie Verständnis dafür, dass wir ohne ein persönliches Gespräch keine Grundstücksdaten weiterleiten können.
Gern sind wir bei der Wahl Ihres Traumgrundstückes behilflich!
Natürlich können wir ihren Haustraum auch auf einem anderen Grundstück realisieren, lassen Sie sich dazu in einem unverbindlichen Gespräch zu Ihrem Bauvorhaben beraten.
Thomas Heitz
0160/7038141
thomas.heitz@streif.de
Das Haus ist auf einem realen Baugrundstück geplant oder auf einem Grundstück in einer Planungsphase. Das Grundstück erwerben Sie über den beauftragten Immobilienmakler direkt vom Eigentümer. Der Preis des Grundstücks ist im Angebotspreis bereits eingerechnet.
Bitte haben Sie Verständnis dafür, dass wir ohne ein persönliches Gespräch keine Grundstücksdaten weiterleiten können.
Gern sind wir bei der Wahl Ihres Traumgrundstückes behilflich!
Natürlich können wir ihren Haustraum auch auf einem anderen Grundstück realisieren, lassen Sie sich dazu in einem unverbindlichen Gespräch zu Ihrem Bauvorhaben beraten.
Thomas Heitz
0160/7038141
thomas.heitz@streif.de
Anbieter kontaktieren
Kontakt
| Telefon | +49 681 70947955 |
| Mobil | +49 160 7038141 |
| Website | www.streif.de |
