/ Gemütlichkeit und Komfort miteinander vereint!
175 m²
Wohnfläche
503,27 m²
Nutzfläche
immobilien.de Nr.: 9193692
Objektnummer: 2-8019360
Preise & Kosten
| Kaufpreis | Auf Anfrage |
| Nebenkosten | keine Angabe |
| Maklerprovision | 3,57 % |
Größe & Zustand
| Wohnfläche | 175 m² |
| Nutzfläche | 503,27 m² |
| Grundstücksfläche | 501 m² |
| Baujahr | 1900 |
| Verfügbar ab | nach Vereinbarung |
Energie
| Energieausweistyp | Bedarfsausweis |
| Ausstellungsdatum | 21. 05. 2025 |
| Gültig bis | Sun May 20 00:00:00 CEST 2035 |
| Energieeffizienzklasse | H |
| Endenergiebedarf | 294,5 |
| Heizungsart | Zentralheizung |
| Wesentlicher Energieträger | GAS |
| Energieträger/Befeuerung | Gas |
Objektbeschreibung
In idyllischer Lage von Züschen erwartet Sie dieser charmante Gasthof mit angeschlossener Pension ein echtes Schmuckstück mit Geschichte und Zukunft. Das Ursprungsbaujahr um 1900 verleiht dem Gebäude Charakter, während laufende Modernisierungen für einen zeitgemäßen und gepflegten Zustand sorgen.
Der gemütliche Gastraum bietet Platz für rund 100 Gäste und lädt mit seinem einladenden Ambiente zum Verweilen ein. Im Außenbereich genießen Besucher die naturnahe Umgebung bei Speisen und Getränken in ruhiger Atmosphäre.
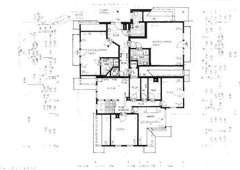
Die Pension verfügt über sieben großzügige Komfort-Gästezimmer, teils mit Balkon oder Dachterrasse. Einige Zimmer sind als Familienzimmer nutzbar und bieten zusätzliche Schlafmöglichkeiten.
Zur Betreiberwohnung gehört eine Fläche von rund 175 m² ideal für komfortables Wohnen direkt vor Ort. Insgesamt stehen ca. 503 m² Nutzfläche zur Verfügung.
Aber auch für diejenigen, die Ihre Vorstellungen und Ideen mit dieser Immobilie umsetzen möchten- es gibt verschiedene und vielfältige Nutzungsmöglichkeiten
Der laufende Betrieb befindet sich in einem technisch wie optisch hervorragenden Zustand. Eine kurzfristige Übernahme ist problemlos möglich ideal für alle, die ihren Traum von Gastronomie und Gastfreundschaft inmitten der Natur verwirklichen möchten.
Der gemütliche Gastraum bietet Platz für rund 100 Gäste und lädt mit seinem einladenden Ambiente zum Verweilen ein. Im Außenbereich genießen Besucher die naturnahe Umgebung bei Speisen und Getränken in ruhiger Atmosphäre.
Die Pension verfügt über sieben großzügige Komfort-Gästezimmer, teils mit Balkon oder Dachterrasse. Einige Zimmer sind als Familienzimmer nutzbar und bieten zusätzliche Schlafmöglichkeiten.
Zur Betreiberwohnung gehört eine Fläche von rund 175 m² ideal für komfortables Wohnen direkt vor Ort. Insgesamt stehen ca. 503 m² Nutzfläche zur Verfügung.
Aber auch für diejenigen, die Ihre Vorstellungen und Ideen mit dieser Immobilie umsetzen möchten- es gibt verschiedene und vielfältige Nutzungsmöglichkeiten
Der laufende Betrieb befindet sich in einem technisch wie optisch hervorragenden Zustand. Eine kurzfristige Übernahme ist problemlos möglich ideal für alle, die ihren Traum von Gastronomie und Gastfreundschaft inmitten der Natur verwirklichen möchten.
Lage des Objektes
Winterberg-Züschen ist ein charmantes Dorf im Sauerland. Umgeben von bewaldeten Hügeln und grünen Wiesen bietet es vielfältige Freizeitmöglichkeiten. Im Winter ziehen Skipisten und Langlaufloipen zahlreiche Wintersportler an, während im Sommer Wanderwege und Radwege genutzt werden. Die traditionelle Architektur und die entspannte Atmosphäre machen Züschen zu einem beliebten Ziel für Urlauber.
Anbieter kontaktieren
Anbieter
Volksbank Sauerland Immobilien GmbH
Drostenfeld 2-8
59759 Arnsberg
Kontakt
| Telefon | 02981 9290-3840 |
| Website | die-volksbank-makler.de |
