Ideal für Kapitalanleger und Investoren! Wohnanlage mit 6 WE in zentrumsnaher Lage von Rastatt.
650.000 €
Kaufpreis
412,57 m²
Wohnfläche
17
Zimmer
immobilien.de Nr.: 9191776
Objektnummer: 1006
Preise & Kosten
| Kaufpreis | 650.000 € |
| Nebenkosten | keine Angabe |
| Maklerprovision | 3,57 % inkl. MwSt. |
Größe & Zustand
| Wohnfläche | 412,57 m² |
| Grundstücksfläche | 281 m² |
| Zimmer | 17 |
| Baujahr | 1910 |
| Verfügbar ab | keine Angabe |
Energie
| Energieausweistyp | Verbrauch |
| Gültig bis | 2034-06-23 |
| Baujahr (laut Energieausweis) | 1910 |
| Energieeffizienzklasse | F |
| Energieverbrauchkennwert | 199.10 kWh/(m²*a) |
| Heizungsart | Etagenheizung |
| Wesentlicher Energieträger | Gas |
| Energieträger/Befeuerung | Gas |
Objektbeschreibung
Entdecken Sie dieses historische Mehrfamilienhaus im Herzen von Rastatt! Der ca. im Jahr 1910 erbaute Altbau erstreckt sich über drei Etagen und bietet eine großzügige Wohnfläche von ca. 413 m².
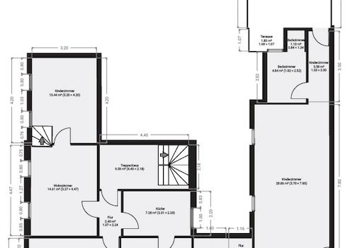
Davon befinden sich im Vorderhaus 5 Wohneinheiten und im Hinterhaus eine Wohneinheit:
EG rechts: 5 Zi. Whg mit ca. 116 m² mit Küche, zwei Bädern und einer Dachterrasse
OG rechts: 2 Zi. Whg mit ca. 50 m² mit Küche und Bad
OG links: 2 Zi. Whg mit ca. 52 m² mit Küche, Bad und separatem WC
DG rechts: 2 Zi. Whg mit ca. 41 m² mit Küche und Bad
DG links: 3 Zi. Whg mit ca. 43 m² mit Küche und Bad
EG hinten: 4 Zi. Whg mit ca. 111 m² mit offener Küche, Bad, Gäste WC und Terrasse im Innenhof
Diese Wohneinheit wurde in 2012 neu ausgebaut.
Folgende Modernisierungsmaßnahmen wurden im Laufe der Zeit getätigt:
- Kunststoffisoglasfenster ca. 1990/2000
- Gastherme 2012/2022/2024
- Laminat- und Fließenböden 2012/2021/2022/2024
- teilweise Dachflächenfenster
- teilweise elektrische Außenrollläden
- teilweise Wohnungseingangstüren
Das Vordergebäude ist voll unterkellert im hinteren Gebäude gibt es einen weiteren Kellerraum.
Alle Wohnungen sind gut vermietet. Jahresnettomieteinnahmen liegen bei ca. 37.900,-- €
Nutzen Sie die Chance, dieses einzigartige Mehrfamilienhaus zu erwerben und profitieren Sie von einer zentralen Lage in Rastatt sowie der Möglichkeit, ein Stück Geschichte Ihr Eigen zu nennen.
Davon befinden sich im Vorderhaus 5 Wohneinheiten und im Hinterhaus eine Wohneinheit:
EG rechts: 5 Zi. Whg mit ca. 116 m² mit Küche, zwei Bädern und einer Dachterrasse
OG rechts: 2 Zi. Whg mit ca. 50 m² mit Küche und Bad
OG links: 2 Zi. Whg mit ca. 52 m² mit Küche, Bad und separatem WC
DG rechts: 2 Zi. Whg mit ca. 41 m² mit Küche und Bad
DG links: 3 Zi. Whg mit ca. 43 m² mit Küche und Bad
EG hinten: 4 Zi. Whg mit ca. 111 m² mit offener Küche, Bad, Gäste WC und Terrasse im Innenhof
Diese Wohneinheit wurde in 2012 neu ausgebaut.
Folgende Modernisierungsmaßnahmen wurden im Laufe der Zeit getätigt:
- Kunststoffisoglasfenster ca. 1990/2000
- Gastherme 2012/2022/2024
- Laminat- und Fließenböden 2012/2021/2022/2024
- teilweise Dachflächenfenster
- teilweise elektrische Außenrollläden
- teilweise Wohnungseingangstüren
Das Vordergebäude ist voll unterkellert im hinteren Gebäude gibt es einen weiteren Kellerraum.
Alle Wohnungen sind gut vermietet. Jahresnettomieteinnahmen liegen bei ca. 37.900,-- €
Nutzen Sie die Chance, dieses einzigartige Mehrfamilienhaus zu erwerben und profitieren Sie von einer zentralen Lage in Rastatt sowie der Möglichkeit, ein Stück Geschichte Ihr Eigen zu nennen.
Ausstattung
| Anzahl der Etagen im Haus | 3 |
| Bad | 6 |
| Keller |
- Gastherme
- Kunststofffenster
- Laminat-, Fliesen- und Teppichböden
- teilweise elektrische Außenrollläden
- Kunststofffenster
- Laminat-, Fliesen- und Teppichböden
- teilweise elektrische Außenrollläden
Lage des Objektes
Das angebotene Mehrfamilienhaus befindet sich in der Nähe des Stadtzentrums in 76437 Rastatt, und genießt eine hervorragende Lage in der Stadt. Rastatt, bekannt für seine barocke Architektur und seine lebendige Kulturszene, bietet eine ideale Symbiose aus urbanem Leben und naturnahem Wohnen.
Die Lage ist eine ruhige und dennoch zentrale, die eine ausgezeichnete Anbindung an alle wichtigen Einrichtungen der Stadt gewährleistet. In unmittelbarer Nähe befinden sich Schulen, Kindergärten, Einkaufsmöglichkeiten sowie zahlreiche Freizeit- und Erholungsmöglichkeiten. Der Bahnhof Rastatt ist schnell erreichbar und bietet schnelle Verbindungen in die umliegenden Städte wie Karlsruhe, Baden-Baden und Straßburg, was diese Lage besonders attraktiv für Pendler macht.
Die Anbindung an die Bundesautobahn A5 und die Bundesstraße B36 ermöglicht eine unkomplizierte Erreichbarkeit der umliegenden Regionen, was sowohl für Berufspendler als auch für Ausflüge in die nahe gelegenen Naturgebiete wie den Schwarzwald von großem Vorteil ist.
Dank der zentralen Lage innerhalb Rastatts sind die kulturellen Highlights wie das Residenzschloss Rastatt, diverse Museen und Theater sowie zahlreiche Restaurants und Cafés bequem zu Fuß oder mit dem Fahrrad erreichbar.
Die Wohnlage kombiniert somit ruhiges Wohnen in einer großzügigen, familienfreundlichen Umgebung mit der Nähe zu allen urbanen Annehmlichkeiten und Verkehrsknotenpunkten, was sie zu einer äußerst begehrten Adresse in Rastatt macht.
Die Lage ist eine ruhige und dennoch zentrale, die eine ausgezeichnete Anbindung an alle wichtigen Einrichtungen der Stadt gewährleistet. In unmittelbarer Nähe befinden sich Schulen, Kindergärten, Einkaufsmöglichkeiten sowie zahlreiche Freizeit- und Erholungsmöglichkeiten. Der Bahnhof Rastatt ist schnell erreichbar und bietet schnelle Verbindungen in die umliegenden Städte wie Karlsruhe, Baden-Baden und Straßburg, was diese Lage besonders attraktiv für Pendler macht.
Die Anbindung an die Bundesautobahn A5 und die Bundesstraße B36 ermöglicht eine unkomplizierte Erreichbarkeit der umliegenden Regionen, was sowohl für Berufspendler als auch für Ausflüge in die nahe gelegenen Naturgebiete wie den Schwarzwald von großem Vorteil ist.
Dank der zentralen Lage innerhalb Rastatts sind die kulturellen Highlights wie das Residenzschloss Rastatt, diverse Museen und Theater sowie zahlreiche Restaurants und Cafés bequem zu Fuß oder mit dem Fahrrad erreichbar.
Die Wohnlage kombiniert somit ruhiges Wohnen in einer großzügigen, familienfreundlichen Umgebung mit der Nähe zu allen urbanen Annehmlichkeiten und Verkehrsknotenpunkten, was sie zu einer äußerst begehrten Adresse in Rastatt macht.
Anbieter kontaktieren
Anbieter
VR-Bank in Mittelbaden eG
Hügelsheimer Str. 6
76473 Iffezheim
Kontakt
| Telefon | 004972296022425 |
| Mobil | 00491727206844 |
| Website | www.vr-miba.de |
