ACHTUNG KAPITALANLEGER!!! Zwei zum Preis von Einem!!!
339.000 €
Kaufpreis
261,55 m²
Wohnfläche
10
Zimmer
immobilien.de Nr.: 9172920
Objektnummer: FALC-AnPa-63613
Preise & Kosten
| Kaufpreis | 339.000 € |
| Nebenkosten | keine Angabe |
| Kaufpreis pro m² | 835,9 € |
| Maklerprovision | 3,57% incl. MwSt vom notariellen Kaufpreis |
Größe & Zustand
| Wohnfläche | 261,55 m² |
| Gesamtfläche | 405,55 m² |
| Grundstücksfläche | 443 m² |
| Zimmer | 10 |
| Baujahr | 1990 |
| Verfügbar ab | keine Angabe |
| Zustand | Gepflegt |
Objektbeschreibung
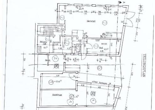
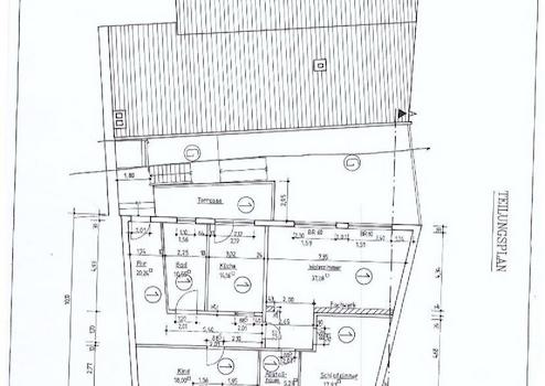
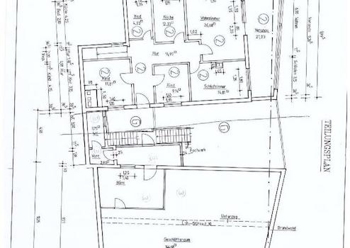
Willkommen in Ihrem neuen Anlageobjekt, welches aus einem Wohn-/Geschäftshaus und aus einem reinen Wohnhaus besteht. Mit einem Kaufpreis von 329.000,- EUR bietet dieses Objekt auf einer Grundstücksfläche von ca. 443 qm, einer Gewerbefläche von ca. 144 qm und einer Wohnfläche von insgesamt ca. 261,55 qm die perfekte Gelegenheit, Kapital sinnvoll zu investieren. Zehn geräumige Zimmer, verteilt auf beide Gebäude, eröffnen vielfältige Nutzungsmöglichkeiten, sei es zur privaten Vermietung oder als Gewerbeflächen.
Das äußere Erscheinungsbild überzeugt durch eine solide Bauweise mit ansprechenden Materialien. Der Mix aus verputzten Wänden und Backsteinelementen verleiht dem Gebäude einen modernen, jedoch zeitlosen Look. Die vorhandenen Balkone bieten zusätzlichen Raum im Freien zum Verweilen und Entspannen, der bei Mietern stets beliebt ist.
Im Inneren sind die Räume hell gestaltet und bieten durch große Fenster viel Tageslicht, was ein freundliches und einladendes Ambiente schafft. Der Keller im Wohn- und Geschäftshaus bietet zusätzlichen Stauraum und erhöht die Attraktivität des Objekts. Die Fliesen- und Laminatböden sind pflegeleicht und langlebig, was zukünftige Instandhaltungskosten niedrig hält.
Die Lage des Objekts ermöglicht eine optimale Anbindung an das Verkehrsnetz und Infrastruktur. In der Nähe befinden sich Supermärkte, Restaurants und andere Annehmlichkeiten, was die Attraktivität für potenzielle Mieter erhöht.
Für Kapitalanleger bietet dieses Objekt ein ideales Potenzial zur Wertsteigerung und eine attraktive Möglichkeit zur Erzielung von Mieteinnahmen. Die aktuelle Jahresnettomiete beträgt 30.282,- EUR. Nutzen Sie Ihre Chance, in eine Immobilie mit vielfältigen Nutzungsmöglichkeiten und solider Bauqualität zu investieren.
Das äußere Erscheinungsbild überzeugt durch eine solide Bauweise mit ansprechenden Materialien. Der Mix aus verputzten Wänden und Backsteinelementen verleiht dem Gebäude einen modernen, jedoch zeitlosen Look. Die vorhandenen Balkone bieten zusätzlichen Raum im Freien zum Verweilen und Entspannen, der bei Mietern stets beliebt ist.
Im Inneren sind die Räume hell gestaltet und bieten durch große Fenster viel Tageslicht, was ein freundliches und einladendes Ambiente schafft. Der Keller im Wohn- und Geschäftshaus bietet zusätzlichen Stauraum und erhöht die Attraktivität des Objekts. Die Fliesen- und Laminatböden sind pflegeleicht und langlebig, was zukünftige Instandhaltungskosten niedrig hält.
Die Lage des Objekts ermöglicht eine optimale Anbindung an das Verkehrsnetz und Infrastruktur. In der Nähe befinden sich Supermärkte, Restaurants und andere Annehmlichkeiten, was die Attraktivität für potenzielle Mieter erhöht.
Für Kapitalanleger bietet dieses Objekt ein ideales Potenzial zur Wertsteigerung und eine attraktive Möglichkeit zur Erzielung von Mieteinnahmen. Die aktuelle Jahresnettomiete beträgt 30.282,- EUR. Nutzen Sie Ihre Chance, in eine Immobilie mit vielfältigen Nutzungsmöglichkeiten und solider Bauqualität zu investieren.
Ausstattung
| Anzahl der Etagen im Haus | 2 |
| Küche | Einbauküche |
| Boden | Fliesen, Teppich, Laminat |
| Balkone | 1 |
| Keller |
+ mit Öl betriebene Heizungsanlage vorhanden
+ Laminat- und Fliesenbodenbeläge für einen schicken Look
+ Großzügige Balkone ideal zum Entspannen und Verweilen
+ Praktischer Keller im Vorderhaus für zusätzlichen Stauraum
+ Raumaufteilung mit insgesamt 10 Zimmern, perfekt für große Familien
+ Gemütlicher Kamin im Wohnbereich des Hinterhauses
+ Helle, moderne Küche mit ausreichend Platz zur Entfaltung
+ Fenster mit Doppelverglasung
+ Stilvolle, moderne Badezimmer
+ Attraktive Wohnfläche von insgesamt ca. 261.55 qm und einer Gewerbefläche von ca. 144 qm verteilt auf zwei Häuser auf einem ca. 443 qm großen Grundstück
+ Parkmöglichkeiten auf Außenstellplätzen inklusive geräumiger Garage
+ Laminat- und Fliesenbodenbeläge für einen schicken Look
+ Großzügige Balkone ideal zum Entspannen und Verweilen
+ Praktischer Keller im Vorderhaus für zusätzlichen Stauraum
+ Raumaufteilung mit insgesamt 10 Zimmern, perfekt für große Familien
+ Gemütlicher Kamin im Wohnbereich des Hinterhauses
+ Helle, moderne Küche mit ausreichend Platz zur Entfaltung
+ Fenster mit Doppelverglasung
+ Stilvolle, moderne Badezimmer
+ Attraktive Wohnfläche von insgesamt ca. 261.55 qm und einer Gewerbefläche von ca. 144 qm verteilt auf zwei Häuser auf einem ca. 443 qm großen Grundstück
+ Parkmöglichkeiten auf Außenstellplätzen inklusive geräumiger Garage
Sonstige Informationen
Entdecken Sie ein charmantes Refugium in einer ruhigen, aber zentralen Lage, inmitten der grünen Landschaft von Bad Sülze. Diese großzügige Wohn- und Geschäftsimmobilie bietet reichlich Platz für individuelle Gestaltungsmöglichkeiten.
Die ruhige Straße, in der dieses Haus gelegen ist, besticht durch eine malerische Umgebung und eine freundliche Nachbarschaft. Trotz der Gelassenheit sind alle wichtigen Einrichtungen in der Nähe. Innerhalb von ca. 200 Metern finden Sie einen Netto-Supermarkt und eine Apotheke, was den täglichen Einkauf und die Gesundheitsversorgung zum Kinderspiel macht. Für kulinarische Erlebnisse sorgt ein nahegelegenes Restaurant in etwa 260 Metern Entfernung.
Als echter Pluspunkt der Lage erweist sich die ausgezeichnete Anbindung an den öffentlichen Nahverkehr. Zwei Bushaltestellen sind fußläufig bequem erreichbar. Die Entfernung beträgt ca. 100 bzw. 400 Meter. Vom nächsten internationalen Flughafen Rostock-Laage trennen Sie etwa 58 Kilometer, während Sie die Autobahnen A19 und A20 in rund 20 Minuten mit dem Auto erreichen können, was für Pendler oder Reisefreudige von großem Vorteil ist.
Sport und Freizeit kommen ebenfalls nicht zu kurz. Zwei Parks in unmittelbarer Nähe bieten erholsame Rückzugsmöglichkeiten für Spaziergänge oder Outdoor-Aktivitäten, wobei der nächste Park nur ca. 130 Meter vom Haus entfernt ist.
Für Familien bietet die Lage eine hervorragende Infrastruktur, darunter Schulen und ein Kindergarten, die in der Umgebung liegen. Trotz eines gewissen Anteils an Leerstand in der Region genießt der Ort durch seine Naturverbundenheit und die ruhige Atmosphäre eine hohe Lebensqualität.
Der gewerbliche Mietvertrag für die Wohneinheit im Hinterhaus wurde zum 01.12.2023 auf zwei Jahre, d.h. bis zum 30.11.2025 abgeschlossen. Danach wird das Mietverhältnis zum unbefristeten Mietverhältnis, welches mit einer Frist von 3 Monaten schriftlich zum Monatsende gekündigt werden kann. Die Wohnung ist derzeit an eine hochmoderne und regional bekannte Klinik zur Unterbringung medizinischer Mitarbeiter vermietet.
Die Nettokaltmiete beträgt 1.291,50 EUR pro Monat.
Der Mietvertrag für die Gewerbefläche im Vorderhaus wurde zum 01.10.2023 bis zum 31.08.2025 abgeschlossen. Im Anschluss an die festgesetzte Mietzeit bis 31.08.2025 zwischen Mieter und Vermieter, kann an Stelle des Mieter der aktuelle Nutzer treten. Der Mieter kann das Mietverhältnis jeweils einseitig verlängern, wenn er mit einer Frist von drei Monaten zum Ende der jeweiligen Mietlaufzeit die Mietvertragsverlängerung schriftlich mitteilt. Der Mieter kann einseitig festlegen, um welchen Zeitraum das Mietverhältnis verlängert wird, da die Verlängerung von der Förderung der Mietzahlungen durch Förderprojekte abhängig ist. Eine Verlängerung muss mindestens ein Jahr betragen. Kürzere Verlängerungen mit Zustimmung des Vermieters möglich.
Die Nettokaltmiete beträgt 432,- EUR pro Monat.
Der Mietvertrag für die Wohneinheit im Vorderhaus wurde zum 01.05.2022 wurde auf unbestimmte Dauer geschlossen.
Die Nettokaltmiete beträgt 800,- EUR pro Monat.
Gesamt NKM pro Monat 2.523,50 EUR
Somit beträgt die Jahreskaltmiete gesamt von 30.282,- EUR.
Wir bieten Ihnen eine kostenlose 24/7 Hotline (0800-6460646) an. Bei Interesse fordern Sie einfach das Exposé mit einigen weiteren Inhalten an. Dieses wird Ihnen automatisch i.d.R. kurzfristig zugesandt.
Eine Besichtigung sagt mehr als jede Beschreibung, bei Interesse zögern Sie nicht und vereinbaren Sie einen unverbindlichen Termin.
Wir bieten nicht nur eine kostenlose Hotline, sondern auch einen Service am Wochenende an.
Bei Interesse geben Sie bitte immer Ihre vollständige ADRESSE und RUFNUMMER an!
Ihr Ansprechpartner: Antje Pabst
Weidgasse 11a
64625 Bensheim
Die Objektbeschreibung beruht ganz oder zum Teil auf Angaben des Eigentümers und ist Vor-Ort nachprüfbar. Für die Richtigkeit oder Vollständigkeit übernehmen wir keine Gewähr.
Beim ausgewiesenen Preis handelt es sich um den Angebotspreis, der sich durch Verhandlungen auch verändern kann. Die im Exposé ausgewiesene Käuferprovision ist nach Abschluss des notariellen Kaufvertrages fällig.
Die ruhige Straße, in der dieses Haus gelegen ist, besticht durch eine malerische Umgebung und eine freundliche Nachbarschaft. Trotz der Gelassenheit sind alle wichtigen Einrichtungen in der Nähe. Innerhalb von ca. 200 Metern finden Sie einen Netto-Supermarkt und eine Apotheke, was den täglichen Einkauf und die Gesundheitsversorgung zum Kinderspiel macht. Für kulinarische Erlebnisse sorgt ein nahegelegenes Restaurant in etwa 260 Metern Entfernung.
Als echter Pluspunkt der Lage erweist sich die ausgezeichnete Anbindung an den öffentlichen Nahverkehr. Zwei Bushaltestellen sind fußläufig bequem erreichbar. Die Entfernung beträgt ca. 100 bzw. 400 Meter. Vom nächsten internationalen Flughafen Rostock-Laage trennen Sie etwa 58 Kilometer, während Sie die Autobahnen A19 und A20 in rund 20 Minuten mit dem Auto erreichen können, was für Pendler oder Reisefreudige von großem Vorteil ist.
Sport und Freizeit kommen ebenfalls nicht zu kurz. Zwei Parks in unmittelbarer Nähe bieten erholsame Rückzugsmöglichkeiten für Spaziergänge oder Outdoor-Aktivitäten, wobei der nächste Park nur ca. 130 Meter vom Haus entfernt ist.
Für Familien bietet die Lage eine hervorragende Infrastruktur, darunter Schulen und ein Kindergarten, die in der Umgebung liegen. Trotz eines gewissen Anteils an Leerstand in der Region genießt der Ort durch seine Naturverbundenheit und die ruhige Atmosphäre eine hohe Lebensqualität.
Der gewerbliche Mietvertrag für die Wohneinheit im Hinterhaus wurde zum 01.12.2023 auf zwei Jahre, d.h. bis zum 30.11.2025 abgeschlossen. Danach wird das Mietverhältnis zum unbefristeten Mietverhältnis, welches mit einer Frist von 3 Monaten schriftlich zum Monatsende gekündigt werden kann. Die Wohnung ist derzeit an eine hochmoderne und regional bekannte Klinik zur Unterbringung medizinischer Mitarbeiter vermietet.
Die Nettokaltmiete beträgt 1.291,50 EUR pro Monat.
Der Mietvertrag für die Gewerbefläche im Vorderhaus wurde zum 01.10.2023 bis zum 31.08.2025 abgeschlossen. Im Anschluss an die festgesetzte Mietzeit bis 31.08.2025 zwischen Mieter und Vermieter, kann an Stelle des Mieter der aktuelle Nutzer treten. Der Mieter kann das Mietverhältnis jeweils einseitig verlängern, wenn er mit einer Frist von drei Monaten zum Ende der jeweiligen Mietlaufzeit die Mietvertragsverlängerung schriftlich mitteilt. Der Mieter kann einseitig festlegen, um welchen Zeitraum das Mietverhältnis verlängert wird, da die Verlängerung von der Förderung der Mietzahlungen durch Förderprojekte abhängig ist. Eine Verlängerung muss mindestens ein Jahr betragen. Kürzere Verlängerungen mit Zustimmung des Vermieters möglich.
Die Nettokaltmiete beträgt 432,- EUR pro Monat.
Der Mietvertrag für die Wohneinheit im Vorderhaus wurde zum 01.05.2022 wurde auf unbestimmte Dauer geschlossen.
Die Nettokaltmiete beträgt 800,- EUR pro Monat.
Gesamt NKM pro Monat 2.523,50 EUR
Somit beträgt die Jahreskaltmiete gesamt von 30.282,- EUR.
Wir bieten Ihnen eine kostenlose 24/7 Hotline (0800-6460646) an. Bei Interesse fordern Sie einfach das Exposé mit einigen weiteren Inhalten an. Dieses wird Ihnen automatisch i.d.R. kurzfristig zugesandt.
Eine Besichtigung sagt mehr als jede Beschreibung, bei Interesse zögern Sie nicht und vereinbaren Sie einen unverbindlichen Termin.
Wir bieten nicht nur eine kostenlose Hotline, sondern auch einen Service am Wochenende an.
Bei Interesse geben Sie bitte immer Ihre vollständige ADRESSE und RUFNUMMER an!
Ihr Ansprechpartner: Antje Pabst
Weidgasse 11a
64625 Bensheim
Die Objektbeschreibung beruht ganz oder zum Teil auf Angaben des Eigentümers und ist Vor-Ort nachprüfbar. Für die Richtigkeit oder Vollständigkeit übernehmen wir keine Gewähr.
Beim ausgewiesenen Preis handelt es sich um den Angebotspreis, der sich durch Verhandlungen auch verändern kann. Die im Exposé ausgewiesene Käuferprovision ist nach Abschluss des notariellen Kaufvertrages fällig.
Lage des Objektes
Die hier angebotene Wohn- und Gewerbeimmobilie, bestehend aus zwei Häusern, bietet Kapitalanlegern eine vielversprechende Gelegenheit in einer aufstrebenden Lage. Mit einem modernen Mix aus Ruhe und guter Infrastruktur ist sie ideal für nachhaltige Investitionen.
Die Umgebung ist geprägt von einer angenehmen Kleinstadtatmosphäre. Die Straße selbst zeichnet sich durch charmante Häuschen und viel Grün aus, was für ein einladendes Umfeld sorgt. Die geringe Bevölkerungsdichte mit einem Durchschnittsalter von 39 Jahren zeigt das Potenzial für zukünftige Entwicklungen in der Region. Dazu kommt ein moderater Leerstand von 21 Prozent, wodurch sich attraktive Vermietungsmöglichkeiten bieten.
Für Kapitalanleger besonders interessant sind die vier wichtigsten Points of Interest:
1. **Supermärktenähe** – Der Netto ist nur rund 200 Meter entfernt und bietet den Bewohnern eine hervorragende Versorgungsinfrastruktur für den täglichen Bedarf.
2. **Gesundheitsversorgung** – Mit der MEDIAN Klinik in etwa 450 Metern Entfernung ist die medizinische Versorgung bestens abgedeckt.
3. **Bildungseinrichtungen** – Die nahegelegene Dahlien-Grundschule in ca. 700 Metern Entfernung sorgt für eine gute Bildungslandschaft, die besonders Familien anspricht.
4. **Freizeit- und Erholungsangebote** – Der Kurpark Bad Sülze, ebenfalls fußläufig erreichbar, lädt zum Entspannen und Verweilen in der Natur ein.
Verkehrsanbindungstechnisch ist die Lage mit einem öffentlichen Verkehrsnetz gesegnet, das in ca. 100 Metern erreichbar ist. Die Autobahn A20 ist in nur etwa 5,4 Kilometern zu erreichen, während der nächste internationale Flughafen rund 60 Kilometer entfernt liegt. Dies ist besonders für mobile Berufspendler von großem Vorteil.
Insgesamt bietet diese Immobilie das ideale Setting für eine wertbeständige Investition. Die gute Anbindung, zusammen mit der wachsenden Infrastruktur und dem beschaulichen, grünen Umfeld, macht sie zu einer erstklassigen Wahl für zukunftsorientierte Kapitalanleger.
Die Umgebung ist geprägt von einer angenehmen Kleinstadtatmosphäre. Die Straße selbst zeichnet sich durch charmante Häuschen und viel Grün aus, was für ein einladendes Umfeld sorgt. Die geringe Bevölkerungsdichte mit einem Durchschnittsalter von 39 Jahren zeigt das Potenzial für zukünftige Entwicklungen in der Region. Dazu kommt ein moderater Leerstand von 21 Prozent, wodurch sich attraktive Vermietungsmöglichkeiten bieten.
Für Kapitalanleger besonders interessant sind die vier wichtigsten Points of Interest:
1. **Supermärktenähe** – Der Netto ist nur rund 200 Meter entfernt und bietet den Bewohnern eine hervorragende Versorgungsinfrastruktur für den täglichen Bedarf.
2. **Gesundheitsversorgung** – Mit der MEDIAN Klinik in etwa 450 Metern Entfernung ist die medizinische Versorgung bestens abgedeckt.
3. **Bildungseinrichtungen** – Die nahegelegene Dahlien-Grundschule in ca. 700 Metern Entfernung sorgt für eine gute Bildungslandschaft, die besonders Familien anspricht.
4. **Freizeit- und Erholungsangebote** – Der Kurpark Bad Sülze, ebenfalls fußläufig erreichbar, lädt zum Entspannen und Verweilen in der Natur ein.
Verkehrsanbindungstechnisch ist die Lage mit einem öffentlichen Verkehrsnetz gesegnet, das in ca. 100 Metern erreichbar ist. Die Autobahn A20 ist in nur etwa 5,4 Kilometern zu erreichen, während der nächste internationale Flughafen rund 60 Kilometer entfernt liegt. Dies ist besonders für mobile Berufspendler von großem Vorteil.
Insgesamt bietet diese Immobilie das ideale Setting für eine wertbeständige Investition. Die gute Anbindung, zusammen mit der wachsenden Infrastruktur und dem beschaulichen, grünen Umfeld, macht sie zu einer erstklassigen Wahl für zukunftsorientierte Kapitalanleger.
Anbieter kontaktieren
Anbieter
FALC Immobilien GmbH & Co. KG
Humperdickstr. 3
53773 Hennef (Sieg)
Kontakt
| Telefon | +49 6251 8275110 |
| Mobil | +49 179 2657380 |
| Fax | +49 2242 9010319 |
| Website | www.falcimmo.de |
