Grenznahes DHH-Juwel mit Apartment – top Lage zur Schweiz! - Vermarktung gestartet!
540.000 €
Kaufpreis
209,5 m²
Wohnfläche
7
Zimmer
immobilien.de Nr.: 9166572
Objektnummer: FALC-THB-67733
Preise & Kosten
| Kaufpreis | 540.000 € |
| Nebenkosten | keine Angabe |
| Maklerprovision | 3,57 % inkl. MwSt. durch Abwälzung, siehe sonstige Angaben |
Größe & Zustand
| Wohnfläche | 209,5 m² |
| Grundstücksfläche | 546 m² |
| Zimmer | 7 |
| Baujahr | 1966 |
| Letzte Modernisierung | 2015 |
| Verfügbar ab | keine Angabe |
| Zustand | Teil Vollrenoviert |
Energie
| Energieausweistyp | Bedarfsausweis |
| Ausstellungsdatum | 30. 07. 2025 |
| Gültig bis | 29.07.2035 |
| Energieeffizienzklasse | H |
| Endenergiebedarf | 269,6 |
| Wesentlicher Energieträger | Öl |
| Energieträger/Befeuerung | Öl |
Objektbeschreibung
Flexibles Wohnkonzept mit Einliegerwohnung in Gottmadingen
Das ursprüngliche Wohnhaus wurde im Jahr 1966 errichtet und 1980 durch einen durchdachten Anbau erweitert, der zusätzlichen Wohnraum und mehr Flexibilität im Alltag schafft.
Das als Doppelhaus erbaute 2 Familienhaus bietet Ihnen mehr als nur Wohnraum – es schenkt Ihnen Freiheit und Flexibilität für jede Lebensphase. Ob als großzügiges Einfamilienhaus mit separater Einliegerwohnung oder als Zweifamilienhaus mit zwei eigenständigen Wohneinheiten oder in seiner jetzigen Nutzung mit kleinem Apartment: Diese Immobilie passt sich Ihren Bedürfnissen an.
Mit einer Gesamtwohnfläche von ca. 209,5 Quadratmetern und einem Grundstück von ca. 546 Quadratmetern bietet die großzügige Doppelhaushälfte Platz für verschiedenste Lebensentwürfe. Der gepflegte nicht einsehbare Garten wird schnell zu Ihrer persönlichen Ruheoase – perfekt für entspannte Nachmittage, Familienfeiern oder einfach ein gutes Buch im Grünen.
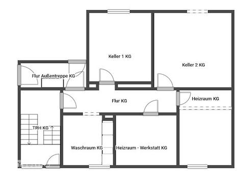
Insgesamt stehen 3 Balkone, ein Negativdachbalkon im OG sowie wie eine großzügige Terrasse zur freien Entfaltung zur Verfügung – ideal, um die Natur zu genießen oder an der frischen Luft zu entspannen. Von der oberen Etage aus genießen Sie zudem einen herrlichen Weitblick in die grüne Umgebung über den Negativbalkon der im Schlafzimmer anschließend ist. Der Keller bietet weiteres Ausbaupotenzial (vorbereitet für einen kleinen Indoor Pool) und eröffnet zusätzliche Möglichkeiten oder kreative Hobbynutzung.
Als Highlight des Hauses ist sicher der Bereich Wohn,- Kaminzimmer hervorzuheben, dieser ladet zu gemütlichen Fernsehabenden, Familienfeiern oder einfach nur zu einem guten Glas Wein bei prasselnden Kaminfeuer, ein.
Die auf dem Dach installierte Photovoltaikanlage sorgt nicht nur für nachhaltige Energie, sondern auch für bares Geld: Nach Abzug des Eigenverbrauchs erzielt sie jährlich zusätzliche Einnahmen von etwa 1.000 bis 2.000 Euro – ein lohnender Beitrag zur Haushaltskasse.
Die separat zugängliche Einliegerwohnung mit zwei Zimmern ist aktuell vermietet und generiert eine monatliche Warmmiete von 450 Euro – eine solide Einnahmequelle mit Potenzial. Der aktuelle Mieter würde sich über eine Fortführung seines Mietverhältnisses freuen.
Im Jahr 2015 wurden nahezu alle Fenster sowie die Haustür erneuert. Diese Modernisierungsmaßnahmen tragen nicht nur zur Energieeffizienz bei, sondern steigern auch den Wohnkomfort und das Sicherheitsgefühl im gesamten Haus.
Aktuell gab es vor einiger Zeit einen Wassereinbruch im Bereich des Negativdachbalkons im OG, welche auch das 1980 erweiterte Kaminzimmer im Erdgeschoss betroffen hatte. Aktuell wurde der Schaden so weit behoben, dass es derzeit zu keinem weiteren Wassereinbruch kommt. Daher sollte das Dach im Bereich des Anbaus und des Negativdachbalkons im OG zeitnah saniert werden. Diese Begebenheit haben wir bereit bei der Kaufpreisfindung unter Berücksichtigung gebracht.
Auf unsere Landingpage halten wir weitere Fotos sowie die Möglichkeit zur virtuellen Besichtigung bereit.
Lagevorteil:
Gottmadingen bietet Ihnen eine hervorragende Infrastruktur mit kurzen Wegen zu Einkaufsmöglichkeiten, Schulen, Kindergärten und öffentlichen Verkehrsmitteln. Die Nähe zur schweizerischen Grenze macht den Standort besonders interessant für Grenzgänger. Auch Städte wie Singen, Konstanz oder Schaffhausen sind schnell erreichbar.
Diese Immobilie ist ideal für Familien mit Platzbedarf, Mehrgenerationenwohnen oder als Kapitalanlage mit Mietoption. Hier wohnen Sie flexibel, naturnah und dennoch bestens angebunden.
Das ursprüngliche Wohnhaus wurde im Jahr 1966 errichtet und 1980 durch einen durchdachten Anbau erweitert, der zusätzlichen Wohnraum und mehr Flexibilität im Alltag schafft.
Das als Doppelhaus erbaute 2 Familienhaus bietet Ihnen mehr als nur Wohnraum – es schenkt Ihnen Freiheit und Flexibilität für jede Lebensphase. Ob als großzügiges Einfamilienhaus mit separater Einliegerwohnung oder als Zweifamilienhaus mit zwei eigenständigen Wohneinheiten oder in seiner jetzigen Nutzung mit kleinem Apartment: Diese Immobilie passt sich Ihren Bedürfnissen an.
Mit einer Gesamtwohnfläche von ca. 209,5 Quadratmetern und einem Grundstück von ca. 546 Quadratmetern bietet die großzügige Doppelhaushälfte Platz für verschiedenste Lebensentwürfe. Der gepflegte nicht einsehbare Garten wird schnell zu Ihrer persönlichen Ruheoase – perfekt für entspannte Nachmittage, Familienfeiern oder einfach ein gutes Buch im Grünen.
Insgesamt stehen 3 Balkone, ein Negativdachbalkon im OG sowie wie eine großzügige Terrasse zur freien Entfaltung zur Verfügung – ideal, um die Natur zu genießen oder an der frischen Luft zu entspannen. Von der oberen Etage aus genießen Sie zudem einen herrlichen Weitblick in die grüne Umgebung über den Negativbalkon der im Schlafzimmer anschließend ist. Der Keller bietet weiteres Ausbaupotenzial (vorbereitet für einen kleinen Indoor Pool) und eröffnet zusätzliche Möglichkeiten oder kreative Hobbynutzung.
Als Highlight des Hauses ist sicher der Bereich Wohn,- Kaminzimmer hervorzuheben, dieser ladet zu gemütlichen Fernsehabenden, Familienfeiern oder einfach nur zu einem guten Glas Wein bei prasselnden Kaminfeuer, ein.
Die auf dem Dach installierte Photovoltaikanlage sorgt nicht nur für nachhaltige Energie, sondern auch für bares Geld: Nach Abzug des Eigenverbrauchs erzielt sie jährlich zusätzliche Einnahmen von etwa 1.000 bis 2.000 Euro – ein lohnender Beitrag zur Haushaltskasse.
Die separat zugängliche Einliegerwohnung mit zwei Zimmern ist aktuell vermietet und generiert eine monatliche Warmmiete von 450 Euro – eine solide Einnahmequelle mit Potenzial. Der aktuelle Mieter würde sich über eine Fortführung seines Mietverhältnisses freuen.
Im Jahr 2015 wurden nahezu alle Fenster sowie die Haustür erneuert. Diese Modernisierungsmaßnahmen tragen nicht nur zur Energieeffizienz bei, sondern steigern auch den Wohnkomfort und das Sicherheitsgefühl im gesamten Haus.
Aktuell gab es vor einiger Zeit einen Wassereinbruch im Bereich des Negativdachbalkons im OG, welche auch das 1980 erweiterte Kaminzimmer im Erdgeschoss betroffen hatte. Aktuell wurde der Schaden so weit behoben, dass es derzeit zu keinem weiteren Wassereinbruch kommt. Daher sollte das Dach im Bereich des Anbaus und des Negativdachbalkons im OG zeitnah saniert werden. Diese Begebenheit haben wir bereit bei der Kaufpreisfindung unter Berücksichtigung gebracht.
Auf unsere Landingpage halten wir weitere Fotos sowie die Möglichkeit zur virtuellen Besichtigung bereit.
Lagevorteil:
Gottmadingen bietet Ihnen eine hervorragende Infrastruktur mit kurzen Wegen zu Einkaufsmöglichkeiten, Schulen, Kindergärten und öffentlichen Verkehrsmitteln. Die Nähe zur schweizerischen Grenze macht den Standort besonders interessant für Grenzgänger. Auch Städte wie Singen, Konstanz oder Schaffhausen sind schnell erreichbar.
Diese Immobilie ist ideal für Familien mit Platzbedarf, Mehrgenerationenwohnen oder als Kapitalanlage mit Mietoption. Hier wohnen Sie flexibel, naturnah und dennoch bestens angebunden.
Ausstattung
| Anzahl der Etagen im Haus | 2 |
| Küche | Einbauküche |
| Balkone | 4 |
| Garten | |
| Terrassen | 1 |
| Keller |
- 2 Wohneinheiten, derzeit Hauptwohnung + Apartment, Umnutzung oder 2 Familienhaus oder EFH möglich
- PV Anlage
- 1980 Modernisierung und Erweiterungsanbau mit Negativdachbalkon
- Gesamtwohnfläche ca. 209,5 m²
- Grundstücksgröße ca. 546 m²
- Ruhiger, nicht einsehbarer Garten
- 7 Zimmer
- 2 Küchen (Einbauküche EG)
- 1 Gäste WC
- 2 Bäder
- 3 Balkone
- 1 Negativdachbalkon
- 1 Terrasse
- 1 Stellplatz
- 1 Garage
- Getrenntes Treppenhaus
- Zusätzliche Flächen im voll unterkellerten Keller
- Zusätzliche Flächen im Dachboden / Dachspitz
- PV Anlage
- 1980 Modernisierung und Erweiterungsanbau mit Negativdachbalkon
- Gesamtwohnfläche ca. 209,5 m²
- Grundstücksgröße ca. 546 m²
- Ruhiger, nicht einsehbarer Garten
- 7 Zimmer
- 2 Küchen (Einbauküche EG)
- 1 Gäste WC
- 2 Bäder
- 3 Balkone
- 1 Negativdachbalkon
- 1 Terrasse
- 1 Stellplatz
- 1 Garage
- Getrenntes Treppenhaus
- Zusätzliche Flächen im voll unterkellerten Keller
- Zusätzliche Flächen im Dachboden / Dachspitz
Sonstige Informationen
WICHTIGER HINWEIS! ==> ***Sie dieses Traumhaus anschauen? Entweder per virtuellem Rundgang oder in echt? Prima, dann bekommen Sie den Zugang für die virtuelle Tour. Oder wir vereinbaren gerne einen Besichtigungstermin mit Ihnen unter Vorraussetzung Sie haben über Ihre Möglichkeiten zur Kaufpreisfinanzierung eine Finanzbestätigung von Ihrer Bank und es liegen uns die kompletten Kontakdaten einschlieslich Adresse, Telefonnummer und Mail, vor!****
Wenn Sie noch keine Finanzbestätigung von Ihrer Bank haben, übernehmen wir das gerne für Sie. Unsere Kollegen von FALC Finance können Ihnen die Bestätigung sehr schnell ausstellen. Sprechen Sie uns an oder nutzen Sie den QR-Code in dieser Anzeige.
Das Angebot ist freibleibend. Zwischenverkauf bleibt vorbehalten. Es gelten unsere allgemeinen Geschäftsbedingungen. Alle Objektangaben beruhen auf Angaben und Mitteilungen der Eigentümer. Eine Haftung für die Wohn- und Nutzflächenberechnung zw. über die Angaben hierzu, wird nicht übernommen. Die verbauten Baumaterialien wurden aus den Baubeschreibungen entnommen oder durch den Eigentümer mitgeteilt. Eine Haftung für den genauen Verbau der Materialien kann nicht übernommen werden. Für die Richtigkeit oder Vollständigkeit übernehmen wir keine Gewähr. Bitte beachten Sie, dass das Exposé möglicherweise unter Zuhilfenahme von Künstlicher Intelligenz (KI) erstellt oder überarbeitet wurde. Dabei wurden jedoch keine wesentlichen Merkmale verändert.
Besichtigungen und Verhandlungen erfolgen ausschließlich über FALC Immobilien Markdorf - Thorsten Bischoffberger.
Beim ausgewiesenen Preis handelt es sich um den Angebotspreis, der sich durch Verhandlungen auch verändern kann. Bei diesem Objekt ist nicht vorgesehen, dass der Käufer mit uns eine eigenständige Provisionsvereinbarung trifft, sofern dieser als Verbraucher (§ 14 BGB) zu qualifizieren ist. Der Verkauf erfolgt nur an denjenigen, der sich bereit erklärt, einen Teil der vom Verkäufer zugesagten Provision zu übernehmen. Dieser Anteil beträgt in diesem Fall 3,57 % inkl. MwSt. vom Kaufpreis und ist nach Abschluss des Kaufvertrages zur Zahlung fällig.
Wir bieten Ihnen eine kostenlose 24/7-Hotline unter der Rufnummer 0800-6460646, über die Sie uns jederzeit erreichen können. Wenn Sie Interesse an der Immobilie haben, fordern Sie gerne das ausführliche Exposé an, das Ihnen in der Regel kurzfristig und automatisch zugesandt wird. Sollten Sie eine Besichtigung wünschen, antworten Sie am besten direkt per E-Mail auf das Exposé. Wir setzen uns umgehend mit Ihnen in Verbindung und unterbreiten Ihnen passende Terminvorschläge. Bitte geben Sie dabei stets Ihre VOLLSTÄNDIGE Adresse inklusive Ihrer TELEFONNUMMER an - ohne Telefonnummer ist bedauerlicherweise kein Besichtigungstermin möglich!
Sie denken selbst über die Veräußerung Ihrer Immobilie nach oder möchten einfach nur wissen, was diese wert ist? Bei uns erhalten Sie kostenlos eine professionelle Wertermittlung! Gehen Sie hierzu auf: https://www.falcimmo.de/wertermittlung-immobilien.html oder kontaktieren Sie uns.
Als regionaler und erfahrener Immobilienexperte bieten wir Ihnen unseren kompletten Service und unterstützen Sie gerne beim Immobilienverkauf. Über 200.000 aktive Interessenten warten bereits auf Ihr Angebot, nehmen Sie jetzt Kontakt mit uns auf!
Ihr Ansprechpartner und Immobilienexperte in der Region Bodensee & Oberschwaben
Thorsten Bischoffberger
Mobil: 0173 / 67 00 348 (Mo-Sa von 09:00 - 20:00 Uhr)
FALC-Hotline Mo-So 6.00-22.00 : 0800 / 646 0 646 kostenlos
Mail: thorsten.bischoffberger@ falcimmo.de
Besuchen Sie uns (nach terminlicher Absprache) auch in unserem FALC Immobilien Büro in Markdorf, Ravensburger Str. 26/1
Wenn Sie noch keine Finanzbestätigung von Ihrer Bank haben, übernehmen wir das gerne für Sie. Unsere Kollegen von FALC Finance können Ihnen die Bestätigung sehr schnell ausstellen. Sprechen Sie uns an oder nutzen Sie den QR-Code in dieser Anzeige.
Das Angebot ist freibleibend. Zwischenverkauf bleibt vorbehalten. Es gelten unsere allgemeinen Geschäftsbedingungen. Alle Objektangaben beruhen auf Angaben und Mitteilungen der Eigentümer. Eine Haftung für die Wohn- und Nutzflächenberechnung zw. über die Angaben hierzu, wird nicht übernommen. Die verbauten Baumaterialien wurden aus den Baubeschreibungen entnommen oder durch den Eigentümer mitgeteilt. Eine Haftung für den genauen Verbau der Materialien kann nicht übernommen werden. Für die Richtigkeit oder Vollständigkeit übernehmen wir keine Gewähr. Bitte beachten Sie, dass das Exposé möglicherweise unter Zuhilfenahme von Künstlicher Intelligenz (KI) erstellt oder überarbeitet wurde. Dabei wurden jedoch keine wesentlichen Merkmale verändert.
Besichtigungen und Verhandlungen erfolgen ausschließlich über FALC Immobilien Markdorf - Thorsten Bischoffberger.
Beim ausgewiesenen Preis handelt es sich um den Angebotspreis, der sich durch Verhandlungen auch verändern kann. Bei diesem Objekt ist nicht vorgesehen, dass der Käufer mit uns eine eigenständige Provisionsvereinbarung trifft, sofern dieser als Verbraucher (§ 14 BGB) zu qualifizieren ist. Der Verkauf erfolgt nur an denjenigen, der sich bereit erklärt, einen Teil der vom Verkäufer zugesagten Provision zu übernehmen. Dieser Anteil beträgt in diesem Fall 3,57 % inkl. MwSt. vom Kaufpreis und ist nach Abschluss des Kaufvertrages zur Zahlung fällig.
Wir bieten Ihnen eine kostenlose 24/7-Hotline unter der Rufnummer 0800-6460646, über die Sie uns jederzeit erreichen können. Wenn Sie Interesse an der Immobilie haben, fordern Sie gerne das ausführliche Exposé an, das Ihnen in der Regel kurzfristig und automatisch zugesandt wird. Sollten Sie eine Besichtigung wünschen, antworten Sie am besten direkt per E-Mail auf das Exposé. Wir setzen uns umgehend mit Ihnen in Verbindung und unterbreiten Ihnen passende Terminvorschläge. Bitte geben Sie dabei stets Ihre VOLLSTÄNDIGE Adresse inklusive Ihrer TELEFONNUMMER an - ohne Telefonnummer ist bedauerlicherweise kein Besichtigungstermin möglich!
Sie denken selbst über die Veräußerung Ihrer Immobilie nach oder möchten einfach nur wissen, was diese wert ist? Bei uns erhalten Sie kostenlos eine professionelle Wertermittlung! Gehen Sie hierzu auf: https://www.falcimmo.de/wertermittlung-immobilien.html oder kontaktieren Sie uns.
Als regionaler und erfahrener Immobilienexperte bieten wir Ihnen unseren kompletten Service und unterstützen Sie gerne beim Immobilienverkauf. Über 200.000 aktive Interessenten warten bereits auf Ihr Angebot, nehmen Sie jetzt Kontakt mit uns auf!
Ihr Ansprechpartner und Immobilienexperte in der Region Bodensee & Oberschwaben
Thorsten Bischoffberger
Mobil: 0173 / 67 00 348 (Mo-Sa von 09:00 - 20:00 Uhr)
FALC-Hotline Mo-So 6.00-22.00 : 0800 / 646 0 646 kostenlos
Mail: thorsten.bischoffberger@ falcimmo.de
Besuchen Sie uns (nach terminlicher Absprache) auch in unserem FALC Immobilien Büro in Markdorf, Ravensburger Str. 26/1
Lage des Objektes
Herzlich willkommen in Gottmadingen!
Wohnen in 78244 Gottmadingen – Leben an der Grenze zur Schweiz
Gottmadingen (PLZ 78244) liegt malerisch im Westen des Landkreises Konstanz – direkt an der Grenze zur Schweiz – und bietet ideale Wohn- und Lebensbedingungen für Familien, Berufspendler und Grenzgänger.
Die rund 10.800 Einwohner profitieren von einer hervorragenden Infrastruktur, hoher Lebensqualität und attraktiven Immobilienpreisen. Die Stadt-Homepage findest du unter www.gottmadingen.de.
Geografisch befindet sich Gottmadingen im Hegau, ca. 7 km westlich von Singen, auf etwa 437 m Höhe. Die Nachbargemeinden sind – im Uhrzeigersinn von Norden ausgehend – Hilzingen, Rielasingen-Worblingen, Ramsen (CH), Buch (CH), Gailingen, Dörflingen (CH) und Thayngen (CH).
Die Verkehrsanbindung ist optimal: Der nächste Autobahnanschluss an die A81 liegt nur 4 km entfernt. Konstanz ist mit dem Auto in ca. 40 Minuten (45 km), Singen in 10 Minuten (7 km) und Stuttgart in etwa 2 Stunden (200 km) erreichbar. Der Ort verfügt über einen S-Bahn-Anschluss an der Hochrheinbahn (Basel–Konstanz) sowie grenzüberschreitende Busverbindungen in die Schweiz.
Bildung & Betreuung:
=> 5 Schulen (Grundschulen in Bietingen, Randegg & Ortsteil, Realschule & Hauptschule)
=> 6 Kindergärten (kommunal, katholisch, evangelisch, Waldorf)
=> Klinische Versorgung erfolgt im nahen Singen (Klinikum Singen, ca. 7 km)
Einkauf & Wirtschaft:
Mit über 380 Gewerbebetrieben und Supermärkten vor Ort ist die Nahversorgung gesichert. Der Industriepark Gottmadingen bietet zahlreiche Arbeitsplätze. Zu den größten Arbeitgebern zählen Randegger Ottilienquelle und mehrere Logistikunternehmen. Die Kaufkraft wird durch die direkte
Grenznähe zur Schweiz gestärkt – ideal für Grenzpendler, Schweizer Investoren oder Berufstätige in der Region Schaffhausen.
Nahversorgung:
In Gottmadingen findest du eine sehr gute Nahversorgung für den täglichen Bedarf – ideal für Familien, Berufstätige und ältere Menschen. Gottmadingen bietet somit eine vollumfängliche Versorgung im Ort – alles bequem erreichbar, oft auch fußläufig. Für größere Besorgungen ist Singen (ca. 10 Min. entfernt) eine gute Ergänzung mit Einkaufszentren wie Cano oder MediaMarkt, Baumarkt etc.
Sonnige Aussichten: Mit rund 2.400–2.500 Sonnenstunden pro Jahr liegt Gottmadingen auf dem Niveau von Freiburg – ein echtes Plus für Naturliebhaber und Outdoor-Fans.
Nachbarorte (N im Uhrzeigersinn): Hilzingen, Rielasingen-Worblingen, Buch (CH), Ramsen (CH), Gailingen, Dörflingen (CH), Thayngen (CH)
Nähe Schweiz: Direkt angrenzend an den Hochrhein; günstige Grenzlage mit Zollanlage Bietingen–Thayngen
Entfernungen & Fahrzeiten (PKW)
Singen : ~7 km ≙ ca. 10 min
Konstanz: ~45 km ≙ ca. 40 min
Stuttgart: ~200 km ≙ ca. 2 h
Autobahn: nächster Anschluss A 81 bei Gottmadingen/Bietingen (~4 km)
ÖPNV:
S-Bahn-Halt an der Hochrheinbahn (Basel–Konstanz)
Schweizer Buslinie über Randegg nach Schaffhausen, Büsingen & Dörflingen
Gut ausgebautes RadNETZ BW nach Singen, Thayngen & Schaffhausen
Wohnen in 78244 Gottmadingen – Leben an der Grenze zur Schweiz
Gottmadingen (PLZ 78244) liegt malerisch im Westen des Landkreises Konstanz – direkt an der Grenze zur Schweiz – und bietet ideale Wohn- und Lebensbedingungen für Familien, Berufspendler und Grenzgänger.
Die rund 10.800 Einwohner profitieren von einer hervorragenden Infrastruktur, hoher Lebensqualität und attraktiven Immobilienpreisen. Die Stadt-Homepage findest du unter www.gottmadingen.de.
Geografisch befindet sich Gottmadingen im Hegau, ca. 7 km westlich von Singen, auf etwa 437 m Höhe. Die Nachbargemeinden sind – im Uhrzeigersinn von Norden ausgehend – Hilzingen, Rielasingen-Worblingen, Ramsen (CH), Buch (CH), Gailingen, Dörflingen (CH) und Thayngen (CH).
Die Verkehrsanbindung ist optimal: Der nächste Autobahnanschluss an die A81 liegt nur 4 km entfernt. Konstanz ist mit dem Auto in ca. 40 Minuten (45 km), Singen in 10 Minuten (7 km) und Stuttgart in etwa 2 Stunden (200 km) erreichbar. Der Ort verfügt über einen S-Bahn-Anschluss an der Hochrheinbahn (Basel–Konstanz) sowie grenzüberschreitende Busverbindungen in die Schweiz.
Bildung & Betreuung:
=> 5 Schulen (Grundschulen in Bietingen, Randegg & Ortsteil, Realschule & Hauptschule)
=> 6 Kindergärten (kommunal, katholisch, evangelisch, Waldorf)
=> Klinische Versorgung erfolgt im nahen Singen (Klinikum Singen, ca. 7 km)
Einkauf & Wirtschaft:
Mit über 380 Gewerbebetrieben und Supermärkten vor Ort ist die Nahversorgung gesichert. Der Industriepark Gottmadingen bietet zahlreiche Arbeitsplätze. Zu den größten Arbeitgebern zählen Randegger Ottilienquelle und mehrere Logistikunternehmen. Die Kaufkraft wird durch die direkte
Grenznähe zur Schweiz gestärkt – ideal für Grenzpendler, Schweizer Investoren oder Berufstätige in der Region Schaffhausen.
Nahversorgung:
In Gottmadingen findest du eine sehr gute Nahversorgung für den täglichen Bedarf – ideal für Familien, Berufstätige und ältere Menschen. Gottmadingen bietet somit eine vollumfängliche Versorgung im Ort – alles bequem erreichbar, oft auch fußläufig. Für größere Besorgungen ist Singen (ca. 10 Min. entfernt) eine gute Ergänzung mit Einkaufszentren wie Cano oder MediaMarkt, Baumarkt etc.
Sonnige Aussichten: Mit rund 2.400–2.500 Sonnenstunden pro Jahr liegt Gottmadingen auf dem Niveau von Freiburg – ein echtes Plus für Naturliebhaber und Outdoor-Fans.
Nachbarorte (N im Uhrzeigersinn): Hilzingen, Rielasingen-Worblingen, Buch (CH), Ramsen (CH), Gailingen, Dörflingen (CH), Thayngen (CH)
Nähe Schweiz: Direkt angrenzend an den Hochrhein; günstige Grenzlage mit Zollanlage Bietingen–Thayngen
Entfernungen & Fahrzeiten (PKW)
Singen : ~7 km ≙ ca. 10 min
Konstanz: ~45 km ≙ ca. 40 min
Stuttgart: ~200 km ≙ ca. 2 h
Autobahn: nächster Anschluss A 81 bei Gottmadingen/Bietingen (~4 km)
ÖPNV:
S-Bahn-Halt an der Hochrheinbahn (Basel–Konstanz)
Schweizer Buslinie über Randegg nach Schaffhausen, Büsingen & Dörflingen
Gut ausgebautes RadNETZ BW nach Singen, Thayngen & Schaffhausen
Anbieter kontaktieren
Anbieter
FALC Immobilien GmbH & Co. KG
Humperdickstr. 3
53773 Hennef (Sieg)
Kontakt
| Telefon | (+49) 800 - 646 0 646 |
| Mobil | +49 173 6700348 |
| Fax | +49 2242 9010319 |
| Website | www.falcimmo.de |
