Zwei Familien in einem Haus
910.409 €
Kaufpreis
189 m²
Wohnfläche
195 m²
Nutzfläche
6
Zimmer
immobilien.de Nr.: 9131776
Objektnummer: AA-25-024 Ber
Preise & Kosten
| Kaufpreis | 910.409 € |
| Nebenkosten | keine Angabe |
Größe & Zustand
| Wohnfläche | 189 m² |
| Nutzfläche | 195 m² |
| Grundstücksfläche | 910 m² |
| Zimmer | 6 |
| Verfügbar ab | keine Angabe |
| Zustand | Projektiert |
Energie
| Energietyp | KfW-40 |
| Heizungsart | Zentralheizung |
| Energieträger/Befeuerung | Luft-Wärme-Pumpe |
Objektbeschreibung
STREIF-HOME&GENERATION Zweifamilienhaus CITY 190
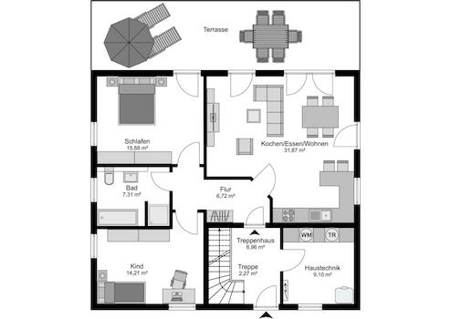
Zwei Wohnungen, eine gut durchdachte Grundrissplanung und eine moderne Eleganz in der Architektur bietet der
zweigeschossige Zweifamilien-Hausentwurf mit Walmdach CITY 190 von STREIF. Die Basisversion des Entwurfes bietet
die Möglichkeit bei Bedarf, Anbaubauteile hinzuzufügen. Ein Übereckerker, ein Balkon oder eine Überdachung bringen
Individualität und Stil in die Hausarchitektur. Die geplanten bodentiefen, doppelflügeligen Terrassentüren, bringen ein
großzügiges Wintergartenfeeling in die Wohnbereiche der beiden Wohnungen. Beide Wohnungen sind mit einem offen
gestalteten Koch-/Ess-und Wohnbereich, einem Schlafzimmer, einem Kinderzimmer und einem familienfreundlichen Bad
mit Wanne und Dusche geplant. Kurze Wege und guter Wohnkomfort zeichnet die Grundrissgestaltung beider
Wohnungen aus. Im Obergeschoss ist direkt neben der Küche ein praktischer Hauswirtschafts-/Haustechnikraum
gelegen. Im Erdgeschoss, separat im Flurbereich neben der Treppe, befindet sich ein weiterer Haustechnik-
/Hauswirtschaftsraum.
Zwei Wohnungen, eine gut durchdachte Grundrissplanung und eine moderne Eleganz in der Architektur bietet der
zweigeschossige Zweifamilien-Hausentwurf mit Walmdach CITY 190 von STREIF. Die Basisversion des Entwurfes bietet
die Möglichkeit bei Bedarf, Anbaubauteile hinzuzufügen. Ein Übereckerker, ein Balkon oder eine Überdachung bringen
Individualität und Stil in die Hausarchitektur. Die geplanten bodentiefen, doppelflügeligen Terrassentüren, bringen ein
großzügiges Wintergartenfeeling in die Wohnbereiche der beiden Wohnungen. Beide Wohnungen sind mit einem offen
gestalteten Koch-/Ess-und Wohnbereich, einem Schlafzimmer, einem Kinderzimmer und einem familienfreundlichen Bad
mit Wanne und Dusche geplant. Kurze Wege und guter Wohnkomfort zeichnet die Grundrissgestaltung beider
Wohnungen aus. Im Obergeschoss ist direkt neben der Küche ein praktischer Hauswirtschafts-/Haustechnikraum
gelegen. Im Erdgeschoss, separat im Flurbereich neben der Treppe, befindet sich ein weiterer Haustechnik-
/Hauswirtschaftsraum.
Ausstattung
| Anzahl der Etagen im Haus | 2 |
| Bad | 2 |
| Bad | Dusche, Wanne, Fenster |
| Barrierefrei |
TREIF-Häuser sind Energiesparhäuser. Die Außenwände im Passiv-Haus-Standard und eine
sparsame Heiztechnik mit integrierter Wohnraumlüftung und Wärmerückgewinnung, garantieren
einen geringen Energieverbrauch und ein fantastisches Raumklima, das insbesondere Allergiker
aufatmen lässt.
STREIF Leistungen sind MEHR WERT - schon im Grundpreis enthalten!
- Energieeffizienzhaus KfW 40 EE im Standard
- 16-monatige Festpreisgarantie
- Inkl. individuelle Grundrissgestaltung und Raumaufteilung
- Inkl. Fundamentplatte
- Inkl. Luft-Wasser-Wärmepumpe TECALOR FHZ 5.5 Flex inkls. Lüftung
- Inkl. Haustür von KERA und Fenster von Porta/Kömmerling
- Inkl. Sanitärobjekte von Markenherstellern
- Inkl. Elektroinstallation
- Inkl. Baubetreuung u.v.m.
Die hohe Wertigkeit und Langlebigkeit eines STREIF-Energiespar-Hauses wird durch zahlreiche
Auszeichnungen, Qualitäts- und Gütesiegel unabhängiger Institute und Verbände dokumentiert.
Der Angebotspreis ist inklusive Grundstück und bezieht sich auf die Standard-Ausbaustufe Fast-
Fertig-Plus. Ihre Eigenleistungen: Spachtel-,Tapezier- und Malerarbeiten, Bodenbeläge, Innentüren.
Baunebenkosten fallen zuzüglich an.
Der Verkauf des Grundstücks erfolgt über einen unserer Netzwerkpartner.
Bilder können evtl. Anbauteile, Carports, Balkone, Gauben, Dachausführungen usw. zeigen, die nicht
im Grundriss abgebildet und nicht im Angebotspreis enthalten sind. Abgebildet ist der Basis-
Grundriss ohne Anbauteile. Änderungen und Irrtümer vorbehalten.
sparsame Heiztechnik mit integrierter Wohnraumlüftung und Wärmerückgewinnung, garantieren
einen geringen Energieverbrauch und ein fantastisches Raumklima, das insbesondere Allergiker
aufatmen lässt.
STREIF Leistungen sind MEHR WERT - schon im Grundpreis enthalten!
- Energieeffizienzhaus KfW 40 EE im Standard
- 16-monatige Festpreisgarantie
- Inkl. individuelle Grundrissgestaltung und Raumaufteilung
- Inkl. Fundamentplatte
- Inkl. Luft-Wasser-Wärmepumpe TECALOR FHZ 5.5 Flex inkls. Lüftung
- Inkl. Haustür von KERA und Fenster von Porta/Kömmerling
- Inkl. Sanitärobjekte von Markenherstellern
- Inkl. Elektroinstallation
- Inkl. Baubetreuung u.v.m.
Die hohe Wertigkeit und Langlebigkeit eines STREIF-Energiespar-Hauses wird durch zahlreiche
Auszeichnungen, Qualitäts- und Gütesiegel unabhängiger Institute und Verbände dokumentiert.
Der Angebotspreis ist inklusive Grundstück und bezieht sich auf die Standard-Ausbaustufe Fast-
Fertig-Plus. Ihre Eigenleistungen: Spachtel-,Tapezier- und Malerarbeiten, Bodenbeläge, Innentüren.
Baunebenkosten fallen zuzüglich an.
Der Verkauf des Grundstücks erfolgt über einen unserer Netzwerkpartner.
Bilder können evtl. Anbauteile, Carports, Balkone, Gauben, Dachausführungen usw. zeigen, die nicht
im Grundriss abgebildet und nicht im Angebotspreis enthalten sind. Abgebildet ist der Basis-
Grundriss ohne Anbauteile. Änderungen und Irrtümer vorbehalten.
Sonstige Informationen
STREIF Haus - der Pionier der deutschen Fertighausbranche
Die langjährige Firmentradition des Unternehmens reicht bis in das Jahr 1929 zurück. In den 50er und 60er Jahren wurde in Deutschland schnell und viel Wohnraum für Familien benötigt, seitdem konzentrierte sich das Unternehmen auf die Entwicklung und Produktion von Fertighaustypen, die im Werk in großen Stückzahlen hergestellt werden konnten. So kann das Unternehmen auf 90.000 gebaute Hausobjekte zurückblicken und sich zu Recht als Pionier der deutschen Fertighausbranche bezeichnen.
Die neuen Energiesparhäuser - So baut man heute.
Unser Anspruch ist es, in enger Partnerschaft mit unseren Kunden langlebige Häuser zu bauen, mit einer hohen architektonischen Qualität, individuell geplant und dabei energieeffizient und ressourcenschonend. Jedes STREIF-Haus ist einzigartig und wird speziell für jeden Kunden "maßgeschneidert" und gebaut. Passend zu den persönlichen Wünschen, dem vorgegebenen Budget und dem vorhandenen Grundstück planen und bauen wir jedes Haus mit viel Liebe zum Detail.
Die langjährige Firmentradition des Unternehmens reicht bis in das Jahr 1929 zurück. In den 50er und 60er Jahren wurde in Deutschland schnell und viel Wohnraum für Familien benötigt, seitdem konzentrierte sich das Unternehmen auf die Entwicklung und Produktion von Fertighaustypen, die im Werk in großen Stückzahlen hergestellt werden konnten. So kann das Unternehmen auf 90.000 gebaute Hausobjekte zurückblicken und sich zu Recht als Pionier der deutschen Fertighausbranche bezeichnen.
Die neuen Energiesparhäuser - So baut man heute.
Unser Anspruch ist es, in enger Partnerschaft mit unseren Kunden langlebige Häuser zu bauen, mit einer hohen architektonischen Qualität, individuell geplant und dabei energieeffizient und ressourcenschonend. Jedes STREIF-Haus ist einzigartig und wird speziell für jeden Kunden "maßgeschneidert" und gebaut. Passend zu den persönlichen Wünschen, dem vorgegebenen Budget und dem vorhandenen Grundstück planen und bauen wir jedes Haus mit viel Liebe zum Detail.
Kontakt
| Telefon | +49 3327 6679013 |
| Mobil | +49 179 5910108 |
| Website | www.streif.de |
