AIGNER - Exklusiv ausgestattete Erdgeschosswohnung mit 4 Zimmern und über 220 m² Garten
1.100.000 €
Kaufpreis
100,61 m²
Wohnfläche
11 m²
Nutzfläche
4
Zimmer
immobilien.de Nr.: 9129890
Objektnummer: 42102
Preise & Kosten
| Kaufpreis | 1.100.000 € |
| Nebenkosten | keine Angabe |
| Hausgeld | 512 € |
| Maklerprovision | 3,57% |
| Stellplatz Tiefgarage Kaufpreis | 25.000 € |
Größe & Zustand
| Wohnfläche | 100,61 m² |
| Nutzfläche | 11 m² |
| Zimmer | 4 |
| Baujahr | 2022 |
| Verfügbar ab | nach Vereinbarung |
| Zustand | Neuwertig |
Energie
| Heizungsart | Zentralheizung |
| Energieträger/Befeuerung | Elektro |
Objektbeschreibung
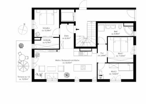
Diese außergewöhnliche Luxuswohnung vereint modernes Design, exklusive Ausstattung und höchsten Wohnkomfort auf beeindruckende Weise. Schon beim Betreten der Wohnung werden Sie von einem eleganten Flur empfangen, der Ihnen Zugang zum großzügigen Hauptschlafzimmer bietet. Ein besonderes Highlight ist das angrenzende Ankleidezimmer, welches viel Stauraum und eine stilvolle Atmosphäre für Ihre Garderobe schafft.
Weiter entlang des Flures öffnet sich das lichtdurchflutete Wohnzimmer mit nahtlosem Übergang zum Essbereich und der offenen Küche. Hier trifft purer Luxus auf höchste Funktionalität: Die maßgeschneiderte Küche in edler Marmoroptik ist mit hochwertigen Gaggenau-Geräten ausgestattet. Der goldene Wasserhahn setzt einen exklusiven Akzent und verleiht dem Raum eine luxuriöse Note. Vom Wohnzimmer aus gelangen Sie direkt in den über 220m² großen, privaten Garten mit Terrasse, der dank der automatisierten Bewässerungsanlage und den Markisen das perfekte Outdoor-Wohnzimmer darstellt.
Zudem erschließen sich vom Wohnzimmer zwei weitere, großzügige Schlafzimmer sowie ein Tageslichtbadezimmer, das mit seinen zwei Waschbecken, einer Eckbadewanne und einer separaten Dusche in edler Marmoroptik höchsten Komfort verspricht.
Die Ausstattung der Wohnung lässt keine Wünsche offen: Neben dem stilvollen Design überzeugt sie durch innovative Technik wie das umfassende Smart Home-System, das Ihnen die Kontrolle über Licht, Heizung und Sicherheit per Knopfdruck ermöglicht. Hochwertige Lichtspots, exklusive Bodenbeläge und eine Alarmanlage mit Überwachungskameras sorgen für Sicherheit und Wohlgefühl. Die energieeffiziente Wärmepumpe (A+) garantiert ein umweltbewusstes Wohnen. Abgerundet wird das Angebot durch ein Kellerabteil sowie zwei nebeneinanderliegende Tiefgarageneinzelstellplätze.
Lassen Sie sich von dieser außergewöhnlichen Luxusimmobilie verzaubern und genießen Sie ein Wohngefühl der Extraklasse.
Weiter entlang des Flures öffnet sich das lichtdurchflutete Wohnzimmer mit nahtlosem Übergang zum Essbereich und der offenen Küche. Hier trifft purer Luxus auf höchste Funktionalität: Die maßgeschneiderte Küche in edler Marmoroptik ist mit hochwertigen Gaggenau-Geräten ausgestattet. Der goldene Wasserhahn setzt einen exklusiven Akzent und verleiht dem Raum eine luxuriöse Note. Vom Wohnzimmer aus gelangen Sie direkt in den über 220m² großen, privaten Garten mit Terrasse, der dank der automatisierten Bewässerungsanlage und den Markisen das perfekte Outdoor-Wohnzimmer darstellt.
Zudem erschließen sich vom Wohnzimmer zwei weitere, großzügige Schlafzimmer sowie ein Tageslichtbadezimmer, das mit seinen zwei Waschbecken, einer Eckbadewanne und einer separaten Dusche in edler Marmoroptik höchsten Komfort verspricht.
Die Ausstattung der Wohnung lässt keine Wünsche offen: Neben dem stilvollen Design überzeugt sie durch innovative Technik wie das umfassende Smart Home-System, das Ihnen die Kontrolle über Licht, Heizung und Sicherheit per Knopfdruck ermöglicht. Hochwertige Lichtspots, exklusive Bodenbeläge und eine Alarmanlage mit Überwachungskameras sorgen für Sicherheit und Wohlgefühl. Die energieeffiziente Wärmepumpe (A+) garantiert ein umweltbewusstes Wohnen. Abgerundet wird das Angebot durch ein Kellerabteil sowie zwei nebeneinanderliegende Tiefgarageneinzelstellplätze.
Lassen Sie sich von dieser außergewöhnlichen Luxusimmobilie verzaubern und genießen Sie ein Wohngefühl der Extraklasse.
Ausstattung
| Küche | Einbauküche |
| Bad | 1 |
| Garten | |
| Fahrstuhl | |
| Keller |
- Großzügiger Schnitt
- Drei Schlafzimmer
- Ankleidezimmer
- Wohn-/ Essbereich mit Einbauküche von Gaggenau
- Badezimmer mit zwei Waschbecken, Dusche und Eckbadewanne in Marmoroptik
- Terrasse mit Markisen
- Über 220m² Garten (Sondernutzungsrecht) mit automatisierter Bewässerungsanlage
- Smart Home
- Lichtspots für eine angenehme Atmosphäre
- Hochwertige Böden (Parkett und Fliesen)
- Alarmanlage inklusive Überwachungskameras
- Einbau eines Gäste-WC's ist möglich
- Wärmepumpe (A+)
- Großes Kellerabteil
- Zwei Tiefgarageneinzelstellplätze
- Restgarantie vom Bauträger
- Drei Schlafzimmer
- Ankleidezimmer
- Wohn-/ Essbereich mit Einbauküche von Gaggenau
- Badezimmer mit zwei Waschbecken, Dusche und Eckbadewanne in Marmoroptik
- Terrasse mit Markisen
- Über 220m² Garten (Sondernutzungsrecht) mit automatisierter Bewässerungsanlage
- Smart Home
- Lichtspots für eine angenehme Atmosphäre
- Hochwertige Böden (Parkett und Fliesen)
- Alarmanlage inklusive Überwachungskameras
- Einbau eines Gäste-WC's ist möglich
- Wärmepumpe (A+)
- Großes Kellerabteil
- Zwei Tiefgarageneinzelstellplätze
- Restgarantie vom Bauträger
Sonstige Informationen
Heizungsart: Zentralheizung
Baujahr: 2022
Befeuerung/Energieträger: Strom
Energieausweistyp: Bedarfsausweis
Energiekennwert: 16 kWh kWh/(m²*a)
Energieeffizienzklasse: A+
Baujahr: 2022
Befeuerung/Energieträger: Strom
Energieausweistyp: Bedarfsausweis
Energiekennwert: 16 kWh kWh/(m²*a)
Energieeffizienzklasse: A+
Lage des Objektes
Der im Westen von München gelegene Stadtteil Untermenzing entlang der Würmauen ist eine sehr attraktive und beliebte Wohngegend. Nur wenige Minuten von der Haustüre entfernt findet man Natur pur - die Angerlohe (ca. 800m). Dieses Waldstück - und ausgewiesene Landschaftsschutzgebiet - bietet auf ca. einem halben Quadratkilometer jede Menge Natur. Hier wird Stadtleben und Leben in grüner Natur in optimaler Weise verbunden.
Gleichzeitig genießen die Bewohner von Untermenzing alle urbanen Annehmlichkeiten wie eine Vielzahl an Einkaufs- und Gastronomieangeboten, Sportstätten, Kindergärten und Schulen. Zwei italienische Restaurants, eine Eisdiele sowie das Restaurant und Hotel Insel Mühle mit seinem idyllischen Biergarten sind zu Fuß oder mit dem Rad bequem zu erreichen.
Die Infrastruktur ist durch die S-Bahn-Station "Untermenzing" hervorragend und bietet eine direkte Verbindung in die Münchner Innenstadt. Mit dem Auto gelangt man in nur wenigen Minuten zur Auffahrt auf die A8 Richtung Stuttgart und zum Autobahnkreuz München-West mit der direkten Anbindung zur A99. Von dort geht’s ins 5-Seen-Land oder zum Flughafen München in alle Welt.
Gleichzeitig genießen die Bewohner von Untermenzing alle urbanen Annehmlichkeiten wie eine Vielzahl an Einkaufs- und Gastronomieangeboten, Sportstätten, Kindergärten und Schulen. Zwei italienische Restaurants, eine Eisdiele sowie das Restaurant und Hotel Insel Mühle mit seinem idyllischen Biergarten sind zu Fuß oder mit dem Rad bequem zu erreichen.
Die Infrastruktur ist durch die S-Bahn-Station "Untermenzing" hervorragend und bietet eine direkte Verbindung in die Münchner Innenstadt. Mit dem Auto gelangt man in nur wenigen Minuten zur Auffahrt auf die A8 Richtung Stuttgart und zum Autobahnkreuz München-West mit der direkten Anbindung zur A99. Von dort geht’s ins 5-Seen-Land oder zum Flughafen München in alle Welt.
Anbieter kontaktieren
Kontakt
| Telefon | +49(89) 17 87 87 0 |
| Fax | (089) 17 87 87 88 |
| Website | www.aigner-immobilien.de |
