AIGNER - Reiheneckhaus im begehrten Herzogpark – charmant, ruhig, entwicklungsfähig
1.990.000 €
Kaufpreis
200,45 m²
Wohnfläche
75 m²
Nutzfläche
6
Zimmer
immobilien.de Nr.: 9123448
Objektnummer: 42136
Preise & Kosten
| Kaufpreis | 1.990.000 € |
| Nebenkosten | keine Angabe |
| Maklerprovision | 3,57% |
Größe & Zustand
| Wohnfläche | 200,45 m² |
| Nutzfläche | 75 m² |
| Grundstücksfläche | 240 m² |
| Zimmer | 6 |
| Baujahr | 1973 |
| Verfügbar ab | sofort |
| Zustand | Teil Vollrenovierungsbed |
Energie
| Heizungsart | Zentralheizung |
| Energieträger/Befeuerung | Gas |
Objektbeschreibung
Dieses Reihenendhaus aus dem Jahr 1973 bietet eine großzügige Wohnfläche von 200,45 m², verteilt auf vier Etagen. Es befindet sich in Bestlage Münchens und besticht durch seine durchdachte Raumaufteilung und zahlreiche Nutzungsmöglichkeiten.
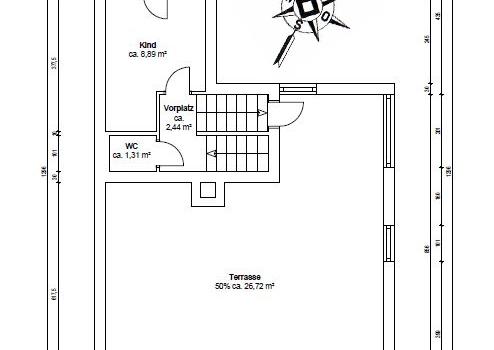
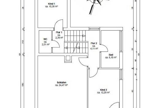
Das Haus verfügt über insgesamt sechs Zimmer, davon vier geräumige Schlafzimmer, die jeweils Zugang zu einem der drei Balkone haben. Hier können Sie den Tag entspannt ausklingen lassen und den Blick in den gepflegten, kleinen Garten genießen. Ein Highlight ist die großzügige Dachterrasse, die viel Platz für gesellige Abende oder entspannte Stunden in der Sonne bietet.
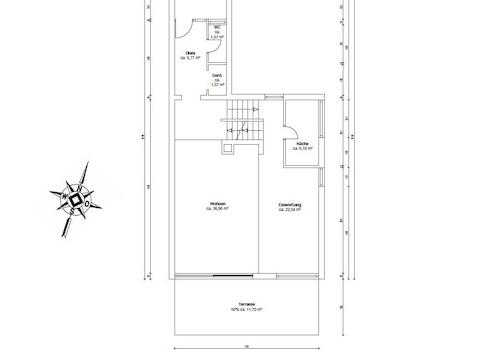
Im Erdgeschoss befindet sich das lichtdurchflutete Wohnzimmer, das durch eine große Fensterfront viel Tageslicht einlässt. Von hier aus gelangen Sie direkt in den Garten, der zum Entspannen und Verweilen einlädt. Das Wohnzimmer ist zudem mit einer Empore ausgestattet, die zusätzlichen Charme und Gestaltungsfreiheit bietet und momentan als großzügies Esszimmer genutzt wird.
Die drei Badezimmer des Hauses sind funktional gestaltet: Eines ist mit einer Badewanne ausgestattet, die beiden anderen Badezimmer verfügen über Duschen.
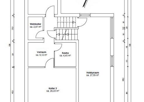
Der Souterrain-Bereich des Hauses eröffnet vielfältige Nutzungsmöglichkeiten. Ob als Hobbyraum, Home-Office oder als zusätzlicher Stauraum – hier können Sie Ihrer Kreativität freien Lauf lassen und den Raum ganz nach Ihren Bedürfnissen gestalten.
Dieses renovierungsbedürftige Reihenendhaus bietet eine solide Grundlage für individuelles Wohnen mit viel Potenzial zur persönlichen Gestaltung. Nach einer Renovierung könnte dieses Haus zu einem wahren Schmuckstück werden und im neuen Glanz erstrahlen.
Das Haus verfügt über insgesamt sechs Zimmer, davon vier geräumige Schlafzimmer, die jeweils Zugang zu einem der drei Balkone haben. Hier können Sie den Tag entspannt ausklingen lassen und den Blick in den gepflegten, kleinen Garten genießen. Ein Highlight ist die großzügige Dachterrasse, die viel Platz für gesellige Abende oder entspannte Stunden in der Sonne bietet.
Im Erdgeschoss befindet sich das lichtdurchflutete Wohnzimmer, das durch eine große Fensterfront viel Tageslicht einlässt. Von hier aus gelangen Sie direkt in den Garten, der zum Entspannen und Verweilen einlädt. Das Wohnzimmer ist zudem mit einer Empore ausgestattet, die zusätzlichen Charme und Gestaltungsfreiheit bietet und momentan als großzügies Esszimmer genutzt wird.
Die drei Badezimmer des Hauses sind funktional gestaltet: Eines ist mit einer Badewanne ausgestattet, die beiden anderen Badezimmer verfügen über Duschen.
Der Souterrain-Bereich des Hauses eröffnet vielfältige Nutzungsmöglichkeiten. Ob als Hobbyraum, Home-Office oder als zusätzlicher Stauraum – hier können Sie Ihrer Kreativität freien Lauf lassen und den Raum ganz nach Ihren Bedürfnissen gestalten.
Dieses renovierungsbedürftige Reihenendhaus bietet eine solide Grundlage für individuelles Wohnen mit viel Potenzial zur persönlichen Gestaltung. Nach einer Renovierung könnte dieses Haus zu einem wahren Schmuckstück werden und im neuen Glanz erstrahlen.
Ausstattung
| Küche | Einbauküche |
| Bad | 3 |
| Garage/Stellplätze | 1 |
| Keller |
• Exklusive Lage in einer der begehrtesten Wohngegenden Münchens – ruhig, grün und zentral
• Weitläufiger Garten mit viel Platz zum Entspannen, Spielen oder Gärtnern – eine grüne Oase mitten in der Stadt
• Großzügige Dachterrasse – ideal für sonnige Stunden, gesellige Abende oder einfach zum Abschalten
• Wellness im eigenen Zuhause – mit einer privaten Sauna im Untergeschoss für entspannte Auszeiten
• Hochwertige Küchenausstattung mit eleganten Gaggenau-Geräten – für stilvollen Kochkomfort auf höchstem Niveau
• Das Haus wurde in Split-Level-Bauweise errichtet
• Es gibt einen Stellplatz und eine Garage
• Weitläufiger Garten mit viel Platz zum Entspannen, Spielen oder Gärtnern – eine grüne Oase mitten in der Stadt
• Großzügige Dachterrasse – ideal für sonnige Stunden, gesellige Abende oder einfach zum Abschalten
• Wellness im eigenen Zuhause – mit einer privaten Sauna im Untergeschoss für entspannte Auszeiten
• Hochwertige Küchenausstattung mit eleganten Gaggenau-Geräten – für stilvollen Kochkomfort auf höchstem Niveau
• Das Haus wurde in Split-Level-Bauweise errichtet
• Es gibt einen Stellplatz und eine Garage
Sonstige Informationen
Baujahr: 1973
Energieausweistyp: Bedarfsausweis
Energiekennwert: 197,2 kWh/(m²*a)
Energieeffizienzklasse: F
Heizungsart: Zentralheizung
Befeuerung/Energieträger: Erdgas leicht
Energieausweistyp: Bedarfsausweis
Energiekennwert: 197,2 kWh/(m²*a)
Energieeffizienzklasse: F
Heizungsart: Zentralheizung
Befeuerung/Energieträger: Erdgas leicht
Lage des Objektes
Bestlage München Herzogpark - es gibt wenige Lagen, die so viel zu bieten haben: schnell in der Stadt und dennoch entspannt im Grünen - direkt am Wasser des Isarkanals gelegen und fußläufig nur wenige Meter über die Isarbrücke zum Englischen Garten!
Der Herzogpark am Fuße des Isarhanges, zum edlen Ortsteil Alt-Bogenhausen gehörend, kann wohl als eine der exponiertesten Lagen für anspruchsvolles Wohnen bezeichnet werden. Jeder Spaziergang durch die idyllischen, von prächtigen Baumalleen gesäumten Wohnstraßen endet unweigerlich in einem schönen Park oder am Hochufer der Isar. Über das Isarwehr sind es auch nur wenige Meter in den Englischen Garten.
Ausschließlich hochwertige Villenanwesen aus den verschiedensten Bauepochen sowie exklusive, kleine Wohnanlagen mit interessanten architektonischen Lösungen prägen dieses Bild der Ruhe. Eine Anzahl von beschaulichen Spazierwegen entlang der Isar, Einkaufsmöglichkeiten für den täglichen Bedarf, der beliebte Biergarten St. Emmeram sowie schöne Tennisclubs findet man in der Umgebung.
Die besonders günstige Lage zur Innenstadt (10 Minuten) bei gleichzeitigem Wohnen im Grünen macht den Herzogpark zu einer herausragenden Wohngegend, die weit über die Landeshauptstadt hinaus bekannt ist.
Der Herzogpark am Fuße des Isarhanges, zum edlen Ortsteil Alt-Bogenhausen gehörend, kann wohl als eine der exponiertesten Lagen für anspruchsvolles Wohnen bezeichnet werden. Jeder Spaziergang durch die idyllischen, von prächtigen Baumalleen gesäumten Wohnstraßen endet unweigerlich in einem schönen Park oder am Hochufer der Isar. Über das Isarwehr sind es auch nur wenige Meter in den Englischen Garten.
Ausschließlich hochwertige Villenanwesen aus den verschiedensten Bauepochen sowie exklusive, kleine Wohnanlagen mit interessanten architektonischen Lösungen prägen dieses Bild der Ruhe. Eine Anzahl von beschaulichen Spazierwegen entlang der Isar, Einkaufsmöglichkeiten für den täglichen Bedarf, der beliebte Biergarten St. Emmeram sowie schöne Tennisclubs findet man in der Umgebung.
Die besonders günstige Lage zur Innenstadt (10 Minuten) bei gleichzeitigem Wohnen im Grünen macht den Herzogpark zu einer herausragenden Wohngegend, die weit über die Landeshauptstadt hinaus bekannt ist.
Anbieter kontaktieren
Kontakt
| Telefon | +49 (89) 17 87 87 0 |
| Fax | (089) 17 87 87 88 |
| Website | www.aigner-immobilien.de |
