Mehrgenerationshaus in Bad Oeynhausen
475.000 €
Kaufpreis
immobilien.de Nr.: 9103178
Objektnummer: 2419 (1/562)
Preise & Kosten
| Kaufpreis | 475.000 € |
| Nebenkosten | keine Angabe |
| Maklerprovision | Vermittlungsprovision von 1,785 % des Kaufpreises einschließlich. MwSt. ist vom Erwerber zu tragen. |
Größe & Zustand
| Gesamtfläche | 400 m² |
| Grundstücksfläche | 773 m² |
| Baujahr | 1925 |
| Verfügbar ab | keine Angabe |
Energie
| Energieausweistyp | Bedarfsausweis |
| Ausstellungsdatum | 10. 05. 2018 |
| Gültig bis | 09.05.2028 00:00:00 |
| Baujahr (laut Energieausweis) | 1925 |
| Energieeffizienzklasse | E |
| Endenergiebedarf | 132 |
| Wesentlicher Energieträger | Gas |
| Energieträger/Befeuerung | Gas |
Objektbeschreibung
Diese bemerkenswerte Liegenschaft befindet sich in ruhiger, bevorzugter Lage der Südstadt auf einem 773 m² großen Grundstück.
Ursprünglich 1926 erbaut, erfolgte 1985 ein Anbau nebst Umnutzung als Gaststätte mit Wohnung. 2018 wurde eine Nutzungsänderung zu einem Wohnhaus mit 3 separaten Wohnungen genehmigt.
Im Nachgang ist das gesamte Erdgeschoss entkernt und hinsichtlich der räumlichen Aufteilung zu zwei Wohnungen umgestaltet worden.
Der aktuelle Ausbauzustand stellt sich wie folgt dar:
• Kellergeschoss:
Elektroinstallationen überwiegend erneuert
Drainage verlegt
Perimeterdämmung der Außenwände
• Erdgeschoss:
Das Erdgeschoss ist entkernt und derzeit nicht an die Heizungsanlage angeschlossen, insofern beziehen sich die Daten des Energieausweises nur auf die Wohnung im Dachgeschoss.
Elektroinstallationen sind teilweise neu verlegt.
• Dachgeschoss:
die Wohnung im Dachgeschoss befindet sich im Ausbauzustand der 1980er Jahre
• Mauerwerk:
Einblasdämmung in der Hohlschicht vorhanden (nicht beim hinteren Anbau).
• Heizung:
Gas-Zentralheizungsanlage aus 2008
• Fenster:
Im Jahr 2018/19 wurden sämtliche Fenster durch Kunststofffenster mit Dreifachverglasung ersetzt
Räumlichkeiten gemäß derzeitiger Planung:
Wohnung 1:
Erdgeschoss
Flur, Esszimmer , Wohnzimmer, Schlafzimmer, Küche, Duschbad mit WC
Wohnfläche: 105,33 m²
Wohnung 2:
Erdgeschoss
Flur mit Treppenabgang ins Kellergeschoss, Wohnküche, Schlafzimmer, Duschbad und WC im Kellergeschoss, sowie drei Abstellräume mit insgesamt ca. 37 m² Nutzfläche
Wohnfläche: 91,40 m²
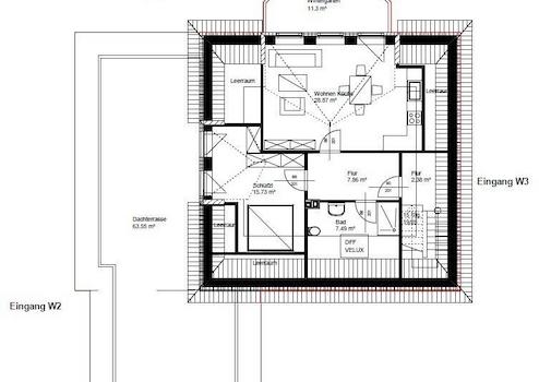
Wohnung 3:
Dachgeschoss
Flur, Küche, Wohnzimmer, Schlafzimmer, Duschbad / WC
Die Gestaltung einer großen Dachterrasse ist genehmigt, ebenso ein Wintergarten auf dem Erker.
Derzeitige Wohnfläche: 62,33 m², zzgl. anteilige Dachterrasse und Wintergarten = ca. 88 m² Wohnfläche
Kellergeschoss:
Neben dem Sanitärbereich der Wohnung 2 befinden sich im Kellergeschoss 4 Abstellräume mit einer Nutzfläche von insgesamt 46,72 m²
Darüber hinaus weitere 3 Abstellräume mit einer Nutzfläche von ca. 66 m².
Nebengebäude:
Massive Flachdachgarage mit Abstellraum (Dach erneuert)
Eine Teilung gemäß Wohnungseigentumsgesetz ist möglich.
Ursprünglich 1926 erbaut, erfolgte 1985 ein Anbau nebst Umnutzung als Gaststätte mit Wohnung. 2018 wurde eine Nutzungsänderung zu einem Wohnhaus mit 3 separaten Wohnungen genehmigt.
Im Nachgang ist das gesamte Erdgeschoss entkernt und hinsichtlich der räumlichen Aufteilung zu zwei Wohnungen umgestaltet worden.
Der aktuelle Ausbauzustand stellt sich wie folgt dar:
• Kellergeschoss:
Elektroinstallationen überwiegend erneuert
Drainage verlegt
Perimeterdämmung der Außenwände
• Erdgeschoss:
Das Erdgeschoss ist entkernt und derzeit nicht an die Heizungsanlage angeschlossen, insofern beziehen sich die Daten des Energieausweises nur auf die Wohnung im Dachgeschoss.
Elektroinstallationen sind teilweise neu verlegt.
• Dachgeschoss:
die Wohnung im Dachgeschoss befindet sich im Ausbauzustand der 1980er Jahre
• Mauerwerk:
Einblasdämmung in der Hohlschicht vorhanden (nicht beim hinteren Anbau).
• Heizung:
Gas-Zentralheizungsanlage aus 2008
• Fenster:
Im Jahr 2018/19 wurden sämtliche Fenster durch Kunststofffenster mit Dreifachverglasung ersetzt
Räumlichkeiten gemäß derzeitiger Planung:
Wohnung 1:
Erdgeschoss
Flur, Esszimmer , Wohnzimmer, Schlafzimmer, Küche, Duschbad mit WC
Wohnfläche: 105,33 m²
Wohnung 2:
Erdgeschoss
Flur mit Treppenabgang ins Kellergeschoss, Wohnküche, Schlafzimmer, Duschbad und WC im Kellergeschoss, sowie drei Abstellräume mit insgesamt ca. 37 m² Nutzfläche
Wohnfläche: 91,40 m²
Wohnung 3:
Dachgeschoss
Flur, Küche, Wohnzimmer, Schlafzimmer, Duschbad / WC
Die Gestaltung einer großen Dachterrasse ist genehmigt, ebenso ein Wintergarten auf dem Erker.
Derzeitige Wohnfläche: 62,33 m², zzgl. anteilige Dachterrasse und Wintergarten = ca. 88 m² Wohnfläche
Kellergeschoss:
Neben dem Sanitärbereich der Wohnung 2 befinden sich im Kellergeschoss 4 Abstellräume mit einer Nutzfläche von insgesamt 46,72 m²
Darüber hinaus weitere 3 Abstellräume mit einer Nutzfläche von ca. 66 m².
Nebengebäude:
Massive Flachdachgarage mit Abstellraum (Dach erneuert)
Eine Teilung gemäß Wohnungseigentumsgesetz ist möglich.
Ausstattung
| Bad | Dusche |
Sonstige Informationen
Alle Daten und Angaben stammen vom Eigentümer, für deren Richtigkeit wir keine Gewähr übernehmen. Zwischenverkauf vorbehalten.
Kontakt
| Telefon | +49 4451 9610757 |
| Mobil | +49 1577 9595239 |
| Fax | +49 4451 9610758 |
| Website | www.raetzke-immobilien.de |
