Projektvorbereitung – Senioren- Wohnprojekt mit Betreuungsanschluss- Burscheid-Hilgen
101.500 €
Kaufpreis
50 m²
Wohnfläche
2
Zimmer
immobilien.de Nr.: 9077465
Objektnummer: AU378
Preise & Kosten
| Kaufpreis | 101.500 € |
| Nebenkosten | keine Angabe |
| Hausgeld | 600 € |
| Maklerprovision | keine |
| Stellplatz Tiefgarage Kaufpreis | 0 € |
| Stellplatz Tiefgarage Miete | 0 € |
Größe & Zustand
| Wohnfläche | 50 m² |
| Zimmer | 2 |
| Baujahr | 2026 |
| Verfügbar ab | keine Angabe |
| Zustand | Erstbezug |
Energie
| Energieausweistyp | Bedarfsausweis |
| Gültig bis | 2035-07-21 |
| Baujahr (laut Energieausweis) | 2027 |
| Energieeffizienzklasse | A+ |
| Endenergiebedarf | 15.00 |
| Heizungsart | Fußbodenheizung |
| Wesentlicher Energieträger | Solar |
| Energieträger/Befeuerung | Solar |
Objektbeschreibung
-Selbstbestimmt handlen und frühzeitig einen Platz im barrierefreien Genossenschaftsprojekt mit Betreuungsmöglichkeit sichern!
Zur Auswahl stehen:
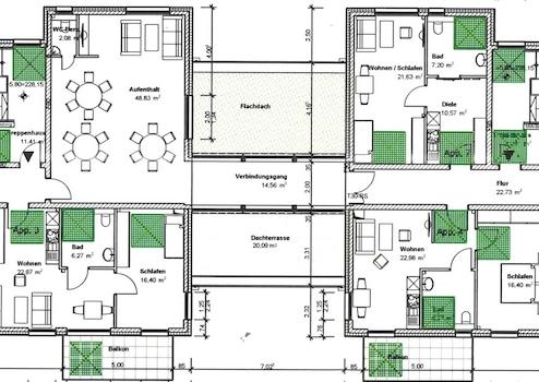
a)2-Raum-Penthouse mit ca. 66 qm Wfl.
b)Wohngruppen-Appartement ca. 45 qm +
Gemeinschafts-Wohnraum
c)1-Raum-Wohnung mit ca. 56 qm Wfl.
d)3-Raum-WE mit ca. 80 qm Wfl.
Zur Auswahl stehen:
a)2-Raum-Penthouse mit ca. 66 qm Wfl.
b)Wohngruppen-Appartement ca. 45 qm +
Gemeinschafts-Wohnraum
c)1-Raum-Wohnung mit ca. 56 qm Wfl.
d)3-Raum-WE mit ca. 80 qm Wfl.
Ausstattung
| Anzahl der Etagen im Haus | 2 |
| Bad | 1 |
| Fahrstuhl |
- Co2-freie Wärmeversorgung
- Fußbodenheizung
- Gemeinschaftsraum
- Parkettboden
- barrierefrei auf allen Ebenen
- Lüftungsanlage mit Wärmerückgewinnung
- Fußbodenheizung
- Gemeinschaftsraum
- Parkettboden
- barrierefrei auf allen Ebenen
- Lüftungsanlage mit Wärmerückgewinnung
Sonstige Informationen
- Beteiligung ab 101.500,00 € / Monatsaufwand ab - Nutzungsbetrag mtl. ab 600,00 € inkl. Nebenkosten
- 11.500,00 € Sofortzahlung + Hinterlegung Restbetrag zu 4% Zinsen bis zur Baugenehmigung auf einem Projekt- gesichertem Treuhandkonto
- Tiefgarage oder Carport-Stellplatz möglich
- Gartenwohnung möglich
- Genossenschaftsbeteiligung mit Vermögenssicherung
- Geplante Fertigstellung Juli 2027
Mailadresse:
Genossenschaft-burscheid@i-d-g.de
Tel.-Nr. Marisa: 0221-29977102
0152-37160628
-Sichern Sie sich schon jetzt einen Platz im barrierefreiem Genossenschaftsprojekt!
- 11.500,00 € Sofortzahlung + Hinterlegung Restbetrag zu 4% Zinsen bis zur Baugenehmigung auf einem Projekt- gesichertem Treuhandkonto
- Tiefgarage oder Carport-Stellplatz möglich
- Gartenwohnung möglich
- Genossenschaftsbeteiligung mit Vermögenssicherung
- Geplante Fertigstellung Juli 2027
Mailadresse:
Genossenschaft-burscheid@i-d-g.de
Tel.-Nr. Marisa: 0221-29977102
0152-37160628
-Sichern Sie sich schon jetzt einen Platz im barrierefreiem Genossenschaftsprojekt!
Lage des Objektes
Ruhige Lage in Burscheid-Hilgen,
wenige Fußminuten zum Einkauf für den täglichen Bedarfs.
Nur wenige Meter vom Haus entfernt führt der beliebte Fahrrad- und Wanderweg „Balkantrasse“ von Opladen bis Lennep oder Marienheide. Hinter der Balkantrasse verläuft das schöne Murbachtal bis nach Leichlingen.
Eine direkte Anbindung gibt es nach Opladen, Wermelskirchen, Wipperfürth bis nach Marienheide.
wenige Fußminuten zum Einkauf für den täglichen Bedarfs.
Nur wenige Meter vom Haus entfernt führt der beliebte Fahrrad- und Wanderweg „Balkantrasse“ von Opladen bis Lennep oder Marienheide. Hinter der Balkantrasse verläuft das schöne Murbachtal bis nach Leichlingen.
Eine direkte Anbindung gibt es nach Opladen, Wermelskirchen, Wipperfürth bis nach Marienheide.
Anbieter kontaktieren
Anbieter
Immobilien Dienstleistungs AG
Erik-Nölting-Str. 24
40227 Düsseldorf
Kontakt
| Telefon | 004922129977102 |
