Neues AktionsHaus Family L
774.999 €
Kaufpreis
158 m²
Wohnfläche
158 m²
Nutzfläche
5
Zimmer
immobilien.de Nr.: 9020276
Objektnummer: AA-15-011-KWH
Preise & Kosten
| Kaufpreis | 774.999 € |
| Nebenkosten | keine Angabe |
Größe & Zustand
| Wohnfläche | 158 m² |
| Nutzfläche | 158 m² |
| Grundstücksfläche | 810 m² |
| Zimmer | 5 |
| Verfügbar ab | Neubau |
| Zustand | Projektiert |
Energie
| Energietyp | KfW-40 |
| Heizungsart | Zentralheizung |
| Energieträger/Befeuerung | Luft-Wärme-Pumpe |
Objektbeschreibung
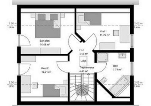
Das moderne Stadthaus von STREIF wird von einem Übereck-Erker und einem überdachten Hauseingang mit angeschlossenem Carport akzentuiert. Auf einer Raumgrundfläche von 158 m² sind 3 Schlafräume, 2 Bäder, ein
Arbeitszimmer, ein Hauswirtschafts-/Haustechnikraum und der geräumige Wohn-/Ess- und Kochbereich
untergebracht. Das Haus kann auch über einen Nebeneingang vom Carport aus betreten werden.
Dieser Hausentwurf ist ein Gestaltungsvorschlag. Individuelle Anpassungen wie z. B. in der Hausgröße, der
Dachgeometrie oder den Fenstergrößen und Positionierungen sind möglich. Fragen Sie Ihre persönliche
STREIF-Bauberatung. Andreas Arnhold 0179 - 5910108
Arbeitszimmer, ein Hauswirtschafts-/Haustechnikraum und der geräumige Wohn-/Ess- und Kochbereich
untergebracht. Das Haus kann auch über einen Nebeneingang vom Carport aus betreten werden.
Dieser Hausentwurf ist ein Gestaltungsvorschlag. Individuelle Anpassungen wie z. B. in der Hausgröße, der
Dachgeometrie oder den Fenstergrößen und Positionierungen sind möglich. Fragen Sie Ihre persönliche
STREIF-Bauberatung. Andreas Arnhold 0179 - 5910108
Ausstattung
| Anzahl der Etagen im Haus | 2 |
| Bad | 2 |
| Bad | Dusche, Wanne, Fenster |
STREIF-Häuser sind Energiesparhäuser. Die Außenwände im Passiv-Haus-Standard und eine sparsame
Heiztechnik mit integrierter Wohnraumlüftung und Wärmerückgewinnung, garantieren einen geringen
Energieverbrauch und ein fantastisches Raumklima, das insbesondere Allergiker aufatmen lässt.
STREIF Leistungen sind MEHR WERT - schon im Grundpreis enthalten!
- 16-monatige Festpreisgarantie
- Energieeffizienzhaus KfW 40 EE im Standard
- Inkl. individuelle Grundrissgestaltung und Raumaufteilung
- Inkl. Fundamentplatte
- Inkl. STREIF-Luft-Luft-Wärmepumpe mit integrierter
Lüftungsanlage mit Wärmerückgewinnung
- Inkl. Haustür von KERA und Fenster von Porta/Kömmerling
- Inkl. Massivholz-Geschosstreppe aus eigener Produktion
- Inkl. Sanitärobjekte von Markenherstellern
- Inkl. Elektroinstallation
- Inkl. Baubetreuung u.v.m.
Die hohe Wertigkeit und Langlebigkeit eines STREIF-Energiespar-Hauses wird durch zahlreiche
Auszeichnungen, Qualitäts- und Gütesiegel unabhängiger Institute und Verbände dokumentiert.
Der Angebotspreis ist inklusive Grundstück und bezieht sich auf die Standard-Ausbaustufe Fast-Fertig-Plus. Ihre
Eigenleistungen: Spachtel-,Tapezier- und Malerarbeiten, Bodenbeläge, Innentüren.
Baunebenkosten fallen zuzüglich an.
Der Verkauf des Grundstücks erfolgt über einen unserer Netzwerkpartner.
Bilder können evtl. Anbauteile, Carports, Balkone, Gauben usw. zeigen, die nicht im Angebotspreis enthalten
sind. Änderungen und Irrtümer vorbehalten.
Heiztechnik mit integrierter Wohnraumlüftung und Wärmerückgewinnung, garantieren einen geringen
Energieverbrauch und ein fantastisches Raumklima, das insbesondere Allergiker aufatmen lässt.
STREIF Leistungen sind MEHR WERT - schon im Grundpreis enthalten!
- 16-monatige Festpreisgarantie
- Energieeffizienzhaus KfW 40 EE im Standard
- Inkl. individuelle Grundrissgestaltung und Raumaufteilung
- Inkl. Fundamentplatte
- Inkl. STREIF-Luft-Luft-Wärmepumpe mit integrierter
Lüftungsanlage mit Wärmerückgewinnung
- Inkl. Haustür von KERA und Fenster von Porta/Kömmerling
- Inkl. Massivholz-Geschosstreppe aus eigener Produktion
- Inkl. Sanitärobjekte von Markenherstellern
- Inkl. Elektroinstallation
- Inkl. Baubetreuung u.v.m.
Die hohe Wertigkeit und Langlebigkeit eines STREIF-Energiespar-Hauses wird durch zahlreiche
Auszeichnungen, Qualitäts- und Gütesiegel unabhängiger Institute und Verbände dokumentiert.
Der Angebotspreis ist inklusive Grundstück und bezieht sich auf die Standard-Ausbaustufe Fast-Fertig-Plus. Ihre
Eigenleistungen: Spachtel-,Tapezier- und Malerarbeiten, Bodenbeläge, Innentüren.
Baunebenkosten fallen zuzüglich an.
Der Verkauf des Grundstücks erfolgt über einen unserer Netzwerkpartner.
Bilder können evtl. Anbauteile, Carports, Balkone, Gauben usw. zeigen, die nicht im Angebotspreis enthalten
sind. Änderungen und Irrtümer vorbehalten.
Sonstige Informationen
STREIF Haus - der Pionier der deutschen Fertighausbranche
Die langjährige Firmentradition des Unternehmens reicht bis in das Jahr 1929 zurück. In den 50er und 60er Jahren wurde in Deutschland schnell und viel Wohnraum für Familien benötigt, seitdem konzentrierte sich das Unternehmen auf die Entwicklung und Produktion von Fertighaustypen, die im Werk in großen Stückzahlen hergestellt werden konnten. So kann das Unternehmen auf 90.000 gebaute Hausobjekte zurückblicken und sich zu Recht als Pionier der deutschen Fertighausbranche bezeichnen.
Die neuen Energiesparhäuser - So baut man heute.
Unser Anspruch ist es, in enger Partnerschaft mit unseren Kunden langlebige Häuser zu bauen, mit einer hohen architektonischen Qualität, individuell geplant und dabei energieeffizient und ressourcenschonend. Jedes STREIF-Haus ist einzigartig und wird speziell für jeden Kunden "maßgeschneidert" und gebaut. Passend zu den persönlichen Wünschen, dem vorgegebenen Budget und dem vorhandenen Grundstück planen und bauen wir jedes Haus mit viel Liebe zum Detail.
Die langjährige Firmentradition des Unternehmens reicht bis in das Jahr 1929 zurück. In den 50er und 60er Jahren wurde in Deutschland schnell und viel Wohnraum für Familien benötigt, seitdem konzentrierte sich das Unternehmen auf die Entwicklung und Produktion von Fertighaustypen, die im Werk in großen Stückzahlen hergestellt werden konnten. So kann das Unternehmen auf 90.000 gebaute Hausobjekte zurückblicken und sich zu Recht als Pionier der deutschen Fertighausbranche bezeichnen.
Die neuen Energiesparhäuser - So baut man heute.
Unser Anspruch ist es, in enger Partnerschaft mit unseren Kunden langlebige Häuser zu bauen, mit einer hohen architektonischen Qualität, individuell geplant und dabei energieeffizient und ressourcenschonend. Jedes STREIF-Haus ist einzigartig und wird speziell für jeden Kunden "maßgeschneidert" und gebaut. Passend zu den persönlichen Wünschen, dem vorgegebenen Budget und dem vorhandenen Grundstück planen und bauen wir jedes Haus mit viel Liebe zum Detail.
Lage des Objektes
Unser STREIF - Grundstücksservice ist unseren Kunden vorenthalten. Gerne Prüfen wir mit Ihnen gemeinsam ob STREIF zu Ihnen passt. Hierzu stehen wir Ihnen in einem persönlichen Gespräch zur Seite. Rufen Sie mich an, um Ihre individuelle, oder standardisierte Hausplanung fertig zu stellen. 0179 - 5910108 Andreas Arnhold
Anbieter kontaktieren
Kontakt
| Telefon | +49 3327 6679013 |
| Mobil | +49 179 5910108 |
| Website | www.streif.de |
