Großes Haus auf großem Grundstück
953.106 €
Kaufpreis
146 m²
Wohnfläche
205 m²
Nutzfläche
4
Zimmer
immobilien.de Nr.: 9020274
Objektnummer: AA-15-009-Brie
Preise & Kosten
| Kaufpreis | 953.106 € |
| Nebenkosten | keine Angabe |
Größe & Zustand
| Wohnfläche | 146 m² |
| Nutzfläche | 205 m² |
| Grundstücksfläche | 830 m² |
| Zimmer | 4 |
| Verfügbar ab | keine Angabe |
| Zustand | Projektiert |
Energie
| Energietyp | KfW-40 |
| Heizungsart | Zentralheizung |
| Energieträger/Befeuerung | Luft-Wärme-Pumpe |
Objektbeschreibung
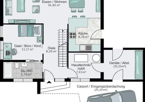
Der Hausentwurf Bitburg überzeugt mit exklusivem Charme und vielen Details. Die Architektur ist im
zweigeschossigen Stadtvillenstil angelegt. Die Frontseite wird durch die Überdachung des
Hauseingangsbereiches gekennzeichnet, die gemeinsam mit einem vorgelagerten Carport eine Einheit bildet. Die
Gartenseite der Stadtvilla Bitburg punktet mit drei großen doppelflügeligen Terrassentüren, die den gesamten
Wohn-/Ess- und Kochbereich mit Tageslicht verwöhnen. Das Obergeschoss bietet den Komfort einer
Dachterrasse mit Loggia, die einen einzigartigen und beschützenden Wohlfühlbereich für die Hausbesitzer
darstellt.
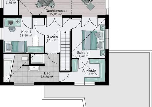
In der Grundrissgestaltung ist neben dem großzügigen Wohn-/Ess- und Kochbereich ein Zusatzraum angelegt,
der als Büro, Schlaf-/Hobby- oder Gästezimmer genutzt werden kann. Weiteren Komfort bietet ein Duschbad, ein
Hauswirtschaftsraum und ein separater Raum für die Haustechnik, der über eine Nebeneingangstür vom Carport
aus betreten werden kann. Das Highlight im Obergeschoss ist die Dachterrasse mit Loggia. Der überdachte
Bereich wird sicher schnell zu ihrem Lieblingsrefugium. Neben dem Elternschlafbereich mit Ankleide befinden
sich im Obergeschoss ein schönes Kinderzimmer und ein großes Bad.
Objektart: Zweigeschossige Stadtvilla
Dachform: Walmdach
zweigeschossigen Stadtvillenstil angelegt. Die Frontseite wird durch die Überdachung des
Hauseingangsbereiches gekennzeichnet, die gemeinsam mit einem vorgelagerten Carport eine Einheit bildet. Die
Gartenseite der Stadtvilla Bitburg punktet mit drei großen doppelflügeligen Terrassentüren, die den gesamten
Wohn-/Ess- und Kochbereich mit Tageslicht verwöhnen. Das Obergeschoss bietet den Komfort einer
Dachterrasse mit Loggia, die einen einzigartigen und beschützenden Wohlfühlbereich für die Hausbesitzer
darstellt.
In der Grundrissgestaltung ist neben dem großzügigen Wohn-/Ess- und Kochbereich ein Zusatzraum angelegt,
der als Büro, Schlaf-/Hobby- oder Gästezimmer genutzt werden kann. Weiteren Komfort bietet ein Duschbad, ein
Hauswirtschaftsraum und ein separater Raum für die Haustechnik, der über eine Nebeneingangstür vom Carport
aus betreten werden kann. Das Highlight im Obergeschoss ist die Dachterrasse mit Loggia. Der überdachte
Bereich wird sicher schnell zu ihrem Lieblingsrefugium. Neben dem Elternschlafbereich mit Ankleide befinden
sich im Obergeschoss ein schönes Kinderzimmer und ein großes Bad.
Objektart: Zweigeschossige Stadtvilla
Dachform: Walmdach
Ausstattung
| Anzahl der Etagen im Haus | 2 |
| Bad | 2 |
| Bad | Dusche, Wanne, Fenster |
STREIF-Häuser sind Energiesparhäuser. Die Außenwände im Passiv-Haus-Standard und eine sparsame
Heiztechnik mit integrierter Wohnraumlüftung und Wärmerückgewinnung, garantieren einen geringen
Energieverbrauch und ein fantastisches Raumklima, das insbesondere Allergiker aufatmen lässt.
STREIF Leistungen sind MEHR WERT - schon im Grundpreis enthalten!
- 16-monatige Festpreisgarantie
- Energieeffizienzhaus KfW 40 EE im Standard
- Inkl. individuelle Grundrissgestaltung und Raumaufteilung
- Inkl. Fundamentplatte
- Inkl. STREIF-Luft-Luft-Wärmepumpe mit integrierter
Lüftungsanlage mit Wärmerückgewinnung
- Inkl. Haustür von KERA und Fenster von Porta/Kömmerling
- Inkl. Massivholz-Geschosstreppe aus eigener Produktion
- Inkl. Sanitärobjekte von Markenherstellern
- Inkl. Elektroinstallation
- Inkl. Baubetreuung u.v.m.
Die hohe Wertigkeit und Langlebigkeit eines STREIF-Energiespar-Hauses wird durch zahlreiche
Auszeichnungen, Qualitäts- und Gütesiegel unabhängiger Institute und Verbände dokumentiert.
Der Angebotspreis ist inklusive Grundstück und bezieht sich auf die Standard-Ausbaustufe Fast-Fertig-Plus. Ihre
Eigenleistungen: Spachtel-,Tapezier- und Malerarbeiten, Bodenbeläge, Innentüren.
Baunebenkosten fallen zuzüglich an.
Der Verkauf des Grundstücks erfolgt über einen unserer Netzwerkpartner.
Bilder können evtl. Anbauteile, Carports, Balkone, Gauben usw. zeigen, die nicht im Angebotspreis enthalten
sind. Änderungen und Irrtümer vorbehalten.
Heiztechnik mit integrierter Wohnraumlüftung und Wärmerückgewinnung, garantieren einen geringen
Energieverbrauch und ein fantastisches Raumklima, das insbesondere Allergiker aufatmen lässt.
STREIF Leistungen sind MEHR WERT - schon im Grundpreis enthalten!
- 16-monatige Festpreisgarantie
- Energieeffizienzhaus KfW 40 EE im Standard
- Inkl. individuelle Grundrissgestaltung und Raumaufteilung
- Inkl. Fundamentplatte
- Inkl. STREIF-Luft-Luft-Wärmepumpe mit integrierter
Lüftungsanlage mit Wärmerückgewinnung
- Inkl. Haustür von KERA und Fenster von Porta/Kömmerling
- Inkl. Massivholz-Geschosstreppe aus eigener Produktion
- Inkl. Sanitärobjekte von Markenherstellern
- Inkl. Elektroinstallation
- Inkl. Baubetreuung u.v.m.
Die hohe Wertigkeit und Langlebigkeit eines STREIF-Energiespar-Hauses wird durch zahlreiche
Auszeichnungen, Qualitäts- und Gütesiegel unabhängiger Institute und Verbände dokumentiert.
Der Angebotspreis ist inklusive Grundstück und bezieht sich auf die Standard-Ausbaustufe Fast-Fertig-Plus. Ihre
Eigenleistungen: Spachtel-,Tapezier- und Malerarbeiten, Bodenbeläge, Innentüren.
Baunebenkosten fallen zuzüglich an.
Der Verkauf des Grundstücks erfolgt über einen unserer Netzwerkpartner.
Bilder können evtl. Anbauteile, Carports, Balkone, Gauben usw. zeigen, die nicht im Angebotspreis enthalten
sind. Änderungen und Irrtümer vorbehalten.
Sonstige Informationen
STREIF Haus - der Pionier der deutschen Fertighausbranche
Die langjährige Firmentradition des Unternehmens reicht bis in das Jahr 1929 zurück. In den 50er und 60er Jahren wurde in Deutschland schnell und viel Wohnraum für Familien benötigt, seitdem konzentrierte sich das Unternehmen auf die Entwicklung und Produktion von Fertighaustypen, die im Werk in großen Stückzahlen hergestellt werden konnten. So kann das Unternehmen auf 90.000 gebaute Hausobjekte zurückblicken und sich zu Recht als Pionier der deutschen Fertighausbranche bezeichnen.
Die neuen Energiesparhäuser - So baut man heute.
Unser Anspruch ist es, in enger Partnerschaft mit unseren Kunden langlebige Häuser zu bauen, mit einer hohen architektonischen Qualität, individuell geplant und dabei energieeffizient und ressourcenschonend. Jedes STREIF-Haus ist einzigartig und wird speziell für jeden Kunden "maßgeschneidert" und gebaut. Passend zu den persönlichen Wünschen, dem vorgegebenen Budget und dem vorhandenen Grundstück planen und bauen wir jedes Haus mit viel Liebe zum Detail.
Die langjährige Firmentradition des Unternehmens reicht bis in das Jahr 1929 zurück. In den 50er und 60er Jahren wurde in Deutschland schnell und viel Wohnraum für Familien benötigt, seitdem konzentrierte sich das Unternehmen auf die Entwicklung und Produktion von Fertighaustypen, die im Werk in großen Stückzahlen hergestellt werden konnten. So kann das Unternehmen auf 90.000 gebaute Hausobjekte zurückblicken und sich zu Recht als Pionier der deutschen Fertighausbranche bezeichnen.
Die neuen Energiesparhäuser - So baut man heute.
Unser Anspruch ist es, in enger Partnerschaft mit unseren Kunden langlebige Häuser zu bauen, mit einer hohen architektonischen Qualität, individuell geplant und dabei energieeffizient und ressourcenschonend. Jedes STREIF-Haus ist einzigartig und wird speziell für jeden Kunden "maßgeschneidert" und gebaut. Passend zu den persönlichen Wünschen, dem vorgegebenen Budget und dem vorhandenen Grundstück planen und bauen wir jedes Haus mit viel Liebe zum Detail.
Lage des Objektes
Unser STREIF - Grundstücksservice ist unseren Kunden vorenthalten. Gerne Prüfen wir mit Ihnen gemeinsam ob STREIF zu Ihnen passt. Hierzu stehe ich Ihnen in einem persönlichen Gespräch zur Seite. Andreas Arnhold 0179 - 59 10 10 8
Anbieter kontaktieren
Kontakt
| Telefon | +49 3327 6679013 |
| Mobil | +49 179 5910108 |
| Website | www.streif.de |
