Schön gelegen am Utkiek: Altbau im Dornröschenschlaf
360.000 €
Kaufpreis
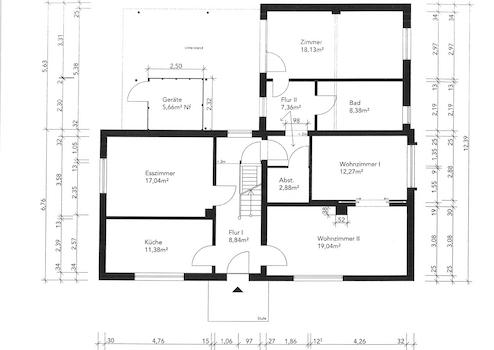
160 m²
Wohnfläche
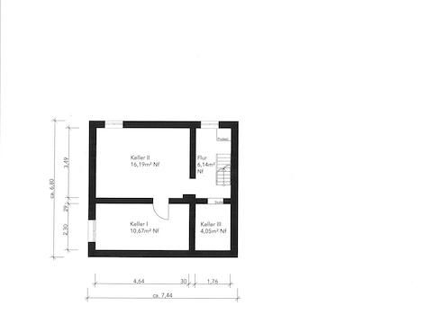
42 m²
Nutzfläche
6
Zimmer
immobilien.de Nr.: 8987289
Objektnummer: 5430#CaiPp
Preise & Kosten
| Kaufpreis | 360.000 € |
| Nebenkosten | keine Angabe |
| Maklerprovision | 3,57 |
Größe & Zustand
| Wohnfläche | 160 m² |
| Nutzfläche | 42 m² |
| Grundstücksfläche | 837 m² |
| Zimmer | 6 |
| Baujahr | 1920 |
| Letzte Modernisierung | 1986 |
| Verfügbar ab | Bereits frei! |
| Zustand | Sanierungsbeduerftig |
Energie
| Energieausweistyp | Bedarfsausweis |
| Ausstellungsdatum | 21. 02. 2025 |
| Gültig bis | 20.02.2035 |
| Baujahr (laut Energieausweis) | 1920 |
| Energieeffizienzklasse | H |
| Endenergiebedarf | 352.9 |
| Wesentlicher Energieträger | Öl |
| Energieträger/Befeuerung | Öl |
Objektbeschreibung
Dieses in Alleinlage gelegene, sanierungswürdige Einfamilienhaus ist ursprünglich aus dem Jahr 1920 und besticht durch seine Lage direkt am Utkiek in Oldenburg. Es ist bereits frei und wartet auf einen neuen Eigentümer, der es in neuem Glanz erstrahlen lässt.
Es ist in der Vergangenheit mehrfach umgebaut und modernisiert worden:
1958, 1967 und 1986 erfolgte der Umbau, der Ausbau vom Dach und der
Dachausbau ( Details siehe Rubrik Ausstattung).
Mit einer Wohnfläche von 160 m² und einer Nutzfläche von 42 m² auf einem 837 m² großen Grundstück bietet das Haus genügend Platz für eine Familie. Der Gebäudezustand ist unsaniert, was potenziellen Käufern die Möglichkeit bietet, ihr Traumhaus im Innenbereich nach ihren individuellen Vorstellungen zu gestalten.
Das Haus verfügt über insgesamt sechs Zimmer, darunter vier Schlafzimmer und zwei Badezimmer. Die Räumlichkeiten sind großzügig gestaltet und bieten viel Raum für Entfaltung und Kreativität. Der Keller bietet zusätzlichen Stauraum. Die Öl-Heizung ist bereits älter. Der Käufer sollte eine Erneuerung der Heizung in seinem Sanierungsplan mit einkalkulieren. Das Grundstück bietet neben einer großen Hoffläche im hinteren Bereich des Gartens weiteres Potential, um seine Gartenträume zu verwirklichen.
Der Garten ist fast uneinsehbar und durch die Lage des Grundstücks idyllisch und ruhig gelegen.
Die Terrasse lädt zum Verweilen im Freien ein und bietet die Möglichkeit für entspannte Stunden im eigenen Garten.
Ein Carport und weitere Außenstellplätze sind vorhanden, sodass hier ohne weiteres sechs Autos Platz finden.
Die Energieeffizienzklasse kann durch energetische Sanierungsmaßnahmen verbessert werden, um den Energieverbrauch und die Kosten zu senken.
Dieses Einfamilienhaus wartet darauf, von seinen neuen Besitzern liebevoll entdeckt und gestaltet zu werden.
Eine angenehme Wohngegend in Oldenburg mitten in der Natur!
Es ist in der Vergangenheit mehrfach umgebaut und modernisiert worden:
1958, 1967 und 1986 erfolgte der Umbau, der Ausbau vom Dach und der
Dachausbau ( Details siehe Rubrik Ausstattung).
Mit einer Wohnfläche von 160 m² und einer Nutzfläche von 42 m² auf einem 837 m² großen Grundstück bietet das Haus genügend Platz für eine Familie. Der Gebäudezustand ist unsaniert, was potenziellen Käufern die Möglichkeit bietet, ihr Traumhaus im Innenbereich nach ihren individuellen Vorstellungen zu gestalten.
Das Haus verfügt über insgesamt sechs Zimmer, darunter vier Schlafzimmer und zwei Badezimmer. Die Räumlichkeiten sind großzügig gestaltet und bieten viel Raum für Entfaltung und Kreativität. Der Keller bietet zusätzlichen Stauraum. Die Öl-Heizung ist bereits älter. Der Käufer sollte eine Erneuerung der Heizung in seinem Sanierungsplan mit einkalkulieren. Das Grundstück bietet neben einer großen Hoffläche im hinteren Bereich des Gartens weiteres Potential, um seine Gartenträume zu verwirklichen.
Der Garten ist fast uneinsehbar und durch die Lage des Grundstücks idyllisch und ruhig gelegen.
Die Terrasse lädt zum Verweilen im Freien ein und bietet die Möglichkeit für entspannte Stunden im eigenen Garten.
Ein Carport und weitere Außenstellplätze sind vorhanden, sodass hier ohne weiteres sechs Autos Platz finden.
Die Energieeffizienzklasse kann durch energetische Sanierungsmaßnahmen verbessert werden, um den Energieverbrauch und die Kosten zu senken.
Dieses Einfamilienhaus wartet darauf, von seinen neuen Besitzern liebevoll entdeckt und gestaltet zu werden.
Eine angenehme Wohngegend in Oldenburg mitten in der Natur!
Ausstattung
| Anzahl der Etagen im Haus | 1 |
| Küche | Einbauküche |
| Bad | 2 |
| Bad | Dusche, Wanne, Fenster |
| Boden | Fliesen, Teppich |
| Terrassen | 1 |
| Keller |
Wohnhaus: Bj 1920
Sanierungswürdig
Zweischaliges Mauerwerk (Hohlschicht), von außen verputzt
Teilkeller
Isolierverglasung
Decke EG zum DG: Holzbalkenlage
Fußboden in den beiden Wohnzimmern und im ehemaligen Fremdenzimmer: Holzbalkenlage
Bereits geräumt und frei!
Modernisiert:
1958 Dachausbau inkl. Gauben,
1967 Wohnungsvergrößerung und Garagen
1986 Dach nachgedämmt
Wohnfläche: ca. 160 qm
Nutzfläche: 42 m² (davon 37 m² Keller)
Grundstück: 837 m²
Altbau
Satteldach
Tondachziegel
Mehrere feuchte Stellen
Außenwand: verputzt
Teilkeller
Keller: Kappendecken
Im Keller: drei Räume (zwei Vorratsräume und ein Heizungsraum)
Bodenbeläge:
Teppich, Vinyl, PVC, Fliesen
Sechs Zimmer
Zwei Bäder
Abstellraum
zahlreiche Einbauschränke
Einbauküche mit E-Geräten
Fenster und Haustür: Kunststoff Isolierverglasung
Warmwassererzeugung:
Durchlauferhitzer (Wasser in der Küche und an den Waschbecken in den beiden Bädern)
Boiler (Badewanne und Dusche im EG)
Anschluss an Schmutzwasserkanal vorhanden
Öffentliches Wasser
Elektrik: Kippsicherungen und Drehsicherungen
neuer digitaler Stromzähler
Öl- Heizung:
Bj. 1986 ( Austausch erforderlich)
Öltanks: außerhalb vom Haus gelegen
ENEV:
Bedarfsausweis, 1920, Öl- Heizung Bj. 1986, Kl. H, 352,9 kWh/(m²*2)
ausgestellt: 21.02.25
gültig bis 20.02.2035
Carport und Schuppen (ursprünglich: zwei Carports)
Sechs Außenstellplätze
Gepflasterter Hof und Gartenfläche
Sanierungswürdig
Zweischaliges Mauerwerk (Hohlschicht), von außen verputzt
Teilkeller
Isolierverglasung
Decke EG zum DG: Holzbalkenlage
Fußboden in den beiden Wohnzimmern und im ehemaligen Fremdenzimmer: Holzbalkenlage
Bereits geräumt und frei!
Modernisiert:
1958 Dachausbau inkl. Gauben,
1967 Wohnungsvergrößerung und Garagen
1986 Dach nachgedämmt
Wohnfläche: ca. 160 qm
Nutzfläche: 42 m² (davon 37 m² Keller)
Grundstück: 837 m²
Altbau
Satteldach
Tondachziegel
Mehrere feuchte Stellen
Außenwand: verputzt
Teilkeller
Keller: Kappendecken
Im Keller: drei Räume (zwei Vorratsräume und ein Heizungsraum)
Bodenbeläge:
Teppich, Vinyl, PVC, Fliesen
Sechs Zimmer
Zwei Bäder
Abstellraum
zahlreiche Einbauschränke
Einbauküche mit E-Geräten
Fenster und Haustür: Kunststoff Isolierverglasung
Warmwassererzeugung:
Durchlauferhitzer (Wasser in der Küche und an den Waschbecken in den beiden Bädern)
Boiler (Badewanne und Dusche im EG)
Anschluss an Schmutzwasserkanal vorhanden
Öffentliches Wasser
Elektrik: Kippsicherungen und Drehsicherungen
neuer digitaler Stromzähler
Öl- Heizung:
Bj. 1986 ( Austausch erforderlich)
Öltanks: außerhalb vom Haus gelegen
ENEV:
Bedarfsausweis, 1920, Öl- Heizung Bj. 1986, Kl. H, 352,9 kWh/(m²*2)
ausgestellt: 21.02.25
gültig bis 20.02.2035
Carport und Schuppen (ursprünglich: zwei Carports)
Sechs Außenstellplätze
Gepflasterter Hof und Gartenfläche
Sonstige Informationen
In eigener Sache:
Bitte haben Sie Verständnis dafür, dass wir Ihre Anfrage nur zeitnah
bearbeiten können, wenn Sie uns Ihre vollständigen Namen, Adresse und Telefonnummer mitteilen.
Wir weisen darauf hin, dass die von uns weitergegebenen Objektinformationen, Unterlagen, Pläne etc. vom Verkäufer/ Vermieter stammen. Eine Haftung für die Richtigkeit oder Vollständigkeit der Angaben übernehmen wir daher nicht.
Alle Immobilienangebote sind freibleibend und vorbehaltlich Irrtümer, Zwischenverkauf- und Vermietung oder sonstiger Zwischenverwertung.
GELDWÄSCHE:
Als Immobilienmaklerunternehmen ist die Wyen- Hohnholt Immobilien nach § 2 Abs. 1 Nr. 14 und § 11 Abs. 1, 2 Geldwäschegesetz (GwG) dazu verpflichtet, bei der Begründung einer Geschäftsbeziehung die Identität des Vertragspartners festzustellen und zu überprüfen, bzw. sobald ein ernsthaftes Interesse an der Durchführung des Immobilienkaufvertrages besteht. Hierzu ist es erforderlich, dass wir nach § 11 Abs. 4 GwG die relevanten Daten Ihres Personalausweises festhalten (wenn Sie als natürliche Person handeln) - beispielsweise mittels einer Kopie. Bei einer juristischen Person benötigen wir eine Kopie des Handelsregisterauszugs, aus welchem der wirtschaftlich Berechtigte hervorgeht. Das Geldwäschegesetz sieht vor, dass der Makler die Kopien bzw. Unterlagen fünf Jahre aufbewahren muss. Als unser Vertragspartner haben Sie auch eine Mitwirkungspflicht nach § 11 Abs. 6 GwG.
Vielen Dank für Ihr Verständnis!
Aus organisatorischen Gründen sind Anfragen ausschließlich schriftlich über das jeweilige Portal
und Terminabsprachen nur über die Festnetznummer: 04407/ 9136356 zu tätigen.
Herzlichen Dank!
Bitte haben Sie Verständnis dafür, dass wir Ihre Anfrage nur zeitnah
bearbeiten können, wenn Sie uns Ihre vollständigen Namen, Adresse und Telefonnummer mitteilen.
Wir weisen darauf hin, dass die von uns weitergegebenen Objektinformationen, Unterlagen, Pläne etc. vom Verkäufer/ Vermieter stammen. Eine Haftung für die Richtigkeit oder Vollständigkeit der Angaben übernehmen wir daher nicht.
Alle Immobilienangebote sind freibleibend und vorbehaltlich Irrtümer, Zwischenverkauf- und Vermietung oder sonstiger Zwischenverwertung.
GELDWÄSCHE:
Als Immobilienmaklerunternehmen ist die Wyen- Hohnholt Immobilien nach § 2 Abs. 1 Nr. 14 und § 11 Abs. 1, 2 Geldwäschegesetz (GwG) dazu verpflichtet, bei der Begründung einer Geschäftsbeziehung die Identität des Vertragspartners festzustellen und zu überprüfen, bzw. sobald ein ernsthaftes Interesse an der Durchführung des Immobilienkaufvertrages besteht. Hierzu ist es erforderlich, dass wir nach § 11 Abs. 4 GwG die relevanten Daten Ihres Personalausweises festhalten (wenn Sie als natürliche Person handeln) - beispielsweise mittels einer Kopie. Bei einer juristischen Person benötigen wir eine Kopie des Handelsregisterauszugs, aus welchem der wirtschaftlich Berechtigte hervorgeht. Das Geldwäschegesetz sieht vor, dass der Makler die Kopien bzw. Unterlagen fünf Jahre aufbewahren muss. Als unser Vertragspartner haben Sie auch eine Mitwirkungspflicht nach § 11 Abs. 6 GwG.
Vielen Dank für Ihr Verständnis!
Aus organisatorischen Gründen sind Anfragen ausschließlich schriftlich über das jeweilige Portal
und Terminabsprachen nur über die Festnetznummer: 04407/ 9136356 zu tätigen.
Herzlichen Dank!
Lage des Objektes
Das Einfamilienhaus liegt in Alleinlage in einer ansprechender Wohnlage direkt am Utkiek im ruhigen und familienfreundlichen Stadtteil im Norden von Oldenburg. Die Umgebung ist von Grünflächen und gepflegten Gärten umgeben, was eine angenehme Wohnatmosphäre schafft.
Geschäfte des täglichen Bedarfs, Ärzte, Apotheken, sowie Schulen und Kindergärten sind in unmittelbarer Nähe vorhanden.
Oldenburg ist eine lebendige und charmante Stadt in Niedersachsen, geprägt von historischer Architektur und modernen Einrichtungen. Die Altstadt mit ihren vielen Cafés, Restaurants und Geschäften lädt zum Bummeln und Verweilen ein. Kulturelle Highlights wie das Schloss Oldenburg und das Staatstheater bieten vielfältige Unterhaltungsmöglichkeiten.
Die Region Oldenburg ist bekannt für ihre grüne und naturverbundene Umgebung. Die Nähe zur Nordsee und zahlreiche Parks und Seen machen die Gegend zu einem beliebten Ziel für Naturliebhaber und Erholungssuchende. Mit guter Verkehrsanbindung und einer hohen Lebensqualität ist Oldenburg und Umgebung ein attraktiver Ort zum Leben und Wohnen.
Geschäfte des täglichen Bedarfs, Ärzte, Apotheken, sowie Schulen und Kindergärten sind in unmittelbarer Nähe vorhanden.
Oldenburg ist eine lebendige und charmante Stadt in Niedersachsen, geprägt von historischer Architektur und modernen Einrichtungen. Die Altstadt mit ihren vielen Cafés, Restaurants und Geschäften lädt zum Bummeln und Verweilen ein. Kulturelle Highlights wie das Schloss Oldenburg und das Staatstheater bieten vielfältige Unterhaltungsmöglichkeiten.
Die Region Oldenburg ist bekannt für ihre grüne und naturverbundene Umgebung. Die Nähe zur Nordsee und zahlreiche Parks und Seen machen die Gegend zu einem beliebten Ziel für Naturliebhaber und Erholungssuchende. Mit guter Verkehrsanbindung und einer hohen Lebensqualität ist Oldenburg und Umgebung ein attraktiver Ort zum Leben und Wohnen.
Anbieter kontaktieren
Anbieter
Wyen-Hohnholt Immobilien
Oldenburger Str. 239
26203 Wardenburg
Kontakt
| Telefon | +49 4407 9136356 |
| Mobil | +49 1512 2285682 |
| Website | www.wyen-hohnholt-immobilien.de |
