Helle Eigentumswohnung mit City-Flair
659.000 €
Kaufpreis
115 m²
Wohnfläche
3
Zimmer
immobilien.de Nr.: 8945179
Objektnummer: FALC-RoMu-63638
Dateien
Preise & Kosten
| Kaufpreis | 659.000 € |
| Nebenkosten | keine Angabe |
| Hausgeld | 331 € |
| Maklerprovision | 3,57 % inkl. 19 % MwSt. vom Kaufpreis |
Größe & Zustand
| Wohnfläche | 115 m² |
| Zimmer | 3 |
| Baujahr | 2023 |
| Verfügbar ab | keine Angabe |
| Zustand | Neuwertig |
Energie
| Wesentlicher Energieträger | Luftwärmepumpe |
| Energieträger/Befeuerung | Luft-Wärme-Pumpe |
Objektbeschreibung
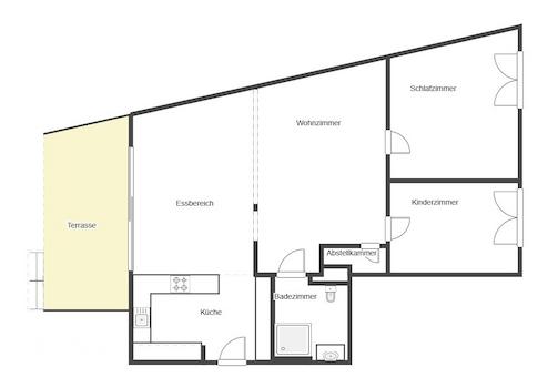
Diese moderne, hochwertig ausgestattete und vermietete Erdgeschosswohnung bietet Ihnen auf ca. 115 m² Wohnfläche, aufgeteilt auf drei Zimmer, ein offenes Wohnkonzept und höchsten Wohnkomfort. Sie befindet sich in Zentrumsnähe von Siegburg in einem Mehrfamilienhaus aus dem Jahr 2023 und besticht durch eine durchdachte Raumaufteilung sowie eine großzügige Gartenfläche von ca. 135 m². Besonders hervorzuheben ist die ca. 20 m² große Terrasse, die Zugang zum weitläufigen Garten bietet und zusätzlichen Raum für Erholung und Entspannung schafft.
Beim Betreten der Wohnung gelangen Sie direkt in die stilvolle, offene Küche, die fließend in den knapp über 50 m² großen Wohn- und Essbereich übergeht. Dank bodentiefer Fenster ist dieser Bereich lichtdurchflutet und bietet direkten Zugang zur Terrasse und dem weitläufigen Garten – ein perfekter Ort zum Entspannen und Genießen.
Auf der rechten Seite der Wohnung befinden sich zwei gut proportionierte Schlafzimmer, die vielseitig genutzt werden können – sei es als Schlafzimmer oder als Homeoffice. Das Raumangebot wird durch ein modernes Badezimmer sowie eine funktionale Abstellkammer ergänzt, die zusätzlichen Stauraum bietet.
Zugehörig zur Wohnung sind ein Kellerraum sowie ein Fahrradraum, die weiteren Stauraum bieten. Eine moderne Duplexgarage rundet das Angebot ab und sorgt für zusätzlichen Komfort.
Überzeugen Sie sich selbst von diesem Wohntraum und vereinbaren Sie noch heute einen Besichtigungstermin!
Beim Betreten der Wohnung gelangen Sie direkt in die stilvolle, offene Küche, die fließend in den knapp über 50 m² großen Wohn- und Essbereich übergeht. Dank bodentiefer Fenster ist dieser Bereich lichtdurchflutet und bietet direkten Zugang zur Terrasse und dem weitläufigen Garten – ein perfekter Ort zum Entspannen und Genießen.
Auf der rechten Seite der Wohnung befinden sich zwei gut proportionierte Schlafzimmer, die vielseitig genutzt werden können – sei es als Schlafzimmer oder als Homeoffice. Das Raumangebot wird durch ein modernes Badezimmer sowie eine funktionale Abstellkammer ergänzt, die zusätzlichen Stauraum bietet.
Zugehörig zur Wohnung sind ein Kellerraum sowie ein Fahrradraum, die weiteren Stauraum bieten. Eine moderne Duplexgarage rundet das Angebot ab und sorgt für zusätzlichen Komfort.
Überzeugen Sie sich selbst von diesem Wohntraum und vereinbaren Sie noch heute einen Besichtigungstermin!
Ausstattung
| Inserat befindet sich im Stockwerk | 0 |
| Küche | Einbauküche |
| Bad | 1 |
| Bad | Dusche |
| Balkone | 1 |
| Garten | |
| Terrassen | 1 |
| Fahrstuhl | |
| Barrierefrei | |
| Keller |
Diese traumhafte Erdgeschosswohnung im Herzen von Siegburg, überzeugt durch eine moderne und funktionale Ausstattung, die hohen Komfort bietet. Elektrisch bedienbare Kunststoffrollläden sorgen für eine einfache Steuerung des Lichteinfalls und bieten gleichzeitig einen zusätzlichen Schutz. Eine Luft/Wasser-Wärmepumpe gewährleistet eine umweltfreundliche und effiziente Wärmeversorgung dem heutigen Standard entsprechend.
Die Wohn- und Schlafzimmer sind mit hochwertigem Vinylboden in Holzoptik ausgelegt, der sowohl pflegeleicht als auch widerstandsfähig ist. Das Badezimmer beeindruckt mit dunklen, modernen Fliesen und einem edlen Waschbecken aus Marmor (Nero Marquina), das dem Raum eine luxuriöse Ausstrahlung verleiht. Darüber hinaus kann die Raumtemperatur individuell eingestellt werden, um stets ein angenehmes Raumklima zu gewährleisten.
Für mehr Sicherheit und Komfort sorgt eine Gegensprechanlage mit Video-Hausstation, die eine visuelle Kommunikation mit Besuchern ermöglicht. Die Einbauküche stammt von der renommierten Marke Schüller und ist mit erstklassigen Geräten ausgestattet. Dazu gehören das Bora Professional 3.0 Kochfeld mit Edelstahlgrill, ein Miele Weinkühlschrank mit zwei Temperaturzonen, ein Miele Dampfgarer und ein Miele Backofen. Ein Quooker Wasserhahn, der sofort heißes Wasser liefert, ergänzt die Küche ideal.
Die Duplexgarage ist mit einem Parklift der Marke Wöhr ausgestattet, der eine platzsparende und komfortable Parklösung bietet. Diese durchdachte und hochwertige Ausstattung sorgt für ein komfortables Wohngefühl und erfüllt moderne Ansprüche.
Die Wohn- und Schlafzimmer sind mit hochwertigem Vinylboden in Holzoptik ausgelegt, der sowohl pflegeleicht als auch widerstandsfähig ist. Das Badezimmer beeindruckt mit dunklen, modernen Fliesen und einem edlen Waschbecken aus Marmor (Nero Marquina), das dem Raum eine luxuriöse Ausstrahlung verleiht. Darüber hinaus kann die Raumtemperatur individuell eingestellt werden, um stets ein angenehmes Raumklima zu gewährleisten.
Für mehr Sicherheit und Komfort sorgt eine Gegensprechanlage mit Video-Hausstation, die eine visuelle Kommunikation mit Besuchern ermöglicht. Die Einbauküche stammt von der renommierten Marke Schüller und ist mit erstklassigen Geräten ausgestattet. Dazu gehören das Bora Professional 3.0 Kochfeld mit Edelstahlgrill, ein Miele Weinkühlschrank mit zwei Temperaturzonen, ein Miele Dampfgarer und ein Miele Backofen. Ein Quooker Wasserhahn, der sofort heißes Wasser liefert, ergänzt die Küche ideal.
Die Duplexgarage ist mit einem Parklift der Marke Wöhr ausgestattet, der eine platzsparende und komfortable Parklösung bietet. Diese durchdachte und hochwertige Ausstattung sorgt für ein komfortables Wohngefühl und erfüllt moderne Ansprüche.
Sonstige Informationen
Sofern Sie auf eine ruhige und gleichzeitig zentrale Lage, eine beeindruckende Aufteilung und ein sehr gepflegtes Umfeld Wert legen, ist diese Immobilie das ideale Angebot für Sie.
Wir bieten nicht nur eine kostenlose Hotline, sondern auch einen Service am Wochenende. Bei Interesse geben Sie bitte immer Ihre vollständigen Kontaktdaten an.
Die Objektbeschreibung beruht größtenteils auf den Angaben des Eigentümers. Für die Richtigkeit oder Vollständigkeit übernehmen wir keine Gewähr. Lassen Sie sich von uns gern auch in Sicherheitstechniken beraten, wir führen sehr interessante Alarmanlagen in unserem Angebot.
Sie wollen Ihre Immobilie ebenfalls professionell vermarkten, rufen Sie uns an, wir stehen Ihnen von Mo. bis So. von 6.00 - 22.00 h persönlich zur Seite, über 150.000 aktive Interessenten warten bereits auf Sie.
Wir bieten nicht nur eine kostenlose Hotline, sondern auch einen Service am Wochenende. Bei Interesse geben Sie bitte immer Ihre vollständigen Kontaktdaten an.
Die Objektbeschreibung beruht größtenteils auf den Angaben des Eigentümers. Für die Richtigkeit oder Vollständigkeit übernehmen wir keine Gewähr. Lassen Sie sich von uns gern auch in Sicherheitstechniken beraten, wir führen sehr interessante Alarmanlagen in unserem Angebot.
Sie wollen Ihre Immobilie ebenfalls professionell vermarkten, rufen Sie uns an, wir stehen Ihnen von Mo. bis So. von 6.00 - 22.00 h persönlich zur Seite, über 150.000 aktive Interessenten warten bereits auf Sie.
Lage des Objektes
Die Wohnimmobilie befindet sich in einer ruhigen und dennoch zentral gelegenen Straße in Siegburg, die durch ihre angenehme Wohnatmosphäre und die Nähe zu zahlreichen Annehmlichkeiten besticht. Die Umgebung ist geprägt von einer harmonischen Mischung aus Wohnhäusern und Grünflächen, die zu einem entspannten Lebensstil einladen. Die Lage ist ideal für Familien, Berufstätige und Senioren, die Wert auf eine gute Infrastruktur und eine hohe Lebensqualität legen.
Ein herausragendes Merkmal dieser Lage ist die hervorragende Anbindung an den öffentlichen Nahverkehr. Die nächste Bushaltestelle ist nur etwa 130 Meter entfernt, was eine schnelle und unkomplizierte Verbindung in die umliegenden Stadtteile und ins Zentrum von Siegburg ermöglicht. Für Pendler ist der Bahnhof Siegburg/Bonn in ca. 1,2 Kilometern erreichbar, von wo aus regelmäßige Zugverbindungen in die umliegenden Großstädte bestehen.
Die Nähe zu wichtigen Verkehrsanbindungen ist ein weiterer Pluspunkt dieser Immobilie. Die Autobahnauffahrt ist in etwa 1,1 Kilometern erreichbar, was eine schnelle Anbindung an das überregionale Straßennetz gewährleistet. Der nächstgelegene internationale Flughafen, Köln/Bonn, ist ca. 25 Kilometer entfernt und bietet zahlreiche nationale und internationale Flugverbindungen.
Für den täglichen Bedarf stehen mehrere Supermärkte in fußläufiger Entfernung zur Verfügung. Der nächste Netto Marken-Discount ist etwa 470 Meter entfernt, während EDEKA und Lidl ebenfalls in der Nähe liegen. Diese Einkaufsmöglichkeiten gewährleisten eine bequeme Versorgung mit Lebensmitteln und anderen wichtigen Gütern.
Die Bildungsinfrastruktur ist ebenfalls gut ausgebaut. Die Gemeinschaftsgrundschule Nord ist nur ca. 140 Meter entfernt, was besonders für Familien mit Kindern von Vorteil ist. Auch weiterführende Schulen und Kindergärten sind in der Umgebung vorhanden, was die Lage für Familien besonders attraktiv macht.
Die medizinische Versorgung ist durch mehrere Arztpraxen und Apotheken in der Nähe gesichert. Die Adler Apotheke ist etwa 220 Meter entfernt, und das Helios Klinikum Siegburg ist in ca. 650 Metern erreichbar, was eine schnelle Erreichbarkeit im Notfall gewährleistet.
Für Freizeit und Erholung bieten sich zahlreiche Möglichkeiten. Der nahegelegene Park lädt zu Spaziergängen und Entspannung im Grünen ein. Sportbegeisterte finden in der Umgebung verschiedene Sportstätten und Fitnessstudios, die ein breites Angebot an Aktivitäten bieten.
Insgesamt bietet diese Wohnimmobilie eine ideale Kombination aus ruhiger Wohnlage und hervorragender Infrastruktur. Die Nähe zu öffentlichen Verkehrsmitteln, Einkaufsmöglichkeiten, Bildungseinrichtungen und medizinischer Versorgung macht sie zu einem attraktiven Wohnort für unterschiedliche Zielgruppen. Die gute Anbindung an das Verkehrsnetz und die Nähe zum Flughafen runden das Angebot ab und machen diese Immobilie zu einer hervorragenden Wahl für Immobilieninteressenten.
Ein herausragendes Merkmal dieser Lage ist die hervorragende Anbindung an den öffentlichen Nahverkehr. Die nächste Bushaltestelle ist nur etwa 130 Meter entfernt, was eine schnelle und unkomplizierte Verbindung in die umliegenden Stadtteile und ins Zentrum von Siegburg ermöglicht. Für Pendler ist der Bahnhof Siegburg/Bonn in ca. 1,2 Kilometern erreichbar, von wo aus regelmäßige Zugverbindungen in die umliegenden Großstädte bestehen.
Die Nähe zu wichtigen Verkehrsanbindungen ist ein weiterer Pluspunkt dieser Immobilie. Die Autobahnauffahrt ist in etwa 1,1 Kilometern erreichbar, was eine schnelle Anbindung an das überregionale Straßennetz gewährleistet. Der nächstgelegene internationale Flughafen, Köln/Bonn, ist ca. 25 Kilometer entfernt und bietet zahlreiche nationale und internationale Flugverbindungen.
Für den täglichen Bedarf stehen mehrere Supermärkte in fußläufiger Entfernung zur Verfügung. Der nächste Netto Marken-Discount ist etwa 470 Meter entfernt, während EDEKA und Lidl ebenfalls in der Nähe liegen. Diese Einkaufsmöglichkeiten gewährleisten eine bequeme Versorgung mit Lebensmitteln und anderen wichtigen Gütern.
Die Bildungsinfrastruktur ist ebenfalls gut ausgebaut. Die Gemeinschaftsgrundschule Nord ist nur ca. 140 Meter entfernt, was besonders für Familien mit Kindern von Vorteil ist. Auch weiterführende Schulen und Kindergärten sind in der Umgebung vorhanden, was die Lage für Familien besonders attraktiv macht.
Die medizinische Versorgung ist durch mehrere Arztpraxen und Apotheken in der Nähe gesichert. Die Adler Apotheke ist etwa 220 Meter entfernt, und das Helios Klinikum Siegburg ist in ca. 650 Metern erreichbar, was eine schnelle Erreichbarkeit im Notfall gewährleistet.
Für Freizeit und Erholung bieten sich zahlreiche Möglichkeiten. Der nahegelegene Park lädt zu Spaziergängen und Entspannung im Grünen ein. Sportbegeisterte finden in der Umgebung verschiedene Sportstätten und Fitnessstudios, die ein breites Angebot an Aktivitäten bieten.
Insgesamt bietet diese Wohnimmobilie eine ideale Kombination aus ruhiger Wohnlage und hervorragender Infrastruktur. Die Nähe zu öffentlichen Verkehrsmitteln, Einkaufsmöglichkeiten, Bildungseinrichtungen und medizinischer Versorgung macht sie zu einem attraktiven Wohnort für unterschiedliche Zielgruppen. Die gute Anbindung an das Verkehrsnetz und die Nähe zum Flughafen runden das Angebot ab und machen diese Immobilie zu einer hervorragenden Wahl für Immobilieninteressenten.
Anbieter kontaktieren
Anbieter
FALC Immobilien GmbH & Co. KG
Humperdickstr. 3
53773 Hennef (Sieg)
Kontakt
| Telefon | +49 2242 9010343 |
| Mobil | +49 170 3326588 |
| Fax | +49 2242 9010319 |
| Website | www.falcimmo.de |
