Großzügiges Bauernhaus in sehr begehrter Lage
949.000 €
Kaufpreis
340 m²
Wohnfläche
11
Zimmer
immobilien.de Nr.: 8930713
Objektnummer: W-02VPKY
Preise & Kosten
| Kaufpreis | 949.000 € |
| Nebenkosten | keine Angabe |
| Maklerprovision | 3,57% inkl. MwSt |
Größe & Zustand
| Wohnfläche | 340 m² |
| Grundstücksfläche | 2.013 m² |
| Zimmer | 11 |
| Baujahr | 1870 |
| Letzte Modernisierung | 2003 |
| Verfügbar ab | keine Angabe |
Energie
| Heizungsart | Zentralheizung |
| Energieträger/Befeuerung | Gas |
Objektbeschreibung
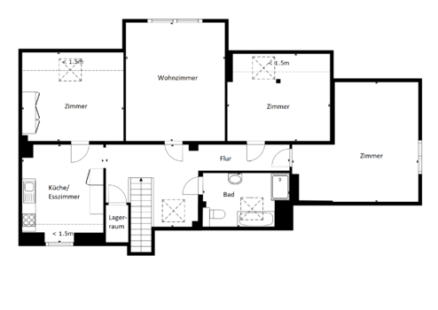
Das ursprünglich ca. 1870 errichte Bauernhaus befindet sich im Ortskern vom Rostocker Stadtteil Biestow, eine sehr begehrte Wohnlage. Über eine Zuwegung gelangt man zum repräsentativen Objekt. Die großzügige Wohnfläche von ca. 340 m² verteilt sich momentan über drei Wohneinheiten, die separat begehbar sind. Die erste Wohneinheit im Erdgeschoss beherbergt vier Zimmer, 1 Badezimmer mit Dusche, eine separate Küche, eine Waschküche sowie eine lichtdurchflutete Veranda. Vom Wohnzimmer bietet sich ein Zugang zur Terrasse. Weiterhin ergänzt eine zweite Wohneinheit, konzipiert als Maisonette, das Erdgeschoss. Hier sind zwei Zimmer, 1 Duschbad, die separate Küche und ein kleiner Erker als Eingangsbereich vorhanden. Eine schmale Treppe führt in das Obergeschoss mit einem offenen Wohnbereich. Die dritte Wohneinheit erstreckt sich im Dachgeschoss über vier Zimmer, eine separate Küche und ein Vollbad. Das Objekt wird mit einer Gaszentralheizung mit jeweils einer separaten Gastherme pro Einheit beheizt. Die Fußböden sind teilweise mit Holzdiele, Parkett oder Fliesen belegt. Durch eine Renovierung und Modernisierung in einigen Bereichen kann das Objekt in einem neuen Glanz erstrahlen. Das pflegeleichte Grundstück lädt zur Erholung und gemütliche Stunden ein. In der Doppelgarage oder Carport können die PKW´s und diverse Dinge untergebracht werden.
Ausstattung
| Küche | Einbauküche |
| Bad | 3 |
| Bad | Dusche, Fenster, Wanne |
| Boden | Dielen, Fliesen, Parkett |
| Garten | |
| Terrassen | 1 |
| Garage/Stellplätze | 2 |
| Keller |
Sonstige Informationen
Der Makler-Vertrag mit uns und/oder unserem Beauftragten kommt durch die Bestätigung der Inanspruchnahme unserer Maklertätigkeit in Textform zustande, wie z.B. insbesondere die Unterschrift des Suchkundenvertrages und/oder des Objekt-Exposés. Die Höhe der Courtage richtet sich nach den gesetzlichen Regelungen zur Teilung der Maklercourtage. Hiernach wird die Courtage für beide Parteien (Eigentümer und Käufer) in Höhe von jeweils 3 % zuzüglich Umsatzsteuer in geltender Höhe, derzeit also insgesamt 3,57 % des Kaufpreises einschließlich 19 % gesetzl. Umsatzsteuer bei notariellem Vertragsabschluss verdient und fällig. Die Höhe der Bruttocourtage unterliegt einer Anpassung bei Steuersatzänderung. Grunderwerbssteuer, Notar- und Gerichtskosten trägt der Käufer.
Lage des Objektes
Diese Immobilie befindet sich in der Hansestadt Rostock, eine lebendige Stadt in Mecklenburg-Vorpommern. Geprägt wird sie durch die Hanse und deren Backsteingotik, sowie die Universität Rostock, die schon 1419 gegründet wurde und so zu den ältesten Nordeuropas zählt. Das Stadtgebiet erstreckt sich beidseitig des Unterlaufs der Warnow, die als Unterwarnow vom Rostocker Stadtzentrum bis zur etwa 13 Kilometer entfernten Küste schiffbar ist. Der Stadtteil Biestow ist für seine ruhige Wohnlage und die Nähe zur Innenstadt bekannt. Das Objekt selbst liegt im Ortskern in einer gepflegten Wohngegend, umgeben von anderen Wohnhäusern, der Kirche und unweit des Südstadt Klinikums. Der Biestower Damm ist eine ruhige Wohnstraße, die jedoch eine gute Anbindung an das öffentliche Verkehrsnetz und zur Autobahn A20 bietet. In der Nähe befinden sich Haltestellen für Busse und Straßenbahnen, die es den Bewohnern ermöglichen, bequem in die Stadtmitte von Rostock oder zu anderen Zielen in der Umgebung zu gelangen. Einkaufsmöglichkeiten, Schulen, Kindergärten, Ärzte und Freizeiteinrichtungen sind ebenfalls in der näheren Umgebung vorhanden. Die Lage bietet auch schöne Möglichkeiten für Spaziergänge und Erholung im Freien, da der nahegelegene Park und der angrenzende Barnstorfer Wald reichlich Gelegenheit für Aktivitäten im Freien bieten. Weitere Attraktionen sind die zahlreichen Museen und Theater, der größte Zoo der deutschen Küsten und die hochkarätigen Segelregatten in dem attraktiven Ostseebad Warnemünde. Erleben Sie den herrlichen breiten und weißen Sandstrand, der sich um Rostock von Markgrafenheide im Osten bis nach Diedrichshagen im Westen erstreckt.
Anbieter kontaktieren
Anbieter
First Class Immobilien Rostock GmbH / Lizenzpartner der Engel & Völkers Hamburg GmbH
Lange Straße 9
18055 Rostock
Kontakt
| Telefon | 0381 375 667 0 |
| Website | www.engelvoelkers.com/rostock |
