Einfamilienhaus zum Selbstausbau !
29.000 €
Kaufpreis
133,22 m²
Wohnfläche
108,22 m²
Nutzfläche
7
Zimmer
immobilien.de Nr.: 8833207
Objektnummer: 564
Preise & Kosten
| Kaufpreis | 29.000 € |
| Nebenkosten | keine Angabe |
| Maklerprovision | 1.785,00 € inkl. 19 % MwSt. |
Größe & Zustand
| Wohnfläche | 133,22 m² |
| Nutzfläche | 108,22 m² |
| Grundstücksfläche | 336 m² |
| Zimmer | 7 |
| Verfügbar ab | keine Angabe |
Energie
| Energiepasstext | Der Energieausweis liegt zur Besichtigung vor. |
Objektbeschreibung
Art: freistehendes Einfamilienhaus, zweigeschossig, ausgebautes Dachgeschoss, Spitzboden, teilweise unterkellert
Baujahr: ca. 1930
Konstruktionsart: Massivbau, Fachwerk mit Bimsstein ausgemauert
Fundament: Streifenfundament
Fassade:
Sockelbereich = teilweise verputzt/ Naturstein
straßenseitig Faserzementplatten, hofseitig Asbest
giebelseitig Klinkerstein
Dach:
Zwerchdach
Dacheindeckung = Preolitschindeln
Spenglerarbeiten = Blech
Fenster:
überwiegend alte Holzverbundfenster teilweise mit Rollläden
Giebelseite zweifachverglaste ISO PVC-Fenster
Elektro: alt, Freileitung
Baujahr: ca. 1930
Konstruktionsart: Massivbau, Fachwerk mit Bimsstein ausgemauert
Fundament: Streifenfundament
Fassade:
Sockelbereich = teilweise verputzt/ Naturstein
straßenseitig Faserzementplatten, hofseitig Asbest
giebelseitig Klinkerstein
Dach:
Zwerchdach
Dacheindeckung = Preolitschindeln
Spenglerarbeiten = Blech
Fenster:
überwiegend alte Holzverbundfenster teilweise mit Rollläden
Giebelseite zweifachverglaste ISO PVC-Fenster
Elektro: alt, Freileitung
Ausstattung
Aufteilung der Räume:
Erdgeschoss: Eingangsbereich, Flur, WC, 4 Kellerräume, Abstellkammer
Obergeschoss: Flur, Küche, Wohnzimmer, Schlafzimmer, Kinderzimmer, Bad, Abstellkammer
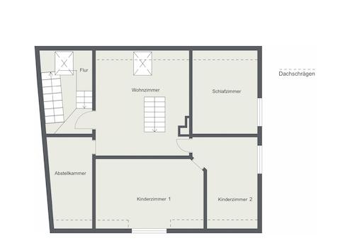
Dachgeschoss: Flur, Wohnzimmer, Schlafzimmer, 2 Kinderzimmer, Abstellkammer (teilweise ausgebaut)
Innenausstattung:
Bodenbeläge:
Erdgeschoss: Fliesen, Beton, Terrazzo, Holzdielen
Obergeschoss: Teppich, PVC-Belag, Fliesen
Dachgeschoss: PVC-Belag, Holzdielen
Wandbekleidung:
überwiegend alte Tapeten, teilweise Paneele
Nassbereiche = Fliesenspiegel
Treppe: Holz mit einseitigem Handlauf, teilweise mit PVC-Belag
Innentüren: überwiegend Kassettenholztüren (alt)
Wärmeversorgung: keine Heizung vorhanden, Gasanschluss im Haus
Erdgeschoss: Eingangsbereich, Flur, WC, 4 Kellerräume, Abstellkammer
Obergeschoss: Flur, Küche, Wohnzimmer, Schlafzimmer, Kinderzimmer, Bad, Abstellkammer
Dachgeschoss: Flur, Wohnzimmer, Schlafzimmer, 2 Kinderzimmer, Abstellkammer (teilweise ausgebaut)
Innenausstattung:
Bodenbeläge:
Erdgeschoss: Fliesen, Beton, Terrazzo, Holzdielen
Obergeschoss: Teppich, PVC-Belag, Fliesen
Dachgeschoss: PVC-Belag, Holzdielen
Wandbekleidung:
überwiegend alte Tapeten, teilweise Paneele
Nassbereiche = Fliesenspiegel
Treppe: Holz mit einseitigem Handlauf, teilweise mit PVC-Belag
Innentüren: überwiegend Kassettenholztüren (alt)
Wärmeversorgung: keine Heizung vorhanden, Gasanschluss im Haus
Sonstige Informationen
Größe: ca. 336 m²
Gestalt und Form: nahezu rechteckig, von der Straße aus ansteigend
Erschließung: Strom, Gas, Wasser, Klärgrube, Sat-Anlage
Straßenart: Anliegerstraße, Sackgasse
Zufahrt: Asphalt
Gestalt und Form: nahezu rechteckig, von der Straße aus ansteigend
Erschließung: Strom, Gas, Wasser, Klärgrube, Sat-Anlage
Straßenart: Anliegerstraße, Sackgasse
Zufahrt: Asphalt
