Denkmalgeschütztes Mehrfamilienhaus - Auch zur Kapitalanlage geeignet
175.000 €
Kaufpreis
immobilien.de Nr.: 8561754
Objektnummer: C21_SVMA_36448
Preise & Kosten
| Kaufpreis | 175.000 € |
| Nebenkosten | keine Angabe |
Größe & Zustand
| Baujahr | 1900 |
| Verfügbar ab | keine Angabe |
| Zustand | Sanierungsbeduerftig |
Energie
| Baujahr (laut Energieausweis) | 1900 |
Objektbeschreibung
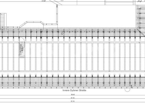
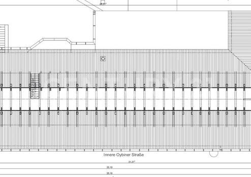
Die Immobilie erfordert eine umfassende Kernsanierung, um den heutigen Standards und Anforderungen gerecht zu werden. Ein detailliertes Sanierungskonzept liegt bereits vor und bietet eine klare Grundlage für die Umsetzung.
Das vorliegende Sanierungskonzept umfasst folgende Maßnahmen:
1. Bauliche Modernisierung:
- Restaurierung und Erhaltung der denkmalgeschützten Fassade und architektonischen Elemente
- Erneuerung von Dach, Fenstern und Türen
- Modernisierung der Trinkwasser- und Elektroinstallationen
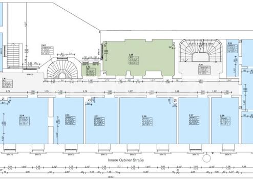
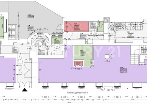
2. Innenausbau:
- Umgestaltung zu modernen, ansprechenden Wohnungen oder Gewerberäumen
- Nutzung von hochwertigen Materialien und energieeffizienten Technologien
- Gestaltung von barrierefreien Zugängen und Räumlichkeiten
3. Energieeffizienz:
- Einbau energieeffizienter Heizungs- und Belüftungssysteme
- Integration erneuerbarer Energien, z.B. Solarenergie
Investitionsmöglichkeiten:
- Kapitalanleger: Investition in ein attraktives Immobilienprojekt mit langfristiger Wertsteigerungspotenzial durch Sanierung und moderne Nutzung.
- Investoren: Möglichkeit zur Beteiligung an einem vielversprechenden Sanierungsprojekt mit langfristiger Renditeerwartung durch Vermietung oder Verkauf der sanierten Einheiten.
Das vorliegende Sanierungskonzept umfasst folgende Maßnahmen:
1. Bauliche Modernisierung:
- Restaurierung und Erhaltung der denkmalgeschützten Fassade und architektonischen Elemente
- Erneuerung von Dach, Fenstern und Türen
- Modernisierung der Trinkwasser- und Elektroinstallationen
2. Innenausbau:
- Umgestaltung zu modernen, ansprechenden Wohnungen oder Gewerberäumen
- Nutzung von hochwertigen Materialien und energieeffizienten Technologien
- Gestaltung von barrierefreien Zugängen und Räumlichkeiten
3. Energieeffizienz:
- Einbau energieeffizienter Heizungs- und Belüftungssysteme
- Integration erneuerbarer Energien, z.B. Solarenergie
Investitionsmöglichkeiten:
- Kapitalanleger: Investition in ein attraktives Immobilienprojekt mit langfristiger Wertsteigerungspotenzial durch Sanierung und moderne Nutzung.
- Investoren: Möglichkeit zur Beteiligung an einem vielversprechenden Sanierungsprojekt mit langfristiger Renditeerwartung durch Vermietung oder Verkauf der sanierten Einheiten.
Sonstige Informationen
Die Immobilie erfordert eine umfassende Kernsanierung, um den heutigen Standards und Anforderungen gerecht zu werden. Ein detailliertes Sanierungskonzept liegt bereits vor und bietet eine klare Grundlage für die Umsetzung.
Lage des Objektes
Die denkmalgeschützte Immobilie befindet sich in einer zentralen Lage von Zittau, mit guter Anbindung an öffentliche Verkehrsmittel und Infrastruktureinrichtungen. Die historische Altstadt sowie Einkaufsmöglichkeiten sind in unmittelbarer Nähe.
Anbieter kontaktieren
Kontakt
| Telefon | +49 35795 287093 |
| Mobil | +49 174 3238746 |
| Website | www.mbm-immo.de |
