Jubiläumsangebot - Schickes Doppelhaus - Preishammer
329.999 €
Kaufpreis
143 m²
Wohnfläche
5
Zimmer
immobilien.de Nr.: 8552121
Objektnummer: ST003
Preise & Kosten
| Kaufpreis | 329.999 € |
| Nebenkosten | keine Angabe |
Größe & Zustand
| Wohnfläche | 143 m² |
| Zimmer | 5 |
| Baujahr | 2024 |
| Verfügbar ab | keine Angabe |
| Zustand | Projektiert |
Energie
| Energietyp | KfW-40 |
| Energieträger/Befeuerung | Luft-Wärme-Pumpe |
Objektbeschreibung
95 Jahre STREIF-Jubiläums-Doppelhaushälfte
Die klassisch elegante Doppelhaushälfte wird von einem Walmdach geprägt. Mit einer Netto-
Raumfläche von 143 m² je Haushälfte bietet das Haus einen guten Wohnkomfort für eine
vierköpfige Familie. Aufgrund der Bauform müssen beide Haushälften gleichzeitig gebaut
werden. Im Erdgeschoss ist ein Zusatzraum geplant, der als Büro/Gäste- oder Hobbyraum
genutzt werden kann. Optional ist auch ein Bad mit Dusche im Erdgeschoss möglich, somit
wäre bei Krankheit oder im Alter auch das Wohnen auf einer Etage möglich. Der Wohn-/Ess-
/Kochbereich ist mit vier großen Terrassentüren ausgestattet und bietet auf 39 m² bzw. 37 m²
viel Platz für die Familie. Die geradläufige Treppe strahlt Struktur und Modernität aus.
Ein Haustechnik-/Hauswirtschaftsraum und eine Diele komplettieren das Raumangebot im
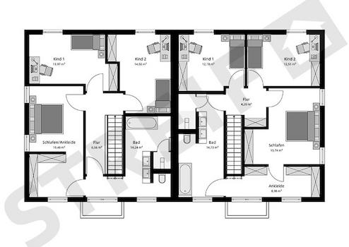
Erdgeschoss. Im Obergeschoss sind ein geräumiges Familienbad, zwei schöne
Kinderzimmer und ein Elternbereich mit Ankleide geplant.
Objektart: Doppelhaushälfte, 2-geschossig
Dachform: Walmdach
Hausmaße: 8,613 m x 9,955 m
Netto-Raumfläche: 143 m²
95-Jahre STREIF-Jubiläums-Doppelhaushälfte
Die klassisch elegante Doppelhaushälfte wird von einem Walmdach geprägt. Mit einer Netto-
Raumfläche von 143 m² je Haushälfte bietet das Haus einen guten Wohnkomfort für eine
vierköpfige Familie. Aufgrund der Bauform müssen beide Haushälften gleichzeitig gebaut
werden. Im Erdgeschoss ist ein Zusatzraum geplant, der als Büro/Gäste- oder Hobbyraum
genutzt werden kann. Optional ist auch ein Bad mit Dusche im Erdgeschoss möglich, somit
wäre bei Krankheit oder im Alter auch das Wohnen auf einer Etage möglich. Der Wohn-/Ess-
/Kochbereich ist mit vier großen Terrassentüren ausgestattet und bietet auf 39 m² bzw. 37 m²
viel Platz für die Familie. Die geradläufige Treppe strahlt Struktur und Modernität aus.
Ein Haustechnik-/Hauswirtschaftsraum und eine Diele komplettieren das Raumangebot im
Erdgeschoss. Im Obergeschoss sind ein geräumiges Familienbad, zwei schöne
Kinderzimmer und ein Elternbereich mit Ankleide geplant.
Objektart: Doppelhaushälfte, 2-geschossig
Dachform: Walmdach
Hausmaße: 8,613 m x 9,955 m
Netto-Raumfläche: 143 m²
95-Jahre STREIF-Jubiläums-Doppelhaushälfte
Ausstattung
| Anzahl der Etagen im Haus | 2 |
| Küche | Offene Küche |
| Bad | 1 |
Die Preise für die limitierten Jubiläumshäuser gelten beim Hauskauf bis zum 31.03.2024.
STREIF-Energiespar-Häuser sind für die Effizienzhaus-Klasse 40 ausgestattet. Gegen Aufpreis kann eine Ökobilanz erstellt werden, die bescheinigt, dass Ihr STREIF-Haus den neuen KfW-Förderrichtlinien in der Stufe KFWG für den Klimafreundlichen Neubau (KFN) entspricht. Für das Erfüllen der Voraussetzungen zur KfW-Förderung ist eine Photovoltaikanlage mit Batteriespeicher erforderlich.
Folgende STREIF-Leistungen sind im Jubiläums-Feierpreis enthalten -
bei Ausbaustufe FASTFERTIG+:
20-monatige Fair- und Festpreisgarantie
Inklusive gedämmter Fundamentplatte
Inklusive STREIF-Luft-Luft-Wärmepumpen-Technologie, mit integrierter Lüftungsanlage mit Wärmerückgewinnung
Inklusive hochwertiger Holzhaustür von KERA
Inklusive Fenster von Porta/Kömmerling, Fenster innen und außen in Weiß
Inklusive Massivholz-Geschosstreppe aus eigener Produktion (außer Bungalow)
Inklusive Sanitärobjekten von Markenherstellern in Bad/WC
Inklusive Elektroinstallation u.v.m.
Inklusive Vorbereitung zur Installation einer Photovoltaik-Anlage
Inklusive individueller Grundrissgestaltung und Raumaufteilung | Die Position der Bäder, die Größe der Haustechnikräume und der Treppen sind bei den Jubiläumshäusern nicht veränderbar.
Die STREIF-Passiv-Außenwand und eine sparsame Heiztechnik mit integrierter Wohnraumlüftung und Wärmerückgewinnung garantieren einen geringen Energieverbrauch und ein fantastisches Raumklima, das insbesondere Allergiker aufatmen lässt.
Die hohe Wertigkeit und Langlebigkeit eines STREIF-Energiespar-Hauses werden durch zahlreiche Auszeichnungen, Qualitäts- und Gütesiegel unabhängiger Institute und Verbände dokumentiert.
Der Angebotspreis ist exklusive Grundstück und bezieht sich auf die Standard-Ausbaustufe Fast-Fertig-Plus. Ihre Eigenleistungen: Spachtel-, Tapezier- und Malerarbeiten, Bodenbeläge, Innentüren.
Baunebenkosten fallen zuzüglich an. Bilder können evtl. Anbauteile, Carports, Balkone, Gauben usw. zeigen, die nicht im Angebotspreis enthalten sind. Änderungen und Irrtümer vorbehalten. Fragen Sie Ihre persönliche STREIF-Bauberatung: Werner Fett +49 1520 4950520
STREIF-Energiespar-Häuser sind für die Effizienzhaus-Klasse 40 ausgestattet. Gegen Aufpreis kann eine Ökobilanz erstellt werden, die bescheinigt, dass Ihr STREIF-Haus den neuen KfW-Förderrichtlinien in der Stufe KFWG für den Klimafreundlichen Neubau (KFN) entspricht. Für das Erfüllen der Voraussetzungen zur KfW-Förderung ist eine Photovoltaikanlage mit Batteriespeicher erforderlich.
Folgende STREIF-Leistungen sind im Jubiläums-Feierpreis enthalten -
bei Ausbaustufe FASTFERTIG+:
20-monatige Fair- und Festpreisgarantie
Inklusive gedämmter Fundamentplatte
Inklusive STREIF-Luft-Luft-Wärmepumpen-Technologie, mit integrierter Lüftungsanlage mit Wärmerückgewinnung
Inklusive hochwertiger Holzhaustür von KERA
Inklusive Fenster von Porta/Kömmerling, Fenster innen und außen in Weiß
Inklusive Massivholz-Geschosstreppe aus eigener Produktion (außer Bungalow)
Inklusive Sanitärobjekten von Markenherstellern in Bad/WC
Inklusive Elektroinstallation u.v.m.
Inklusive Vorbereitung zur Installation einer Photovoltaik-Anlage
Inklusive individueller Grundrissgestaltung und Raumaufteilung | Die Position der Bäder, die Größe der Haustechnikräume und der Treppen sind bei den Jubiläumshäusern nicht veränderbar.
Die STREIF-Passiv-Außenwand und eine sparsame Heiztechnik mit integrierter Wohnraumlüftung und Wärmerückgewinnung garantieren einen geringen Energieverbrauch und ein fantastisches Raumklima, das insbesondere Allergiker aufatmen lässt.
Die hohe Wertigkeit und Langlebigkeit eines STREIF-Energiespar-Hauses werden durch zahlreiche Auszeichnungen, Qualitäts- und Gütesiegel unabhängiger Institute und Verbände dokumentiert.
Der Angebotspreis ist exklusive Grundstück und bezieht sich auf die Standard-Ausbaustufe Fast-Fertig-Plus. Ihre Eigenleistungen: Spachtel-, Tapezier- und Malerarbeiten, Bodenbeläge, Innentüren.
Baunebenkosten fallen zuzüglich an. Bilder können evtl. Anbauteile, Carports, Balkone, Gauben usw. zeigen, die nicht im Angebotspreis enthalten sind. Änderungen und Irrtümer vorbehalten. Fragen Sie Ihre persönliche STREIF-Bauberatung: Werner Fett +49 1520 4950520
Kontakt
| Telefon | 0177-5668671 |
| Mobil | +49 152 04950520 |
| Website | www.streif.de |
