Gemeinsam BAUEN - Kosten SPAREN!!!
319.995 €
Kaufpreis
143 m²
Wohnfläche
5
Zimmer
immobilien.de Nr.: 8471701
Objektnummer: 2024-028
Preise & Kosten
| Kaufpreis | 319.995 € |
| Nebenkosten | keine Angabe |
Größe & Zustand
| Wohnfläche | 143 m² |
| Zimmer | 5 |
| Verfügbar ab | 2025 |
| Zustand | Projektiert |
Energie
| Energieträger/Befeuerung | Luft-Wärme-Pumpe |
Objektbeschreibung
Herzlich willkommen bei STREIF! Sie träumen von einem maßgeschneiderten Traumhaus, das all Ihre Wünsche und Vorstellungen erfüllt? Dann sind Sie bei uns genau richtig. Unser projektiertes Doppelhaus in Aue-Bad Schlema bietet Ihnen die Möglichkeit, Ihr individuelles Traumhaus zu realisieren.
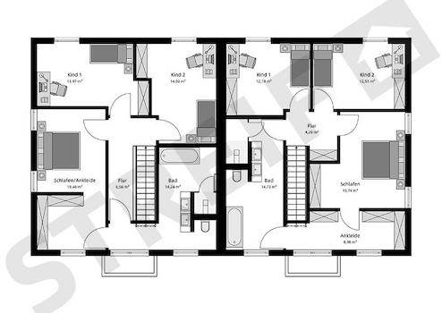
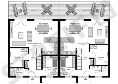
Mit einer Wohnfläche von großzügigen 143,00 m² auf 2 Etagen und insgesamt 5,0 Zimmern ist dieses Doppelhaus perfekt für Familien oder Paare mit hohen Ansprüchen an Wohnkomfort. Es verfügt über 4 Schlafzimmer, was ausreichend Platz für die ganze Familie oder Gäste bietet. Das Badezimmer ist mit einer Dusche, einer Wanne und einem Fenster ausgestattet, während ein zusätzliches Gäste-WC ebenfalls vorhanden ist.
Die gehobene Ausstattung dieses Doppelhauses verspricht anspruchsvolles Wohnen in einer modernen Umgebung. Die beheizung erfolgt mittels Wärmepumpe - eine umweltfreundliche und kosteneffiziente Befeuerungsart, die für angenehme Raumtemperaturen sorgt und gleichzeitig die Umwelt schont.
Unsere modernen Doppelhaushälften bieten nicht nur effiziente Nutzung kleiner Flächen, sondern auch höchsten Wohnkomfort. Die großzügigen Raumkonzepte unserer Entwürfe ermöglichen komfortables Wohnen für Paare und Familien gleichermaßen. Darüber hinaus bieten wir auch spezielle Hausentwürfe für Generationenhäuser an - perfekt für mehrere Generationen unter einem Dach.
Bei STREIF ist jedes Fertighaus bereits ein Energieeffizienzhaus KfW 40 EE. Dank der herausragenden Schallisolierung unserer Wandkonstruktion können Sie ruhiges Wohnen genießen, ganz gleich ob mit Freunden, Eltern oder einer anderen Familie.
Das besondere an unserem Angebot ist die Möglichkeit zur Mitgestaltung: Durch unsere verschiedenen Ausbaustufen haben Sie die Chance, aktiv am Bau Ihres Hauses teilzunehmen und so bares Geld zu sparen. Bei diesem projektierten Objekt handelt es sich um die Ausbaustufe "FastFertigPlus" mit Sanitär-Grundausstattung. Hier haben Sie die Möglichkeit bei der Erstellung Ihres Hauses mitzuwirken und dennoch bestimmte haustechnische Gewerke in professionelle Hände zu legen.
Lassen Sie sich inspirieren von unseren vielfältigen Hausentwürfen zu Doppelhaushälften und Doppelhäusern TWIN oder GENERATION - flexibel, erweiterbar und immer auf dem neuesten Stand der Technik.
Nehmen Sie noch heute Kontakt mit uns auf und verwirklichen Sie Ihren Traum vom eigenen Zuhause mit STREIF!
Mit einer Wohnfläche von großzügigen 143,00 m² auf 2 Etagen und insgesamt 5,0 Zimmern ist dieses Doppelhaus perfekt für Familien oder Paare mit hohen Ansprüchen an Wohnkomfort. Es verfügt über 4 Schlafzimmer, was ausreichend Platz für die ganze Familie oder Gäste bietet. Das Badezimmer ist mit einer Dusche, einer Wanne und einem Fenster ausgestattet, während ein zusätzliches Gäste-WC ebenfalls vorhanden ist.
Die gehobene Ausstattung dieses Doppelhauses verspricht anspruchsvolles Wohnen in einer modernen Umgebung. Die beheizung erfolgt mittels Wärmepumpe - eine umweltfreundliche und kosteneffiziente Befeuerungsart, die für angenehme Raumtemperaturen sorgt und gleichzeitig die Umwelt schont.
Unsere modernen Doppelhaushälften bieten nicht nur effiziente Nutzung kleiner Flächen, sondern auch höchsten Wohnkomfort. Die großzügigen Raumkonzepte unserer Entwürfe ermöglichen komfortables Wohnen für Paare und Familien gleichermaßen. Darüber hinaus bieten wir auch spezielle Hausentwürfe für Generationenhäuser an - perfekt für mehrere Generationen unter einem Dach.
Bei STREIF ist jedes Fertighaus bereits ein Energieeffizienzhaus KfW 40 EE. Dank der herausragenden Schallisolierung unserer Wandkonstruktion können Sie ruhiges Wohnen genießen, ganz gleich ob mit Freunden, Eltern oder einer anderen Familie.
Das besondere an unserem Angebot ist die Möglichkeit zur Mitgestaltung: Durch unsere verschiedenen Ausbaustufen haben Sie die Chance, aktiv am Bau Ihres Hauses teilzunehmen und so bares Geld zu sparen. Bei diesem projektierten Objekt handelt es sich um die Ausbaustufe "FastFertigPlus" mit Sanitär-Grundausstattung. Hier haben Sie die Möglichkeit bei der Erstellung Ihres Hauses mitzuwirken und dennoch bestimmte haustechnische Gewerke in professionelle Hände zu legen.
Lassen Sie sich inspirieren von unseren vielfältigen Hausentwürfen zu Doppelhaushälften und Doppelhäusern TWIN oder GENERATION - flexibel, erweiterbar und immer auf dem neuesten Stand der Technik.
Nehmen Sie noch heute Kontakt mit uns auf und verwirklichen Sie Ihren Traum vom eigenen Zuhause mit STREIF!
Ausstattung
| Anzahl der Etagen im Haus | 2 |
| Küche | Offene Küche |
| Bad | 1 |
| Bad | Dusche, Wanne, Fenster |
STREIF-Energiespar-Häuser sind für die Effizienzhaus-Klasse 40 ausgestattet. Gegen Aufpreis kann eine Ökobilanz erstellt werden, die bescheinigt, dass Ihr STREIF-Haus den neuen KfW-Förderrichtlinien in der Stufe KFWG für den Klimafreundlichen Neubau (KFN) entspricht. Für das Erfüllen der Voraussetzungen zur KfW-Förderung ist eine Photovoltaikanlage mit Batteriespeicher erforderlich.
Folgende STREIF-Leistungen sind im Jubiläums-Feierpreis enthalten -
bei Ausbaustufe FASTFERTIG+:
20-monatige Fair- und Festpreisgarantie
Inklusive gedämmter Fundamentplatte
Inklusive STREIF-Luft-Luft-Wärmepumpen-Technologie, mit integrierter Lüftungsanlage mit Wärmerückgewinnung
Inklusive hochwertiger Holzhaustür von KERA
Inklusive Fenster von Porta/Kömmerling, Fenster innen und außen in Weiß
Inklusive Massivholz-Geschosstreppe aus eigener Produktion (außer Bungalow)
Inklusive Sanitärobjekten von Markenherstellern in Bad/WC
Inklusive Elektroinstallation u.v.m.
Inklusive Vorbereitung zur Installation einer Photovoltaik-Anlage
Inklusive individueller Grundrissgestaltung und Raumaufteilung | Die Position der Bäder, die Größe der Haustechnikräume und der Treppen sind bei den Jubiläumshäusern nicht veränderbar.
Die STREIF-Passiv-Außenwand und eine sparsame Heiztechnik mit integrierter Wohnraumlüftung und Wärmerückgewinnung garantieren einen geringen Energieverbrauch und ein fantastisches Raumklima, das insbesondere Allergiker aufatmen lässt.
Die hohe Wertigkeit und Langlebigkeit eines STREIF-Energiespar-Hauses werden durch zahlreiche Auszeichnungen, Qualitäts- und Gütesiegel unabhängiger Institute und Verbände dokumentiert.
Der Angebotspreis ist exklusive Grundstück und bezieht sich auf die Standard-Ausbaustufe Fast-Fertig-Plus. Ihre Eigenleistungen: Spachtel-, Tapezier- und Malerarbeiten, Bodenbeläge, Innentüren.
Baunebenkosten fallen zuzüglich an. Der Verkauf des Grundstücks erfolgt über einen unserer Netzwerkpartner. Bilder können evtl. Anbauteile, Carports, Balkone, Gauben usw. zeigen, die nicht im Angebotspreis enthalten sind. Änderungen und Irrtümer vorbehalten. Fragen Sie Ihre persönliche STREIF-Bauberatung.
Folgende STREIF-Leistungen sind im Jubiläums-Feierpreis enthalten -
bei Ausbaustufe FASTFERTIG+:
20-monatige Fair- und Festpreisgarantie
Inklusive gedämmter Fundamentplatte
Inklusive STREIF-Luft-Luft-Wärmepumpen-Technologie, mit integrierter Lüftungsanlage mit Wärmerückgewinnung
Inklusive hochwertiger Holzhaustür von KERA
Inklusive Fenster von Porta/Kömmerling, Fenster innen und außen in Weiß
Inklusive Massivholz-Geschosstreppe aus eigener Produktion (außer Bungalow)
Inklusive Sanitärobjekten von Markenherstellern in Bad/WC
Inklusive Elektroinstallation u.v.m.
Inklusive Vorbereitung zur Installation einer Photovoltaik-Anlage
Inklusive individueller Grundrissgestaltung und Raumaufteilung | Die Position der Bäder, die Größe der Haustechnikräume und der Treppen sind bei den Jubiläumshäusern nicht veränderbar.
Die STREIF-Passiv-Außenwand und eine sparsame Heiztechnik mit integrierter Wohnraumlüftung und Wärmerückgewinnung garantieren einen geringen Energieverbrauch und ein fantastisches Raumklima, das insbesondere Allergiker aufatmen lässt.
Die hohe Wertigkeit und Langlebigkeit eines STREIF-Energiespar-Hauses werden durch zahlreiche Auszeichnungen, Qualitäts- und Gütesiegel unabhängiger Institute und Verbände dokumentiert.
Der Angebotspreis ist exklusive Grundstück und bezieht sich auf die Standard-Ausbaustufe Fast-Fertig-Plus. Ihre Eigenleistungen: Spachtel-, Tapezier- und Malerarbeiten, Bodenbeläge, Innentüren.
Baunebenkosten fallen zuzüglich an. Der Verkauf des Grundstücks erfolgt über einen unserer Netzwerkpartner. Bilder können evtl. Anbauteile, Carports, Balkone, Gauben usw. zeigen, die nicht im Angebotspreis enthalten sind. Änderungen und Irrtümer vorbehalten. Fragen Sie Ihre persönliche STREIF-Bauberatung.
Sonstige Informationen
Sie brauchen einen kompetenten und verlässlichen Baupartner? Wir stehen Ihnen von Anfang an zur Seite und begleiten Sie auf dem Weg in Ihr Eigenheim.
Mit großem Engagement, Persönlichkeit und der Fachfirma STREIF mit immensen Bau-Know-how, die seit 1929 auf über 85.000 realisierte Wohnträume zurückblicken kann.
Jedes Haus von STREIF wird individuell als Energiesparhaus geplant und gebaut. Eine nachhaltige, ökologische und wohngesunde Bauweise, eine zertifizierte Ausführungsqualität und eine kurze Bauzeit, dafür stehen wir.
Gerne beraten wir Sie nach Vereinbarung im Beratungsbüro Dölau bei Greiz oder ganz unkompliziert bei Ihnen zu Hause und erstellen Ihnen ein Angebot mit einer realistisch ermittelten Aufstellung der Gesamt-Investition.
Wir freuen uns auf Ihren Anruf / Nachricht!
Ihr STREIF Fachberaterin
Nicole Bamberger
E-Mail: nicole.bamberger@streif.de
Mobil: 0151-10658277
Hinweis:
Vorverkauf und Irrtümer vorbehalten. Bilder können Sonderbauteile darstellen, die im Preis nicht enthalten sind und abweichend von textlichen Inhalten sein.
zzgl. Baunebenkosten.
Der Grundstückserwerb stellt keine STREIF Leistung dar.
Hinweis zu den gesetzlichen Pflichtangaben gemäß der EnEV 2016: Bei dem hier angebotenen Haus handelt es sich um ein Neubauprojekt.
Wir weisen darauf hin, dass zu diesem projektierten Haus noch kein Energieausweis vorliegt. Der Energieausweis wird Ihnen spätestens im Rahmen der Erstellung des Objektes ausgehändigt
Mit großem Engagement, Persönlichkeit und der Fachfirma STREIF mit immensen Bau-Know-how, die seit 1929 auf über 85.000 realisierte Wohnträume zurückblicken kann.
Jedes Haus von STREIF wird individuell als Energiesparhaus geplant und gebaut. Eine nachhaltige, ökologische und wohngesunde Bauweise, eine zertifizierte Ausführungsqualität und eine kurze Bauzeit, dafür stehen wir.
Gerne beraten wir Sie nach Vereinbarung im Beratungsbüro Dölau bei Greiz oder ganz unkompliziert bei Ihnen zu Hause und erstellen Ihnen ein Angebot mit einer realistisch ermittelten Aufstellung der Gesamt-Investition.
Wir freuen uns auf Ihren Anruf / Nachricht!
Ihr STREIF Fachberaterin
Nicole Bamberger
E-Mail: nicole.bamberger@streif.de
Mobil: 0151-10658277
Hinweis:
Vorverkauf und Irrtümer vorbehalten. Bilder können Sonderbauteile darstellen, die im Preis nicht enthalten sind und abweichend von textlichen Inhalten sein.
zzgl. Baunebenkosten.
Der Grundstückserwerb stellt keine STREIF Leistung dar.
Hinweis zu den gesetzlichen Pflichtangaben gemäß der EnEV 2016: Bei dem hier angebotenen Haus handelt es sich um ein Neubauprojekt.
Wir weisen darauf hin, dass zu diesem projektierten Haus noch kein Energieausweis vorliegt. Der Energieausweis wird Ihnen spätestens im Rahmen der Erstellung des Objektes ausgehändigt
Lage des Objektes
Aue ist eine Kleinstadt im Erzgebirgskreis in Sachsen, Deutschland. Sie liegt etwa 20 Kilometer südwestlich von Chemnitz und ist von den Erzgebirgshängen umgeben. Die Stadt befindet sich im Tal der Zwickauer Mulde und ist von grünen Wiesen und Wäldern umgeben.
Aue ist vor allem als traditioneller Bergbauort bekannt, der eine lange Geschichte im Silbererzabbau hat. Die Bergbau-Tradition ist in der Stadt noch heute präsent und die alten Bergbauanlagen sind teilweise erhalten und können besichtigt werden.
Die Innenstadt von Aue ist geprägt von charmanten historischen Gebäuden und kleinen Geschäften. Es gibt auch einige Sehenswürdigkeiten wie das Schloss Aue, das im Renaissance-Stil erbaut wurde, sowie das Erzgebirgsmuseum, das über die Geschichte und Kultur der Region informiert.
Die Umgebung von Aue bietet zahlreiche Freizeitmöglichkeiten. Wanderwege führen durch die umliegende Landschaft und bieten spektakuläre Ausblicke auf das Erzgebirge. Auch Radfahren, Angeln und Wassersport sind an der Zwickauer Mulde möglich.
Aue ist außerdem die Heimat des Fußballvereins FC Erzgebirge Aue, der in der 2. Bundesliga spielt. Das Erzgebirgsstadion ist eine beliebte Anlaufstelle für Fußballfans.
Insgesamt ist Aue eine charmante Stadt im Erzgebirge mit einer interessanten Geschichte und vielfältigen Freizeitmöglichkeiten.
Aue ist vor allem als traditioneller Bergbauort bekannt, der eine lange Geschichte im Silbererzabbau hat. Die Bergbau-Tradition ist in der Stadt noch heute präsent und die alten Bergbauanlagen sind teilweise erhalten und können besichtigt werden.
Die Innenstadt von Aue ist geprägt von charmanten historischen Gebäuden und kleinen Geschäften. Es gibt auch einige Sehenswürdigkeiten wie das Schloss Aue, das im Renaissance-Stil erbaut wurde, sowie das Erzgebirgsmuseum, das über die Geschichte und Kultur der Region informiert.
Die Umgebung von Aue bietet zahlreiche Freizeitmöglichkeiten. Wanderwege führen durch die umliegende Landschaft und bieten spektakuläre Ausblicke auf das Erzgebirge. Auch Radfahren, Angeln und Wassersport sind an der Zwickauer Mulde möglich.
Aue ist außerdem die Heimat des Fußballvereins FC Erzgebirge Aue, der in der 2. Bundesliga spielt. Das Erzgebirgsstadion ist eine beliebte Anlaufstelle für Fußballfans.
Insgesamt ist Aue eine charmante Stadt im Erzgebirge mit einer interessanten Geschichte und vielfältigen Freizeitmöglichkeiten.
Anbieter kontaktieren
Kontakt
| Telefon | 0177-5668671 |
| Mobil | +49 151 10658277 |
| Website | www.streif.de |
