Geräumige 2 Zimmer Wohnung nahe Dahlen
70.000 €
Kaufpreis
55 m²
Wohnfläche
74 m²
Nutzfläche
2
Zimmer
immobilien.de Nr.: 8018529
Objektnummer: 1933
Preise & Kosten
| Kaufpreis | 70.000 € |
| Nebenkosten | keine Angabe |
| Maklerprovision | 5.000,00 € inkl. ges. MwSt. (in Höhe von derzeit 19 %) |
| Stellplatz Freiplatz Miete} | 0 € |
Größe & Zustand
| Wohnfläche | 55 m² |
| Nutzfläche | 74 m² |
| Zimmer | 2 |
| Baujahr | 1995 |
| Verfügbar ab | keine Angabe |
| Zustand | Gepflegt |
Energie
| Energieausweistyp | Verbrauch |
| Gültig bis | 2024-04-10 |
| Energieeffizienzklasse | D |
| Energieverbrauchkennwert | 121.70 kWh/(m²*a) |
| Heizungsart | Zentralheizung |
| Wesentlicher Energieträger | Oel |
| Energieträger/Befeuerung | Öl |
Objektbeschreibung
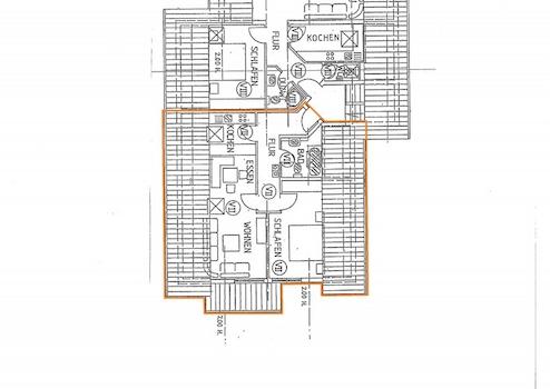
Die 2-Raum Wohnung befindet sich am ruhigen Ortsrand von Großböhla, einen Ortsteil von der Stadt Dahlen. Die Wohnung ist Teil eines Mehrfamilienhauses welches aus 3 Etagen besteht und 1995 erbaut wurde.
Die helle und praktisch geschnittene Wohnung liegt in der 3. Etage.
Sie teilt sich in ein geräumiges, helles Wohnzimmer, Bad und Küche sowie einem Schlafzimmer auf.
Vom Wohnzimmer aus, gelangt man auf den gemütlichen Balkon mit Blick auf die kleine Wohnsiedlung.
Zur Einheit gehören auch ein Kellerraum und zwei direkt am Haus gelegene Stellplätze.
Ein im Haus befindlicher Hauswirtschaftsraum wird gemeinschaftlich genutzt.
Die Wohnung wurde in den letzten Jahren saniert und ist in einem gepflegten Zustand.
Die helle und praktisch geschnittene Wohnung liegt in der 3. Etage.
Sie teilt sich in ein geräumiges, helles Wohnzimmer, Bad und Küche sowie einem Schlafzimmer auf.
Vom Wohnzimmer aus, gelangt man auf den gemütlichen Balkon mit Blick auf die kleine Wohnsiedlung.
Zur Einheit gehören auch ein Kellerraum und zwei direkt am Haus gelegene Stellplätze.
Ein im Haus befindlicher Hauswirtschaftsraum wird gemeinschaftlich genutzt.
Die Wohnung wurde in den letzten Jahren saniert und ist in einem gepflegten Zustand.
Ausstattung
| Anzahl der Etagen im Haus | 3 |
| Inserat befindet sich im Stockwerk | 3 |
| Küche | Einbauküche |
| Bad | 1 |
| Balkone | 1 |
| Haustiere | |
| Keller |
Die gepflegte 2 Zimmer Wohnung mit guter Ausstattung und einer Grundfläche von ca. 65 qm ist praktisch und großzügig geschnitten. Sie verfügt über einen Balkon und einem Kellerraum sowie zwei PKW Stellplätze vor dem Haus. Im Keller befindet sich zu jeder Wohneinheit ein separater Kellerabteil und ein Hauswirtschaftsraum.
Ausstattung der Wohnung :
-Bad mit Dusche und WC
-Bodenbeläge bestehend aus Fliesen und Laminat
-Kunststofffenster Doppelisolierverglasung
-Dachschrägen Fenster aus Holz
-Balkon mit Sicht auf die Wohnsiedlung
Ausstattung der Wohnung :
-Bad mit Dusche und WC
-Bodenbeläge bestehend aus Fliesen und Laminat
-Kunststofffenster Doppelisolierverglasung
-Dachschrägen Fenster aus Holz
-Balkon mit Sicht auf die Wohnsiedlung
Sonstige Informationen
Die Wohnung ist seit 01.09.2021 vermietet.
Die Nettomiete beträgt monatlich 230,00 Euro.
Potential an Mietanpassung ist gegeben.
Machen Sie sich ein eigenes Bild und lassen Sie sich von dem Angebot überzeugen. Kontaktieren Sie uns unter 0341/1247815.
Weitere ausführliche Details besprechen wir gern persönlich und vereinbaren einen Besichtigungstermin mit Ihnen.
Die Nettomiete beträgt monatlich 230,00 Euro.
Potential an Mietanpassung ist gegeben.
Machen Sie sich ein eigenes Bild und lassen Sie sich von dem Angebot überzeugen. Kontaktieren Sie uns unter 0341/1247815.
Weitere ausführliche Details besprechen wir gern persönlich und vereinbaren einen Besichtigungstermin mit Ihnen.
Lage des Objektes
Seit 1994 sind die Orte Großböhla, Kleinböhla und Neuböhla Stadtteile von der Heidestadt Dahlen. Jeder der drei Stadtteile hat seine kleine Geschichte und so manche Sehenswürdigkeit, die es zu entdecken gibt.
Mit seinen vielen Teichen, seinen verschlungenen Wegen, seiner interessanten Flora und Fauna bietet er Raum für Erholung und Genuss. Besonders interessant ist ein kleines Baudenkmal im Großböhlaer Park. Eine mehr als hundertjährige Begräbnisstätte der einstigen Herren auf Großböhla.
Die nahe liegenden Städte Dahlen, Oschatz und Torgau sind schnell und gut zu erreichen.
Mit seinen vielen Teichen, seinen verschlungenen Wegen, seiner interessanten Flora und Fauna bietet er Raum für Erholung und Genuss. Besonders interessant ist ein kleines Baudenkmal im Großböhlaer Park. Eine mehr als hundertjährige Begräbnisstätte der einstigen Herren auf Großböhla.
Die nahe liegenden Städte Dahlen, Oschatz und Torgau sind schnell und gut zu erreichen.
Anbieter kontaktieren
Anbieter
Immobilien Kompetenz Mitteldeutschland eG
An der Alten Mühle 1
04356 Leipzig
Kontakt
| Telefon | 0341/1247815 |
| Fax | 0341/1247823 |
