Danwood Fertigteilhaus - 144 m² inklusive 976 m² Grundstück in Bitterfeld - 5 Zimmer - Einzugsbereit
427.549 €
Kaufpreis
144 m²
Wohnfläche
143,95 m²
Nutzfläche
4
Zimmer
immobilien.de Nr.: 7862219
Objektnummer: 1586
Preise & Kosten
| Kaufpreis | 427.549 € |
| Nebenkosten | keine Angabe |
Größe & Zustand
| Wohnfläche | 144 m² |
| Nutzfläche | 143,95 m² |
| Grundstücksfläche | 976 m² |
| Zimmer | 4 |
| Baujahr | 2022 |
| Verfügbar ab | 2022 |
| Zustand | Projektiert |
Energie
| Energieausweistyp | Bedarfsausweis |
| Gültig bis | 2029-07-05 |
| Energieeffizienzklasse | A+ |
| Endenergiebedarf | 38.50 |
| Heizungsart | Fußbodenheizung |
| Wesentlicher Energieträger | Luftwp |
| Energieträger/Befeuerung | Luft-Wärme-Pumpe |
Objektbeschreibung
Wohnen in Bitterfeld - Wolfen :-)))
976 m² - erschlossen
ECKDATEN ....... & Alles Inklusive :-))) & ohne Eigenleistungen .
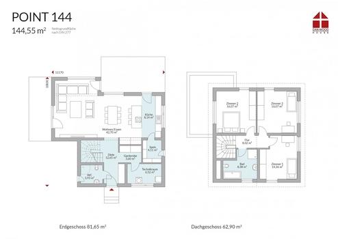
Das Point 144 mit Terrassen - Möglichkeit gehört zu den beliebtesten Häusern unserer Kunden. Es bietet eine perfekte Aufteilung im EG - mit geräumiger Küche, großem Essplatz, gut geschnittenem Wohnzimmer und viel Platz in der Diele. Die Speisekammer ist genauso praktisch wie die Option, im Gäste WC eine Dusche einzubauen. Und ein Gästezimmer ist nie zu verachten. Überraschend viel Platz bieten die Kinderzimmer im OG. Eine interessante Aufteilung der Funktionszonen zeigt das Familienbad.
Der Grundriss ist wie immer nur ein Vorschlag. Diesen planen Sie gemeinsam mit der Familie und wir erwecken diesen für SIE zum Leben.
Ihr neues Eineinhalbgeschossiges Energie - Effizienz KFW 40 + - Fertigteilhaus von Danwood House : mit 4 Zimmern, Grundrisse sind alle individuell veränderbar, , offener Küche, offener Wohn- Essbereich, Bad mit Wanne und Dusche, Gäste-WC + Dusche möglich, Technikraum und Diele, Satteldach mit 30 c Dachneigung und viel Stauraum im begehbaren Dachboden.
Dieses wunderschöne und großzügige Eineinhalbeschossige Traumhaus von DANWOOD - KFW 40 - wartet auf ihren Einzug. Der Gesamtpreis für diese Traumimmobilie inklusive einem Grundstück in Bitterfeld beträgt 427.549,00 € - inkl. Haus, Bodenplatte,Grundstück & aller Architekturleistungen - sofort Einzugsbereit nach Fertigstellung
Einziehen - Auspacken - & Ankommen
+ Baunebenkosten bitte nicht vergessen und einplanen - ca. 35.000,00 € !!!!!
Leistungsvariable Luft-Wasser-Wärmepumpe mit Abluftfunktion (Innengerät - sehr leise) & integriertem Warmwasserspeicher 180 Liter und Lüftungsanlage mit Wärmerückgewinnung (Zuluft & Abluft zentral), inkl. 1 - 2 Elektrohandtuchheizkörper, 40 Standard!
Inklusive : Bodenplatte auf Streifenfundament, Fußbodenheizung im gesamten Haus, Malerarbeiten - Feinputz in allen Räumen, individuelle Grundrissgestaltung nach Kundenwunsch, sowie anthrazitfarbene Fenster mit elektrischen Rollläden in 3-fach-Verglasung/6 Kammerprofil & Gäste WC.
976 m² - erschlossen
ECKDATEN ....... & Alles Inklusive :-))) & ohne Eigenleistungen .
Das Point 144 mit Terrassen - Möglichkeit gehört zu den beliebtesten Häusern unserer Kunden. Es bietet eine perfekte Aufteilung im EG - mit geräumiger Küche, großem Essplatz, gut geschnittenem Wohnzimmer und viel Platz in der Diele. Die Speisekammer ist genauso praktisch wie die Option, im Gäste WC eine Dusche einzubauen. Und ein Gästezimmer ist nie zu verachten. Überraschend viel Platz bieten die Kinderzimmer im OG. Eine interessante Aufteilung der Funktionszonen zeigt das Familienbad.
Der Grundriss ist wie immer nur ein Vorschlag. Diesen planen Sie gemeinsam mit der Familie und wir erwecken diesen für SIE zum Leben.
Ihr neues Eineinhalbgeschossiges Energie - Effizienz KFW 40 + - Fertigteilhaus von Danwood House : mit 4 Zimmern, Grundrisse sind alle individuell veränderbar, , offener Küche, offener Wohn- Essbereich, Bad mit Wanne und Dusche, Gäste-WC + Dusche möglich, Technikraum und Diele, Satteldach mit 30 c Dachneigung und viel Stauraum im begehbaren Dachboden.
Dieses wunderschöne und großzügige Eineinhalbeschossige Traumhaus von DANWOOD - KFW 40 - wartet auf ihren Einzug. Der Gesamtpreis für diese Traumimmobilie inklusive einem Grundstück in Bitterfeld beträgt 427.549,00 € - inkl. Haus, Bodenplatte,Grundstück & aller Architekturleistungen - sofort Einzugsbereit nach Fertigstellung
Einziehen - Auspacken - & Ankommen
+ Baunebenkosten bitte nicht vergessen und einplanen - ca. 35.000,00 € !!!!!
Leistungsvariable Luft-Wasser-Wärmepumpe mit Abluftfunktion (Innengerät - sehr leise) & integriertem Warmwasserspeicher 180 Liter und Lüftungsanlage mit Wärmerückgewinnung (Zuluft & Abluft zentral), inkl. 1 - 2 Elektrohandtuchheizkörper, 40 Standard!
Inklusive : Bodenplatte auf Streifenfundament, Fußbodenheizung im gesamten Haus, Malerarbeiten - Feinputz in allen Räumen, individuelle Grundrissgestaltung nach Kundenwunsch, sowie anthrazitfarbene Fenster mit elektrischen Rollläden in 3-fach-Verglasung/6 Kammerprofil & Gäste WC.
Ausstattung
| Anzahl der Etagen im Haus | 2 |
| Bad | 1 |
| Bad | Dusche, Wanne, Fenster |
| Boden | Fliesen, Laminat |
| Dachboden |
Komplett Einzugsbereites DANWOOD Fertigteil- Traumhaus
Inklusive: Bodenplatte auf Streifenfundament ,
Preis einschließlich aller Architektenleistungen, Fußbodenheizung, Malerarbeiten, Fliesen & Laminat, Elektro- und Sanitärinstallation sowie anthrazitfarbene Fenster mit elektrischen Rollläden in 3-fach-Verglasung / 6 Kammerprofil - sofort Einzugsbereit nach Fertigstellung. :-)
Einziehen - Auspacken - & Ankommen
InklusiveTechnikpaket 3 A - Leistungsvariable Luft-Wasser-Wärmepumpe mit Abluftfunktion (Innengerät - sehr leise) & integriertem Warmwasserspeicher 180 Liter und Lüftungsanlage mit Wärmerückgewinnung (Zuluft & Abluft zentral), inkl. 1 - 2 Elektrohandtuchheizkörper, 40 Standard!
Weitere Technikpakete sind individuell umsetzbar damit Sie auch KFW 55 und 40 + Standard erreichen.
Die Grundrisse sind variabel und können entsprechend Ihren Wünschen und Vorstellungen angepasst werden.
Hauspreis - inklusive Bodenplatte & Architektenleistung :317.869,00 €
Grundstück - 976 m² - provisionsfrei. : 109.680,00 €
Gesamtpreis inklusive Grundstück : 427.549,00 €
- komplett Einzugsbereit - Bitte planen Sie Baunebenkosten in Höhe von 35.000,00 € ein.
Grundstück 4 ca. 976 m² = 109.680,00 € - provisionsfrei
Das Grundstück ist bereits im Gesamtpreis enthalten und wird kostenlos an den neuen Bauherren vermittelt.
Inklusive: Bodenplatte auf Streifenfundament ,
Preis einschließlich aller Architektenleistungen, Fußbodenheizung, Malerarbeiten, Fliesen & Laminat, Elektro- und Sanitärinstallation sowie anthrazitfarbene Fenster mit elektrischen Rollläden in 3-fach-Verglasung / 6 Kammerprofil - sofort Einzugsbereit nach Fertigstellung. :-)
Einziehen - Auspacken - & Ankommen
InklusiveTechnikpaket 3 A - Leistungsvariable Luft-Wasser-Wärmepumpe mit Abluftfunktion (Innengerät - sehr leise) & integriertem Warmwasserspeicher 180 Liter und Lüftungsanlage mit Wärmerückgewinnung (Zuluft & Abluft zentral), inkl. 1 - 2 Elektrohandtuchheizkörper, 40 Standard!
Weitere Technikpakete sind individuell umsetzbar damit Sie auch KFW 55 und 40 + Standard erreichen.
Die Grundrisse sind variabel und können entsprechend Ihren Wünschen und Vorstellungen angepasst werden.
Hauspreis - inklusive Bodenplatte & Architektenleistung :317.869,00 €
Grundstück - 976 m² - provisionsfrei. : 109.680,00 €
Gesamtpreis inklusive Grundstück : 427.549,00 €
- komplett Einzugsbereit - Bitte planen Sie Baunebenkosten in Höhe von 35.000,00 € ein.
Grundstück 4 ca. 976 m² = 109.680,00 € - provisionsfrei
Das Grundstück ist bereits im Gesamtpreis enthalten und wird kostenlos an den neuen Bauherren vermittelt.
Sonstige Informationen
Ihre Vorteile bei DANWOOD HOUSE - seit 25 Jahren ein führendes Unternehmen im Fertigteilhaus- Bereich.
ALLES AUS EINER HAND - NUR EIN ANSPRECHPARTNER.
• Preis inklusive Bodenplatte, Architektenleistungen und KfW 40 Standard
• 12 Monate Festpreisgarantie
• Niedrige Heizkosten durch energiesparende Bauweise
• Exakter Bauablaufplan und Bauzeitgarantie
•Umfangreiche Garantien für eingesetzte Bauprodukte
• Top-Qualität von deutschem Hersteller, Ausstattung mit Markenprodukten
Unser Service:
• über 100 verschiedene Haustypen
• individuelle Grundrissgestaltung
• Top-Preis-Leistungsverhältnis
• Ausstattung mit deutschen Markenprodukten
• Blower-Door-Test (Dichtigkeitsprüfung) vor Hausübergabe
• Persönliche Betreuung von Beginn an: Ihr Vertriebsberater, Ihr Architekt, Ihr Bauleiter und Ihr Bauteam aus Deutschland
• kurze Wege, kurze Bearbeitungszeiten, freundlicher und kompetenter Kundenservice
• Unabhängiger Finanzierungsservice inklusive Fördermittelberatung
Wir bitten um Verständnis, dass wir Ihre Anfragen nur mit Angabe Ihrer vollständigen Kontaktdaten, inkl. Adresse und Telefonnummer bearbeiten können. Ihre Anfragen werden selbstverständlich vertraulich behandelt und nicht an Dritte weitergegeben!
Wenn Sie Fragen zu diesem Angebot haben oder einen zeitnahen Besichtigungs- und Beratungstermin wünschen, dann rufen Sie mich unter 0176 70257881 an. Ich stehe Ihnen gern zur Verfügung.
Cornell Becker
Danwood - Leipzig / Sachsen
ALLES AUS EINER HAND - NUR EIN ANSPRECHPARTNER.
• Preis inklusive Bodenplatte, Architektenleistungen und KfW 40 Standard
• 12 Monate Festpreisgarantie
• Niedrige Heizkosten durch energiesparende Bauweise
• Exakter Bauablaufplan und Bauzeitgarantie
•Umfangreiche Garantien für eingesetzte Bauprodukte
• Top-Qualität von deutschem Hersteller, Ausstattung mit Markenprodukten
Unser Service:
• über 100 verschiedene Haustypen
• individuelle Grundrissgestaltung
• Top-Preis-Leistungsverhältnis
• Ausstattung mit deutschen Markenprodukten
• Blower-Door-Test (Dichtigkeitsprüfung) vor Hausübergabe
• Persönliche Betreuung von Beginn an: Ihr Vertriebsberater, Ihr Architekt, Ihr Bauleiter und Ihr Bauteam aus Deutschland
• kurze Wege, kurze Bearbeitungszeiten, freundlicher und kompetenter Kundenservice
• Unabhängiger Finanzierungsservice inklusive Fördermittelberatung
Wir bitten um Verständnis, dass wir Ihre Anfragen nur mit Angabe Ihrer vollständigen Kontaktdaten, inkl. Adresse und Telefonnummer bearbeiten können. Ihre Anfragen werden selbstverständlich vertraulich behandelt und nicht an Dritte weitergegeben!
Wenn Sie Fragen zu diesem Angebot haben oder einen zeitnahen Besichtigungs- und Beratungstermin wünschen, dann rufen Sie mich unter 0176 70257881 an. Ich stehe Ihnen gern zur Verfügung.
Cornell Becker
Danwood - Leipzig / Sachsen
Lage des Objektes
Zum Verkauf steht ein erschlossenes Grundstück direkt in Bitterfeld - Wolfen. Das angebotene Grundstück mit einer Größe von 976 m² ist bereits erschlossen und steht bereit für die Bebauung mit ihrem persönlichen Traumhaus. Es handelt sich hierbei um ein neues B-Plan Baugebiet, durch welches Sie sich das lästige und langwierige Baugenehmigungsverfahren ersparen. Das angebotene Grundstück ist 36,30 m breit & 42,60 m tief.
Das angebote Haus ist natürlich nur ein Bebauungsvorschlag. Ob größer oder kleiner das entscheiden Sie. Den von einem Bungalow bis hin zur Stadtvilla ist auf diesem Grundstück alles möglich.
Es ist 976 m² groß und kostet 109.680,00 € - provisionsfrei
Die Lage der Baugrundstücke ist ideal für alle Altersklassen. Kindergarten und Gymnasium befinden sich genauso in unmittelbarer Nähe wie Ärzte und eine Apotheke.
Die gastronomische Versorgung ist selbstverständlich auch gewährleistet.
Vom Baugebiet aus ist das Stadtzentrum in nur wenigen Minuten zu erreichen.
Die Grundstücke sind komplett erschlossen (außer mit einem Gasanschluss), das heißt es kommen keine versteckten Kosten auf Sie zu.
Bitterfeld-Wolfen ist die größte Stadt im Landkreis Anhalt-Bitterfeld. Die Stadt liegt im Südosten des Landes Sachsen-Anhalt. Bitterfeld-Wolfen liegt etwa 25 km nordöstlich von Halle (Saale) und etwa 35 km nördlich von Leipzig. Östlich befindet sich der Muldestausee, südöstlich der Goitzsche-See mit den Hafenanlagen, westlich das Sandersdorfer Strandbad. Die Stadt liegt im Naturraum Bitterfelder Bergbaurevier.
Durch Bitterfeld- Wolfen verlaufen die B 100 Halle (Saale) – Lutherstadt Wittenberg, die B 183 Köthen (Anhalt) – Torgau – Bad Liebenwerda und die B 184 Leipzig – Dessau-Roßlau – Magdeburg. Die nächsten Autobahnanschlüsse bestehen an der A 9 Berlin – Leipzig – Nürnberg – München nach Süden mit der Abfahrt Halle (Saale) an der B 100 nahe Brehna, nach Norden mit der Abfahrt Dessau-Süd an der B 184 und für das Zentrum die Abfahrt Bitterfeld / Wolfen.
Wenn ich Ihr Interesse für dieses Grundstück geweckt habe, dann rufen Sie mich unter 0176 70257881 an und wir vereinbaren spontan einen Beratungs- und Besichtigungstermin.
Das angebote Haus ist natürlich nur ein Bebauungsvorschlag. Ob größer oder kleiner das entscheiden Sie. Den von einem Bungalow bis hin zur Stadtvilla ist auf diesem Grundstück alles möglich.
Es ist 976 m² groß und kostet 109.680,00 € - provisionsfrei
Die Lage der Baugrundstücke ist ideal für alle Altersklassen. Kindergarten und Gymnasium befinden sich genauso in unmittelbarer Nähe wie Ärzte und eine Apotheke.
Die gastronomische Versorgung ist selbstverständlich auch gewährleistet.
Vom Baugebiet aus ist das Stadtzentrum in nur wenigen Minuten zu erreichen.
Die Grundstücke sind komplett erschlossen (außer mit einem Gasanschluss), das heißt es kommen keine versteckten Kosten auf Sie zu.
Bitterfeld-Wolfen ist die größte Stadt im Landkreis Anhalt-Bitterfeld. Die Stadt liegt im Südosten des Landes Sachsen-Anhalt. Bitterfeld-Wolfen liegt etwa 25 km nordöstlich von Halle (Saale) und etwa 35 km nördlich von Leipzig. Östlich befindet sich der Muldestausee, südöstlich der Goitzsche-See mit den Hafenanlagen, westlich das Sandersdorfer Strandbad. Die Stadt liegt im Naturraum Bitterfelder Bergbaurevier.
Durch Bitterfeld- Wolfen verlaufen die B 100 Halle (Saale) – Lutherstadt Wittenberg, die B 183 Köthen (Anhalt) – Torgau – Bad Liebenwerda und die B 184 Leipzig – Dessau-Roßlau – Magdeburg. Die nächsten Autobahnanschlüsse bestehen an der A 9 Berlin – Leipzig – Nürnberg – München nach Süden mit der Abfahrt Halle (Saale) an der B 100 nahe Brehna, nach Norden mit der Abfahrt Dessau-Süd an der B 184 und für das Zentrum die Abfahrt Bitterfeld / Wolfen.
Wenn ich Ihr Interesse für dieses Grundstück geweckt habe, dann rufen Sie mich unter 0176 70257881 an und wir vereinbaren spontan einen Beratungs- und Besichtigungstermin.
Anbieter kontaktieren
Kontakt
| Telefon | 0176 70257881 |
| Mobil | 0176 70257881 |
| Fax | +49 32 12 - 73 94 666 |
| Website | www.rex-immobilientreuhand.de |
