Danwood Fertigteilhaus - 140 m² inklusive 610 m² Grundstück in Oppin - 5 Zimmer - Einzugsbereit
433.291 €
Kaufpreis
140 m²
Wohnfläche
141,5 m²
Nutzfläche
5
Zimmer
immobilien.de Nr.: 7809141
Objektnummer: 1557
Preise & Kosten
| Kaufpreis | 433.291 € |
| Nebenkosten | keine Angabe |
Größe & Zustand
| Wohnfläche | 140 m² |
| Nutzfläche | 141,5 m² |
| Grundstücksfläche | 610 m² |
| Zimmer | 5 |
| Baujahr | 2022 |
| Verfügbar ab | 2022 |
| Zustand | Projektiert |
Energie
| Energieausweistyp | Bedarfsausweis |
| Gültig bis | 2029-05-04 |
| Energieeffizienzklasse | A+ |
| Endenergiebedarf | 3.00 |
| Heizungsart | Fußbodenheizung |
| Wesentlicher Energieträger | Luftwp |
| Energieträger/Befeuerung | Luft-Wärme-Pumpe |
Objektbeschreibung
Wohnen in Oppin - :-)))
610 m² - erschlossen
ECKDATEN ....... & Alles Inklusive :-))) & ohne Eigenleistungen .
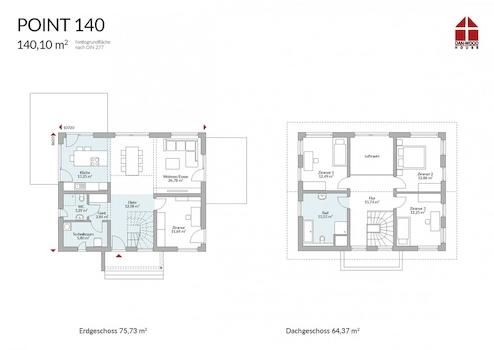
Das Point 140 - Zwei architektonische Highlights heben dieses Haus aus der Masse heraus. Das sind die moderne Hauseingangsüberdachung mit Flachdach auf der einen und die fast traufhohe Verglasung auf der anderen Seite. Mit dem hohen Luftraum über dem Essplatz und der Galerie im Obergeschoss bringt das Riesenfenster ein unglaublisches Raumerlebnis.Der luftige Grundriss im Erdgeschoss erfährt damit eine neue Dimension. Mit 3 Schlafzimmern im OG und einem zusätzlichen Raum auf der unteren Ebene ist auch für die Familienplanung ,, Luft nach oben".
Der Grundriss ist wie immer nur ein Vorschlag. Diesen planen Sie gemeinsam mit der Familie und wir erwecken diesen für SIE zum Leben.
Ihr neues Eineinhalbgeschossiges Energie - Effizienz KFW 40 + - Fertigteilhaus von Danwood House : mit 5 Zimmern, Grundrisse sind alle individuell veränderbar, , offener Küche, offener Wohn- Essbereich, Bad mit Wanne und Dusche, Gäste-WC + Dusche möglich, Technikraum und Diele, Satteldach mit 30 c Dachneigung und viel Stauraum im begehbaren Dachboden.
Dieses wunderschöne und großzügige Eineinhalbeschossige Traumhaus von DANWOOD - KFW 40 - wartet auf ihren Einzug. Der Gesamtpreis für diese Traumimmobilie inklusive einem Grundstück in Oppin bei Landsberg beträgt 433.291,00 € - inkl. Haus, Bodenplatte,Grundstück & aller Architekturleistungen - sofort Einzugsbereit nach Fertigstellung
Einziehen - Auspacken - & Ankommen
+ Baunebenkosten bitte nicht vergessen und einplanen - ca. 35.000,00 € !!!!!
Inklusive : Technikpaket 3 A - inklusive Dämmung - KFW 40
Leistungsvariable Sole-Wasser-Wärmepumpe (Erdwärmepumpe) mit integriertem Warmwasserspeicher 180 Liter und Lüftungsanlage mit Wärmerückgewinnung (Zuluft & Abluft zentral), inkl. 1 - 2 Elektrohandtuchheizkörper
Inklusive : Bodenplatte auf Streifenfundament, Fußbodenheizung im gesamten Haus, Malerarbeiten - Feinputz in allen Räumen, individuelle Grundrissgestaltung nach Kundenwunsch, sowie anthrazitfarbene Fenster mit elektrischen Rollläden in 3-fach-Verglasung/6 Kammerprofil & Gäste WC.
610 m² - erschlossen
ECKDATEN ....... & Alles Inklusive :-))) & ohne Eigenleistungen .
Das Point 140 - Zwei architektonische Highlights heben dieses Haus aus der Masse heraus. Das sind die moderne Hauseingangsüberdachung mit Flachdach auf der einen und die fast traufhohe Verglasung auf der anderen Seite. Mit dem hohen Luftraum über dem Essplatz und der Galerie im Obergeschoss bringt das Riesenfenster ein unglaublisches Raumerlebnis.Der luftige Grundriss im Erdgeschoss erfährt damit eine neue Dimension. Mit 3 Schlafzimmern im OG und einem zusätzlichen Raum auf der unteren Ebene ist auch für die Familienplanung ,, Luft nach oben".
Der Grundriss ist wie immer nur ein Vorschlag. Diesen planen Sie gemeinsam mit der Familie und wir erwecken diesen für SIE zum Leben.
Ihr neues Eineinhalbgeschossiges Energie - Effizienz KFW 40 + - Fertigteilhaus von Danwood House : mit 5 Zimmern, Grundrisse sind alle individuell veränderbar, , offener Küche, offener Wohn- Essbereich, Bad mit Wanne und Dusche, Gäste-WC + Dusche möglich, Technikraum und Diele, Satteldach mit 30 c Dachneigung und viel Stauraum im begehbaren Dachboden.
Dieses wunderschöne und großzügige Eineinhalbeschossige Traumhaus von DANWOOD - KFW 40 - wartet auf ihren Einzug. Der Gesamtpreis für diese Traumimmobilie inklusive einem Grundstück in Oppin bei Landsberg beträgt 433.291,00 € - inkl. Haus, Bodenplatte,Grundstück & aller Architekturleistungen - sofort Einzugsbereit nach Fertigstellung
Einziehen - Auspacken - & Ankommen
+ Baunebenkosten bitte nicht vergessen und einplanen - ca. 35.000,00 € !!!!!
Inklusive : Technikpaket 3 A - inklusive Dämmung - KFW 40
Leistungsvariable Sole-Wasser-Wärmepumpe (Erdwärmepumpe) mit integriertem Warmwasserspeicher 180 Liter und Lüftungsanlage mit Wärmerückgewinnung (Zuluft & Abluft zentral), inkl. 1 - 2 Elektrohandtuchheizkörper
Inklusive : Bodenplatte auf Streifenfundament, Fußbodenheizung im gesamten Haus, Malerarbeiten - Feinputz in allen Räumen, individuelle Grundrissgestaltung nach Kundenwunsch, sowie anthrazitfarbene Fenster mit elektrischen Rollläden in 3-fach-Verglasung/6 Kammerprofil & Gäste WC.
Ausstattung
| Anzahl der Etagen im Haus | 2 |
| Bad | 1 |
| Bad | Dusche, Wanne, Fenster |
| Boden | Fliesen, Laminat |
| Dachboden |
Komplett Einzugsbereites DANWOOD Fertigteil- Traumhaus
Inklusive: Bodenplatte auf Streifenfundament ,
Preis einschließlich aller Architektenleistungen, Fußbodenheizung, Malerarbeiten, Fliesen & Laminat, Elektro- und Sanitärinstallation sowie anthrazitfarbene Fenster mit elektrischen Rollläden in 3-fach-Verglasung / 6 Kammerprofil - sofort Einzugsbereit nach Fertigstellung. :-)
Einziehen - Auspacken - & Ankommen
InklusiveTechnikpaket 3 A - Leistungsvariable Luft-Wasser-Wärmepumpe mit Abluftfunktion (Innengerät - sehr leise) & integriertem Warmwasserspeicher 180 Liter und Lüftungsanlage mit Wärmerückgewinnung (Zuluft & Abluft zentral), inkl. 1 - 2 Elektrohandtuchheizkörper, 40 Standard!
Weitere Technikpakete sind individuell umsetzbar damit Sie auch KFW 55 und 40 + Standard erreichen.
Die Grundrisse sind variabel und können entsprechend Ihren Wünschen und Vorstellungen angepasst werden.
Hauspreis - inklusive Bodenplatte & Architektenleistung : 337.081,00 €
Grundstück - 610m² - inkl Provision. : 96.210,00 €
Gesamtpreis : 433.291,00 €
- komplett Einzugsbereit - OHNE EIGENLEISTUNG !!!!!
Bitte planen Sie Baunebenkosten in Höhe von 35.000,00 € ein.
Grundstück ca.610 m² = 96.210,00 € - inklusive Provision
Das Grundstück ist bereits im Gesamtpreis enthalten und wird kostenlos an den neuen Bauherren vermittelt.
Inklusive: Bodenplatte auf Streifenfundament ,
Preis einschließlich aller Architektenleistungen, Fußbodenheizung, Malerarbeiten, Fliesen & Laminat, Elektro- und Sanitärinstallation sowie anthrazitfarbene Fenster mit elektrischen Rollläden in 3-fach-Verglasung / 6 Kammerprofil - sofort Einzugsbereit nach Fertigstellung. :-)
Einziehen - Auspacken - & Ankommen
InklusiveTechnikpaket 3 A - Leistungsvariable Luft-Wasser-Wärmepumpe mit Abluftfunktion (Innengerät - sehr leise) & integriertem Warmwasserspeicher 180 Liter und Lüftungsanlage mit Wärmerückgewinnung (Zuluft & Abluft zentral), inkl. 1 - 2 Elektrohandtuchheizkörper, 40 Standard!
Weitere Technikpakete sind individuell umsetzbar damit Sie auch KFW 55 und 40 + Standard erreichen.
Die Grundrisse sind variabel und können entsprechend Ihren Wünschen und Vorstellungen angepasst werden.
Hauspreis - inklusive Bodenplatte & Architektenleistung : 337.081,00 €
Grundstück - 610m² - inkl Provision. : 96.210,00 €
Gesamtpreis : 433.291,00 €
- komplett Einzugsbereit - OHNE EIGENLEISTUNG !!!!!
Bitte planen Sie Baunebenkosten in Höhe von 35.000,00 € ein.
Grundstück ca.610 m² = 96.210,00 € - inklusive Provision
Das Grundstück ist bereits im Gesamtpreis enthalten und wird kostenlos an den neuen Bauherren vermittelt.
Sonstige Informationen
Ihre Vorteile bei DANWOOD HOUSE - seit 25 Jahren ein führendes Unternehmen im Fertigteilhaus- Bereich.
ALLES AUS EINER HAND - NUR EIN ANSPRECHPARTNER.
• Preis inklusive Bodenplatte, Architektenleistungen und KfW 40 Standard
• 12 Monate Festpreisgarantie
• Niedrige Heizkosten durch energiesparende Bauweise
• Exakter Bauablaufplan und Bauzeitgarantie
•Umfangreiche Garantien für eingesetzte Bauprodukte
• Top-Qualität von deutschem Hersteller, Ausstattung mit Markenprodukten
Unser Service:
• über 100 verschiedene Haustypen
• individuelle Grundrissgestaltung
• Top-Preis-Leistungsverhältnis
• Ausstattung mit deutschen Markenprodukten
• Blower-Door-Test (Dichtigkeitsprüfung) vor Hausübergabe
• Persönliche Betreuung von Beginn an: Ihr Vertriebsberater, Ihr Architekt, Ihr Bauleiter und Ihr Bauteam aus Deutschland
• kurze Wege, kurze Bearbeitungszeiten, freundlicher und kompetenter Kundenservice
• Unabhängiger Finanzierungsservice inklusive Fördermittelberatung
Wir bitten um Verständnis, dass wir Ihre Anfragen nur mit Angabe Ihrer vollständigen Kontaktdaten, inkl. Adresse und Telefonnummer bearbeiten können. Ihre Anfragen werden selbstverständlich vertraulich behandelt und nicht an Dritte weitergegeben!
Wenn Sie Fragen zu diesem Angebot haben oder einen zeitnahen Besichtigungs- und Beratungstermin wünschen, dann rufen Sie mich unter 0176 70257881 an. Ich stehe Ihnen gern zur Verfügung.
Cornell Becker
Danwood - Leipzig / Sachsen
ALLES AUS EINER HAND - NUR EIN ANSPRECHPARTNER.
• Preis inklusive Bodenplatte, Architektenleistungen und KfW 40 Standard
• 12 Monate Festpreisgarantie
• Niedrige Heizkosten durch energiesparende Bauweise
• Exakter Bauablaufplan und Bauzeitgarantie
•Umfangreiche Garantien für eingesetzte Bauprodukte
• Top-Qualität von deutschem Hersteller, Ausstattung mit Markenprodukten
Unser Service:
• über 100 verschiedene Haustypen
• individuelle Grundrissgestaltung
• Top-Preis-Leistungsverhältnis
• Ausstattung mit deutschen Markenprodukten
• Blower-Door-Test (Dichtigkeitsprüfung) vor Hausübergabe
• Persönliche Betreuung von Beginn an: Ihr Vertriebsberater, Ihr Architekt, Ihr Bauleiter und Ihr Bauteam aus Deutschland
• kurze Wege, kurze Bearbeitungszeiten, freundlicher und kompetenter Kundenservice
• Unabhängiger Finanzierungsservice inklusive Fördermittelberatung
Wir bitten um Verständnis, dass wir Ihre Anfragen nur mit Angabe Ihrer vollständigen Kontaktdaten, inkl. Adresse und Telefonnummer bearbeiten können. Ihre Anfragen werden selbstverständlich vertraulich behandelt und nicht an Dritte weitergegeben!
Wenn Sie Fragen zu diesem Angebot haben oder einen zeitnahen Besichtigungs- und Beratungstermin wünschen, dann rufen Sie mich unter 0176 70257881 an. Ich stehe Ihnen gern zur Verfügung.
Cornell Becker
Danwood - Leipzig / Sachsen
Lage des Objektes
Zum Verkauf steht ein erschlossenes Grundstück direkt in Oppin bei Landsberg. Das angebotene Grundstück mit einer Größe von 610 m² ist bereits straßenseitig mit Wasser, Strom und Gas erschlossen und steht bereit für die Bebauung mit ihrem persönlichen Traumhaus.
Das Grundstück bietet Ihnen mit seinen Maßen 21 x 26 Meter genügend Möglichkeiten der Nutzungsvielfalt. Ob ein Bungalow oder ein 1,5 - Geschosser, aufwendige Außenanlage oder einfach nur einen grünen Rasen, bei der Gestaltung Ihrer Immobilie sind Ihnen keine Grenzen gesetzt.
Bebaubar ist dieses Grundstück nach § 34 BauGB.
Das angebote Haus ist natürlich nur ein Bebauungsvorschlag. Ob größer oder kleiner das entscheiden Sie. Den von einem Bungalow bis hin zum Eineinhalbgeschossigen Haus ist auf diesem Grundstück alles möglich.
Es ist 610 m² groß und kostet 96.210,00 € - inklusive Provision und wird kostenlos an den neuen Bauherren vermittelt.
Oppin ist eine Ortschaft der Stadt Landsberg im Saalekreis in Sachsen-Anhalt. Sie besteht aus den Ortsteilen Oppin, Harsdorf, Freiheit, Pranitz, Inwenden, Obermaschwitz und Untermaschwitz.
Der Ort liegt 7 km nordöstlich von Halle. Durch den Ort fließt die Riede, welche unweit der nördlichen Bebauungsgrenze entspringt.
Die Stadt liegt östlich der A 14 (Anschlussstelle Halle-Tornau) und unmittelbar westlich des Flugplatzes Halle-Oppin.
Wenn ich Ihr Interesse für dieses Grundstück geweckt habe, dann rufen Sie mich unter 0176 70257881 an und wir vereinbaren spontan einen Beratungstermin.
Das Grundstück bietet Ihnen mit seinen Maßen 21 x 26 Meter genügend Möglichkeiten der Nutzungsvielfalt. Ob ein Bungalow oder ein 1,5 - Geschosser, aufwendige Außenanlage oder einfach nur einen grünen Rasen, bei der Gestaltung Ihrer Immobilie sind Ihnen keine Grenzen gesetzt.
Bebaubar ist dieses Grundstück nach § 34 BauGB.
Das angebote Haus ist natürlich nur ein Bebauungsvorschlag. Ob größer oder kleiner das entscheiden Sie. Den von einem Bungalow bis hin zum Eineinhalbgeschossigen Haus ist auf diesem Grundstück alles möglich.
Es ist 610 m² groß und kostet 96.210,00 € - inklusive Provision und wird kostenlos an den neuen Bauherren vermittelt.
Oppin ist eine Ortschaft der Stadt Landsberg im Saalekreis in Sachsen-Anhalt. Sie besteht aus den Ortsteilen Oppin, Harsdorf, Freiheit, Pranitz, Inwenden, Obermaschwitz und Untermaschwitz.
Der Ort liegt 7 km nordöstlich von Halle. Durch den Ort fließt die Riede, welche unweit der nördlichen Bebauungsgrenze entspringt.
Die Stadt liegt östlich der A 14 (Anschlussstelle Halle-Tornau) und unmittelbar westlich des Flugplatzes Halle-Oppin.
Wenn ich Ihr Interesse für dieses Grundstück geweckt habe, dann rufen Sie mich unter 0176 70257881 an und wir vereinbaren spontan einen Beratungstermin.
Anbieter kontaktieren
Kontakt
| Telefon | 0176 70257881 |
| Mobil | 0176 70257881 |
| Fax | +49 32 12 - 73 94 666 |
| Website | www.rex-immobilientreuhand.de |
