Nachmieter gesucht: Große Arztpraxis in Ludwigshafen-Süd
2.500 €
Kaltmiete
immobilien.de Nr.: 9375771
Objektnummer: FALC-AND-78702
Dateien
Preise & Kosten
| Kaltmiete | 2.500 € |
| Nebenkosten | keine Angabe |
| Maklerprovision | 8.925 € incl. MwSt nach Abschluss des Mietvertrages |
Größe & Zustand
| Baujahr | 1955 |
| Verfügbar ab | sofort |
Energie
| Energieausweistyp | Bedarfsausweis |
| Ausstellungsdatum | 17. 12. 2024 |
| Gültig bis | 16.12.2034 |
| Energieeffizienzklasse | C |
| Endenergiebedarf | 96.62 |
| Wesentlicher Energieträger | Fernwärme |
| Energieträger/Befeuerung | Fernwärme |
Objektbeschreibung
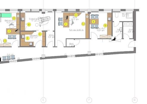
Die zur Vermietung stehende Fläche umfasst insgesamt ca. 230 m² und verfügt über eine durchdachte Raumaufteilung, die sich ideal für medizinische oder therapeutische Dienstleistungen eignet.
Die Einheit gliedert sich in folgende Räume:
Anmeldebereich mit Garderobe
1 Wartezimmer
3 Sprech- bzw. Untersuchungszimmer
1 Laborraum mit Einbauschränken und Waschbecken
1 Raum für Eingriffe bzw. Endoskopien mit angrenzendem Vorbereitungsraum und separater Patientenumkleide
1 Personalraum mit Küchenzeile, Spülmaschine und Platz für einen Kühlschrank
2 Abstell- bzw. Lagerräume
1 Waschraum
1 Duschbad für Mitarbeiter
3 WCs, darunter ein Behinderten-WC
1 Kellerraum
2 Stellplätze in der Tiefgarage
Die Räumlichkeiten wurden zuletzt als urologische Praxis genutzt und befinden sich in einem gepflegten Zustand. Die Praxis befindet sich im ersten Obergeschoss und ist bequem mit einem Fahrstuhl erreichbar. Der bisherige Mieter ist bereits ausgezogen und sucht einen geeigneten Nachmieter.
Der aktuelle Mietvertrag läuft bis zum 30.04.2027, eine Verlängerung ist nach Absprache möglich. Die monatliche Kaltmiete beträgt 2.500 €. Die Kaution beträgt drei Kaltmieten.
Nach Rücksprache mit dem Vermieter ist auch eine Nutzung für andere Gewerbe, beispielsweise als Anwalts- oder Steuerkanzlei, möglich.
Die Einheit gliedert sich in folgende Räume:
Anmeldebereich mit Garderobe
1 Wartezimmer
3 Sprech- bzw. Untersuchungszimmer
1 Laborraum mit Einbauschränken und Waschbecken
1 Raum für Eingriffe bzw. Endoskopien mit angrenzendem Vorbereitungsraum und separater Patientenumkleide
1 Personalraum mit Küchenzeile, Spülmaschine und Platz für einen Kühlschrank
2 Abstell- bzw. Lagerräume
1 Waschraum
1 Duschbad für Mitarbeiter
3 WCs, darunter ein Behinderten-WC
1 Kellerraum
2 Stellplätze in der Tiefgarage
Die Räumlichkeiten wurden zuletzt als urologische Praxis genutzt und befinden sich in einem gepflegten Zustand. Die Praxis befindet sich im ersten Obergeschoss und ist bequem mit einem Fahrstuhl erreichbar. Der bisherige Mieter ist bereits ausgezogen und sucht einen geeigneten Nachmieter.
Der aktuelle Mietvertrag läuft bis zum 30.04.2027, eine Verlängerung ist nach Absprache möglich. Die monatliche Kaltmiete beträgt 2.500 €. Die Kaution beträgt drei Kaltmieten.
Nach Rücksprache mit dem Vermieter ist auch eine Nutzung für andere Gewerbe, beispielsweise als Anwalts- oder Steuerkanzlei, möglich.
Ausstattung
| Küche | Einbauküche |
| Fahrstuhl | |
| Barrierefrei | |
| Keller |
In sämtlichen Räumen der Praxis ist ein pflegeleichter, chemikalienresistenter Vinylboden verlegt, der sowohl funktional als auch langlebig ist. Die Fenster sind zweifach verglast und verfügen über Lamellen- sowie Plisseejalousien, die eine flexible Licht- und Sichtregulierung ermöglichen.
Für ein angenehmes Raumklima sorgt eine Klimaanlage in allen Räumen, während die Beheizung über eine Gaszentralheizung erfolgt. Zudem sind alle Behandlungs- und Untersuchungszimmer mit Datenleitungen ausgestattet und bieten damit eine zeitgemäße technische Infrastruktur.
Die im Objekt verbleibenden Maßanfertigungen der Möblierung, wie auf den Fotos und im 3D-Rundgang ersichtlich, verleihen den Räumlichkeiten eine hochwertige und funktionale Ausstattung. Der bisherige Mieter hat bei seinem Einzug im Jahr 2012 rund 80.000 € in den Ausbau der Praxis investiert und stellt diese Investitionen gegen eine Abstandszahlung in Höhe von 25.000 € zur Verfügung.
Für ein angenehmes Raumklima sorgt eine Klimaanlage in allen Räumen, während die Beheizung über eine Gaszentralheizung erfolgt. Zudem sind alle Behandlungs- und Untersuchungszimmer mit Datenleitungen ausgestattet und bieten damit eine zeitgemäße technische Infrastruktur.
Die im Objekt verbleibenden Maßanfertigungen der Möblierung, wie auf den Fotos und im 3D-Rundgang ersichtlich, verleihen den Räumlichkeiten eine hochwertige und funktionale Ausstattung. Der bisherige Mieter hat bei seinem Einzug im Jahr 2012 rund 80.000 € in den Ausbau der Praxis investiert und stellt diese Investitionen gegen eine Abstandszahlung in Höhe von 25.000 € zur Verfügung.
Sonstige Informationen
Wir bieten folgendes Prozedere für die Immobilienbesichtigung an:
1. Schauen Sie unser aussagekräftiges Exposé an
2. Wandern Sie mittels unseres 360° Rundgangs durch die Immobilie. Kopieren Sie dazu folgenden Link:
https://app.immoviewer.com/portal/tour/3137329
3. Bitte haben Sie Verständnis, dass wir Besichtigungen nur bei Vorliegen einer Mieterselbstauskunft und einer positiven Schufa durchführen.
4. Wir freuen uns auf Ihre Kontaktaufnahme. Bitte senden Sie uns dazu über den Button „Anbieter kontaktieren“ Ihre vollständigen Kontaktdaten (incl. Ihrer Telefonnummer für Absprache eines Besichtigungstermins). Wir bitten um Verständnis, dass nur schriftliche Anfragen beantwortet werden können.
Die Objektbeschreibung beruht ganz oder zum Teil auf Angaben des derzeitigen Mieters. Für die Richtigkeit oder Vollständigkeit übernehmen wir keine Gewähr.
Die im Exposé ausgewiesene Maklercourtage ist nach Abschluss des Mietvertrages fällig.
1. Schauen Sie unser aussagekräftiges Exposé an
2. Wandern Sie mittels unseres 360° Rundgangs durch die Immobilie. Kopieren Sie dazu folgenden Link:
https://app.immoviewer.com/portal/tour/3137329
3. Bitte haben Sie Verständnis, dass wir Besichtigungen nur bei Vorliegen einer Mieterselbstauskunft und einer positiven Schufa durchführen.
4. Wir freuen uns auf Ihre Kontaktaufnahme. Bitte senden Sie uns dazu über den Button „Anbieter kontaktieren“ Ihre vollständigen Kontaktdaten (incl. Ihrer Telefonnummer für Absprache eines Besichtigungstermins). Wir bitten um Verständnis, dass nur schriftliche Anfragen beantwortet werden können.
Die Objektbeschreibung beruht ganz oder zum Teil auf Angaben des derzeitigen Mieters. Für die Richtigkeit oder Vollständigkeit übernehmen wir keine Gewähr.
Die im Exposé ausgewiesene Maklercourtage ist nach Abschluss des Mietvertrages fällig.
Lage des Objektes
Die Arztpraxis befindet sich in Ludwigshafen-Süd, einem attraktiven Stadtteil der zweitgrößten Stadt der Pfalz. Ludwigshafen liegt zentral in der Metropolregion Rhein-Neckar, einer der bedeutendsten und wirtschaftlich stärksten Regionen Deutschlands. Die Lage zeichnet sich durch eine hervorragende Erreichbarkeit, eine hohe Einwohnerdichte und eine sehr gute medizinische sowie infrastrukturelle Versorgung aus.
In unmittelbarer Nähe befindet sich die beliebte Rhein-Galerie, ein modernes Einkaufszentrum direkt am Rheinufer, das täglich zahlreiche Besucher anzieht und damit für eine hohe Passantenfrequenz sorgt. Die Umgebung ist geprägt von Wohn- und Geschäftshäusern, wodurch ein stetiger Bedarf an medizinischen Dienstleistungen besteht.
Die Anbindung an den öffentlichen Personennahverkehr ist ausgezeichnet. Ludwigshafen ist in das Netz des Verkehrsverbunds Rhein-Neckar (VRN) eingebunden und wird durch die Rhein-Haardt-Bahn sowie mehrere Buslinien optimal erschlossen. Die nächste Straßenbahnhaltestelle liegt lediglich rund 3 Gehminuten entfernt und ermöglicht Patienten eine schnelle und bequeme Anreise. Auch die überregionalen Verkehrsadern der Region sind gut erreichbar, was die Lage zusätzlich unterstreicht.
In unmittelbarer Nähe befindet sich die beliebte Rhein-Galerie, ein modernes Einkaufszentrum direkt am Rheinufer, das täglich zahlreiche Besucher anzieht und damit für eine hohe Passantenfrequenz sorgt. Die Umgebung ist geprägt von Wohn- und Geschäftshäusern, wodurch ein stetiger Bedarf an medizinischen Dienstleistungen besteht.
Die Anbindung an den öffentlichen Personennahverkehr ist ausgezeichnet. Ludwigshafen ist in das Netz des Verkehrsverbunds Rhein-Neckar (VRN) eingebunden und wird durch die Rhein-Haardt-Bahn sowie mehrere Buslinien optimal erschlossen. Die nächste Straßenbahnhaltestelle liegt lediglich rund 3 Gehminuten entfernt und ermöglicht Patienten eine schnelle und bequeme Anreise. Auch die überregionalen Verkehrsadern der Region sind gut erreichbar, was die Lage zusätzlich unterstreicht.
Anbieter kontaktieren
Anbieter
FALC Immobilien GmbH & Co. KG
Humperdickstr. 3
53773 Hennef (Sieg)
Kontakt
| Telefon | +49 6204 9803967 |
| Mobil | +49 171 8605413 |
| Fax | +49 2242 9010319 |
| Website | www.falcimmo.de |
