Zentral gelegene Bürofläche im 1. OG in Bremen-Hastedt über derzeit leerstehender Werkstatt

1.300 €
Kaltmiete (netto)
immobilien.de Nr.: 9372888 Objektnummer: 403957
Büro 1
Büro 2
Büro 4
Büro 3
Eingang vom Treppenhaus
Blick auf Eingang aus Flur
Flur
Küche
Lager 1
Bad mit Dusche
Gäste-/Kunden-WC
Außenansicht 2
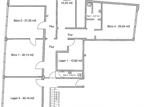
Grundriss

Preise & Kosten

Kaltmiete (netto) 1.300 €
Nebenkosten 600 €
Heizkosten 300 €
Maklerprovision keine Provision, courtagefrei
Kaution 3.900 €

Größe & Zustand

Gesamtfläche 202 m²
Bürofläche 202 m²
Baujahr 1965
Verfügbar ab nach Absprache
Zustand Gepflegt

Energie

Energieausweistyp Bedarfsausweis
Heizungsart Zentralheizung
Energieträger/Befeuerung Gas

Objektbeschreibung

Die hier angebotene, flexibel nutzbare Gewerbefläche umfasst 202 m² und eignet sich ideal als Büro- oder Schulungsfläche. Die Einheit setzt sich aus vier gut geschnittenen Büroräumen, mehreren Lagerräumen, einem Raum mit Küchenanschlüssen, einem Bad mit Dusche sowie einem separaten Kunden- bzw. Gäste-WC zusammen. Die Raumstruktur bietet eine funktionale Basis und lässt sich unterschiedlichen Nutzungskonzepten anpassen. Der genaue Übergabezustand kann in Abstimmung mit dem neuen Mieter individuell festgelegt werden.

Die Fläche befindet sich im 1. Obergeschoss über einer derzeit leerstehenden Werkstatt. Die ehemalige Autowerkstatt mit rund 326 m² Nutzfläche wird aktuell nicht betrieben und bietet somit ein ruhiges Umfeld. Ggf. kann diese Fläche als zusätzliche Produktions-, Lager- oder Arbeitsfläche angemietet werden.

Zusätzliche Kapazitäten bieten separat liegende Kellerräume, die sich besonders als Archiv- oder erweiterte Lagerflächen eignen.
Auf dem Grundstück stehen mindestens vier Pkw-Stellplätze und/oder Garagen zur Verfügung, teilweise bereits mit E-Ladestationen ausgestattet.

Der Standort im Stadtteil Bremen-Hastedt überzeugt durch eine gute verkehrliche Anbindung. Der öffentliche Personennahverkehr, der Bahnhof Sebaldsbrück, die Bremer Innenstadt sowie die Autobahn A1 sind schnell erreichbar. Dies gewährleistet eine unkomplizierte Erreichbarkeit für Mitarbeiter, Kunden und Geschäftspartner und macht die Fläche zu einem praktischen, funktionalen und gut angebundenen Unternehmensstandort.

Ausstattung

Inserat befindet sich im Stockwerk 1
 
Boden Teppich
Gäste-WC, Teppichboden

Bemerkungen:
Die angebotenen Räume sind auf zeitgemäßem technischen Standard ausgestattet und bieten ideale Voraussetzungen für eine vielseitige Nutzung als Büro- oder Schulungsfläche.

- Gesamtfläche ca. 202 m²
- 4 Büroräume
- 1-2 Lagerräume. Bei Bedarf zusätzliche Kellerräume verfügbar
- Bad mit Dusche sowie separates Gäste-/Kunden-WC
- Moderne IT-Infrastruktur
- mindestens 4 Garagen- bzw. Pkw-Stellplätze, teilweise mit E-Ladestation

Die detaillierte Raumaufteilung entnehmen Sie bitte dem beigefügten Grundriss. Anpassungen an individuelle bauliche Anforderungen und den Übergabezustand (z.B. auch Einbau einer Küche) sind nach Absprache selbstverständlich möglich.

Sonstige Informationen

Heizungsart: Zentralheizung
Energieträger: Gas


Makleranfragen nicht erwünscht. Nach § 7 UWG sind unaufgeforderte Kontaktaufnahmen durch Makler ohne ausdrückliche Einwilligung des Empfängers verboten!

ohne-makler (OM) ist weder Anbieter noch Vermittler der Immobilie. OM betreibt eine Plattform für Immobilieneigentümer, die unter anderem die gleichzeitige Veröffentlichung einzelner Inserate auf mehreren Immobilienportalen ermöglicht. Die Inhalte dieser Inserate werden ausschließlich von Dritten verantwortet. Für die Richtigkeit, Vollständigkeit oder Rechtmäßigkeit der Angaben übernimmt OM keine Haftung. Hinweise auf mögliche Rechtsverstöße können jederzeit gemeldet werden und werden nach Prüfung umgehend bearbeitet.

Objektstandort

28207 Bremen - Bremen

Lage des Objektes

Die Fläche befindet sich im gefragten Stadtteil Bremen-Hastedt. Die Verkehrsanbindung ist ausgezeichnet: In unmittelbarer Nähe verlaufen die Straßenbahnlinien 2 und 10 sowie die Buslinie 25. Der modernisierte Bahnhof Sebaldsbrück liegt rund 200 Meter entfernt und sorgt für eine schnelle und bequeme Erreichbarkeit aus allen Richtungen. Über die Stresemannstraße und den Autobahnzubringer Hemelingen besteht zudem ein direkter Anschluss an die A1, sodass auch überregionale Ziele problemlos erreichbar sind.
Das Umfeld bietet eine lebendige Mischung aus Wohnen, Handel und Dienstleistungen. Einkaufsmöglichkeiten, Gastronomie und ein Supermarkt befinden sich in der Nähe. Für Pausen oder den Ausgleich nach Feierabend laden das Weserwehr und die Pauliner Marsch zu Spaziergängen oder sportlichen Aktivitäten ein. Der Standort verbindet Arbeitswelt, Urbanität und Erholung auf ideale Weise.
Infrastruktur (im Umkreis von 5 km):
Apotheke, Lebensmittel-Discount, Allgemeinmediziner, Kindergarten, Öffentliche Verkehrsmittel

Anbieter kontaktieren

Anbieter

OM PropTech GmbH
Humboldtstraße 25a
21509 Glinde

Kontakt

Telefon -
Fax -
Website www.ohne-makler.net

Ansprechpartner/in

Privat vom Eigentümer
Weitere Anbieterdaten