Moderne Lagerhalle, Bj.2004,2000m², 2- geschossig mit Aufzug, Rolltor und Schleuse für Be-Entladung
immobilien.de Nr.: 9303340
Objektnummer: 401265
Preise & Kosten
| Miete für das Objekt | Auf Anfrage |
| Nebenkosten | keine Angabe |
| Maklerprovision | keine Provision, courtagefrei |
Größe & Zustand
| Gesamtfläche | 2.000 m² |
| Baujahr | 2004 |
| Verfügbar ab | 01.05.2026 |
| Zustand | Gepflegt |
Energie
| Energieausweistyp | Bedarfsausweis |
| Heizungsart | Zentralheizung |
| Energieträger/Befeuerung | Gas |
Objektbeschreibung
Lager- und Produktionshalle in verkehrsgünstiger Lage, in einem am Stadtrand liegenden
Gewerbegebiet mit hervorragender Anbindung an die Bundesstraße 30, nur 2 Min. von der nächsten Ausfahrt entfernt.
Fläche 2000 m²
Moderne Lagerhalle, Baujahr 2004
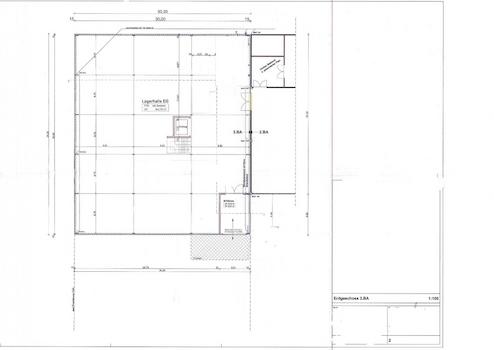
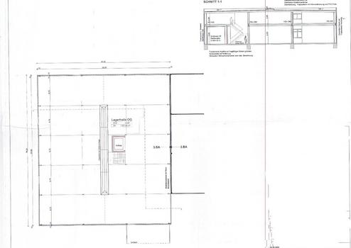
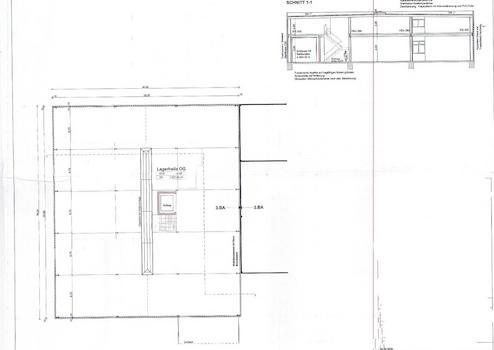
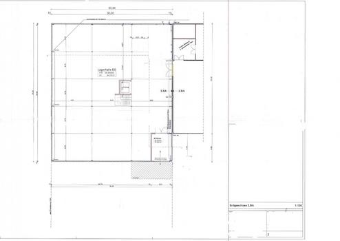
2- geschossig mit je ca. 1000 m². Raumhöhe EG min. 4,00m, OG min. 2,75m. Lastenaufzug mit 3 t vorhanden. Sehr gute Beleuchtung, mit Fenstern, im OG grosse Lichtkuppel im Dach.
Mit LKW anfahrbar, 1 elektr. Rolltor mit nach innen gebauter Schleuse mit Schnell-Lauftor.
Große geteerte Freifläche sowie freie Rasenfläche vor der Halle.
Objektart: Lagerhalle/Produktionshalle
Objektort: Uhlmannstraße 42, 88471 Laupheim
Lage: in einem am Stadtrand liegenden Gewerbegebiet mit hervorragender Anbindung an die Bundesstraße 30
Baujahr: 2004
Nutzfläche Lagerhalle: 1.989,55 m²
Etage: Erdgeschoss & Obergeschoss mit Aufzug
Qualität der Ausstattung: gepflegte und gut erhaltene Ausstattung
Anzahl Stellplätze: 7 Kfz-Außenstellplätze
Bauweise: Stahlskelettbauweise
Heizungsart: Gas-Zentralheizung
Energiekennwert V-Wärme: 16,70 kWh/(m²*a), A+
V-Strom: 14,60 kWh/(m²*a), A+
Fenster: Aluminium-Isolierglas-Fenster 2-fach verglast
Dachform: Flachdach
Verfügbarkeit bezugsfrei ab 1. Mai 2026
Gewerbegebiet mit hervorragender Anbindung an die Bundesstraße 30, nur 2 Min. von der nächsten Ausfahrt entfernt.
Fläche 2000 m²
Moderne Lagerhalle, Baujahr 2004
2- geschossig mit je ca. 1000 m². Raumhöhe EG min. 4,00m, OG min. 2,75m. Lastenaufzug mit 3 t vorhanden. Sehr gute Beleuchtung, mit Fenstern, im OG grosse Lichtkuppel im Dach.
Mit LKW anfahrbar, 1 elektr. Rolltor mit nach innen gebauter Schleuse mit Schnell-Lauftor.
Große geteerte Freifläche sowie freie Rasenfläche vor der Halle.
Objektart: Lagerhalle/Produktionshalle
Objektort: Uhlmannstraße 42, 88471 Laupheim
Lage: in einem am Stadtrand liegenden Gewerbegebiet mit hervorragender Anbindung an die Bundesstraße 30
Baujahr: 2004
Nutzfläche Lagerhalle: 1.989,55 m²
Etage: Erdgeschoss & Obergeschoss mit Aufzug
Qualität der Ausstattung: gepflegte und gut erhaltene Ausstattung
Anzahl Stellplätze: 7 Kfz-Außenstellplätze
Bauweise: Stahlskelettbauweise
Heizungsart: Gas-Zentralheizung
Energiekennwert V-Wärme: 16,70 kWh/(m²*a), A+
V-Strom: 14,60 kWh/(m²*a), A+
Fenster: Aluminium-Isolierglas-Fenster 2-fach verglast
Dachform: Flachdach
Verfügbarkeit bezugsfrei ab 1. Mai 2026
Ausstattung
| Anzahl der Etagen im Haus | 2 |
| Fahrstuhl |
Fahrstuhl, Sonstiges (s. Text)
Bemerkungen:
Die angebotene Gewerbeimmobilie wurde im Jahr 2004 in Stahlskelettbauweise erbaut, und befindet sich in einem sehr guten, gepflegten Zustand. Die angebotene Halle verfügt über zwei Geschosse mit knapp 2.000 m² Lager- und Produktionsfläche. Das Erdgeschoss hat eine Raumhöhe von über 4 Metern.
Die Halle verfügt über ein 4 Meter hohes und 3 Meter breites Rolltor, mit nach innen gebauter Schleuse mit Schnell-Lauftor. So verfügen sie über eine gute und barrierefreie Andienung. Mit dem Lastenaufzug, der über eine Tragkraft von 3 Tonnen verfügt, können sie problemlos ihre Waren in das rund 1.000 m² große Obergeschoss transportieren, welches über eine Deckenhöhe von 2,6 Metern verfügt. Im Erdgeschoss der Gewerbehalle integriert ist ein kleines Büro, mit Platz für 2 Arbeitsplätze.
Bemerkungen:
Die angebotene Gewerbeimmobilie wurde im Jahr 2004 in Stahlskelettbauweise erbaut, und befindet sich in einem sehr guten, gepflegten Zustand. Die angebotene Halle verfügt über zwei Geschosse mit knapp 2.000 m² Lager- und Produktionsfläche. Das Erdgeschoss hat eine Raumhöhe von über 4 Metern.
Die Halle verfügt über ein 4 Meter hohes und 3 Meter breites Rolltor, mit nach innen gebauter Schleuse mit Schnell-Lauftor. So verfügen sie über eine gute und barrierefreie Andienung. Mit dem Lastenaufzug, der über eine Tragkraft von 3 Tonnen verfügt, können sie problemlos ihre Waren in das rund 1.000 m² große Obergeschoss transportieren, welches über eine Deckenhöhe von 2,6 Metern verfügt. Im Erdgeschoss der Gewerbehalle integriert ist ein kleines Büro, mit Platz für 2 Arbeitsplätze.
Sonstige Informationen
Heizungsart: Zentralheizung
Energieträger: Gas
ohne-makler (OM) ist weder Anbieter noch Vermittler der Immobilie. OM betreibt eine Plattform für Immobilieneigentümer, die unter anderem die gleichzeitige Veröffentlichung einzelner Inserate auf mehreren Immobilienportalen ermöglicht. Die Inhalte dieser Inserate werden ausschließlich von Dritten verantwortet. Für die Richtigkeit, Vollständigkeit oder Rechtmäßigkeit der Angaben übernimmt OM keine Haftung. Hinweise auf mögliche Rechtsverstöße können jederzeit gemeldet werden und werden nach Prüfung umgehend bearbeitet.
Energieträger: Gas
ohne-makler (OM) ist weder Anbieter noch Vermittler der Immobilie. OM betreibt eine Plattform für Immobilieneigentümer, die unter anderem die gleichzeitige Veröffentlichung einzelner Inserate auf mehreren Immobilienportalen ermöglicht. Die Inhalte dieser Inserate werden ausschließlich von Dritten verantwortet. Für die Richtigkeit, Vollständigkeit oder Rechtmäßigkeit der Angaben übernimmt OM keine Haftung. Hinweise auf mögliche Rechtsverstöße können jederzeit gemeldet werden und werden nach Prüfung umgehend bearbeitet.
Lage des Objektes
Die angebotene Lagerhalle befindet sich in verkehrsgünstiger Stadtrandlage in einem beliebten Gewerbegebiet von Laupheim. Mit der Bundesstraße 30 haben Sie zusätzlich zum optimalen Standort ideale Anbindungen nach Biberach, Ulm, Ravensburg und den Bodenseekreis, sowie über die Autobahnen A7/A8 ab Ulm auch nach Memmingen, Stuttgart und München.
Infrastruktur (im Umkreis von 5 km):
Apotheke, Lebensmittel-Discount, Allgemeinmediziner, Kindergarten, Grundschule, Hauptschule, Realschule, Gymnasium, Gesamtschule, Öffentliche Verkehrsmittel
Infrastruktur (im Umkreis von 5 km):
Apotheke, Lebensmittel-Discount, Allgemeinmediziner, Kindergarten, Grundschule, Hauptschule, Realschule, Gymnasium, Gesamtschule, Öffentliche Verkehrsmittel
