2.8 ha Bauland + Gewerbeobjekte + für Solar, Batteriespeicher, Rechenzentrum
immobilien.de Nr.: 9296378
Objektnummer: 214931
Preise & Kosten
| Kaufpreis | Auf Anfrage |
| Nebenkosten | keine Angabe |
| Maklerprovision | keine Provision, courtagefrei |
Größe & Zustand
| Gesamtfläche | 28.300 m² |
| Freifläche | 19.000 m² |
| Grundstücksfläche | 28.300 m² |
| Verfügbar ab | sofort |
| Zustand | Gepflegt |
Objektbeschreibung
Das zum Verkauf stehende ehemalige Kasernenareal umfasst eine Vielzahl differenzierter Gebäude-, und Hallenkomplexe.
Standort : 17153 Stavenhagen Gewerbegebiet Basepohl
Das Objektensemble teilt sich wie folgt auf:
Gesamtfläche: 28.300 qm Bauland!!! (B-Plan-Gebiet Nr. 17 der Stadt Stavenhagen) (Industrie-Bauland)
Bestandsgebäude sind alle in gutem Zustand und in den Mitte/Ende der 90iger für mehrere Millionen Euro vom Bund umfangreich saniert worden (Dämmung, Dächer, Elektro)
Alle Gebäude besitzen ein eigenes Flurstück und können auch einzeln erworben werden.
Folgende Gebäude stehen aktuell zum Verkauf:
- ein ehemaliges Stabs- und Unterkunftsgebäude mit einer Nutzfläche von ca. 2.323 m², (Flurstück 13/55) + 1647 qm --129.000 Euro-
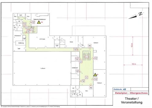
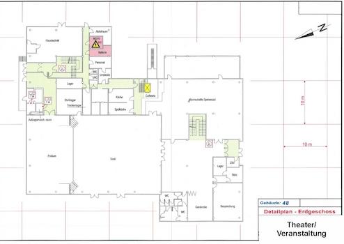
- ein Sozial- und Veranstaltungsgebäude mit großem Saal (500 Personen) und Bühne , Gesellschaftsräumen, sowie 2 Küchen mit 2 Gaststätten, Fahrstuhl und einer Gesamtnutzfläche von ca. 2.628 m²,
(Flurstück 13/47) + 8402 qm --199.000 Euro-
- ein Wirtschaftsgebäude mit 2 Speisesälen, Großküche, Lager-, Kühl- und Sanitärräumen mit einer Gesamtnutzfläche von ca. 2.470 m², davon ca. 600qm Kaltlagerhalle
(Flurstück 14/24) + 7145 qm --249.000 Euro-
- 1 Sanitätsgebäude mit Behandlungs- und Patientenzimmern mit einer Gesamtnutzfläche von ca. 1.300 m²
(Flurstück 13/60) + 3991 qm --149.000 Euro-
- ein ehemaliger Bunker mit Technik, Büro, Unterkunfts- und Sanitärräumen mit ca. 265 m² Nutzfläche.
(Flurstück 13/52) + 1236 qm --49.000 Euro-
- ein ehemaliges Schulgebäude mit einer Nutzfläche von ca. 3.900 m², (Flurstück 13/58) + 3654 qm --149.000 Euro-
- eine befestigte Parkfläche mit einer Nutzfläche von ca. 3.000 m², (Flurstück 13/56) + 4587 qm -- 49.000 Euro-
Die jeweiligen Gebäudekomplexe wurden zu verschiedenen Zeiten zwischen den Jahren ca. 1970 bis ca. 1987 errichtet und zwischen den Jahren ca. 1996 bis 1999 saniert oder teilsaniert. Die Bauausführung erfolgte zumeist in Betonbauweise. Medien- und Ver-/Entsorgungsleitungen sind weitestgehend nicht mehr intakt und müssten neu erschlossen/reaktiviert werden.
Die frühere zentrale Heizanlage ist aktuell ebenfalls nicht mehr nutzbar. Sämtliche Gebäude weisen Instandsetzungs- und Modernisierungsbedarf auf. Ein Energieausweis ist nicht erforderlich. Das Areal besteht aus mehreren einzelnen Flurstücken. Ein Erwerb von Teilflächen ist möglich.
Standort : 17153 Stavenhagen Gewerbegebiet Basepohl
Das Objektensemble teilt sich wie folgt auf:
Gesamtfläche: 28.300 qm Bauland!!! (B-Plan-Gebiet Nr. 17 der Stadt Stavenhagen) (Industrie-Bauland)
Bestandsgebäude sind alle in gutem Zustand und in den Mitte/Ende der 90iger für mehrere Millionen Euro vom Bund umfangreich saniert worden (Dämmung, Dächer, Elektro)
Alle Gebäude besitzen ein eigenes Flurstück und können auch einzeln erworben werden.
Folgende Gebäude stehen aktuell zum Verkauf:
- ein ehemaliges Stabs- und Unterkunftsgebäude mit einer Nutzfläche von ca. 2.323 m², (Flurstück 13/55) + 1647 qm --129.000 Euro-
- ein Sozial- und Veranstaltungsgebäude mit großem Saal (500 Personen) und Bühne , Gesellschaftsräumen, sowie 2 Küchen mit 2 Gaststätten, Fahrstuhl und einer Gesamtnutzfläche von ca. 2.628 m²,
(Flurstück 13/47) + 8402 qm --199.000 Euro-
- ein Wirtschaftsgebäude mit 2 Speisesälen, Großküche, Lager-, Kühl- und Sanitärräumen mit einer Gesamtnutzfläche von ca. 2.470 m², davon ca. 600qm Kaltlagerhalle
(Flurstück 14/24) + 7145 qm --249.000 Euro-
- 1 Sanitätsgebäude mit Behandlungs- und Patientenzimmern mit einer Gesamtnutzfläche von ca. 1.300 m²
(Flurstück 13/60) + 3991 qm --149.000 Euro-
- ein ehemaliger Bunker mit Technik, Büro, Unterkunfts- und Sanitärräumen mit ca. 265 m² Nutzfläche.
(Flurstück 13/52) + 1236 qm --49.000 Euro-
- ein ehemaliges Schulgebäude mit einer Nutzfläche von ca. 3.900 m², (Flurstück 13/58) + 3654 qm --149.000 Euro-
- eine befestigte Parkfläche mit einer Nutzfläche von ca. 3.000 m², (Flurstück 13/56) + 4587 qm -- 49.000 Euro-
Die jeweiligen Gebäudekomplexe wurden zu verschiedenen Zeiten zwischen den Jahren ca. 1970 bis ca. 1987 errichtet und zwischen den Jahren ca. 1996 bis 1999 saniert oder teilsaniert. Die Bauausführung erfolgte zumeist in Betonbauweise. Medien- und Ver-/Entsorgungsleitungen sind weitestgehend nicht mehr intakt und müssten neu erschlossen/reaktiviert werden.
Die frühere zentrale Heizanlage ist aktuell ebenfalls nicht mehr nutzbar. Sämtliche Gebäude weisen Instandsetzungs- und Modernisierungsbedarf auf. Ein Energieausweis ist nicht erforderlich. Das Areal besteht aus mehreren einzelnen Flurstücken. Ein Erwerb von Teilflächen ist möglich.
Ausstattung
| Küche | Einbauküche |
| Bad | Dusche, Wanne |
| Boden | Fliesen, Teppich, Parkett, Laminat, Kunststoff |
| Balkone | 1 |
| Garten | |
| Terrassen | 1 |
| Fahrstuhl | |
| Barrierefrei | |
| Garage/Stellplätze | 2 |
| Keller |
Terrasse, Garten, Keller, Dachterrasse, Fahrstuhl, Vollbad, Duschbad, Einbauküche, Gäste-WC, Barrierefrei, Parkett, Laminat, Teppichboden, Fliesen, Sonstiges (s. Text)
Bemerkungen:
B-Plan-Gebiet Nr. 17 der Stadt Stavenhagen " Kaserne Mecklenburgische Schweiz Südteil"
Bemerkungen:
B-Plan-Gebiet Nr. 17 der Stadt Stavenhagen " Kaserne Mecklenburgische Schweiz Südteil"
Sonstige Informationen
Makleranfragen nicht erwünscht. Nach § 7 UWG sind unaufgeforderte Kontaktaufnahmen durch Makler ohne ausdrückliche Einwilligung des Empfängers verboten!
ohne-makler (OM) ist weder Anbieter noch Vermittler der Immobilie. OM betreibt eine Plattform für Immobilieneigentümer, die unter anderem die gleichzeitige Veröffentlichung einzelner Inserate auf mehreren Immobilienportalen ermöglicht. Die Inhalte dieser Inserate werden ausschließlich von Dritten verantwortet. Für die Richtigkeit, Vollständigkeit oder Rechtmäßigkeit der Angaben übernimmt OM keine Haftung. Hinweise auf mögliche Rechtsverstöße können jederzeit gemeldet werden und werden nach Prüfung umgehend bearbeitet.
Lage des Objektes
Die Reuterstadt Stavenhagen ist eine Kleinstadt im Landkreis Mecklenburgische Seenplatte, die durch ihre Vielfalt an Gewerbe- und Industrieansiedlungen geprägt ist. Die Stadt mit ihren ca. 5.500 Einwohnern liegt ca. 25 km von Waren(Müritz) entfernt und ca. 32 km südöstlich von Neubrandenburg. Basepohl als Ortsteil liegt am „Großen und Kleinen See“, ca. 5 km nördlich von Stavenhagen.
Geprägt durch seine Vielfalt an Gewerbe- und Industrieansiedlungen war der Ortsteil Basepohl vor Allem durch zwei große Kasernen bis über die Landesgrenzen von MV bekannt.
Die Verkaufsfläche befindet sich im B-Plan-Gebiet Nr. 17 der Stadt Stavenhagen " Kaserne Mecklenburgische Schweiz Südteil".
Eine der beiden Kasernenteilflächen wurde bereits vollständig zum Industriegebiet entwickelt.
Durch die gute Anbindung an die B 104 und Autobahn (A19+A20) sind die Großstädte Berlin und Hamburg in unter 2 Autostunden erreichbar
Infrastruktur (im Umkreis von 5 km):
Apotheke, Lebensmittel-Discount, Allgemeinmediziner, Kindergarten, Grundschule, Hauptschule, Realschule, Gymnasium, Gesamtschule, Öffentliche Verkehrsmittel
Geprägt durch seine Vielfalt an Gewerbe- und Industrieansiedlungen war der Ortsteil Basepohl vor Allem durch zwei große Kasernen bis über die Landesgrenzen von MV bekannt.
Die Verkaufsfläche befindet sich im B-Plan-Gebiet Nr. 17 der Stadt Stavenhagen " Kaserne Mecklenburgische Schweiz Südteil".
Eine der beiden Kasernenteilflächen wurde bereits vollständig zum Industriegebiet entwickelt.
Durch die gute Anbindung an die B 104 und Autobahn (A19+A20) sind die Großstädte Berlin und Hamburg in unter 2 Autostunden erreichbar
Infrastruktur (im Umkreis von 5 km):
Apotheke, Lebensmittel-Discount, Allgemeinmediziner, Kindergarten, Grundschule, Hauptschule, Realschule, Gymnasium, Gesamtschule, Öffentliche Verkehrsmittel
