Gut einteilbare, helle Gewerbefläche für Büro- oder Praxisfläche
immobilien.de Nr.: 9283045
Objektnummer: 373865
Preise & Kosten
| Miete für das Objekt | Auf Anfrage |
| Nebenkosten | keine Angabe |
| Maklerprovision | keine Provision, courtagefrei |
Größe & Zustand
| Gesamtfläche | 220 m² |
| Bürofläche | 150 m² |
| Verfügbar ab | nach Absprache |
| Zustand | Teil Vollsaniert |
Energie
| Heizungsart | Zentralheizung |
| Energieträger/Befeuerung | Fernwärme |
Objektbeschreibung
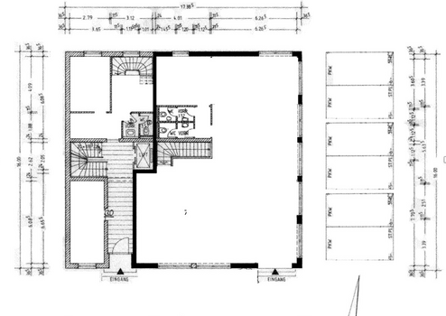
Helle Gewerbefläche für Einzelhandel, Büro- oder Praxisflächen von ca. 150 qm im EG. Durch eine Treppe erreicht man die Kellerräume mit ca. 70 qm.
Aktuell hat die Fläche im EG keine Zwischenwände und kann deshalb flexibel (auch mit Trennwänden) aufgeteilt werden. Es gibt zwei getrennte WCs. Eine Klimaanlage ist vorhanden. Die Räume haben eine ideale Raumakustik und kann sowohl als Großraumbüro genutzt werden oder in Einzelbüros/Praxisräume aufgeteilt werden.
Zu der Einheit gehören 6 Stellplätze direkt vor dem Haus. Weitere Parkplätze im Hof können genutzt werden.
Ggf. besteht auch die Möglichkeit die Räume aufzuteilen in zwei getrennte Einheiten (zwischen 70-130 qm).
Aktuell hat die Fläche im EG keine Zwischenwände und kann deshalb flexibel (auch mit Trennwänden) aufgeteilt werden. Es gibt zwei getrennte WCs. Eine Klimaanlage ist vorhanden. Die Räume haben eine ideale Raumakustik und kann sowohl als Großraumbüro genutzt werden oder in Einzelbüros/Praxisräume aufgeteilt werden.
Zu der Einheit gehören 6 Stellplätze direkt vor dem Haus. Weitere Parkplätze im Hof können genutzt werden.
Ggf. besteht auch die Möglichkeit die Räume aufzuteilen in zwei getrennte Einheiten (zwischen 70-130 qm).
Ausstattung
| Anzahl der Etagen im Haus | 2 |
| Inserat befindet sich im Stockwerk | 0 |
| Keller |
Keller, Gäste-WC
Sonstige Informationen
Heizungsart: Zentralheizung
Energieträger: Fernwärme
Energieausweis nicht vorhanden
ohne-makler (OM) ist weder Anbieter noch Vermittler der Immobilie. OM betreibt eine Plattform für Immobilieneigentümer, die unter anderem die gleichzeitige Veröffentlichung einzelner Inserate auf mehreren Immobilienportalen ermöglicht. Die Inhalte dieser Inserate werden ausschließlich von Dritten verantwortet. Für die Richtigkeit, Vollständigkeit oder Rechtmäßigkeit der Angaben übernimmt OM keine Haftung. Hinweise auf mögliche Rechtsverstöße können jederzeit gemeldet werden und werden nach Prüfung umgehend bearbeitet.
Energieträger: Fernwärme
Energieausweis nicht vorhanden
ohne-makler (OM) ist weder Anbieter noch Vermittler der Immobilie. OM betreibt eine Plattform für Immobilieneigentümer, die unter anderem die gleichzeitige Veröffentlichung einzelner Inserate auf mehreren Immobilienportalen ermöglicht. Die Inhalte dieser Inserate werden ausschließlich von Dritten verantwortet. Für die Richtigkeit, Vollständigkeit oder Rechtmäßigkeit der Angaben übernimmt OM keine Haftung. Hinweise auf mögliche Rechtsverstöße können jederzeit gemeldet werden und werden nach Prüfung umgehend bearbeitet.
Lage des Objektes
Im Zentrum von Hohenbrunn liegt die zu vermietende Fläche in fußläufiger Entfernung zur S-Bahn. Die Dorfstraße verbindet die südlich gelegenen Ortschaften mit München und ist stark frequentiert (Zählung 2014: 10.000 PKW pro Tag). Direkt neben dem Objekt ist die Metzgerei Stocker. Im selben Haus ist ein Physiotherapeut und eine Ergotherapiepraxis.
Infrastruktur (im Umkreis von 5 km):
Öffentliche Verkehrsmittel
Infrastruktur (im Umkreis von 5 km):
Öffentliche Verkehrsmittel
