gepflegte, helle Räume für ihren Erfolg: Praxis, Therapie, Kanzlei, Büro

immobilien.de Nr.: 9275308 Objektnummer: 277600
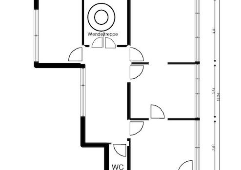
Eingangsbereich
Eingangsbereich
Raum 1
Raum 1
Raum 2
Raum 2
Raum Souterrain
Wendeltreppe
WC
Grundriss Erdgeschoß
Grundriss Souterrain

Preise & Kosten

Miete für das Objekt Auf Anfrage
Nebenkosten keine Angabe
Maklerprovision keine Provision, courtagefrei

Größe & Zustand

Gesamtfläche 120 m²
Bürofläche 120 m²
Baujahr 1973
Verfügbar ab 01.01.2026
Zustand Gepflegt

Energie

Energieausweistyp Bedarfsausweis
Heizungsart Zentralheizung
Energieträger/Befeuerung Öl

Objektbeschreibung

Ab dem 01.01.26 steht in zentraler Lage von Stockstadt am Rhein eine vielseitig nutzbare, gepflegte Gewerbefläche mit ca. 120 m2 zur Verfügung. Die schönen, zeitlosen Räume erstrecken sich über das Erdgeschoß und das Souterrain und bieten somit flexible Nutzungsmöglichkeiten.
Besonderheiten:
•Großzügige Fenster mit Blick ins Grüne sorgen für viel Tageslicht und ein einladendes Ambiente
•Eigener PKW-Stellplatz und zusätzliche Parkmöglichkeiten in der Straße
•Gepflegtes Umfeld mit gutem Kunden- und Klientenzugang
•Die Fläche lässt sich auf Wunsch an Ihre individuellen Bedürfnisse anpassen. Ideal geeignet für Therapiepraxen, Rechtsanwaltskanzleien, Coachings oder kreative Bürolösungen

Ausstattung

Anzahl der Etagen im Haus 2
Inserat befindet sich im Stockwerk 0
 
Boden Laminat
Laminat

Sonstige Informationen

Heizungsart: Zentralheizung
Energieträger: Öl


ohne-makler (OM) ist weder Anbieter noch Vermittler der Immobilie. OM betreibt eine Plattform für Immobilieneigentümer, die unter anderem die gleichzeitige Veröffentlichung einzelner Inserate auf mehreren Immobilienportalen ermöglicht. Die Inhalte dieser Inserate werden ausschließlich von Dritten verantwortet. Für die Richtigkeit, Vollständigkeit oder Rechtmäßigkeit der Angaben übernimmt OM keine Haftung. Hinweise auf mögliche Rechtsverstöße können jederzeit gemeldet werden und werden nach Prüfung umgehend bearbeitet.

Objektstandort

64589 Stockstadt - Hessen

Lage des Objektes

Lage und Verkehrsanbindungen
•Die Gemeinde Stockstadt am Rhein liegt am südlichen Rand des Ballungsgebietes Rhein-Main und verfügt über beste Verkehrsanbindungen:
•naheliegende Autobahnzufahrten (BAB 67 – Pfungstadt bzw. Gernsheim (direkt über die B44) und Groß-Gerau)
•Flughafen Frankfurt, erreichbar in 30 Minuten
•Einwohnerzahl: 6.275 (Stand 2021)
•Naherholung gelingt in größtem hessischen Naturschutzgebiet und Europareservat "Kühkopf-Knoblauchsaue" mit dem Umweltbildungszentrum Schatzinsel Kühkopf
Infrastruktur (im Umkreis von 5 km):
Apotheke, Lebensmittel-Discount, Allgemeinmediziner, Kindergarten, Grundschule, Hauptschule, Öffentliche Verkehrsmittel

Anbieter kontaktieren

Anbieter

OM PropTech GmbH
Humboldtstraße 25a
21509 Glinde

Kontakt

Telefon -
Fax -
Website www.ohne-makler.net

Ansprechpartner/in

Privat vom Eigentümer
Weitere Anbieterdaten