Perfekte Lage für Ihre Praxis: Büro- oder Praxisfläche in zentraler Lage
790 €
Kaltmiete
990 €
Warmmiete
immobilien.de Nr.: 9220188
Objektnummer: FALC-BeBe-74090
Preise & Kosten
| Kaltmiete | 790 € |
| Warmmiete | 990 € |
| Nebenkosten | 100 € |
| Heizkosten | 100 € |
| Mietpreis pro m² | 11 € |
| Kaution | 2370 |
Größe & Zustand
| Gesamtfläche | 72 m² |
| Bürofläche | 72 m² |
| Verfügbar ab | Anfang 2026 |
| Zustand | Erstbezug |
Objektbeschreibung
Ihre neue Büro-/ Praxisfläche befindet sich in der Fußgängerzone von Eschweiler, nur einen Katzensprung von den charmanten Angeboten dieser aufstrebenden Stadt entfernt.
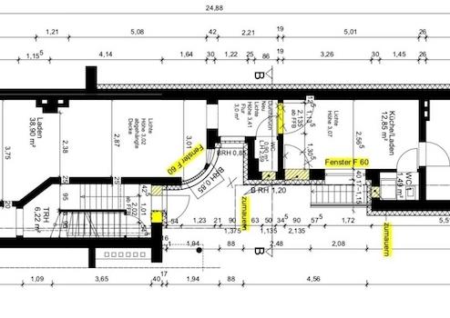
Zur Vermietung stehen in diesem Wohn- und Geschäftshaus 72 m² Büro- und Praxisfläche im Erdgeschoss.
Das Haus wird nach einer Explosion nach den neuesten Standards (GEG gerecht) wieder aufgebaut bzw. saniert.
Ihre neue Büro- /Praxisfläche erstreckt sich über einen großen Raum (39 m2) mit einer Kundentoilette mit Schaufensterfont zur Fussgängerzone. Durch einen kleinen Flur gelangen Sie in zwei weitere Räume, der erste (ca. 13 m2) bietet Zugang zu einem weiteren Bad/WC, direkt anschließend ein weiterer heller Raum.
Die Anlieferung kann über eine separate rückwärtige Zufahrt erfolgen.
Der Innenhof verfügt über einen eigenen Stellplatz, der im Mietpreis enthalten ist.
Zur Vermietung stehen in diesem Wohn- und Geschäftshaus 72 m² Büro- und Praxisfläche im Erdgeschoss.
Das Haus wird nach einer Explosion nach den neuesten Standards (GEG gerecht) wieder aufgebaut bzw. saniert.
Ihre neue Büro- /Praxisfläche erstreckt sich über einen großen Raum (39 m2) mit einer Kundentoilette mit Schaufensterfont zur Fussgängerzone. Durch einen kleinen Flur gelangen Sie in zwei weitere Räume, der erste (ca. 13 m2) bietet Zugang zu einem weiteren Bad/WC, direkt anschließend ein weiterer heller Raum.
Die Anlieferung kann über eine separate rückwärtige Zufahrt erfolgen.
Der Innenhof verfügt über einen eigenen Stellplatz, der im Mietpreis enthalten ist.
Ausstattung
| Keller |
Sonstige Informationen
Gerne tauschen wir uns mit Ihnen über die Möglichkeiten dieser Immobilie aus.
Bei Interesse geben Sie bitte immer Ihre vollständigen Kontaktdaten an.
Die Objektbeschreibung beruht ganz oder zum Teil auf Angaben des Eigentümers. Für die Richtigkeit oder Vollständigkeit übernehmen wir keine Gewähr.
Gerne beraten wir Sie persönlich in unserem Büro
Ihre Ansprechpartner:
Renate Pregel und Bernd Benien
FALC Immobilien Eschweiler
Englerthstrasse 21
52249 Eschweiler
Tel: 0800/6460646 (kostenlos)
renate.pregel@falcimmo.de
bernd.benien@falcimmo.de
Melden Sie sich, wir freuen uns auf Sie!
FALC - einfach mehr
Bei Interesse geben Sie bitte immer Ihre vollständigen Kontaktdaten an.
Die Objektbeschreibung beruht ganz oder zum Teil auf Angaben des Eigentümers. Für die Richtigkeit oder Vollständigkeit übernehmen wir keine Gewähr.
Gerne beraten wir Sie persönlich in unserem Büro
Ihre Ansprechpartner:
Renate Pregel und Bernd Benien
FALC Immobilien Eschweiler
Englerthstrasse 21
52249 Eschweiler
Tel: 0800/6460646 (kostenlos)
renate.pregel@falcimmo.de
bernd.benien@falcimmo.de
Melden Sie sich, wir freuen uns auf Sie!
FALC - einfach mehr
Lage des Objektes
Ihre neue Büro- oder Praxisfläche befindet sich in sehr zentraler Lage in Eschweilers Fußgängerzone.
Umfangreiche Einzelhandels-und Dienstleistungsangebote finden Sie bereits in der beliebten City, ebenso wie diverse Cafes und attraktive Gastronomiebetriebe.
Alle öffentlichen Verkehrsmittel, sowie diverse Parkplätze und ein Parkhaus sind unmittelbar erreichbar.
Die Stadt Eschweiler ist eine Mittelstadt mit ca. 56.000 Einwohnern in der Städteregion Aachen. Sie ist ein Mittelzentrum mit einem der größten Krankenhäuser der Region, Sitz mehrerer Behörden wie der Bundespolizei und regional bedeutender Kultureinrichtungen.
Die Nähe zur bedeutenden RWTH Aachen und dem Forschungsflugplatz Merzbrück macht die Stadt zusätzlich attraktiv.
Umfangreiche Einzelhandels-und Dienstleistungsangebote finden Sie bereits in der beliebten City, ebenso wie diverse Cafes und attraktive Gastronomiebetriebe.
Alle öffentlichen Verkehrsmittel, sowie diverse Parkplätze und ein Parkhaus sind unmittelbar erreichbar.
Die Stadt Eschweiler ist eine Mittelstadt mit ca. 56.000 Einwohnern in der Städteregion Aachen. Sie ist ein Mittelzentrum mit einem der größten Krankenhäuser der Region, Sitz mehrerer Behörden wie der Bundespolizei und regional bedeutender Kultureinrichtungen.
Die Nähe zur bedeutenden RWTH Aachen und dem Forschungsflugplatz Merzbrück macht die Stadt zusätzlich attraktiv.
Anbieter kontaktieren
Anbieter
FALC Immobilien GmbH & Co. KG
Humperdickstr. 3
53773 Hennef (Sieg)
Kontakt
| Telefon | +49 800 6460646 |
| Mobil | +49 173 2011184 |
| Fax | +49 2242 9010319 |
| Website | www.falcimmo.de |
