BÜRO/PRAXIS IN HISTORISCHEM AMBIENTE!
990 €
Kaltmiete
6
Zimmer
immobilien.de Nr.: 9173541
Objektnummer: 4110
Preise & Kosten
| Kaltmiete | 990 € |
| Nebenkosten | 300 € |
| Mietpreis pro m² | 6,19 € |
| Maklerprovision | 1,19MM |
| Kaution | 1.840 € |
Größe & Zustand
| Gesamtfläche | 160 m² |
| Bürofläche | 160 m² |
| Zimmer | 6 |
| Baujahr | 1891 |
| Verfügbar ab | 01.02.2026 |
| Zustand | Gepflegt |
Objektbeschreibung
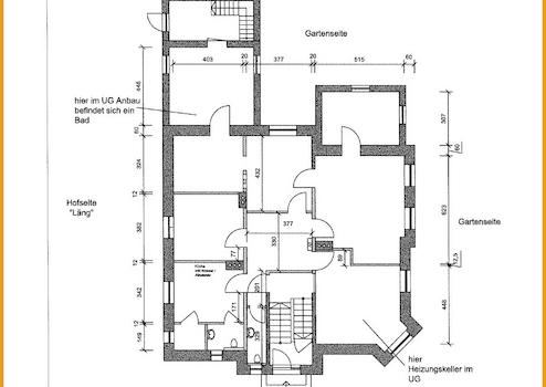
Diese im Hochparterre gelegene Büro- oder Praxiseinheit ist über eine halbe Treppe erreichbar und bietet Ihnen rund 160m² Fläche auf einer Ebene. Sie gliedert sich auf in sechs Räume, eine Küche, zwei WC´s sowie einen Abstellraum, der Ihnen Lagermöglichkeit bietet. Die beiden Außenstellplätze können für jeweils 20,- € hinzugemietet werden. Die Räumlichkeiten sind insgesamt nutzbar oder können in zwei Teilbereiche mit separatem Eingang gegliedert werden.
Ausstattung
| Boden | Linoleum |
| Keller |
Das Haus wird mit einer Ölzentralheizung beheizt und ist mit zweifach isoverglasten Kunststofffenstern ausgestattet. Die Fenster sind zudem mit Rollläden versehen. Die Elektrik ist 3-adrig und besitzt einen FI-Schalter. Der Fußboden wurde überwiegend mit Linolium belegt. Ein Energieausweis wird nicht benötigt. Sie möchten mehr erfahren? Dann kontaktieren Sie uns umgehend!
Lage des Objektes
Das Objekt befindet sich direkt in Alsfeld, einer historischen Kleinstadt in Hessen. Alsfeld ist bekannt für seine gut erhaltene mittelalterliche Altstadt und seine zentrale Lage, die hervorragende Anbindungen an größere Städte bietet. Die Büro-/Praxisfläche liegt in unmittelbarer Nähe des Bahnhofs von Alsfeld, was eine komfortable Erreichbarkeit sowohl mit öffentlichen Verkehrsmitteln als auch mit dem Auto gewährleistet. Diese strategisch günstige Lage ist ideal für Firmen die Praxis- oder Büroflächen benötigen, die von einer geschichtsträchtigen Umgebung profitieren möchten, ohne auf die Vorzüge moderner Infrastruktur zu verzichten. Die Umgebung bietet zudem zahlreiche Annehmlichkeiten, darunter Restaurants, Cafés und Einkaufsmöglichkeiten, was das Arbeitsumfeld zusätzlich attraktiv macht. Weitere Informationen finden Sie unter: www.msi-hessen.de
Anbieter kontaktieren
Anbieter
msi-Mike Schneider Immobilien GmbH
Schwabenröder Str. 7A
36304 Alsfeld
Kontakt
| Telefon | 004915901936954 |
| Mobil | 004915901936954 |
| Fax | 00496631776728 |
| Website | www.msi-hessen.de |
