Attraktive Praxis und Büroetage in zentraler Innenstadtlage von Idstein
1.580 €
Kaltmiete
2.030 €
Warmmiete
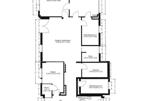
158 m²
Nutzfläche
8
Zimmer
immobilien.de Nr.: 9163161
Objektnummer: MB 497
Dateien
Preise & Kosten
| Kaltmiete | 1.580 € |
| Warmmiete | 2.030 € |
| Nebenkosten | 450 € |
| Mietpreis pro m² | 10 € |
| Maklerprovision | 2,38 Monatskaltmieten inkl. 19 % MwSt. |
| Stellplatz Freiplatz Miete} | 0 € |
Größe & Zustand
| Nutzfläche | 158 m² |
| Gesamtfläche | 158 m² |
| Bürofläche | 158 m² |
| Zimmer | 8 |
| Baujahr | 1901 |
| Verfügbar ab | 01.05.2026 |
| Zustand | Gepflegt |
Energie
| Energieausweistyp | Bedarfsausweis |
| Gültig bis | 2035-06-23 |
| Baujahr (laut Energieausweis) | 2006 |
| Energieeffizienzklasse | H |
| Endenergiebedarf | 264.40 |
| Heizungsart | Zentralheizung |
| Wesentlicher Energieträger | Gas |
| Energieträger/Befeuerung | Gas |
Objektbeschreibung
Willkommen in Ihrer zukünftigen Praxis,- und Büroetage in der charmanten Hochschulstadt Idstein im Taunus. Diese gepflegte Praxis-, und Büroetage bietet den idealen Raum für Ihre geschäftlichen Aktivitäten. Gelegen in einem soliden massiven Gründerzeit Bauwerk aus dem Jahr 1901, überzeugt dieses besondere Objekt durch seine traditionelle Bauweise und seinen einladenden Charakter, der perfekt mit modernen Arbeitsansprüchen harmoniert.
Auf der von uns angebotene Erdgeschossetage bietet diese Praxis-- und Bürofläche ausreichend Platz für Ihre geschäftlichen Bedürfnisse. Die Ausstattung entspricht einer guten Qualität und sorgt durch eine Kombination aus Fliesen und Kunststoffbelag für eine angenehme Arbeitsatmosphäre. Die Pantryküche stellt die nötige Infrastruktur bereit, um Ihre Mitarbeiter in den Pausen zu versorgen und lädt ebenso zu kurzen Besprechungen bei einem Kaffee ein.
Besonders praktisch ist das vorhandene Kunden / Patienten Gäste-WC, welches den Komfort für Sie, Ihre Mitarbeiter und Besucher erhöht. Die Praxis und Büroetage steht Ihnen ab dem 1. Mai 2026 zur Verfügung, und Sie können direkt mit Ihren Geschäftstätigkeiten starten.
Verpassen Sie nicht die Gelegenheit, in einer so zentral gelegenen und gepflegten Immobilie Ihre Geschäftsideen zu verwirklichen. Kontaktieren Sie uns gerne für weitere Informationen oder um einen Besichtigungstermin zu vereinbaren. Tauchen Sie ein in die Möglichkeiten, die sich Ihnen hier in Idstein eröffnen.
Auf der von uns angebotene Erdgeschossetage bietet diese Praxis-- und Bürofläche ausreichend Platz für Ihre geschäftlichen Bedürfnisse. Die Ausstattung entspricht einer guten Qualität und sorgt durch eine Kombination aus Fliesen und Kunststoffbelag für eine angenehme Arbeitsatmosphäre. Die Pantryküche stellt die nötige Infrastruktur bereit, um Ihre Mitarbeiter in den Pausen zu versorgen und lädt ebenso zu kurzen Besprechungen bei einem Kaffee ein.
Besonders praktisch ist das vorhandene Kunden / Patienten Gäste-WC, welches den Komfort für Sie, Ihre Mitarbeiter und Besucher erhöht. Die Praxis und Büroetage steht Ihnen ab dem 1. Mai 2026 zur Verfügung, und Sie können direkt mit Ihren Geschäftstätigkeiten starten.
Verpassen Sie nicht die Gelegenheit, in einer so zentral gelegenen und gepflegten Immobilie Ihre Geschäftsideen zu verwirklichen. Kontaktieren Sie uns gerne für weitere Informationen oder um einen Besichtigungstermin zu vereinbaren. Tauchen Sie ein in die Möglichkeiten, die sich Ihnen hier in Idstein eröffnen.
Ausstattung
| Anzahl der Etagen im Haus | 3 |
| Inserat befindet sich im Stockwerk | 0 |
| Küche | Pantry |
| Bad | Fenster |
| Boden | Fliesen |
| Dachboden | |
| Keller |
- Gäste-WC
- Pantry-Küche
- Abstellraum
- Fliesenboden
- Kunststoffbodenbelag
- Kabel-Satelliten-TV
- Zentralheizung mit Gasbefeuerung
- Pantry-Küche
- Abstellraum
- Fliesenboden
- Kunststoffbodenbelag
- Kabel-Satelliten-TV
- Zentralheizung mit Gasbefeuerung
Sonstige Informationen
HABEN WIR IHR INTERESSE GEWECKT ?
Wenn Sie noch weitere Informationen möchten oder Fragen zu unserer angebotenen Büro-, oder Praxisfläche und zur Wohn-, und Geschäftslage in Idstein haben, stehen wir Ihnen jederzeit gerne zur Verfügung.
Unsere Bitte an Sie:
Diese Immobilie gefällt Ihnen? Sie wünschen eine Besichtigung? Bitte nutzen Sie die elektronische Kontaktmöglichkeit auf dieser Seite und senden Sie uns Ihre Mail mit Angabe Ihres vollständigen Namens, Ihrer Telefon Nummer(n), E-Mail-Adresse und Ihres Terminwunsches. Bitte denken Sie auch an einen möglichen alternativen Termin.
V E R H A N D L U N G E N :
Sind ausschließlich über uns zu führen.
B E S I C H T I G U N G S T E R M I N E :
Für weitere Informationen sowie die Vereinbarung eines Besichtigungstermins stehen wir Ihnen gerne zur Verfügung. Wir freuen uns auf Ihre e-Mail Anfrage!
M A K L E R P R O V I S I O N :
Im Falle des Zustandekommens eines Mietvertrages, ist eine Courtage in Höhe von 2 Monatskaltmieten (zzgl. 19 % MwSt.) vom vereinbarten Mietpreis vom Mieter an den Makler zu zahlen.
I H R E - A N S P R E C H P A R T N E R :
Martin Brandt und Kerstin Brandt
E-Mail: immobilien@bpi24.de
F R E U N D L I C H E R - H I N W E I S :
Alle Angaben in diesem Exposé wurden sorgfältig und so vollständig wie möglich gemacht. Dennoch kann das Vorhandensein von Fehlern nicht ausgeschlossen werden. Die Angaben in diesem Exposé erfolgen daher ohne Gewähr und basieren ausschließlich auf Informationen, die uns vom Verkäufer/Vermieter bzw. von Dritten zur Verfügung gestellt wurden, so dass wir keine Gewähr für die Vollständigkeit, Richtigkeit und Aktualität dieser Angaben übernehmen können. Irrtum und Zwischenverkauf/Zwischenvermietung bleibt vorbehalten.
Wenn Sie noch weitere Informationen möchten oder Fragen zu unserer angebotenen Büro-, oder Praxisfläche und zur Wohn-, und Geschäftslage in Idstein haben, stehen wir Ihnen jederzeit gerne zur Verfügung.
Unsere Bitte an Sie:
Diese Immobilie gefällt Ihnen? Sie wünschen eine Besichtigung? Bitte nutzen Sie die elektronische Kontaktmöglichkeit auf dieser Seite und senden Sie uns Ihre Mail mit Angabe Ihres vollständigen Namens, Ihrer Telefon Nummer(n), E-Mail-Adresse und Ihres Terminwunsches. Bitte denken Sie auch an einen möglichen alternativen Termin.
V E R H A N D L U N G E N :
Sind ausschließlich über uns zu führen.
B E S I C H T I G U N G S T E R M I N E :
Für weitere Informationen sowie die Vereinbarung eines Besichtigungstermins stehen wir Ihnen gerne zur Verfügung. Wir freuen uns auf Ihre e-Mail Anfrage!
M A K L E R P R O V I S I O N :
Im Falle des Zustandekommens eines Mietvertrages, ist eine Courtage in Höhe von 2 Monatskaltmieten (zzgl. 19 % MwSt.) vom vereinbarten Mietpreis vom Mieter an den Makler zu zahlen.
I H R E - A N S P R E C H P A R T N E R :
Martin Brandt und Kerstin Brandt
E-Mail: immobilien@bpi24.de
F R E U N D L I C H E R - H I N W E I S :
Alle Angaben in diesem Exposé wurden sorgfältig und so vollständig wie möglich gemacht. Dennoch kann das Vorhandensein von Fehlern nicht ausgeschlossen werden. Die Angaben in diesem Exposé erfolgen daher ohne Gewähr und basieren ausschließlich auf Informationen, die uns vom Verkäufer/Vermieter bzw. von Dritten zur Verfügung gestellt wurden, so dass wir keine Gewähr für die Vollständigkeit, Richtigkeit und Aktualität dieser Angaben übernehmen können. Irrtum und Zwischenverkauf/Zwischenvermietung bleibt vorbehalten.
Lage des Objektes
Die Hochschulstadt Idstein... ist ein schönes und aufstrebendes Mittelzentrum mit hoher Wohnqualität und vielen Möglichkeiten zur Deckung des täglichen Bedarfs. Idstein hat eine urgemütliche, historisch wertvolle Altstadt mit wunderschönen Fachwerkhäusern und gut sortierten Geschäften, 2 Galerien in der Altstadt, diversen Cafés, schönen Restaurants und Hotels.
SCHULEN / KINDERGÄRTEN:
Idstein verfügt über alle Schulen (PSI, Taubenbergschule und Montessorischule) und insgesamt fünf Kindergärten und natürlich vielfältige Angebote zur Vereinbarkeit von Beruf und Familie.
GEWERBE IN IDSTEIN:
In Idstein hat sich ein stark expandierendes Gewerbegebiet angesiedelt und verfügt als historisch bedeutsames und modernes Mittelzentrum und Kern des Idsteiner Landes über eine vielfältige Einzelhandelsstruktur.
EINWOHNERZAHL:
Idstein hat derzeit ca. 28.000 Einwohner. Die Kernstadt von Idstein hat ca. 18.000 Einwohner.
EXZELLENTE EINKAUFSMÖGLICHKEITEN:
- Idsteiner Wochenmarkt Mittwoch und Samstag
- Denn´s Naturkostladen - Bio Der Hofladen Vin Elli
- EDEKA - HIT - REWE - Netto - Aldi - Lidl - Penny - Norma - DM Drogerie
- Rossmann - Getränkemärkte - OBI...
HOCHSCHULSTANDORT IDSTEIN:
Hochschule FRESENIUS mit ca. 2400 Studenten
SPORT IN IDSTEIN
- Turn Verein TV Idstein
- Tennis Club TC
- Premium Sport Center
- Clever Fit Studio
- Idsteiner Golfclub - zwei 18 Loch Golfplätze
- „Südkurs + Nordkurs“ in Idstein-Wörsdorf vor den Türen der Stadt.
UNTERNEHMEN:
Es gibt in Idstein ca. 200 kleinere und mittlere, vor allem Handwerks- und Einzelhandelsunternehmen, welche das gewerbliche Idstein prägen.
VERKEHRSANBINDUNG / BUS UND BAHN:
Die Stadt verfügt über hervorragende Bus- und Bahnanbindungen nach Wiesbaden und Frankfurt. Als Ergänzung zu den lokalen und regionalen Busverbindungen in der Kernstadt wird noch ein Busstadtverkehr angeboten.
PARKEN IN IDSTEIN:
Idstein verfügt über zwei Tiefgaragen und zwei große Parkplätze die jeweils 24 Stunden geöffnet sind.
SCHULEN / KINDERGÄRTEN:
Idstein verfügt über alle Schulen (PSI, Taubenbergschule und Montessorischule) und insgesamt fünf Kindergärten und natürlich vielfältige Angebote zur Vereinbarkeit von Beruf und Familie.
GEWERBE IN IDSTEIN:
In Idstein hat sich ein stark expandierendes Gewerbegebiet angesiedelt und verfügt als historisch bedeutsames und modernes Mittelzentrum und Kern des Idsteiner Landes über eine vielfältige Einzelhandelsstruktur.
EINWOHNERZAHL:
Idstein hat derzeit ca. 28.000 Einwohner. Die Kernstadt von Idstein hat ca. 18.000 Einwohner.
EXZELLENTE EINKAUFSMÖGLICHKEITEN:
- Idsteiner Wochenmarkt Mittwoch und Samstag
- Denn´s Naturkostladen - Bio Der Hofladen Vin Elli
- EDEKA - HIT - REWE - Netto - Aldi - Lidl - Penny - Norma - DM Drogerie
- Rossmann - Getränkemärkte - OBI...
HOCHSCHULSTANDORT IDSTEIN:
Hochschule FRESENIUS mit ca. 2400 Studenten
SPORT IN IDSTEIN
- Turn Verein TV Idstein
- Tennis Club TC
- Premium Sport Center
- Clever Fit Studio
- Idsteiner Golfclub - zwei 18 Loch Golfplätze
- „Südkurs + Nordkurs“ in Idstein-Wörsdorf vor den Türen der Stadt.
UNTERNEHMEN:
Es gibt in Idstein ca. 200 kleinere und mittlere, vor allem Handwerks- und Einzelhandelsunternehmen, welche das gewerbliche Idstein prägen.
VERKEHRSANBINDUNG / BUS UND BAHN:
Die Stadt verfügt über hervorragende Bus- und Bahnanbindungen nach Wiesbaden und Frankfurt. Als Ergänzung zu den lokalen und regionalen Busverbindungen in der Kernstadt wird noch ein Busstadtverkehr angeboten.
PARKEN IN IDSTEIN:
Idstein verfügt über zwei Tiefgaragen und zwei große Parkplätze die jeweils 24 Stunden geöffnet sind.
Anbieter kontaktieren
Anbieter
Martin Brandt Immobilien
Wiesbadener Straße 6
65510 Idstein
Kontakt
| Telefon | 00490612656427 |
