Düsseldorf City I Zeitlose Büroflächen auf der Liesegangstraße
immobilien.de Nr.: 8974179
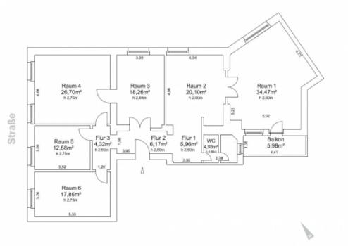
Objektnummer: 1324_004
Preise & Kosten
| Kaltmiete | 0 € |
| Nebenkosten | keine Angabe |
| Mietpreis pro m² | 17,5 € |
| Maklerprovision | Provisionspflichtig |
Größe & Zustand
| Gesamtfläche | 148 m² |
| Bürofläche | 148 m² |
| Verfügbar ab | kurzfristig |
Objektbeschreibung
Das 5-geschossiges Büro- und Geschäftshaus wird derzeit saniert. Im Zuge der Sanierung wurden auch der repräsentative Eingangsbereich in Marmor sowie der Personenaufzug erneuert.
Im Erdgeschoss des Hauses befinden sich ein Café sowie eine Versicherungsagentur.
Im Erdgeschoss des Hauses befinden sich ein Café sowie eine Versicherungsagentur.
Ausstattung
| Anzahl der Etagen im Haus | 5 |
| Inserat befindet sich im Stockwerk | 3 |
- Teeküche
- getrennte Damen- und Herren WC's
Die Flächen befinden sich derzeit in Rohbauzustand und werden den Mieterwünschen entsprechend ausgebaut und ausgestattet.
- getrennte Damen- und Herren WC's
Die Flächen befinden sich derzeit in Rohbauzustand und werden den Mieterwünschen entsprechend ausgebaut und ausgestattet.
Sonstige Informationen
Der Standort verfügt über eine ausgeszeichnete Anbindung an öffentliche Verkehrsmittel. Eine Straßenbahn- und Bushaltestelle befindet sich auf der Schadowstraße.
Lage des Objektes
Das Objekt befindet sich zentral in der Düsseldorfer-Innenstadt, direkt gegenüber dem Kaufhaus Karstadt; nur wenige Gehminuten zum Hofgarten.
Mehrere öffentliche Parkhäuser befinden sich in unmittelbarer Nachbarschaft.
Zu den Autobahnanschlüssen A 52, A 57 und A 46 besteht eine gute Verkehrsanbindung.
Mehrere öffentliche Parkhäuser befinden sich in unmittelbarer Nachbarschaft.
Zu den Autobahnanschlüssen A 52, A 57 und A 46 besteht eine gute Verkehrsanbindung.
Anbieter kontaktieren
Anbieter
corealis Commercial Real Estate GmbH
Hohe Straße 8-10
40213 Düsseldorf
Kontakt
| Telefon | +49(211) 52288470 |
| Fax | +49(211) 52288479 |
| Website | www.corealis.de |
