Praxis- oder Büroräume in sehr guter Lage von Auerbach im Vogtland zu verkaufen oder zu vermieten

159.850 €
Kaufpreis
6
Zimmer
immobilien.de Nr.: 8425865 Objektnummer: 4071#suwskN
Straßenansicht
Frontansicht
Seitenstraße
Grünanlage
Eingangsbereich
Eingang
Flur
Blick ins Studio
Studio
Studio 2
Kleiner Raum
Bisherige Umkleide
Vorraum
Dusche
Zufahrt Tiefgarage
Ausfahrt Tiefgarage
Tiefgarage
Duplexparker
Umgebung
Umgebung 2
Umgebung 3
Seitenstraße
Eingangsbereich
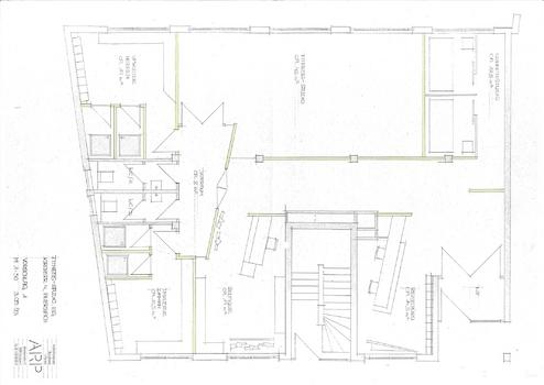
Grundriss

Preise & Kosten

Kaufpreis 159.850 €
Nebenkosten keine Angabe
Maklerprovision 7,14 %

Größe & Zustand

Gesamtfläche 167,65 m²
Bürofläche 167,65 m²
Zimmer 6
Baujahr 1993
Verfügbar ab keine Angabe
Zustand Gepflegt

Energie

Baujahr (laut Energieausweis) 1993

Objektbeschreibung

Wir verkaufen im Kundenauftrag eine größere Gewerbeeinheit im Erdgeschoss eines 1993 neu erbauten Wohn- und Geschäftshauses im Zentrum von Auerbach im Vogtland.

Die Räume eignen sich hervorragend für eine Praxis, ein Büro oder für zum Beispiel eine medizinische Einrichtung im Bereich der Physiotherapie oder eine Zahnarztpraxis.

Die Immobilie wurde beim Bau nach Süden und Südwesten ausgerichtet, sodass die Räume von morgens bis abends sehr gut von Licht durchflutet werden.

Eine ansprechende Architektur, die großflächigen Fensterfronten und eine gut durchdachte Raumaufteilung, machen die Entscheidung für einen Kauf in diesem Objekt leicht.

Die ehemalige Planung der Räumlichkeiten beinhalten folgende Zimmer, die Sie im Grundriss wieder finden.

Ausstattung

Inserat befindet sich im Stockwerk 0
 
Boden Teppich
* Anmeldung/ Warteraum
* Fitness-Studio
* Vorraum
* Umkleide Damen und Umkleide Herren
* Flur
* WC Damen und WC Herren
* 2 Duschen Damen und 2 Duschen Herren
* 5 Duplex Stellplätze
* 3 Studio-Räume

Sonstige Informationen

Rechtlicher Hinweis / Disclaimer
Wir bitten um Verständnis, dass wir nur vollständig ausgefüllte Emailanfragen mit Vornamen, Namen, Anschrift, Telefonnummer und Emailadresse beantworten können.
Alle Daten und Fakten stammen vom Eigentümer des Objektes. Wir haben uns vor Ort von der Übereinstimmung überzeugt. Trotz aller Gründlichkeit können wir für die Richtigkeit und Vollständigkeit der Angaben keine Haftung übernehmen. Irrtum und Auslassung sowie Zwischenverkauf und/oder Zwischenvermietung bleiben vorbehalten.
Eine Reservierung kann nur nach schriftlicher Vereinbarung in Absprache mit dem Makler und dem Eigentümer erfolgen.
Disclaimer / Property offers
Please understand that we will only answer fully completed requests with name, address, telephone number and email address.
Provided, neither Langer Immobilien GmbH & Co. KG, its officers or employees accept any responsibility as to the accuracy of the information provided on either this or in any subsequent communication.
We strongly recommend that each individual investor takes independent professional advice concerning all aspects of any proposed purchase.
Langer Immobilien GmbH & Co. KG does not take any responsibility for any Professional or other costs incurred by an investor.
The provision of the information contained in this E-Mail or any subsequent communication is no indication or proof of Langer Immobilien GmbH & Co. KG’s legal appointment by the owner / vendor of a proposed investment to market this opportunity exclusively or as one of several appointed consultants.
Hauptsitz: Langer Immobilien GmbH & Co. KG, Weydingerstraße 14-16, 10178 Berlin - Mitte

Objektstandort

08209 Auerbach

Lage des Objektes

Auerbach, im Jahre 1282 erstmals erwähnt, gilt als Zentrum des östlichen Vogtlandes. Der 43,9 m hohe Schloßturm sowie die Türme der Stadtkirche "St. Laurentius" und der Katholischen Kirche "Zum Heiligen Kreuz" prägen die weithin sichtbare Silhouette der fast 20000 Einwohner zählenden Großen Kreisstadt. Der historische Stadtkern im Bereich Nicolaikirche, Altmarkt, Neumarkt sowie den Bürgerhäusern sind bestimmt eine Fundgrube für historisch interessierte Besucher. Auerbach ist mit einer Höhenlage von 500 m wunderschön in die vogtländische Landschaft eingebunden.

In Hanglage über dem Flüßchen Göltzsch zu Füßen des Schloßturmes aus dem 12. Jahrhundert hat Auerbach seinen Gästen neben Historie auch Erholung, Kultur, Sport, gepflegte Gastronomie und gut ausgestattete Unterkünfte zu bieten. Viele kleine Parkanlagen geben unserer Stadt ihr unverwechselbares Gepräge. Die sanierte Innenstadt mit den Plätzen Altmarkt und Neumarkt, die durch eine Fußgängerzone verbunden sind, laden zum Einkaufsbummel ein.

Durchzogen vom zweitgrößten zusammenhängenden Waldgebiet Deutschlands erwarten Sie hier optimale Erholungsmöglichkeiten. Naturschönheiten und kulturhistorische Sehenswürdigkeiten können Sie auf verschiedenen Vogtlandtouren per Auto, Bahn, Fahrrad oder zu Fuß kennenlernen. Auerbach ist die einzige Stadt des Vogtlandes, die einen Segelflugplatz besitzt. Für sportlich interessierte Urlauber stehen Tennis- und Reitsportanlagen, sowie Sprungschanzen und Skiloipen zur Verfügung. Der Waldpark Grünheide ist in der Ferienzeit Erholungs- und Freizeitparadies, u.a. mit der Fußballschule Vogtland.

Im Kulturleben der Stadt bilden das Frühlingsfest, das historische Altmarktfest, die Auerbacher Kirmes sowie der traditionelle Weihnachtsmarkt jährlich die Höhepunkte. Am Ortsausgang befindet sich die "Göltzschtalgalerie Nicolaikirche". Die restaurierte Kapelle, deren Geschichte bis zum Mittelalter reicht, ist jetzt ein Ort für Konzerte und Ausstellungen. Das Auerbacher Museum bietet mit Schautafeln und Gegenständen einen historischen Einblick in 725 Jahre Sadtgeschichte. Weiterhin sind wechselnde Sonderausstellungen Anziehungspunkt für Kulturinteressierte.

Lassen Sie sich von der schönen Landschaft und der Vielfältigkeit an Freizeitangeboten einmal ins vogtländische Auerbach locken. Wie Sie sehen können, ein Besuch lohnt sich auf jeden Fall!

( Quelle: https://www.stadt-auerbach.de/inhalte/stadt_auerbach/_inhalt/unsere_stadt )

Verkehr
In Auerbach befindet sich der Flugplatz Auerbach. Es gibt zwei Bahnhöfe und einen Haltepunkt, die von der Vogtlandbahn angefahren werden. Vom oberen Bahnhof an der Bahnstrecke Herlasgrün–Oelsnitz können Plauen, Hof, Falkenstein und Adorf erreicht werden. Vom unteren Bahnhof an der Bahnstrecke Zwickau–Falkenstein sind Zwickau, Falkenstein sowie Klingenthal erreichbar. Die Linie, die über den unteren Bahnhof führt, wurde im Jahr 2000 nach Tschechien verlängert. Damit besteht im tschechischen Grenzort Kraslice eine Umsteigemöglichkeit in die Züge der GW Train Regio; Sokolov und Karlovy Vary (Karlsbad – Verbindung nur am Wochenende) sind direkt erreichbar mit Anschluss an das Schnellzugnetz der tschechischen Bahn Ceské dráhy.

Seit 2018 gibt es in Auerbach am Gartenhaus eine Station des mitteldeutschen Carsharing-Anbieters Teilauto, an der zwei Elektroautos zum Ausleihen bereitstehen. Damit können z. B. Touristen ohne eigenes Auto mit der Bahn anreisen und für abgelegene Ziele in der Umgebung ein Teilauto nutzen. Auerbach kann man in diesem Sinne als Vorreiter betrachten, denn es gehört damit zu den ganz wenigen Kleinstädten, die über eine Carsharing-Station verfügen, während sich solche Angebote meist auf große Ballungsgebiete beschränken.

( Quelle: https://de.wikipedia.org/wiki/Auerbach/Vogtl. )

Anbieter kontaktieren

Anbieter

Langer Immobilien GmbH & Co.KG
Weydingerstraße 14-16
10178 Berlin

Ansprechpartner/in

Herr Hermann Knospe
Weitere Anbieterdaten