Exposé
Objektart:
Haus
» Einfamilienhaus
» Kauf
Standort: Haus »
Deutschland » Baden-Württemberg » Heilbronn (Kreis) » Neudenau
ACHTUNG!!! BITTE ERST LESEN!!!
Ansicht
Das Wichtigste auf einen Blick:
| Objektnummer: | 9382145 |
Preise
| Kaufpreis | 240.000 € |
| Nebenkosten | keine Angabe |
Flächen
| Wohnfläche | 180 m² |
| Grundstücksfläche | 400 m² |
| Maklerprovision | 2,97 % (inkl. MwSt.) |
Objekt Adresse
74861 Neudenau
Sonstige Angaben
| Baujahr | 1950 |
| Zimmer | 3 |
| Verfügbar ab | sofort frei |
| Bad | 1 |
| Anzahl der Etagen im Haus | 2 |
| Küche | Einbauküche |
| Bad | 1 |
| Boden | Fliesen, Fertigparkett |
Objektbeschreibung
Wir haben diese Überschrift bewusst gewählt, denn wir möchten nicht, dass Sie die Beschreibung unseres Hauses falsch verstehen. Wir verkaufen im Neudenauer Ortsteil Herbolzheim ein Wohnhaus mit ca. 400 qm Grundstück und müssen dieses Angebot wirklich einzeln erläutern.
Zuerst das Haus:
Es handelt sich um ein Wohnhaus aus den 1950er-Jahren. Dieses wurde nach 2010 komplett entkernt. Der Neuaufbau begann in zwei Etappen: die Gebäudehülle und die Erdgeschosswohnung. Beides ist fertiggestellt. Das Dach ist neu gedeckt, die Fenster sind neu, die Fassade ist wärmegedämmt und der Kaminfeger freut sich über einen neuen Schornstein. Außerdem wurde die Erdgeschosswohnung komplett neu ausgebaut.
All dies fand in den Jahren 2012/13 statt. Damals wurden die beiden oberen Geschosse bereits begonnen. Die Medien sind nach oben geführt, die Decken sind erneuert, der Ausbau hat jedoch noch nicht stattgefunden. Das Ober- und das Dachgeschoss sind unausgebaut.
Der Vorteil des Ganzen ist: Sie haben es selbst in der Hand und können vor allem eine Menge Eigenleistung investieren - vorausgesetzt natürlich, Sie haben ein Handwerkerherz.
Das Grundstück:
Der Grundstücksanteil wird im Zuge des Verkaufs aus einem größeren Grundstück herausgemessen. In unserer Berechnung haben wir die angegebenen ca. 400 qm zugrunde gelegt.
So, nun sollen der Worte genug geschrieben sein. Wenn Sie sich unschlüssig sind, sagen Sie uns das bitte auch. Wir haben einen virtuellen Rundgang erstellt und stellen Ihnen diesen gerne vorab zur Verfügung.
Weitere Angebote unter www.GARANT-IMMO.de
Zuerst das Haus:
Es handelt sich um ein Wohnhaus aus den 1950er-Jahren. Dieses wurde nach 2010 komplett entkernt. Der Neuaufbau begann in zwei Etappen: die Gebäudehülle und die Erdgeschosswohnung. Beides ist fertiggestellt. Das Dach ist neu gedeckt, die Fenster sind neu, die Fassade ist wärmegedämmt und der Kaminfeger freut sich über einen neuen Schornstein. Außerdem wurde die Erdgeschosswohnung komplett neu ausgebaut.
All dies fand in den Jahren 2012/13 statt. Damals wurden die beiden oberen Geschosse bereits begonnen. Die Medien sind nach oben geführt, die Decken sind erneuert, der Ausbau hat jedoch noch nicht stattgefunden. Das Ober- und das Dachgeschoss sind unausgebaut.
Der Vorteil des Ganzen ist: Sie haben es selbst in der Hand und können vor allem eine Menge Eigenleistung investieren - vorausgesetzt natürlich, Sie haben ein Handwerkerherz.
Das Grundstück:
Der Grundstücksanteil wird im Zuge des Verkaufs aus einem größeren Grundstück herausgemessen. In unserer Berechnung haben wir die angegebenen ca. 400 qm zugrunde gelegt.
So, nun sollen der Worte genug geschrieben sein. Wenn Sie sich unschlüssig sind, sagen Sie uns das bitte auch. Wir haben einen virtuellen Rundgang erstellt und stellen Ihnen diesen gerne vorab zur Verfügung.
Weitere Angebote unter www.GARANT-IMMO.de
Lage des Objektes
Das Anwesen befndet sich in Neudenau, genauer gesagt im Ortsteil Herbolzheim.
Nach Bad Friedrichsall sind es ca 15 km und zur Autobahn ist es ähnlich weit.
Nach Bad Friedrichsall sind es ca 15 km und zur Autobahn ist es ähnlich weit.
Ansicht 3
Ansicht 4
Draufsicht Grundstück
Wohnen
Küche
Schlafen
Esszimmer
Bad
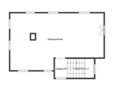
Obergeschoss
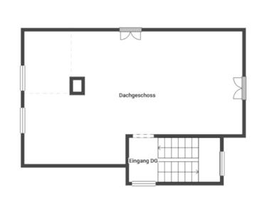
Dachgeschoss
Erdgeschoss
1. Etage
2. Etage