Exposé
Objektart:
Grundstück
» Wohnen
» Kauf
Standort: Grundstück »
Deutschland » Brandenburg » Havelland (Kreis) » Falkensee
BAUGENEHMIGUNG INKLUSIVE! FREIES BAUGRUNDSTÜCK FÜR EIN MEHRFAMILIENHAUS MIT 4 WOHNEIHEITEN!
Visualisierung (1)
Das Wichtigste auf einen Blick:
| Objektnummer: | 9355200 |
Preise
| Kaufpreis | 750.000 € |
| Nebenkosten | keine Angabe |
| Kaufpreis pro m² | 761 € |
Flächen
| Grundstücksfläche | 985 m² |
| Maklerprovision | 7,14 % |
Objekt Adresse
14612 Falkensee
- Brandenburg
Sonstige Angaben
| Verfügbar ab | sofort |
Objektbeschreibung
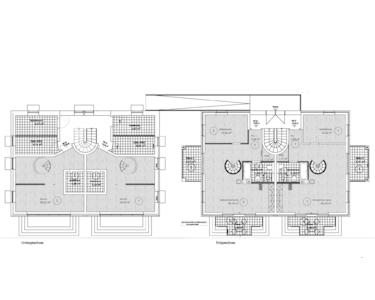
- baureifes Grundstück, bestehend aus 2 Flurstücken
- Baugenehmigung für ein 2-geschossiges Wohngebäude inklusive
- alternativ könnten auch 2 separate Einfamilienhäuser hergestellt werden
- barrierefreier Zugang zum Haus über eine rollstuhlgerechte Rampe
- Baugenehmigung für ein 2-geschossiges Wohngebäude inklusive
- alternativ könnten auch 2 separate Einfamilienhäuser hergestellt werden
- barrierefreier Zugang zum Haus über eine rollstuhlgerechte Rampe
Ausstattung
- die Planung sieht 4 Wohneinheiten mit 2 bzw. 3 Zimmern und jeweils 2 Balkonen vor
- 8 Außenstellplätze und 12 Fahrradstellplätze
- 8 Außenstellplätze und 12 Fahrradstellplätze
Lage des Objektes
- im nördlichen Ortsteil Falkenhain
- attraktive, familienfreundliche Wohnlage, umgeben von Wäldern und Seen
- Geschäfte aller Art in der nahen Umgebung
- "Havelpark" ca. 7 km entfernt
- direkte Verbindung nach Berlin-Spandau mittels Regionalbahn oder Bus
- gute, verkehrstechnische Anbindung in alle Richtungen über die B 5 oder den Berliner Ring (A10)
- Gymnasium in unmittelbarer Nachbarschaft
- ca. 17 km nach Nauen, ca. 35 km in Potsdams Innenstadt
- attraktive, familienfreundliche Wohnlage, umgeben von Wäldern und Seen
- Geschäfte aller Art in der nahen Umgebung
- "Havelpark" ca. 7 km entfernt
- direkte Verbindung nach Berlin-Spandau mittels Regionalbahn oder Bus
- gute, verkehrstechnische Anbindung in alle Richtungen über die B 5 oder den Berliner Ring (A10)
- Gymnasium in unmittelbarer Nachbarschaft
- ca. 17 km nach Nauen, ca. 35 km in Potsdams Innenstadt
Sonstige Informationen
Die Provision in Höhe von 7,14 % (inkl. 19 % USt.) des beurkundeten Kaufpreises ist mit notarieller Beurkundung vom Käufer an BBI Immobilien GmbH zu zahlen.
Alle Angaben ohne Gewähr und nach Auskunft des Eigentümers. Irrtum vorbehalten! Das Angebot ist nur für den Empfänger bestimmt.
Bei einer Weitergabe an Dritte haftet der Angebotsempfänger für die Provision.
WAS IST IHRE IMMOBILE WIRKLICH WERT?
Wir bieten eine kostenlose Einschätzung Ihrer eigenen Immobilie durch unsere Experten.
Auf Wunsch sorgen wir für einen seriösen und zeitnahen Verkauf.
Weitere interessante, sowohl provisionspflichtige als auch provisionsfreie Angebote von Bauträgern, von Eigentumswohnungen über Einfamilienhäuser und Villen (Nutzung privat und gewerblich) bis hin zu renditeträchtigen Miethäusern für Investoren finden Sie unter www.bbi-immobilien.de
Visualisierung (2)
Bürgeramt
Falkenhagener_See
Falkenhagener_See2
Rösterei
Stadthalle.jpg3
Stadthalle.jpg5
UNTERGESCHOSS - ERDGESCHOSS
OBERGESCHOSS - DACHAUFSICHT