Exposé
Objektart:
Hallen / Lager / Produktion
» Halle
» Miete
Standort: Hallen / Lager / Produktion »
Deutschland » Berlin » Berlin, Stadt (Kreis) » Berlin
Halle mit Laderampe Nähe Flughafen Schönefeld zu mieten
DSC08623
Das Wichtigste auf einen Blick:
| Objektnummer: | 9333910 |
Preise
| Kaltmiete | 6.673 € |
| Warmmiete | 7.943 € |
| Kaltmiete (netto) | 6.673 € |
| Nebenkosten | 1270 € |
| Heizkosten enthalten | Ja |
| Mietpreis pro m² | 9,99 € |
| Kaution | 3 Warmmieten |
Flächen
| Gesamtfläche | 668 m² |
| Bürofläche | 266 m² |
| Maklerprovision | provisionsfreie Vermietung |
Objekt Adresse
Alexander-Meißner-Str. 36
12526 Berlin
Sonstige Angaben
| Baujahr | 2011 |
| Verfügbar ab | 01.02.2026 |
| Anzahl der Etagen im Haus | 1 |
| Küche | Einbauküche |
| Boden | Estrich |
| Energieausweistyp | Bedarfsausweis |
| Ausstellungsdatum | 29. 06. 2022 |
| Gültig bis | 06-2032 |
| Energieeffizienzklasse | A |
| Endenergiebedarf | 40.2 kWh/(m²*a) |
| Heizungsart | Zentralheizung |
| Wesentlicher Energieträger | Fern |
| Energieträger/Befeuerung | Fernwärme |
Beschreibung der Immobilie
Die Alexander-Meißner-Straße befindet sich im Osten Berlins, genauer gesagt im Stadtteil Berlin-Adlershof, einem bedeutenden Wissenschafts-, Technologie- und Medienstandort. Die Straße verläuft in der Nähe des Flughafens Berlin-Schönefeld (jetzt Berlin Brandenburg Airport, BER) und verbindet verschiedene wichtige Verkehrsachsen, was den Gewerbepark in dieser Region gut erreichbar macht.
Der Gewerbepark in der Alexander-Meißner-Straße befindet sich in einem gut angebundenen Industrie- und Gewerbegebiet, das sowohl für Unternehmen im Bereich Technologie und Forschung als auch für andere Gewerbearten attraktiv ist. In der Umgebung gibt es zahlreiche Forschungsinstitute, Start-ups und Unternehmen, die in den Bereichen IT, Luft- und Raumfahrt sowie Biotechnologie tätig sind. Der Standort profitiert von der Nähe zur Universität und zur Hochschule für angewandte Wissenschaften, was eine dynamische Entwicklung des Gewerbeparks fördert.
Die Verkehrsanbindung ist ausgezeichnet: Der Gewerbepark ist sowohl mit dem Auto als auch mit öffentlichen Verkehrsmitteln gut erreichbar, durch die Nähe zur A113 und zur S-Bahnstation Adlershof. Diese Lage bietet Unternehmen sowohl eine gute Erreichbarkeit von Berlin-Mitte als auch eine Anbindung an den internationalen Flughafen BER.
Insgesamt zeichnet sich der Gewerbepark an der Alexander-Meißner-Straße durch eine strategische Lage aus, die Unternehmen eine hervorragende Infrastruktur und Anbindung an wichtige Verkehrswege sowie an das Netzwerk von Wissenschaft und Innovation bietet
Der Gewerbepark in der Alexander-Meißner-Straße befindet sich in einem gut angebundenen Industrie- und Gewerbegebiet, das sowohl für Unternehmen im Bereich Technologie und Forschung als auch für andere Gewerbearten attraktiv ist. In der Umgebung gibt es zahlreiche Forschungsinstitute, Start-ups und Unternehmen, die in den Bereichen IT, Luft- und Raumfahrt sowie Biotechnologie tätig sind. Der Standort profitiert von der Nähe zur Universität und zur Hochschule für angewandte Wissenschaften, was eine dynamische Entwicklung des Gewerbeparks fördert.
Die Verkehrsanbindung ist ausgezeichnet: Der Gewerbepark ist sowohl mit dem Auto als auch mit öffentlichen Verkehrsmitteln gut erreichbar, durch die Nähe zur A113 und zur S-Bahnstation Adlershof. Diese Lage bietet Unternehmen sowohl eine gute Erreichbarkeit von Berlin-Mitte als auch eine Anbindung an den internationalen Flughafen BER.
Insgesamt zeichnet sich der Gewerbepark an der Alexander-Meißner-Straße durch eine strategische Lage aus, die Unternehmen eine hervorragende Infrastruktur und Anbindung an wichtige Verkehrswege sowie an das Netzwerk von Wissenschaft und Innovation bietet
Ausstattung
- Neubau
- Hallenfläche 402 m² zzgl. 117 m² Servicefläche im EG
- Die Servicefläche ist als Büro ausgebaut
- Hallenhöhe ca. 6 m mit Lichtkuppel
- Bürofläche 149 m² im 1.OG
- Estrichboden in der Halle
- Bodenbelastung 5 t/m², Staplerfahrzeuge mit maximal 3,1 t/m² Gesamtlast
- Eingang zur Halle über Rolltore 3 m B x 4,2 m H möglich
- Laderampe vorhanden
- Stellplätze vor der Tür
- WC in der Halle
- WC im Büro 1.OG
- Serverraum im 1.OG
- Hallenfläche 402 m² zzgl. 117 m² Servicefläche im EG
- Die Servicefläche ist als Büro ausgebaut
- Hallenhöhe ca. 6 m mit Lichtkuppel
- Bürofläche 149 m² im 1.OG
- Estrichboden in der Halle
- Bodenbelastung 5 t/m², Staplerfahrzeuge mit maximal 3,1 t/m² Gesamtlast
- Eingang zur Halle über Rolltore 3 m B x 4,2 m H möglich
- Laderampe vorhanden
- Stellplätze vor der Tür
- WC in der Halle
- WC im Büro 1.OG
- Serverraum im 1.OG
Blick von oben
DSC08334
DSC09333
DSC08625
Treppenhaus
Halle
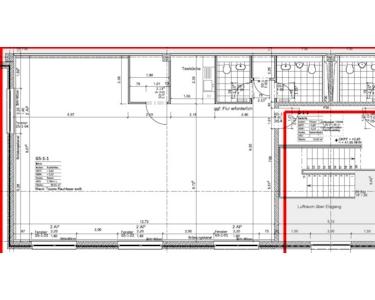
Grundriss Büro 1.OG
Grundriss Halle mit Serviceflä