Exposé
Objektart:
Wohnung
» Etage
» Kauf
Standort: Wohnung »
Deutschland » Berlin » Berlin, Stadt (Kreis) » Berlin
Hochwertige 3-Zimmer-Wohnung mit zwei Terrassen im Metropolenhaus am Besselpark
Wohnzimmer_Digitales Staging
Das Wichtigste auf einen Blick:
| Objektnummer: | 9324704 |
Preise
| Kaufpreis | 799.500 € |
| Nebenkosten | keine Angabe |
| Kaufpreis pro m² | 7314 € |
| Hausgeld | 337,03 € |
Flächen
| Wohnfläche | 109,23 m² |
| Maklerprovision | 3,57% inkl. gesetzl. MwSt. |
Objekt Adresse
Markgrafenstraße 88
10969 Berlin
- Berlin
Sonstige Angaben
| Baujahr | 2018 |
| Zimmer | 3 |
| Verfügbar ab | ab sofort |
| Inserat befindet sich im Stockwerk | 4 |
| Küche | Einbauküche |
| Balkone | 1 |
| Fahrstuhl | Ja |
| Keller | Ja |
| Energieausweistyp | Verbrauch |
| Ausstellungsdatum | 16. 05. 2018 |
| Gültig bis | 15.05.2028 |
| Energieeffizienzklasse | B |
| Energieverbrauchkennwert | 65 kWh/(m²*a) |
| Heizungsart | Fernwärme |
| Wesentlicher Energieträger | Fernwärme |
| Energieträger/Befeuerung | Fernwärme |
Objektbeschreibung
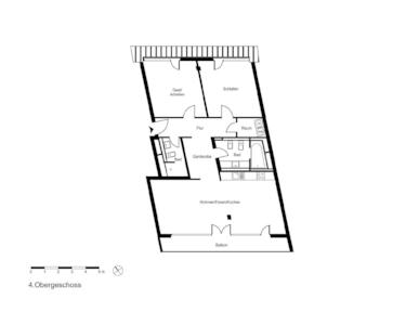
Im vierten Obergeschoss eines sehr gepflegten Gemeinschaftseigentum, dem Metropolenhaus am jüdischen Museum, präsentiert sich diese ca. 110 m² große Wohnung mit hochwertiger Ausstattung und durchdachtem Grundriss. Die Wohnung umfasst drei Zimmer, eine weitläufige Südwest-Terrasse mit beeindruckendem Ausblick sowie eine weitere Terrasse zur ruhigen Hofseite. Der offene Wohn- und Essbereich mit hochwertiger Bulthaup-Einbauküche bildet das Herzstück der Wohnung. Großzügige Fensterfronten lassen viel Tageslicht einfallen, während edles Parkett eine warme und elegante Atmosphäre erzeugt. Das moderne Badezimmer verfügt über eine Dusche, ergänzt durch ein separates Gäste-WC mit zusätzlicher Dusche. Ein Aufzug gewährleistet den barrierefreien Zugang, während ein eigener Kellerraum zusätzlichen Stauraum bietet. Seit der Fertigstellung im Jahr 2018 befindet sich die Einheit in einem neuwertigen Zustand und ist bereits bezugsfrei.
Lage des Objektes
Die Markgrafenstraße liegt im Herzen von Kreuzberg, direkt an der Grenze zu Berlin-Mitte und nur wenige Schritte vom weltbekannten Checkpoint Charlie entfernt. Das Viertel verbindet historische Architektur mit modernen Neubauten, internationaler Kultur und großstädtisches Lebensgefühl. Nur wenige Schritte entfernt eröffnen renommierte Museen wie das Jüdische Museum und die Berlinische Galerie spannende Einblicke in die Berliner Kunst- und Kulturlandschaft. Der Gendarmenmarkt sowie die Friedrichstraße mit ihren exklusiven Boutiquen und Gastronomieangeboten sind fußläufig erreichbar. Für Erholung im Grünen bieten sich der nahegelegene Engelbecken-Park oder die Ufer des Landwehrkanals an. Durch die zentrale Lage ist die Anbindung hervorragend: Mit den U-Bahn-Linien U6 und U2 sowie diversen Buslinien erreicht man alle Teile der Stadt in kürzester Zeit.
Zimmer
Zimmer
Objektansicht
Zimmer
Zimmer
Küche
Badezimmer
Badezimmer
Treppenhaus
Treppenhaus
Treppenhaus
Terrasse
Objektansicht
Objektansicht
Grundriss